1. トップページ
  2. 今週末モデルハウス見学会開催中!「湘南海岸公園」駅徒歩3分 新築一戸建て(1) リネン棚

今週末モデルハウス見学会開催中!「湘南海岸公園」駅徒歩3分 新築一戸建て(1) リネン棚

価格
7,790万円
物件種別
新築一戸建て
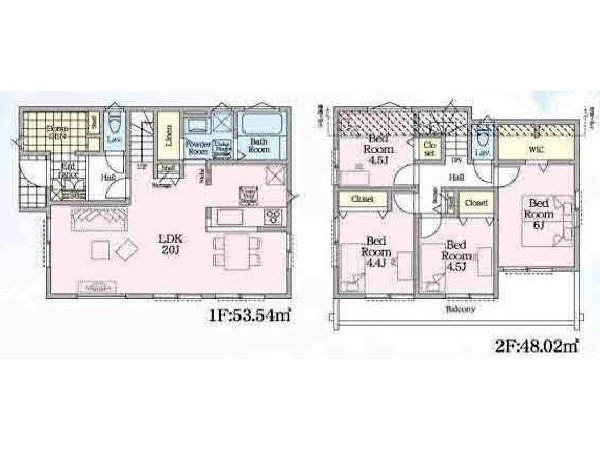
間取り
3LDK
所在地
藤沢市 片瀬4丁目
交通
  • 江ノ島電鉄線「湘南海岸公園」駅 徒歩 3 分
  • 湘南モノレール「湘南江の島」駅 徒歩 10 分
土地面積
120.56㎡
建物面積
96.47㎡
  • 前回情報更新日 2026.04.04
  • 次回情報更新予定日 2026.04.18
資料請求 現地見学 電話でお問い合わせ
0120-046-690
間取り
間取り
区画図
区画図

この物件のココがオススメ!

「湘南海岸公園」駅徒歩3分。閑静な住環境。プライベートに配慮した2階リビングは約20.8帖、シーリングファンと高窓で開放感を演出します。

こだわりポイント

  • 崖下・崖上
  • 省エネに配慮された建物
  • 食器洗い洗浄乾燥機
  • 浴室換気乾燥暖房機
  • スカイバルコニー
  • リビングイン階段
  • LDKは2階に
  • LDK20帖以上
  • 吹き抜け有り
  • 対面キッチン
  • 浴室1坪以上
  • 小学校10分以内
  • 大規模公園10分以内
  • スーパー10分以内
  • コンビニ10分以内
  • 保育園10分以内
  • 幼稚園10分以内
  • 公園10分以内
  • 都市ガス
  • フラット35利用可
  • カースペース2台
  • 角地限定
  • 道路広々(5m以上)

お気軽にどうぞ!

資料請求 現地見学 電話でお問い合わせ
0120-046-690

地図

申し訳ありません
こちらは会員限定機能です

会員登録で利用できる6つの便利機能

詳しく見る

お気軽にどうぞ!

資料請求 現地見学 電話でお問い合わせ
0120-046-690

頭金0万円・金利0.495%の場合

ボーナス時(年2回)お支払額

0

この物件の月々のお支払額

218,203

年収に対する返済比率

87

  • ※会員登録し、詳細情報を記入されますと、全ての物件で自動的に金額が表示され、大変便利です。
  • ※まだ会員登録をされていない方は、下記チェック欄をご記入ください。
  • ※上記計算は物件価格7,790万円+諸経費 8%込みの金額による結果となります。
  • ※返済金額はあくまでも目安です。

お客様の条件からシミュレーションするには?

会員登録
マイページから登録

金利

直接入力する

ボーナス払い(年2回)

返済年数

頭金

直接入力する

 万円(半角数字)

年収

 万円(半角数字)
価格 7,790万円
物件種別 新築一戸建て
間取り 3LDK
所在地 藤沢市 片瀬4丁目
交通
  • 江ノ島電鉄線「湘南海岸公園」駅 徒歩 3 分
  • 湘南モノレール「湘南江の島」駅 徒歩 10 分
土地面積 120.56㎡
建物面積 96.47㎡
学区 片瀬小学校 、片瀬中学校
用途地域 第一種低層住居専用
建ぺい率 50%
容積率 80%
地目 宅地
駐車場 有り カースペース
接道 北5m
権利 所有権
私道面積 無し
セットバック 無し
建物構造 木造
建物階数 2階
築年月 2026年03月
入居日 2026年04月
都市計画 市街化区域
取引態様 仲介
物件番号 S00908-1
設備 公営水道、公共下水、吹き抜け、制震構造、フラット35・S適合証明書、BELS/省エネ基準適合認定書あり、耐震・制震・免震、駐車場2台以上、緑豊かな住宅地、閑静な住宅地、海まで2km以内、スーパーが近い(10分以内)、小学校徒歩10分以内、保育施設・幼稚園5分以内、公園5分以内、コンビニ5分以内、システムキッチン、ガス3口、食器洗い機付き、浄水器、I型キッチン、ユニットバス、追い焚き、浴室乾燥機、ウォシュレット、トイレ2ヶ所、浴室1坪以上、浴室に窓、暖房便座、浴室暖房、ルーフバルコニー、2階建、LDK20畳以上、全室2面採光、フローリング、クローゼット、収納、床下収納、下駄箱、全居室収納、洗面室収納、シャンプドレッサー付き、モニタ付きインターフォン、24時間換気システム、建物10年保証、勾配天井、電動シャッター
建築確認番号 第25KAK建確01895号
特記事項 崖下につき建築制限:有 崖上につき建築制限:有 不整形地:有 景観法:有 日影制限:有 高さ限度:有 その他制限事項:居住誘導区域 藤沢市緑の保全及緑化の推進に関する条例 建築基準法第22条区域 建物面積にペントハウス面積約1平米含 建物面積に備蓄倉庫部分面積約0.93平米含 建物建築・再建築の際、深基礎、基礎杭、高基礎、防護壁の設置、擁壁の補修・構築・再構築、外壁後退等の対策が必要となる場合があります 崖下につき建築制限:有/崖上につき建築制限:有/不整形地:有/景観法:有/日影制限:有/高さ限度:有/居住誘導区域 藤沢市緑の保全及緑化の推進に関する条例 建築基準法第22条区域 建物面積にペントハウス面積約1平米含 建物面積に備蓄倉庫部分面積約0.93平米含 建物建築・再建築の際、深基礎、基礎杭、高基礎、防護壁の設置、擁壁の補修・構築・再構築、
備考 「湘南海岸公園」駅徒歩3分。閑静な住環境。プライベートに配慮した2階リビングは約20.8帖、シーリングファンと高窓で開放感を演出します。

お気軽にどうぞ!

資料請求 現地見学 電話でお問い合わせ
0120-046-690

このエリアでお探しの方へ

建物完成しました!今週末内覧会開催中!「辻堂」駅徒歩11分 新築一戸建て(B) 床暖房

東海道本線「辻堂」駅 徒歩 11 分

江ノ島電鉄線「藤沢」駅 バス停「新町二丁目」まで 徒歩 6 分 バス利用 13分

藤沢市 辻堂元町2丁目

7,490万円

4LDK

今週末モデルハウス見学会開催中!「本鵠沼」駅徒歩9分 新築一戸建て(1) 全室収納

江ノ島線「本鵠沼」駅 徒歩 9 分

江ノ島電鉄線「石上」駅 徒歩 22 分

藤沢市 本鵠沼4丁目

7,490万円

2SLDK

横浜市港北区下田町3丁目 新築一戸建 7490万円 B号棟

東急東横線「日吉」駅 徒歩 25 分

グリーンライン「日吉本町」駅 徒歩 22 分

横浜市港北区 下田町3丁目

7,490万円

4LDK

横浜市神奈川区片倉4丁目 中古一戸建 7499万円

ブルーライン「片倉町」駅 徒歩 8 分

横浜線「新横浜」駅 徒歩 27 分

横浜市神奈川区 片倉4丁目

7,499万円

3SLDK

横浜市青葉区新石川1丁目 新築一戸建 7580万円 1号棟

ブルーライン「あざみ野」駅 徒歩 9 分

田園都市線「たまプラーザ」駅 徒歩 16 分

横浜市青葉区 新石川1丁目

7,580万円

4LDK

横浜市青葉区新石川1丁目 新築一戸建 7580万円 6号棟

ブルーライン「あざみ野」駅 徒歩 9 分

田園都市線「たまプラーザ」駅 徒歩 16 分

横浜市青葉区 新石川1丁目

7,580万円

4LDK

横浜市都筑区東山田4丁目 新築一戸建 7580万円 8号棟

グリーンライン「東山田」駅 徒歩 19 分

グリーンライン「北山田」駅 徒歩 20 分

横浜市都筑区 東山田4丁目

7,580万円

5LDK

横浜市都筑区東山田4丁目 新築一戸建 7580万円 7号棟

グリーンライン「東山田」駅 徒歩 19 分

グリーンライン「北山田」駅 徒歩 20 分

横浜市都筑区 東山田4丁目

7,580万円

4LDK

横浜市都筑区東山田4丁目 新築一戸建 7580万円 10号棟

グリーンライン「東山田」駅 徒歩 19 分

グリーンライン「北山田」駅 徒歩 20 分

横浜市都筑区 東山田4丁目

7,580万円

3LDK

横浜市都筑区東山田4丁目 新築一戸建 7680万円 2号棟

グリーンライン「東山田」駅 徒歩 19 分

グリーンライン「北山田」駅 徒歩 20 分

横浜市都筑区 東山田4丁目

7,680万円

4LDK

横浜市都筑区東山田4丁目 新築一戸建 7680万円 4号棟

グリーンライン「東山田」駅 徒歩 19 分

グリーンライン「北山田」駅 徒歩 20 分

横浜市都筑区 東山田4丁目

7,680万円

4LDK

横浜市都筑区東山田4丁目 新築一戸建 7680万円 1号棟

グリーンライン「東山田」駅 徒歩 19 分

グリーンライン「北山田」駅 徒歩 20 分

横浜市都筑区 東山田4丁目

7,680万円

5LDK

お気軽にどうぞ!

資料請求 現地見学 電話でお問い合わせ
0120-046-690
来店予約