1. トップページ
  2. 建物完成しました!今週末内覧会開催中!「辻堂」駅徒歩11分 新築一戸建て(B) 床暖房

建物完成しました!今週末内覧会開催中!「辻堂」駅徒歩11分 新築一戸建て(B) 床暖房

価格
7,290万円
物件種別
新築一戸建て
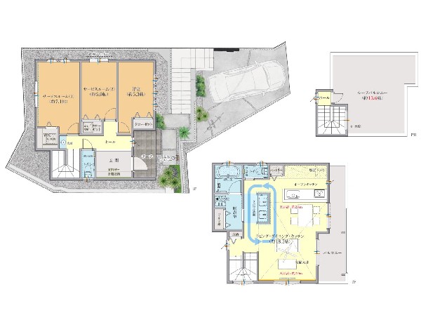
間取り
4LDK
所在地
藤沢市 辻堂元町2丁目
交通
  • 東海道本線「辻堂」駅 徒歩 11 分
  • 江ノ島電鉄線「藤沢」駅 バス停「新町二丁目」まで 徒歩 6 分 バス利用 13分
土地面積
152.28㎡
建物面積
98.95㎡
  • 前回情報更新日 2026.04.16
  • 次回情報更新予定日 2026.04.30
資料請求 現地見学 電話でお問い合わせ
0120-046-690
間取り
間取り
区画図
区画図

この物件のココがオススメ!

「辻堂」駅徒歩11分。通勤通学に便利な立地。シューズインクロークやウォークインクローゼット大物を収納するのに心強いですね。

こだわりポイント

  • 断熱に配慮された建物
  • 省エネに配慮された建物
  • 長期優良住宅
  • 床暖房
  • 食器洗い洗浄乾燥機
  • 浴室換気乾燥暖房機
  • LDKは1階に
  • シューズインクローク
  • ウォークインクローゼット
  • LDK15帖以上
  • 対面キッチン
  • 浴室1坪以上
  • 小学校10分以内
  • 大型商業施設15分以内
  • スーパー10分以内
  • コンビニ10分以内
  • 小児科医院10分以内
  • 保育園10分以内
  • 幼稚園10分以内
  • 公園10分以内
  • 都市ガス
  • フラット35利用可
  • 道路広々(5m以上)

お気軽にどうぞ!

資料請求 現地見学 電話でお問い合わせ
0120-046-690

地図

申し訳ありません
こちらは会員限定機能です

会員登録で利用できる6つの便利機能

詳しく見る

お気軽にどうぞ!

資料請求 現地見学 電話でお問い合わせ
0120-046-690

頭金0万円・金利0.495%の場合

ボーナス時(年2回)お支払額

0

この物件の月々のお支払額

204,197

年収に対する返済比率

82

  • ※会員登録し、詳細情報を記入されますと、全ての物件で自動的に金額が表示され、大変便利です。
  • ※まだ会員登録をされていない方は、下記チェック欄をご記入ください。
  • ※上記計算は物件価格7,290万円+諸経費 8%込みの金額による結果となります。
  • ※返済金額はあくまでも目安です。

お客様の条件からシミュレーションするには?

会員登録
マイページから登録

金利

直接入力する

ボーナス払い(年2回)

返済年数

頭金

直接入力する

 万円(半角数字)

年収

 万円(半角数字)
価格 7,290万円
物件種別 新築一戸建て
間取り 4LDK
所在地 藤沢市 辻堂元町2丁目
交通
  • 東海道本線「辻堂」駅 徒歩 11 分
  • 江ノ島電鉄線「藤沢」駅 バス停「新町二丁目」まで 徒歩 6 分 バス利用 13分
土地面積 152.28㎡
建物面積 98.95㎡
学区 八松小学校、明治中学校
用途地域 第一種住居
建ぺい率 200%
容積率 60%
地目 宅地
駐車場 有り カースペース
接道 西6.3m
権利 所有権
私道面積 無し
セットバック 無し
建物構造 木造
建物階数 2階
築年月 2026年02月
入居日 即時
都市計画 市街化区域
取引態様 仲介
物件番号 S00917-B
設備 公営水道、公共下水、設計住宅性能評価付、省エネルギー対策、外壁サイディング、建設住宅性能評価書(新築時)、フラット35・S適合証明書、BELS/省エネ基準適合認定書あり、耐震・制震・免震、駐車場2台以上、緑豊かな住宅地、前道6m以上、スーパーが近い(10分以内)、小学校徒歩10分以内、保育施設・幼稚園5分以内、システムキッチン、ガス3口、食器洗い機付き、浄水器、I型キッチン、ユニットバス、追い焚き、浴室乾燥機、ウォシュレット、トイレ2ヶ所、浴室1坪以上、浴室に窓、暖房便座、浴室暖房、バルコニー、2階建、LDK15畳以上、採光2面、フローリング、クローゼット、収納、床下収納、下駄箱、全居室収納、シャンプドレッサー付き、フラット35Sに対応、モニタ付きインターフォン、複層ガラス、24時間換気システム、建物10年保証
建築確認番号 第HPA-25-08504-1号
特記事項 不整形地:有 景観法:有 宅地造成工事規制区域:有 準防火地域:有 日影制限:有 その他制限事項:居住誘導区域 藤沢市緑の保全及緑化の推進に関する条例 不整形地:有/景観法:有/宅地造成工事規制区域:有/準防火地域:有/日影制限:有/居住誘導区域 藤沢市緑の保全及緑化の推進に関する条例 。 /
備考 「辻堂」駅徒歩11分。通勤通学に便利な立地。シューズインクロークやウォークインクローゼット大物を収納するのに心強いですね。

お気軽にどうぞ!

資料請求 現地見学 電話でお問い合わせ
0120-046-690

このエリアでお探しの方へ

横浜市港北区新吉田東5丁目 新築一戸建 6990万円 3期

東急東横線「綱島」駅 バス停「新田農協前」まで 徒歩 2 分 バス利用 7分

ブルーライン「新羽」駅 徒歩 21 分

横浜市港北区 新吉田東5丁目

6,990万円

3LDK

今週末モデルハウス見学会開催中!「本鵠沼」駅徒歩9分 新築一戸建て(2) SIC

江ノ島線「本鵠沼」駅 徒歩 9 分

江ノ島電鉄線「石上」駅 徒歩 22 分

藤沢市 本鵠沼4丁目

6,990万円

2SLDK

今週末モデルハウス見学会開催中!「高田」駅徒歩12分 新築一戸建て(2) カースペース2台

グリーンライン「高田」駅 徒歩 12 分

東急東横線「綱島」駅 徒歩 26 分

横浜市港北区 新吉田東1丁目

6,990万円

4LDK

今週末モデルハウス見学会開催中!「高田」駅利用 新築一戸建て(3-1) 全室2面採光

グリーンライン「高田」駅 徒歩 20 分

横浜線「新横浜」駅 バス停「新田農協前」まで 徒歩 2 分 バス利用 21分

横浜市港北区 新吉田東5丁目

6,990万円

3LDK

今週末モデルハウス見学会開催中!「高田」駅徒歩12分 新築一戸建て(5) カースペース2台

グリーンライン「高田」駅 徒歩 12 分

東急東横線「綱島」駅 徒歩 26 分

横浜市港北区 新吉田東1丁目

6,990万円

4LDK

横浜市港北区新吉田東1丁目 新築一戸建 6990万円 2号棟

グリーンライン「高田」駅 徒歩 12 分

東急東横線「綱島」駅 徒歩 22 分

横浜市港北区 新吉田東1丁目

6,990万円

4LDK

横浜市港北区新吉田東1丁目 新築一戸建 6990万円 5号棟

グリーンライン「高田」駅 徒歩 12 分

東急東横線「綱島」駅 徒歩 22 分

横浜市港北区 新吉田東1丁目

6,990万円

4LDK

川崎市麻生区王禅寺東5丁目 新築一戸建 6998万円

小田急線「柿生」駅 バス停「琴平下」まで 徒歩 2 分 バス利用 8分

田園都市線「あざみ野」駅 バス停「裏門坂」まで 徒歩 6 分 バス利用 14分

川崎市麻生区 王禅寺東5丁目

6,998万円

4LDK

建物完成しました!今週末内覧会開催中!「北鎌倉」駅利用 新築一戸建て(1) 床暖房

横須賀線「北鎌倉」駅 徒歩 20 分

江ノ島電鉄線「鎌倉」駅 徒歩 27 分

鎌倉市 梶原3丁目

6,999万円

3SLDK

今週末モデルハウス見学会開催中!「辻堂」駅利用 新築一戸建て(1)

東海道本線「辻堂」駅 徒歩 24 分

江ノ島線「鵠沼海岸」駅 徒歩 22 分

藤沢市 辻堂太平台1丁目

6,999万円

3LDK

横浜市鶴見区梶山1丁目 新築一戸建 6999万円

京浜東北線「鶴見」駅 バス停「三ツ池公園」まで 徒歩 3 分 バス利用 20分

京浜急行本線「京急鶴見」駅 バス停「三ツ池公園」まで 徒歩 3 分 バス利用 20分

横浜市鶴見区 梶山1丁目

6,999万円

2SLDK

川崎市多摩区生田6丁目 新築一戸建 7049万円 1号棟

小田急線「生田」駅 徒歩 10 分

小田急線「読売ランド前」駅 徒歩 13 分

川崎市多摩区 生田6丁目

7,049万円

4LDK

お気軽にどうぞ!

資料請求 現地見学 電話でお問い合わせ
0120-046-690
来店予約