1. トップページ
  2. 今週末モデルハウス見学会開催中!「辻堂」駅利用 新築一戸建て(1)

今週末モデルハウス見学会開催中!「辻堂」駅利用 新築一戸建て(1)

価格
5,180万円
物件種別
新築一戸建て
間取り
1LDK+2S
所在地
茅ヶ崎市 緑が浜
交通
  • 東海道本線「辻堂」駅 徒歩 31 分
  • 相模線「茅ヶ崎」駅 バス停「平和学園前」まで 徒歩 4 分 バス利用 9分
土地面積
105.06㎡
建物面積
89.83㎡
  • 前回情報更新日 2026.03.06
  • 次回情報更新予定日 2026.03.20
資料請求 現地見学 電話でお問い合わせ
0120-046-690
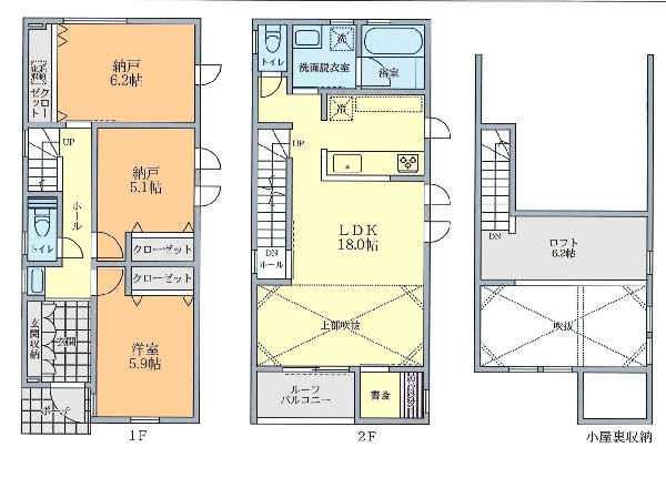
間取り
間取り
区画図
区画図

この物件のココがオススメ!

東海道線「辻堂」駅利用。緑豊かで、閑静な住環境。カースペース2台駐車可能。18帖LDKは、ご家族との会話が弾む対面キッチン。納戸もお部屋としてご利用いただけます。温水外シャワー設置。

こだわりポイント

  • 海が近い家
  • サーファーに嬉しい家
  • 敷地延長(旗竿地)
  • 食器洗い洗浄乾燥機
  • 浴室換気乾燥暖房機
  • リビングイン階段
  • LDKは2階に
  • LDK18帖以上
  • 吹き抜け有り
  • 対面キッチン
  • 浴室1坪以上
  • ロフト・小屋裏収納
  • 小学校10分以内
  • 大型商業施設15分以内
  • コンビニ10分以内
  • 小児科医院10分以内
  • 保育園10分以内
  • 幼稚園10分以内
  • 公園10分以内
  • 都市ガス
  • フラット35利用可
  • カースペース2台
  • 道路広々(5m以上)
  • 低層住居専用地域

お気軽にどうぞ!

資料請求 現地見学 電話でお問い合わせ
0120-046-690

地図

申し訳ありません
こちらは会員限定機能です

会員登録で利用できる6つの便利機能

詳しく見る

お気軽にどうぞ!

資料請求 現地見学 電話でお問い合わせ
0120-046-690

頭金0万円・金利0.495%の場合

ボーナス時(年2回)お支払額

0

この物件の月々のお支払額

145,088

年収に対する返済比率

58

  • ※会員登録し、詳細情報を記入されますと、全ての物件で自動的に金額が表示され、大変便利です。
  • ※まだ会員登録をされていない方は、下記チェック欄をご記入ください。
  • ※上記計算は物件価格5,180万円+諸経費 8%込みの金額による結果となります。
  • ※返済金額はあくまでも目安です。

お客様の条件からシミュレーションするには?

会員登録
マイページから登録

金利

直接入力する

ボーナス払い(年2回)

返済年数

頭金

直接入力する

 万円(半角数字)

年収

 万円(半角数字)
価格 5,180万円
物件種別 新築一戸建て
間取り 1LDK+2S
所在地 茅ヶ崎市 緑が浜
交通
  • 東海道本線「辻堂」駅 徒歩 31 分
  • 相模線「茅ヶ崎」駅 バス停「平和学園前」まで 徒歩 4 分 バス利用 9分
土地面積 105.06㎡
建物面積 89.83㎡
学区 緑が浜小学校、松浪中学校
用途地域 第一種低層住居専用
建ぺい率 50%
容積率 100%
地目 宅地
駐車場 有り カースペース
接道 西8m
権利 所有権
私道面積 無し
セットバック 無し
建物構造 木造
建物階数 2階
築年月 2026年02月
入居日 2026年03月
都市計画 市街化区域
取引態様 仲介
物件番号 S00828-1
設備 公営水道、公共下水、吹き抜け、フラット35・S適合証明書、駐車場2台以上、緑豊かな住宅地、閑静な住宅地、前道6m以上、海まで2km以内、小学校徒歩10分以内、中学校徒歩10分以内、保育施設・幼稚園5分以内、公園5分以内、コンビニ5分以内、システムキッチン、ガス3口、食器洗い機付き、I型キッチン、ユニットバス、追い焚き、浴室乾燥機、ウォシュレット、トイレ2ヶ所、浴室1坪以上、浴室に窓、暖房便座、セカンド洗面台、浴室暖房、ルーフバルコニー、南面バルコニー、2階建、ロフト、南向き、フローリング、全室フローリング、リビング階段、クローゼット、収納、床下収納、下駄箱、屋根裏収納、全居室収納、シャンプドレッサー付き、24時間換気システム、建物10年保証
建築確認番号 第2025SBC-確00572H号
特記事項 不整形地:有 宅地造成工事規制区域:有 準防火地域:有 日影制限:有 敷地面積最低限度:有 高さ限度:有 その他制限事項:土地面積に路地状部分約34.75平米含 不整形地:有/宅地造成工事規制区域:有/準防火地域:有/日影制限:有/敷地面積最低限度:有/高さ限度:有/土地面積に路地状部分約34.75平米含。 /
備考 東海道線「辻堂」駅利用。緑豊かで、閑静な住環境。カースペース2台駐車可能。18帖LDKは、ご家族との会話が弾む対面キッチン。納戸もお部屋としてご利用いただけます。温水外シャワー設置。

お気軽にどうぞ!

資料請求 現地見学 電話でお問い合わせ
0120-046-690

このエリアでお探しの方へ

川崎市幸区小向町 新築一戸建 4880万円 2号棟

京浜東北線「川崎」駅 徒歩 25 分

南武線「鹿島田」駅 徒歩 24 分

川崎市幸区 小向町

4,880万円

3LDK

川崎市幸区小向町 新築一戸建 4880万円 1号棟

京浜東北線「川崎」駅 徒歩 25 分

南武線「鹿島田」駅 徒歩 24 分

川崎市幸区 小向町

4,880万円

3LDK

川崎市宮前区初山2丁目 新築一戸建 4880万円 17号棟

田園都市線「溝の口」駅 バス停「初山」まで 徒歩 1 分 バス利用 16分

小田急線「向ヶ丘遊園」駅 バス停「原ヶ谷」まで 徒歩 7 分 バス利用 15分

川崎市宮前区 初山2丁目

4,880万円

3LDK

川崎市宮前区初山2丁目 新築一戸建 4880万円 1号棟

田園都市線「溝の口」駅 バス停「初山」まで 徒歩 1 分 バス利用 16分

小田急線「向ヶ丘遊園」駅 バス停「原ヶ谷」まで 徒歩 7 分 バス利用 15分

川崎市宮前区 初山2丁目

4,880万円

2SLDK

川崎市宮前区南野川2丁目 新築一戸建 4880万円 5号棟

グリーンライン「東山田」駅 徒歩 23 分

田園都市線「鷺沼」駅 バス停「久末」まで 徒歩 4 分 バス利用 22分

川崎市宮前区 南野川2丁目

4,880万円

3LDK

川崎市宮前区南野川2丁目 新築一戸建 4880万円 7号棟

グリーンライン「東山田」駅 徒歩 23 分

田園都市線「鷺沼」駅 バス停「久末」まで 徒歩 4 分 バス利用 22分

川崎市宮前区 南野川2丁目

4,880万円

3SLDK

今週末モデルハウス見学会開催中!「花月総持寺」駅利用 新築一戸建て(1) 閑静な住宅地

京浜急行本線「花月総持寺」駅 徒歩 16 分

京浜急行本線「生麦」駅 徒歩 18 分

横浜市鶴見区 東寺尾中台

4,880万円

4LDK

今週末モデルハウス見学会開催中!「瀬谷」駅利用 新築一戸建て(5)カースペース2台

相模鉄道線「瀬谷」駅 徒歩 17 分

江ノ島線「大和」駅 バス停「境橋」まで 徒歩 8 分 バス利用 3分

横浜市瀬谷区 橋戸3丁目

4,880万円

4LDK

値下げしました! 「瀬谷」駅利用 新築一戸建て(2) カースペース3台

相模鉄道線「瀬谷」駅 徒歩 18 分

江ノ島線「大和」駅 徒歩 21 分

横浜市瀬谷区 橋戸3丁目

4,880万円

3SLDK

今週末モデルハウス見学会開催中!「上大岡」駅徒歩10分 新築一戸建て(B)ビルトイン車庫

京浜急行本線「上大岡」駅 徒歩 10 分

ブルーライン「上大岡」駅 徒歩 10 分

横浜市港南区 港南1丁目

4,880万円

3LDK

横浜市鶴見区馬場1丁目 新築一戸建 4880万円 1号棟

東急東横線「妙蓮寺」駅 徒歩 23 分

横浜線「菊名」駅 バス停「西寺尾建功寺前」まで 徒歩 3 分 バス利用 10分

横浜市鶴見区 馬場1丁目

4,880万円

3LDK

川崎市宮前区初山2丁目 新築一戸建 4880万円 13号棟

田園都市線「溝の口」駅 バス停「初山」まで 徒歩 1 分 バス利用 16分

小田急線「向ヶ丘遊園」駅 バス停「原ヶ谷」まで 徒歩 7 分 バス利用 15分

川崎市宮前区 初山2丁目

4,880万円

3LDK

お気軽にどうぞ!

資料請求 現地見学 電話でお問い合わせ
0120-046-690
来店予約