1. トップページ
  2. 建物完成しました!今週末内覧会開催中!「辻堂」駅利用 新築一戸建て(6)

建物完成しました!今週末内覧会開催中!「辻堂」駅利用 新築一戸建て(6)

価格
5,880万円
物件種別
新築一戸建て
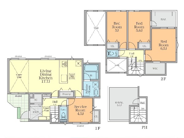
間取り
3SLDK
所在地
藤沢市 城南5丁目
交通
  • 東海道本線「辻堂」駅 徒歩 20 分
  • 江ノ島線「藤沢本町」駅 バス停「辻堂入口」まで 徒歩 5 分 バス利用 7分
土地面積
174.84㎡
建物面積
101.84㎡
  • 前回情報更新日 2026.04.27
  • 次回情報更新予定日 2026.05.11
資料請求 現地見学 電話でお問い合わせ
0120-046-690
間取り
間取り
区画図
区画図

この物件のココがオススメ!

東海道線「辻堂」駅徒歩20分。閑静な住環境。全居室2面採光やルーフバルコニーで、明るく、通風良好なお住まいです。安心のアフターサービスも充実しているので、安心ですね。

こだわりポイント

  • 崖下・崖上
  • 断熱に配慮された建物
  • 省エネに配慮された建物
  • 食器洗い洗浄乾燥機
  • 浴室換気乾燥暖房機
  • スカイバルコニー
  • シューズインクローク
  • LDKは2階に
  • LDK18帖以上
  • 対面キッチン
  • 浴室1坪以上
  • パントリー
  • 小学校10分以内
  • 有料道路インター2キロ以内
  • スーパー10分以内
  • コンビニ10分以内
  • 総合病院10分以内
  • 保育園10分以内
  • 公園10分以内
  • 都市ガス
  • フラット35利用可
  • 10棟以上の分譲地

お気軽にどうぞ!

資料請求 現地見学 電話でお問い合わせ
0120-046-690

地図

申し訳ありません
こちらは会員限定機能です

会員登録で利用できる6つの便利機能

詳しく見る

お気軽にどうぞ!

資料請求 現地見学 電話でお問い合わせ
0120-046-690

頭金0万円・金利0.495%の場合

ボーナス時(年2回)お支払額

0

この物件の月々のお支払額

164,696

年収に対する返済比率

66

  • ※会員登録し、詳細情報を記入されますと、全ての物件で自動的に金額が表示され、大変便利です。
  • ※まだ会員登録をされていない方は、下記チェック欄をご記入ください。
  • ※上記計算は物件価格5,880万円+諸経費 8%込みの金額による結果となります。
  • ※返済金額はあくまでも目安です。

お客様の条件からシミュレーションするには?

会員登録
マイページから登録

金利

直接入力する

ボーナス払い(年2回)

返済年数

頭金

直接入力する

 万円(半角数字)

年収

 万円(半角数字)
価格 5,880万円
物件種別 新築一戸建て
間取り 3SLDK
所在地 藤沢市 城南5丁目
交通
  • 東海道本線「辻堂」駅 徒歩 20 分
  • 江ノ島線「藤沢本町」駅 バス停「辻堂入口」まで 徒歩 5 分 バス利用 7分
土地面積 174.84㎡
建物面積 101.84㎡
学区 明治小学校、羽鳥中学校
用途地域 第二種住居
建ぺい率 60%
容積率 200%
地目 宅地
駐車場 有り カースペース
接道 南東4.5m
権利 所有権
私道面積 無し
セットバック 無し
建物構造 木造
建物階数 2階
築年月 2026年02月
入居日 即時
都市計画 市街化区域
取引態様 仲介
物件番号 S00789-6
設備 公営水道、公共下水、省エネルギー対策、フラット35・S適合証明書、BELS/省エネ基準適合認定書あり、駐車場1台、閑静な住宅地、スーパーが近い(10分以内)、総合病院徒歩10分以内、小学校徒歩10分以内、公園5分以内、コンビニ5分以内、システムキッチン、ガス3口、食器洗い機付き、浄水器、I型キッチン、パントリー(食器・食品の収納庫)、ユニットバス、追い焚き、浴室乾燥機、ウォシュレット、トイレ2ヶ所、浴室1坪以上、浴室に窓、暖房便座、浴室暖房、ルーフバルコニー、南面バルコニー、2階建、LDK18畳以上、省エネ給湯器、全室2面採光、フローリング、クローゼット、収納、床下収納、全居室収納、シャンプドレッサー付き、モニタ付きインターフォン、複層ガラス、24時間換気システム、建物10年保証、勾配天井
建築確認番号 第25KAK建確01626号
特記事項 崖上につき建築制限:有 不整形地:有 景観法:有 宅地造成工事規制区域:有 準防火地域:有 日影制限:有 その他制限事項:居住誘導区域 藤沢市緑の保全及緑化の推進に関する条例 建物面積にペントハウス面積約0.9平米含 建物建築・再建築の際、深基礎、基礎杭、擁壁の補修・構築・再構築、外壁後退等の対策が必要となる場合があります フラット35利用の場合、適合証明書取得費用がかかります(110000円)土地面積174.84平米に傾斜地部分約74.07平米含む  崖上につき建築制限:有/不整形地:有/景観法:有/宅地造成工事規制区域:有/準防火地域:有/日影制限:有/居住誘導区域 藤沢市緑の保全及緑化の推進に関する条例 建物面積にペントハウス面積約0.9平米含 建物建築・再建築の際、深基礎、基礎杭、擁壁の補修・構築・再構築、外壁後退等の対策が必要となる場合
備考 東海道線「辻堂」駅徒歩20分。閑静な住環境。全居室2面採光やルーフバルコニーで、明るく、通風良好なお住まいです。安心のアフターサービスも充実しているので、安心ですね。

お気軽にどうぞ!

資料請求 現地見学 電話でお問い合わせ
0120-046-690

このエリアでお探しの方へ

今週末モデルハウス見学会開催中!「善行」駅徒歩10分 新築一戸建て(1)

江ノ島線「善行」駅 徒歩 10 分

江ノ島線「藤沢本町」駅 バス停「善行二丁目」まで 徒歩 9 分 バス利用 7分

藤沢市 善行3丁目

5,590万円

4LDK

今週末モデルハウス見学会開催中!「藤沢本町」駅徒歩10分 新築一戸建て(B)

江ノ島線「藤沢本町」駅 徒歩 9 分

東海道本線「藤沢」駅 バス停「台町」まで 徒歩 10 分 バス利用 8分

藤沢市 花の木

5,595万円

2SLDK

建物完成しました!今週末内覧会開催中!「辻堂」駅利用 新築一戸建て(13)

東海道本線「辻堂」駅 徒歩 20 分

江ノ島線「藤沢本町」駅 バス停「辻堂入口」まで 徒歩 5 分 バス利用 7分

藤沢市 城南5丁目

5,680万円

2LK+2S

建物完成しました!今週末内覧会開催中!「辻堂」駅利用 新築一戸建て(7)

東海道本線「辻堂」駅 徒歩 20 分

江ノ島線「藤沢本町」駅 バス停「辻堂入口」まで 徒歩 5 分 バス利用 7分

藤沢市 城南5丁目

5,680万円

2LDK+2S

建物完成しました!今週末内覧会開催中!「辻堂」駅利用 新築一戸建て(11)

東海道本線「辻堂」駅 徒歩 20 分

江ノ島線「藤沢本町」駅 バス停「辻堂入口」まで 徒歩 5 分 バス利用 7分

藤沢市 城南5丁目

5,680万円

4LDK

今週末モデルハウス見学会開催中!「藤沢本町」駅徒歩10分 新築一戸建て(C)

江ノ島線「藤沢本町」駅 徒歩 9 分

東海道本線「藤沢」駅 バス停「台町」まで 徒歩 10 分 バス利用 8分

藤沢市 花の木

5,695万円

1LDK+2S

今週末モデルハウス見学会開催中!「藤沢本町」駅利用 新築一戸建て(2)

江ノ島線「藤沢本町」駅 徒歩 18 分

東海道本線「藤沢」駅 バス停「修道院前」まで 徒歩 3 分 バス利用 13分

藤沢市 本藤沢2丁目

5,799万円

3LDK

今週末モデルハウス見学会開催中!「藤沢本町」駅利用 新築一戸建て(4)

江ノ島線「藤沢本町」駅 徒歩 18 分

東海道本線「藤沢」駅 バス停「修道院前」まで 徒歩 3 分 バス利用 13分

藤沢市 本藤沢2丁目

5,799万円

4LDK

今週末モデルハウス見学会開催中!「藤沢本町」駅利用 新築一戸建て(5)

江ノ島線「藤沢本町」駅 徒歩 18 分

東海道本線「藤沢」駅 バス停「修道院前」まで 徒歩 3 分 バス利用 13分

藤沢市 本藤沢2丁目

5,799万円

3LDK

建物完成しました!今週末内覧会開催中!「辻堂」駅利用 新築一戸建て(8)

東海道本線「辻堂」駅 徒歩 20 分

江ノ島線「藤沢本町」駅 バス停「辻堂入口」まで 徒歩 5 分 バス利用 7分

藤沢市 城南5丁目

5,880万円

3SLDK

今週末モデルハウス見学会開催中!「藤沢本町」駅利用 新築一戸建て(1)

江ノ島線「藤沢本町」駅 徒歩 18 分

東海道本線「藤沢」駅 バス停「修道院前」まで 徒歩 3 分 バス利用 13分

藤沢市 本藤沢2丁目

5,999万円

4LDK

今週末モデルハウス見学会開催中!「鵠沼海岸」駅徒歩15分 新築一戸建て(4)

江ノ島線「鵠沼海岸」駅 徒歩 15 分

東海道本線「藤沢」駅 バス停「鵠沼運動公園前」まで 徒歩 6 分 バス利用 9分

藤沢市 辻堂太平台1丁目

5,590万円

4LDK

お気軽にどうぞ!

資料請求 現地見学 電話でお問い合わせ
0120-046-690
来店予約