1. トップページ
  2. 今週末モデルハウス見学会開催中!「東戸塚」駅利用 新築一戸建て 長期優良住宅

今週末モデルハウス見学会開催中!「東戸塚」駅利用 新築一戸建て 長期優良住宅

価格
5,680万円
物件種別
新築一戸建て
間取り
4LDK
所在地
横浜市港南区 下永谷6丁目
交通
  • 横須賀線「東戸塚」駅 徒歩 20 分
  • 横須賀線「東戸塚」駅 バス停「環2下永谷」まで 徒歩 3 分 バス利用 5分
土地面積
115.27㎡
建物面積
104.34㎡
  • 前回情報更新日 2026.04.30
  • 次回情報更新予定日 2026.05.14
資料請求 現地見学 電話でお問い合わせ
0120-046-690
外観:角地のため隣接する建物が近くにないので、開放的で、日当りも良く明るい住宅となっています。
外観:角地のため隣接する建物が近くにないので、開放的で、日当りも良く明るい住宅となっています。
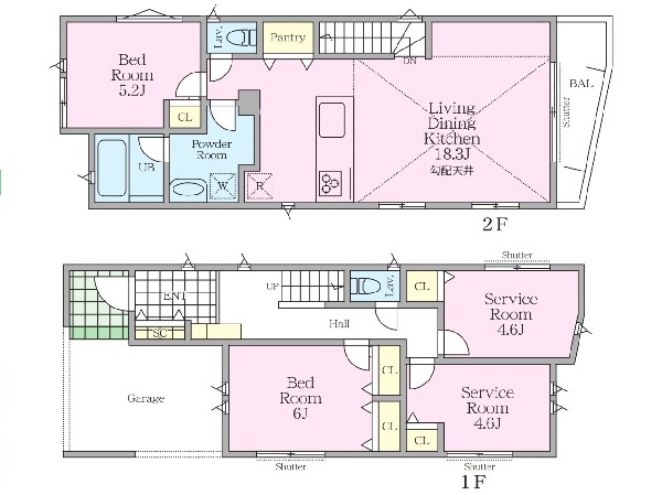
間取図
間取図
区画図
区画図
外観:開放感のある現地で、前面道路よりも少し高くなっておりますので、プライベート感も保たれます!高くなっている分、日当りや風通しも良く快適な生活が待っています!
外観:開放感のある現地で、前面道路よりも少し高くなっておりますので、プライベート感も保たれます!高くなっている分、日当りや風通しも良く快適な生活が待っています!
外観:揺れに耐える耐震性能と、揺れを抑えて住宅へのダメージを軽減する制震性能の二つを兼ね備えた住宅です!住まう方を想い造り上げる本物件は、より長く安心して住んで頂きたい為の備えが整っています。
外観:揺れに耐える耐震性能と、揺れを抑えて住宅へのダメージを軽減する制震性能の二つを兼ね備えた住宅です!住まう方を想い造り上げる本物件は、より長く安心して住んで頂きたい為の備えが整っています。
外観:深く豊かな緑と爽快な青い空を感じるまさに横浜に暮らす心地よさを存分に堪能いただける邸宅です。グレードの高い設備仕様が標準装備のデザイン住宅で快適で便利な生活をお送り頂けます。
外観:深く豊かな緑と爽快な青い空を感じるまさに横浜に暮らす心地よさを存分に堪能いただける邸宅です。グレードの高い設備仕様が標準装備のデザイン住宅で快適で便利な生活をお送り頂けます。
外観:四季を通じて自然と触れ合えるスポットが周辺には盛りだくさん!お散歩やジョギング、週末のご家族での遊びに最適です。目の前に広がる開放感とゆとり、暮らしの夢を育む理想の住まいがここにはあります。
外観:四季を通じて自然と触れ合えるスポットが周辺には盛りだくさん!お散歩やジョギング、週末のご家族での遊びに最適です。目の前に広がる開放感とゆとり、暮らしの夢を育む理想の住まいがここにはあります。
周辺環境:下永谷角田公園(下永谷角田公園まで600m)
周辺環境:下永谷角田公園(下永谷角田公園まで600m)
周辺環境:横浜市立永谷小学校(横浜市立永谷小学校まで800m)
周辺環境:横浜市立永谷小学校(横浜市立永谷小学校まで800m)
周辺環境:横浜市立上永谷中学校(横浜市立上永谷中学校まで1700m)
周辺環境:横浜市立上永谷中学校(横浜市立上永谷中学校まで1700m)
周辺環境:安部幼稚園(安部幼稚園まで1300m)
周辺環境:安部幼稚園(安部幼稚園まで1300m)
周辺環境:ことは保育園(ことは保育園まで1600  )
周辺環境:ことは保育園(ことは保育園まで1600 )
周辺環境:川上公園(川上公園まで650m)
周辺環境:川上公園(川上公園まで650m)
周辺環境:朝倉病院(朝倉病院まで800m)
周辺環境:朝倉病院(朝倉病院まで800m)
周辺環境:マルエツ戸塚舞岡店(マルエツ戸塚舞岡店まで1600m)
周辺環境:マルエツ戸塚舞岡店(マルエツ戸塚舞岡店まで1600m)
周辺環境:FUJI芹ケ谷店(FUJI芹ケ谷店まで750m)
周辺環境:FUJI芹ケ谷店(FUJI芹ケ谷店まで750m)

この物件のココがオススメ!

横須賀線「東戸塚」駅利用。長期優良住宅。全室2面採光なので、明るく通風良好なお住まいです。南面ワイドバルコニー付。

こだわりポイント

  • 道路狭い(4メートル未満)
  • プロパンガス
  • 断熱に配慮された建物
  • 浴室換気乾燥暖房機
  • 2沿線利用であんしん通勤
  • 大人の二人暮らし
  • LDKは1階に
  • 2階建て住宅限定
  • LDK20帖以上
  • 広々バルコニー
  • 対面キッチン
  • 小学校10分以内
  • スーパー10分以内
  • コンビニ10分以内
  • 総合病院10分以内
  • 公園10分以内
  • フラット35利用可
  • カースペース2台

お気軽にどうぞ!

資料請求 現地見学 電話でお問い合わせ
0120-046-690

地図

申し訳ありません
こちらは会員限定機能です

会員登録で利用できる6つの便利機能

詳しく見る

お気軽にどうぞ!

資料請求 現地見学 電話でお問い合わせ
0120-046-690

頭金0万円・金利0.495%の場合

ボーナス時(年2回)お支払額

0

この物件の月々のお支払額

159,094

年収に対する返済比率

64

  • ※会員登録し、詳細情報を記入されますと、全ての物件で自動的に金額が表示され、大変便利です。
  • ※まだ会員登録をされていない方は、下記チェック欄をご記入ください。
  • ※上記計算は物件価格5,680万円+諸経費 8%込みの金額による結果となります。
  • ※返済金額はあくまでも目安です。

お客様の条件からシミュレーションするには?

会員登録
マイページから登録

金利

直接入力する

ボーナス払い(年2回)

返済年数

頭金

直接入力する

 万円(半角数字)

年収

 万円(半角数字)

約600m

公園

周辺環境:下永谷角田公園(下永谷角田公園まで600m)

公園

約600m

約800m

小学校

周辺環境:横浜市立永谷小学校(横浜市立永谷小学校まで800m)

小学校

約800m

約1,700m

中学校

周辺環境:横浜市立上永谷中学校(横浜市立上永谷中学校まで1700m)

中学校

約1,700m

約1,300m

幼稚園・保育園

周辺環境:安部幼稚園(安部幼稚園まで1300m)

幼稚園・保育園

約1,300m

約1,600m

幼稚園・保育園

周辺環境:ことは保育園(ことは保育園まで1600 )

幼稚園・保育園

約1,600m

約650m

公園

周辺環境:川上公園(川上公園まで650m)

公園

約650m

約800m

病院

周辺環境:朝倉病院(朝倉病院まで800m)

病院

約800m

約1,600m

スーパー

周辺環境:マルエツ戸塚舞岡店(マルエツ戸塚舞岡店まで1600m)

スーパー

約1,600m

約750m

スーパー

周辺環境:FUJI芹ケ谷店(FUJI芹ケ谷店まで750m)

スーパー

約750m

価格 5,680万円
物件種別 新築一戸建て
間取り 4LDK
所在地 横浜市港南区 下永谷6丁目
交通
  • 横須賀線「東戸塚」駅 徒歩 20 分
  • 横須賀線「東戸塚」駅 バス停「環2下永谷」まで 徒歩 3 分 バス利用 5分
土地面積 115.27㎡
建物面積 104.34㎡
学区 永谷小学校、上永谷中学校
用途地域 準住居
建ぺい率 60%
容積率 160%
地目 宅地
駐車場 有り カースペース
接道 西4m
権利 所有権
私道面積 有 31.54㎡
セットバック 無し
建物構造 木造
建物階数 2階
築年月 2026年05月
入居日 2026年06月
都市計画 市街化区域
取引態様 仲介
物件番号 48331
設備 個別LPG、公営水道、公共下水、駐車場2台以上、緑豊かな住宅地、閑静な住宅地、スーパーが近い(10分以内)、2沿線以上利用可、総合病院徒歩10分以内、小学校徒歩10分以内、コンビニ5分以内、システムキッチン、ガス3口、浄水器、I型キッチン、ユニットバス、追い焚き、浴室乾燥機、ウォシュレット、トイレ2ヶ所、浴室に窓、暖房便座、浴室暖房、バルコニー、ワイドバルコニー、南面バルコニー、2階建、LDK20畳以上、採光3面、全室2面採光、フローリング、クローゼット、収納、床下収納、下駄箱、全居室収納、シャンプドレッサー付き、フラット35Sに対応、モニタ付きインターフォン、複層ガラス、24時間換気システム、建物10年保証
建築確認番号 第R07SHC117944号
特記事項 崖下につき建築制限 不整形地 宅地造成工事規制区域 高度地区 準防火地域 日影制限 敷地内段差 建築基準法第22条による区域 傾斜地含 建物建築・再建築の際、防護壁の設置、高基礎、外壁後退等の対策が必要となる場合有。 崖下につき建築制限:有/不整形地:有/宅地造成工事規制区域:有/高度地区:有/準防火地域:有/日影制限:有/敷地内段差:有/建築基準法第22条による区域 傾斜地含 建物建築・再建築の際、防護壁の設置、高基礎、外壁後退等の対策が必要となる場合有。 /
備考 横須賀線「東戸塚」駅利用。長期優良住宅。全室2面採光なので、明るく通風良好なお住まいです。南面ワイドバルコニー付。

お気軽にどうぞ!

資料請求 現地見学 電話でお問い合わせ
0120-046-690

このエリアでお探しの方へ

横浜市青葉区奈良町 新築一戸建 5380万円 1号棟

小田急線「玉川学園前」駅 徒歩 16 分

田園都市線「青葉台」駅 バス停「奈良北団地折返場」まで 徒歩 4 分 バス利用 24分

横浜市青葉区 奈良町

5,380万円

4LDK

今週末モデルハウス見学会開催中!「鶴ケ峰」駅徒歩8分 新築一戸建て(3) エコジョーズ

相模鉄道線「鶴ヶ峰」駅 徒歩 8 分

相模鉄道線「二俣川」駅 徒歩 25 分

横浜市旭区 鶴ケ峰2丁目

5,380万円

2LDK+2S

今週末モデルハウス見学会開催中!「東戸塚」駅利用 新築一戸建て(1) 閑静な住宅地

横須賀線「東戸塚」駅 徒歩 24 分

湘南新宿宇「保土ヶ谷」駅 バス停「狩場町」まで 徒歩 7 分 バス利用 16分

横浜市戸塚区 平戸2丁目

5,380万円

4LDK

今週末モデルハウス見学会開催中!「上永谷」駅徒歩12分 新築一戸建て 20帖LDK SIC WIC

ブルーライン「上永谷」駅 徒歩 12 分

京浜急行本線「上大岡」駅 バス停「天谷」まで 徒歩 5 分 バス利用 18分

横浜市港南区 野庭町

5,380万円

3LDK

今週末モデルハウス見学会開催中!「桜ケ丘」「瀬谷」駅利用 新築一戸建て(20) カースペース2台

江ノ島線「桜ヶ丘」駅 徒歩 18 分

相模鉄道線「瀬谷」駅 徒歩 26 分

横浜市瀬谷区 北新

5,380万円

4LDK

今週末モデルハウス見学会開催中!「桜ケ丘」「瀬谷」駅利用 新築一戸建て(21) カースペース2台

江ノ島線「桜ヶ丘」駅 徒歩 18 分

相模鉄道線「瀬谷」駅 徒歩 26 分

横浜市瀬谷区 北新

5,380万円

4LDK

横浜市青葉区もみの木台 新築一戸建 5380万円 A棟

田園都市線「あざみ野」駅 バス停「もみの木台」まで 徒歩 3 分 バス利用 7分

小田急線「新百合ヶ丘」駅 バス停「もみの木台」まで 徒歩 3 分 バス利用 19分

横浜市青葉区 もみの木台

5,380万円

2SLDK

値下げしました!「二俣川」駅徒歩15分 新築一戸建て 食洗器付き対面キッチン

相模鉄道線「二俣川」駅 徒歩 15 分

相模鉄道線「鶴ヶ峰」駅 徒歩 20 分

横浜市旭区 四季美台

5,380万円

4LDK

値下げしました!今週末内覧会開催中!「港南台」駅徒歩13分 未入居中古一戸建て(3) 閑静な住宅地

根岸線「港南台」駅 徒歩 13 分

京浜急行本線「上大岡」駅 バス停「日野」まで 徒歩 13 分 バス利用 10分

横浜市港南区 港南台1丁目

5,380万円

2LDK+2S

値下げしました!今週末見学会開催中!「二俣川」駅利用 新築一戸建て(14) カースペース2台 角地

相模鉄道線「二俣川」駅 徒歩 25 分

相模鉄道線「二俣川」駅 バス停「ニュータウン第5」まで 徒歩 4 分 バス利用 15分

横浜市旭区 今宿2丁目

5,380万円

4LDK

値下げしました!建物完成しました!「金沢文庫」駅徒歩5分 新築一戸建て(2) カースペース3台

京浜急行本線「金沢文庫」駅 徒歩 5 分

金沢シーサイドライン「海の公園南口」駅 徒歩 13 分

横浜市金沢区 金沢町

5,380万円

3LDK

今週末モデルハウス見学会開催中!「希望ケ丘」駅徒歩14分 新築一戸建て(B) エコジョーズ

相模鉄道線「希望ヶ丘」駅 徒歩 14 分

いずみ野線「南万騎が原」駅 徒歩 13 分

横浜市旭区 南希望が丘

5,380万円

4LDK

お気軽にどうぞ!

資料請求 現地見学 電話でお問い合わせ
0120-046-690
来店予約