1. トップページ
  2. 川崎市高津区千年 新築一戸建 5280万円 2号棟

川崎市高津区千年 新築一戸建 5280万円 2号棟

価格
5,280万円
物件種別
新築一戸建て
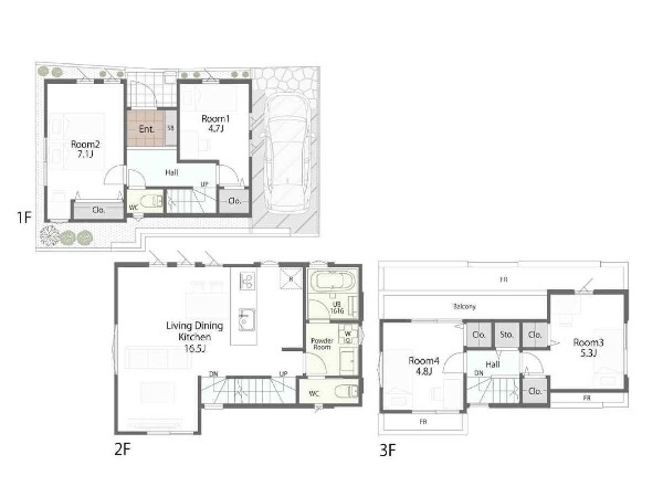
間取り
3SLDK
所在地
川崎市高津区 千年
交通
  • 南武線「武蔵新城」駅 徒歩 17 分
  • 田園都市線「溝の口」駅 バス停「千年北浦」まで 徒歩 3 分 バス利用 12分
土地面積
92.08㎡
建物面積
101.95㎡
  • 前回情報更新日 2025.11.06
  • 次回情報更新予定日 2025.11.20
資料請求 現地見学 電話でお問い合わせ
0120-046-690
外観:スタイリッシュなデザイナーズ住宅!ペニンシュラキッチンで解放感のあるLDKは太陽の日差しが降りそそぎ明るい空間は、家族の憩いの空間に最適です。
外観:スタイリッシュなデザイナーズ住宅!ペニンシュラキッチンで解放感のあるLDKは太陽の日差しが降りそそぎ明るい空間は、家族の憩いの空間に最適です。
間取り
間取り
食洗機 利用者が増えているのはメリットが多いから。時間の節約、手が荒れない、水道代の節約、高温度で洗うので油汚れもしっかり落とせる。まさに理想家電。
食洗機 利用者が増えているのはメリットが多いから。時間の節約、手が荒れない、水道代の節約、高温度で洗うので油汚れもしっかり落とせる。まさに理想家電。
3口以上コンロ 同時並行で調理しやすい3口コンロです。お料理を同時にすすめることができ、料理時間の短縮にもなります。
3口以上コンロ 同時並行で調理しやすい3口コンロです。お料理を同時にすすめることができ、料理時間の短縮にもなります。
TVモニター付インターホン モニター付インターホンが標準仕様です。不安になりがちな防犯面。目で確認できるからあんしんです。
TVモニター付インターホン モニター付インターホンが標準仕様です。不安になりがちな防犯面。目で確認できるからあんしんです。
外観:JR南武線「武蔵新城」駅まで平坦徒歩17分の好立地!大通りから1本入った場所に位置し、静かな日常を送る事が出来る住環境です。
外観:JR南武線「武蔵新城」駅まで平坦徒歩17分の好立地!大通りから1本入った場所に位置し、静かな日常を送る事が出来る住環境です。
外観:前面道路は車の通りも少なく、小さなお子様が道路に飛び出してしまう心配もないので安心です。
外観:前面道路は車の通りも少なく、小さなお子様が道路に飛び出してしまう心配もないので安心です。
浴室乾燥機 お風呂場そのものを乾燥機にしてしまう便利な機能。梅雨時期や花粉の時期に助かる。冬の時期には暖房機能がヒートショックを防ぐ
浴室乾燥機 お風呂場そのものを乾燥機にしてしまう便利な機能。梅雨時期や花粉の時期に助かる。冬の時期には暖房機能がヒートショックを防ぐ
オートバス ワンタッチでお湯張りや保温が可能なフルオートバス。保温機能でいつでも快適に入浴が可能です。
オートバス ワンタッチでお湯張りや保温が可能なフルオートバス。保温機能でいつでも快適に入浴が可能です。
温水洗浄便座 ウォシュレット、暖房便座機能付のトイレです。従来型に比べ節水効果があり、お手入れもしやすい。
温水洗浄便座 ウォシュレット、暖房便座機能付のトイレです。従来型に比べ節水効果があり、お手入れもしやすい。
周辺環境:武蔵新城駅(駅前のスーパーやドラッグストアなどは、深夜まで営業し、会社帰りの買物にとても便利です。)
周辺環境:武蔵新城駅(駅前のスーパーやドラッグストアなどは、深夜まで営業し、会社帰りの買物にとても便利です。)
周辺環境:A-プライス溝の口店(飲食店向けの「プロの食材の店」として毎日の仕入をサポートします。)
周辺環境:A-プライス溝の口店(飲食店向けの「プロの食材の店」として毎日の仕入をサポートします。)
周辺環境:ライフ高津新作店(「安全と安心」「鮮度と品質」「信頼とサービス」にこだわっています。22時までの営業です。)
周辺環境:ライフ高津新作店(「安全と安心」「鮮度と品質」「信頼とサービス」にこだわっています。22時までの営業です。)
周辺環境:溝口温泉 喜楽里(天然温泉施設です。「美人の湯」「美肌の湯」と呼ばれる温泉はじめ多彩なお風呂をご用意しております)
周辺環境:溝口温泉 喜楽里(天然温泉施設です。「美人の湯」「美肌の湯」と呼ばれる温泉はじめ多彩なお風呂をご用意しております)
周辺環境:春日台公園(野球場が併設されている広々とした公園。都市圏にありながら森林浴が楽しめるほど、自然豊かな場所です。)
周辺環境:春日台公園(野球場が併設されている広々とした公園。都市圏にありながら森林浴が楽しめるほど、自然豊かな場所です。)
周辺環境:クリエイトS・D川崎千年店(スーパーやコンビニとともに生活に欠かせないという方も多いドラッグストアは、近所にあると頼もしい限りですね。)
周辺環境:クリエイトS・D川崎千年店(スーパーやコンビニとともに生活に欠かせないという方も多いドラッグストアは、近所にあると頼もしい限りですね。)
周辺環境:若竹幼稚園(評判のよい幼稚園。若竹のようにすくすく育ってほしい願いが込められた園名です。)
周辺環境:若竹幼稚園(評判のよい幼稚園。若竹のようにすくすく育ってほしい願いが込められた園名です。)
周辺環境:橘小学校(学校教育目標はだれにでもやさしい子、よく考えすすんでまなぶ子、あかるくたくましい子)
周辺環境:橘小学校(学校教育目標はだれにでもやさしい子、よく考えすすんでまなぶ子、あかるくたくましい子)
周辺環境:橘中学校(校訓は「向上心」意欲を持って学習し豊かな知識、思いやりの心と、正しい判断力を身に付けよう。)
周辺環境:橘中学校(校訓は「向上心」意欲を持って学習し豊かな知識、思いやりの心と、正しい判断力を身に付けよう。)

この物件のココがオススメ!

武蔵新城駅 徒歩17分の好立地 都内へのアクセスも良く通勤・通学に便利な立地周辺にはお買物施設なども充実

こだわりポイント

  • 道路狭い(4メートル未満)
  • 敷地延長(旗竿地)
  • 建売だけど一味違うこだわり建物
  • カッコイイ系のこだわり建物
  • 食器洗い洗浄乾燥機
  • 浴室換気乾燥暖房機
  • リビングイン階段
  • LDKは2階に
  • LDK18帖以上
  • 対面キッチン
  • 浴室1坪以上
  • 小学校10分以内
  • スーパー10分以内
  • コンビニ10分以内
  • 小児科医院10分以内
  • 保育園10分以内
  • 公園10分以内
  • 都市ガス

お気軽にどうぞ!

資料請求 現地見学 電話でお問い合わせ
0120-046-690

地図

申し訳ありません
こちらは会員限定機能です

会員登録で利用できる6つの便利機能

詳しく見る

お気軽にどうぞ!

資料請求 現地見学 電話でお問い合わせ
0120-046-690

頭金0万円・金利0.495%の場合

ボーナス時(年2回)お支払額

0

この物件の月々のお支払額

147,889

年収に対する返済比率

59

  • ※会員登録し、詳細情報を記入されますと、全ての物件で自動的に金額が表示され、大変便利です。
  • ※まだ会員登録をされていない方は、下記チェック欄をご記入ください。
  • ※上記計算は物件価格5,280万円+諸経費 8%込みの金額による結果となります。
  • ※返済金額はあくまでも目安です。

お客様の条件からシミュレーションするには?

会員登録
マイページから登録

金利

直接入力する

ボーナス払い(年2回)

返済年数

頭金

直接入力する

 万円(半角数字)

年収

 万円(半角数字)

約1,300m

周辺環境:武蔵新城駅(駅前のスーパーやドラッグストアなどは、深夜まで営業し、会社帰りの買物にとても便利です。)

約1,300m

約700m

スーパー

周辺環境:A-プライス溝の口店(飲食店向けの「プロの食材の店」として毎日の仕入をサポートします。)

スーパー

約700m

約1,100m

スーパー

周辺環境:ライフ高津新作店(「安全と安心」「鮮度と品質」「信頼とサービス」にこだわっています。22時までの営業です。)

スーパー

約1,100m

約450m

その他環境写真

周辺環境:溝口温泉 喜楽里(天然温泉施設です。「美人の湯」「美肌の湯」と呼ばれる温泉はじめ多彩なお風呂をご用意しております)

その他環境写真

約450m

約1,200m

公園

周辺環境:春日台公園(野球場が併設されている広々とした公園。都市圏にありながら森林浴が楽しめるほど、自然豊かな場所です。)

公園

約1,200m

約500m

ドラッグストア

周辺環境:クリエイトS・D川崎千年店(スーパーやコンビニとともに生活に欠かせないという方も多いドラッグストアは、近所にあると頼もしい限りですね。)

ドラッグストア

約500m

約550m

幼稚園・保育園

周辺環境:若竹幼稚園(評判のよい幼稚園。若竹のようにすくすく育ってほしい願いが込められた園名です。)

幼稚園・保育園

約550m

約500m

小学校

周辺環境:橘小学校(学校教育目標はだれにでもやさしい子、よく考えすすんでまなぶ子、あかるくたくましい子)

小学校

約500m

約800m

中学校

周辺環境:橘中学校(校訓は「向上心」意欲を持って学習し豊かな知識、思いやりの心と、正しい判断力を身に付けよう。)

中学校

約800m

価格 5,280万円
物件種別 新築一戸建て
間取り 3SLDK
所在地 川崎市高津区 千年
交通
  • 南武線「武蔵新城」駅 徒歩 17 分
  • 田園都市線「溝の口」駅 バス停「千年北浦」まで 徒歩 3 分 バス利用 12分
土地面積 92.08㎡
建物面積 101.95㎡
学区 橘小学校、橘中学校
用途地域 準住居
建ぺい率 60%
容積率 160%
地目 宅地
駐車場 有り カースペース
接道 北東2.9m
権利 所有権
私道面積 有 22.00㎡ 1/2
セットバック 無し
建物構造 木造
建物階数 3階
築年月 2025年05月
入居日 2026年06月
都市計画 市街化区域
取引態様 仲介
物件番号 A1579-2
設備 公営水道、公共下水、駐車場1台、緑豊かな住宅地、閑静な住宅地、都市近郊、地盤調査済、市街地が近い、スーパーが近い(10分以内)、駅まで平坦、2沿線以上利用可、小学校徒歩10分以内、中学校徒歩10分以内、保育施設・幼稚園5分以内、公園5分以内、コンビニ5分以内、システムキッチン、ガス3口、L型キッチン、食器洗い機付き、浄水器、ユニットバス、追い焚き、浴室乾燥機、ウォシュレット、オートバス付き、トイレ2ヶ所、浴室1坪以上、浴室に窓、暖房便座、バルコニー、バルコニー3面、ワイドバルコニー、南面バルコニー、3階建以上、LDK18畳以上、採光3面、南向き、リビング階段、クローゼット、収納、下駄箱、全居室収納、シャンプドレッサー付き、モニタ付きインターフォン、複層ガラス、火災警報器(報知機)、通風良好、陽当り良好、24時間換気システム、建物10年保証
建築確認番号 第25UDI1K建01286号
特記事項 不整形地:有/壁面後退:有/景観法:有/急傾斜地崩壊危険区域:有/高度地区:有/準防火地域:有/日影制限:有/接道と段差:有/敷地面積最低限度:有/高さ限度:有/敷地面積のうち路地状敷地部分約24.5m2含む、間取りSは納戸。 /建蔽率2:50% 容積率2:80% 用途地域2:第一種低層住居
備考 武蔵新城駅 徒歩17分の好立地 都内へのアクセスも良く通勤・通学に便利な立地周辺にはお買物施設なども充実

お気軽にどうぞ!

資料請求 現地見学 電話でお問い合わせ
0120-046-690

このエリアでお探しの方へ

川崎市高津区蟹ケ谷 新築一戸建 4980万円 4号棟

南武線「武蔵中原」駅 徒歩 28 分

東急東横線「元住吉」駅 徒歩 30 分

川崎市高津区 蟹ケ谷

4,980万円

2LDK+2S

川崎市高津区蟹ケ谷 新築一戸建 4980万円 1号棟

南武線「武蔵中原」駅 徒歩 28 分

東急東横線「元住吉」駅 徒歩 30 分

川崎市高津区 蟹ケ谷

4,980万円

2LDK+2S

川崎市高津区北野川 新築一戸建 4980万円 1号棟

南武線「武蔵新城」駅 徒歩 26 分

田園都市線「溝の口」駅 バス停「橘出張所前」まで 徒歩 9 分 バス利用 13分

川崎市高津区 北野川

4,980万円

4LDK

川崎市高津区北野川 新築一戸建 4980万円 1号棟

南武線「武蔵新城」駅 徒歩 27 分

東急大井町線「溝の口」駅 バス停「橘出張所前」まで 徒歩 10 分 バス利用 6分

川崎市高津区 北野川

4,980万円

4LDK

川崎市高津区千年 新築一戸建 5180万円 5号棟

田園都市線「溝の口」駅 バス停「新作八幡下」まで 徒歩 10 分 バス利用 9分

田園都市線「梶が谷」駅 バス停「新作八幡下」まで 徒歩 9 分 バス利用 13分

川崎市高津区 千年

5,180万円

3LDK

川崎市高津区東野川1丁目 新築一戸建 5180万円 No.1

南武線「武蔵新城」駅 バス停「野川」まで 徒歩 6 分 バス利用 12分

田園都市線「鷺沼」駅 バス停「野川くぬぎ坂」まで 徒歩 2 分 バス利用 18分

川崎市高津区 東野川1丁目

5,180万円

2SLDK

川崎市高津区坂戸3丁目 新築一戸建 5280万円

南武線「武蔵新城」駅 徒歩 13 分

田園都市線「溝の口」駅 徒歩 23 分

川崎市高津区 坂戸3丁目

5,280万円

3LDK

川崎市高津区千年 新築一戸建 5380万円 4号棟

田園都市線「溝の口」駅 バス停「新作八幡下」まで 徒歩 10 分 バス利用 9分

田園都市線「梶が谷」駅 バス停「新作八幡下」まで 徒歩 9 分 バス利用 13分

川崎市高津区 千年

5,380万円

3LDK

川崎市高津区千年 新築一戸建 5380万円 3号棟

田園都市線「溝の口」駅 バス停「新作八幡下」まで 徒歩 10 分 バス利用 9分

田園都市線「梶が谷」駅 バス停「新作八幡下」まで 徒歩 9 分 バス利用 13分

川崎市高津区 千年

5,380万円

4LDK

川崎市高津区北見方2丁目 新築一戸建 5390万円 2号棟

田園都市線「二子新地」駅 徒歩 19 分

南武線「武蔵新城」駅 徒歩 23 分

川崎市高津区 北見方2丁目

5,390万円

3SLDK

川崎市高津区千年 新築一戸建 5480万円 1号棟

南武線「武蔵新城」駅 徒歩 17 分

田園都市線「溝の口」駅 バス停「千年北浦」まで 徒歩 3 分 バス利用 12分

川崎市高津区 千年

5,480万円

4LDK

川崎市高津区北見方2丁目 新築一戸建 5580万円 1号棟

田園都市線「二子新地」駅 徒歩 19 分

南武線「武蔵新城」駅 徒歩 23 分

川崎市高津区 北見方2丁目

5,580万円

3SLDK

お気軽にどうぞ!

資料請求 現地見学 電話でお問い合わせ
0120-046-690