1. トップページ
  2. 値下げしました!今週末内覧会開催中!「港南台」駅徒歩13分 未入居中古一戸建て(3) 閑静な住宅地

値下げしました!今週末内覧会開催中!「港南台」駅徒歩13分 未入居中古一戸建て(3) 閑静な住宅地

価格
5,380万円
物件種別
中古一戸建て
間取り
2LDK+2S
所在地
横浜市港南区 港南台1丁目
交通
  • 根岸線「港南台」駅 徒歩 13 分
  • 京浜急行本線「上大岡」駅 バス停「日野」まで 徒歩 13 分 バス利用 10分
土地面積
113.63㎡
建物面積
100.19㎡
  • 前回情報更新日 2026.05.14
  • 次回情報更新予定日 2026.05.28
資料請求 現地見学 電話でお問い合わせ
0120-046-690
外観:四季を通じて自然と触れ合えるスポットが周辺には盛りだくさん。目の前に広がる開放感とゆとり、暮らしの夢を育む理想の住まいがここにはあります。
外観:四季を通じて自然と触れ合えるスポットが周辺には盛りだくさん。目の前に広がる開放感とゆとり、暮らしの夢を育む理想の住まいがここにはあります。
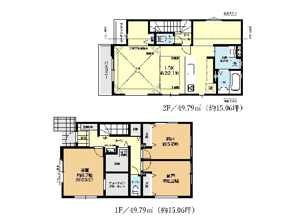
間取り:3号棟間取図
間取り:3号棟間取図
区画図
区画図
【3号棟】ウォークインクローゼットのある住まいで収納上手な生活を実現。衣類だけでなく、箱物や思い出の品もたっぷり収納できます。
【3号棟】ウォークインクローゼットのある住まいで収納上手な生活を実現。衣類だけでなく、箱物や思い出の品もたっぷり収納できます。
外観:快適な緑に恵まれた閑静な住宅地は、毎日のお散歩など、伸び伸びスローライフの夢を叶えてくれます。緑も多く、環境も申し分ないので子育てには最適。
外観:快適な緑に恵まれた閑静な住宅地は、毎日のお散歩など、伸び伸びスローライフの夢を叶えてくれます。緑も多く、環境も申し分ないので子育てには最適。
【3号棟】24時間換気システムを採用した風通しの良い室内は、湿気がこもりづらく快適に過ごせそうです。
【3号棟】24時間換気システムを採用した風通しの良い室内は、湿気がこもりづらく快適に過ごせそうです。
【3号棟】家族と過ごす時間を大切にしたい方にぴったりのゆとりある住空間です。窓からの日差しがリビングの隅々までしっかりと届きます。
【3号棟】家族と過ごす時間を大切にしたい方にぴったりのゆとりある住空間です。窓からの日差しがリビングの隅々までしっかりと届きます。
周辺環境:JR港南台駅(JR港南台駅まで1200m)
周辺環境:JR港南台駅(JR港南台駅まで1200m)
周辺環境:たまや港南台店(たまや港南台店まで1600m)
周辺環境:たまや港南台店(たまや港南台店まで1600m)
周辺環境:横浜市立港南台第一中学校(横浜市立港南台第一中学校まで1100m)
周辺環境:横浜市立港南台第一中学校(横浜市立港南台第一中学校まで1100m)
周辺環境:横浜市立港南台第三小学校(横浜市立港南台第三小学校まで350m)
周辺環境:横浜市立港南台第三小学校(横浜市立港南台第三小学校まで350m)
周辺環境:港南台バーズ(港南台バーズまで1000m)
周辺環境:港南台バーズ(港南台バーズまで1000m)
周辺環境:港南台保育園(港南台保育園まで1000m)
周辺環境:港南台保育園(港南台保育園まで1000m)
周辺環境:済生会横浜市南部病院(済生会横浜市南部病院まで1000m)
周辺環境:済生会横浜市南部病院(済生会横浜市南部病院まで1000m)
周辺環境:四ツ切公園(四ツ切公園まで290m)
周辺環境:四ツ切公園(四ツ切公園まで290m)
周辺環境:春日野幼稚園(春日野幼稚園まで700m)
周辺環境:春日野幼稚園(春日野幼稚園まで700m)

この物件のココがオススメ!

JR根岸線「港南台」駅徒歩13分。ご家族とのコミュニケーションが取りやすいリビングイン階段・対面キッチンのLDK。季節物や大物の収納に心強いWIC・ロフト有。

こだわりポイント

  • 食器洗い洗浄乾燥機
  • 子供の多い街に住む
  • LDKは1階に
  • 2階建て住宅限定
  • リビングイン階段
  • LDK18帖以上
  • 対面キッチン
  • 浴室1坪以上
  • ロフト・小屋裏収納
  • 小学校10分以内
  • 大規模公園10分以内
  • 有料道路インター2キロ以内
  • コンビニ10分以内
  • 総合病院10分以内
  • 幼稚園10分以内
  • 公園10分以内
  • 都市ガス
  • 5棟以上の分譲地
  • 道路広々(5m以上)

お気軽にどうぞ!

資料請求 現地見学 電話でお問い合わせ
0120-046-690

地図

申し訳ありません
こちらは会員限定機能です

会員登録で利用できる6つの便利機能

詳しく見る

お気軽にどうぞ!

資料請求 現地見学 電話でお問い合わせ
0120-046-690

頭金0万円・金利0.495%の場合

ボーナス時(年2回)お支払額

0

この物件の月々のお支払額

150,690

年収に対する返済比率

60

  • ※会員登録し、詳細情報を記入されますと、全ての物件で自動的に金額が表示され、大変便利です。
  • ※まだ会員登録をされていない方は、下記チェック欄をご記入ください。
  • ※上記計算は物件価格5,380万円+諸経費 8%込みの金額による結果となります。
  • ※返済金額はあくまでも目安です。

お客様の条件からシミュレーションするには?

会員登録
マイページから登録

金利

直接入力する

ボーナス払い(年2回)

返済年数

頭金

直接入力する

 万円(半角数字)

年収

 万円(半角数字)

約1,200m

周辺環境:JR港南台駅(JR港南台駅まで1200m)

約1,200m

約1,600m

スーパー

周辺環境:たまや港南台店(たまや港南台店まで1600m)

スーパー

約1,600m

約1,100m

中学校

周辺環境:横浜市立港南台第一中学校(横浜市立港南台第一中学校まで1100m)

中学校

約1,100m

約350m

小学校

周辺環境:横浜市立港南台第三小学校(横浜市立港南台第三小学校まで350m)

小学校

約350m

約1,000m

ショッピングセンター

周辺環境:港南台バーズ(港南台バーズまで1000m)

ショッピングセンター

約1,000m

約1,000m

幼稚園・保育園

周辺環境:港南台保育園(港南台保育園まで1000m)

幼稚園・保育園

約1,000m

約1,000m

病院

周辺環境:済生会横浜市南部病院(済生会横浜市南部病院まで1000m)

病院

約1,000m

約290m

公園

周辺環境:四ツ切公園(四ツ切公園まで290m)

公園

約290m

約700m

幼稚園・保育園

周辺環境:春日野幼稚園(春日野幼稚園まで700m)

幼稚園・保育園

約700m

価格 5,380万円
物件種別 中古一戸建て
間取り 2LDK+2S
所在地 横浜市港南区 港南台1丁目
交通
  • 根岸線「港南台」駅 徒歩 13 分
  • 京浜急行本線「上大岡」駅 バス停「日野」まで 徒歩 13 分 バス利用 10分
土地面積 113.63㎡
建物面積 100.19㎡
学区 港南台第三小学校、港南台第一中学校
用途地域 第一種低層住居専用
建ぺい率 50%
容積率 80%
地目 宅地
駐車場 有り カースペース
接道 南東5.5m
権利 所有権
私道面積 有 136.35㎡ 1/9
セットバック 無し
建物構造 木造
建物階数 2階
築年月 2024年12月
入居日 即時
都市計画 市街化区域
取引態様 仲介
物件番号 44792-3
設備 公営水道、公共下水、駐車場1台、緑豊かな住宅地、閑静な住宅地、開発分譲地内、2沿線以上利用可、総合病院徒歩10分以内、小学校徒歩10分以内、公園5分以内、システムキッチン、カウンタキッチン、食器洗い機付き、浄水器、I型キッチン、ユニットバス、追い焚き、ウォシュレット、トイレ2ヶ所、浴室1坪以上、浴室に窓、暖房便座、バルコニー、南面バルコニー、2階建、ロフト、LDK18畳以上、採光2面、全室南西向き、フローリング、リビング階段、クローゼット、収納、下駄箱、全居室収納、シャンプドレッサー付き、モニタ付きインターフォン、インターフォン、複層ガラス、24時間換気システム、建物10年保証
建築確認番号 第24KAK建確01070号
特記事項 不整形地 壁面後退 宅地造成工事規制区域 高度地区 準防火地域 日影制限 敷地面積最低限度 建物高さ10m以下 建築基準法第22条区域 横浜市建築基準条例第3条による制限有 建物建築・再建築の際、深基礎、基礎杭、擁壁の補修・再構築、外壁後退等の対策が必要となる場合があります 建物建築・再建築の際、防護壁の設置、高基礎、外壁後退等の対策が必要となる場合があります 第二用途地域:第一種住居地域(建ぺい率60%容積率200%)過小宅地 不整形地:有/壁面後退:有/宅地造成工事規制区域:有/高度地区:有/準防火地域:有/日影制限:有/敷地面積最低限度:有/高さ限度:有/建築基準法第22条区域 横浜市建築基準条例第3条による制限有 建物建築・再建築の際、深基礎、基礎杭、擁壁の補修・再構築、外壁後退等の対策が必要となる場合があります 建物建築・再建築の際、防護壁
備考 JR根岸線「港南台」駅徒歩13分。ご家族とのコミュニケーションが取りやすいリビングイン階段・対面キッチンのLDK。季節物や大物の収納に心強いWIC・ロフト有。

お気軽にどうぞ!

資料請求 現地見学 電話でお問い合わせ
0120-046-690

このエリアでお探しの方へ

今週末モデルハウス見学会開催中!「港南台」駅利用 新築一戸建て カースペース5台

根岸線「港南台」駅 バス停「庄戸三丁目南」まで 徒歩 6 分 バス利用 17分

京浜急行本線「金沢八景」駅 バス停「八軒谷戸」まで 徒歩 20 分 バス利用 21分

横浜市栄区 庄戸3丁目

5,080万円

4LDK

値下げしました!今週末内覧会開催中!「港南台」駅徒歩13分 未入居中古一戸建て(4) 閑静な住宅地

根岸線「港南台」駅 徒歩 13 分

京浜急行本線「上大岡」駅 バス停「日野」まで 徒歩 13 分 バス利用 10分

横浜市港南区 港南台1丁目

5,180万円

3SLDK

今週末モデルハウス見学会開催中!「上大岡」駅徒歩11分 新築一戸建て 角地

京浜急行本線「上大岡」駅 徒歩 11 分

ブルーライン「上大岡」駅 徒歩 11 分

横浜市港南区 上大岡東3丁目

5,280万円

4LDK

今週末モデルハウス見学会開催中!「港南台」駅利用 新築一戸建て(A) ルーフバルコニー

根岸線「港南台」駅 徒歩 19 分

京浜急行本線「上大岡」駅 バス停「日野小学校前」まで 徒歩 9 分 バス利用 10分

横浜市港南区 日野中央2丁目

5,280万円

3SLDK

今週末モデルハウス見学会開催中!「上永谷」駅徒歩12分 新築一戸建て 20帖LDK SIC WIC

ブルーライン「上永谷」駅 徒歩 12 分

京浜急行本線「上大岡」駅 バス停「天谷」まで 徒歩 5 分 バス利用 18分

横浜市港南区 野庭町

5,380万円

3LDK

値下げしました! 「上永谷」駅徒歩13分 新築一戸建て(2)パントリー・SIC完備

ブルーライン「上永谷」駅 徒歩 13 分

京浜急行本線「上大岡」駅 バス停「月見ケ丘団地前」まで 徒歩 6 分 バス利用 7分

横浜市港南区 上永谷1丁目

5,390万円

4LDK

建物完成しました! 今週末内覧会開催中!「東戸塚」駅利用 新築一戸建て 長期優良住宅

横須賀線「東戸塚」駅 バス停「澁谷台」まで 徒歩 3 分 バス利用 11分

京浜急行本線「上大岡」駅 バス停「せりぎんタウン」まで 徒歩 5 分 バス利用 16分

横浜市港南区 芹が谷4丁目

5,480万円

4LDK

今週末モデルハウス見学会開催中!「戸塚」駅利用 新築一戸建て(A) 全室2面採光

東海道本線「戸塚」駅 バス停「港南プラザ」まで 徒歩 5 分 バス利用 12分

根岸線「港南台」駅 バス停「すずかけ通」まで 徒歩 10 分 バス利用 12分

横浜市港南区 日限山3丁目

5,490万円

4LDK

値下げしました! 「上永谷」駅徒歩13分 新築一戸建て(1)パントリー完備

ブルーライン「上永谷」駅 徒歩 13 分

京浜急行本線「上大岡」駅 バス停「月見ケ丘団地前」まで 徒歩 6 分 バス利用 7分

横浜市港南区 上永谷1丁目

5,490万円

4LDK

今週末モデルハウス見学会開催中!「港南台」駅利用 新築一戸建て 南向きバルコニー カースペース3台

根岸線「港南台」駅 バス停「庄戸1丁目」まで 徒歩 7 分 バス利用 22分

京浜急行本線「金沢八景」駅 バス停「庄戸」まで 徒歩 10 分 バス利用 18分

横浜市栄区 庄戸2丁目

5,590万円

4LDK

今週末モデルハウス見学会開催中!「港南台」駅利用 新築一戸建て カースペース3台

根岸線「港南台」駅 バス停「庄戸3丁目南」まで 徒歩 5 分 バス利用 22分

東海道本線「大船」駅 バス停「みどりが丘南」まで 徒歩 18 分 バス利用 22分

横浜市栄区 庄戸3丁目

5,680万円

4LDK

今週末モデルハウス見学会開催中!「上永谷」駅徒歩15分 新築一戸建て エコジョーズ

ブルーライン「上永谷」駅 徒歩 15 分

ブルーライン「港南中央」駅 徒歩 19 分

横浜市港南区 日野4丁目

5,180万円

1LDK+2S

お気軽にどうぞ!

資料請求 現地見学 電話でお問い合わせ
0120-046-690
来店予約