1. トップページ
  2. 今週末モデルハウス見学会開催中!「上大岡」駅徒歩11分 新築一戸建て 角地

今週末モデルハウス見学会開催中!「上大岡」駅徒歩11分 新築一戸建て 角地

価格
5,280万円
物件種別
新築一戸建て
間取り
4LDK
所在地
横浜市港南区 上大岡東3丁目
交通
  • 京浜急行本線「上大岡」駅 徒歩 11 分
  • ブルーライン「上大岡」駅 徒歩 11 分
土地面積
79.84㎡
建物面積
81.20㎡
  • 前回情報更新日 2026.03.27
  • 次回情報更新予定日 2026.04.10
資料請求 現地見学 電話でお問い合わせ
0120-046-690
外観:日当たりが良く開放感のある角地です。 2方向から光や風を取り込める、明るく快適な住まいが実現しました!(本画像は外構一部をCGで作成しております。)
外観:日当たりが良く開放感のある角地です。 2方向から光や風を取り込める、明るく快適な住まいが実現しました!(本画像は外構一部をCGで作成しております。)
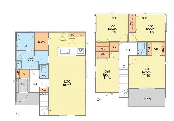
間取図
間取図
区画図
区画図
家族と過ごす時間を大切にしたい方にぴったりのゆとりある住空間です。(本画像はCGで作成しており、実際に現地に家具はおかれておりません。また価格に家具は含まれておりません。)
家族と過ごす時間を大切にしたい方にぴったりのゆとりある住空間です。(本画像はCGで作成しており、実際に現地に家具はおかれておりません。また価格に家具は含まれておりません。)
外観:落ち着きある住宅街、一種低層住居専用地域内に位置しています。日当りを大きく遮られることもありません。
外観:落ち着きある住宅街、一種低層住居専用地域内に位置しています。日当りを大きく遮られることもありません。
リビングを見渡せる対面式キッチンは、ご家族との会話もできて毎日のお料理が楽しくなります。リビングで遊ぶお子様にも目が届くので安心して家事が出来ますね。
リビングを見渡せる対面式キッチンは、ご家族との会話もできて毎日のお料理が楽しくなります。リビングで遊ぶお子様にも目が届くので安心して家事が出来ますね。
外観:玄関は家の中に入る時一番最初に目に付く場所だからこだわりたいですよね!明るい雰囲気の色目でお部屋の雰囲気をそのまま表しているようです。
外観:玄関は家の中に入る時一番最初に目に付く場所だからこだわりたいですよね!明るい雰囲気の色目でお部屋の雰囲気をそのまま表しているようです。
背面にカップボードが備え付けされています。システムキッチンと一体感あるカラーで見た目もgood。たまにしか使わない調理家電の収納に重宝します。
背面にカップボードが備え付けされています。システムキッチンと一体感あるカラーで見た目もgood。たまにしか使わない調理家電の収納に重宝します。
家族と過ごす時間を大切にしたい方にぴったりのゆとりある住空間です。窓からの日差しがリビングの隅々までしっかりと届きます。
家族と過ごす時間を大切にしたい方にぴったりのゆとりある住空間です。窓からの日差しがリビングの隅々までしっかりと届きます。
「どういう家具を置こうかな」とわくわくする。自分好みのこだわりのお部屋にしてオンリーワンの部屋でゆったりと寛ごう。
「どういう家具を置こうかな」とわくわくする。自分好みのこだわりのお部屋にしてオンリーワンの部屋でゆったりと寛ごう。
「どういう家具を置こうかな」とわくわくする。自分好みのこだわりのお部屋にしてオンリーワンの部屋でゆったりと寛ごう。
「どういう家具を置こうかな」とわくわくする。自分好みのこだわりのお部屋にしてオンリーワンの部屋でゆったりと寛ごう。
「どういう家具を置こうかな」とわくわくする。自分好みのこだわりのお部屋にしてオンリーワンの部屋でゆったりと寛ごう。
「どういう家具を置こうかな」とわくわくする。自分好みのこだわりのお部屋にしてオンリーワンの部屋でゆったりと寛ごう。
勾配天井を生かしたロフトスペースを完備。季節用品や捨てられないご家族の思い出もしっかりと収納できます。居室空間を邪魔しないスペースなので、多趣味で荷物の多いご家族にピッタリ。
勾配天井を生かしたロフトスペースを完備。季節用品や捨てられないご家族の思い出もしっかりと収納できます。居室空間を邪魔しないスペースなので、多趣味で荷物の多いご家族にピッタリ。
ユニットバスはゆったりとくつろげる1坪タイプ。足までしっかりと伸ばせる浴槽は、心身ともにしっかりと疲れを癒してくれます。お子様と一緒の入浴でも充分な広さです。
ユニットバスはゆったりとくつろげる1坪タイプ。足までしっかりと伸ばせる浴槽は、心身ともにしっかりと疲れを癒してくれます。お子様と一緒の入浴でも充分な広さです。
鏡の裏に収納棚を確保した三面鏡を採用。化粧品や歯ブラシなどを機能的に収納。便利な床下収納付き。
鏡の裏に収納棚を確保した三面鏡を採用。化粧品や歯ブラシなどを機能的に収納。便利な床下収納付き。
洗浄機能付き便座を標準装備。便座保温機能もあるので寒い季節も安心。
洗浄機能付き便座を標準装備。便座保温機能もあるので寒い季節も安心。
周辺環境:オーケー上大岡店(オーケー上大岡店まで1200m)
周辺環境:オーケー上大岡店(オーケー上大岡店まで1200m)
周辺環境:安部幼稚園(安部幼稚園まで4200m)
周辺環境:安部幼稚園(安部幼稚園まで4200m)
周辺環境:横浜市上大岡東保育園(横浜市上大岡東保育園まで700m)
周辺環境:横浜市上大岡東保育園(横浜市上大岡東保育園まで700m)
周辺環境:横浜市立藤の木小学校(横浜市立藤の木小学校まで600m)
周辺環境:横浜市立藤の木小学校(横浜市立藤の木小学校まで600m)
周辺環境:横浜市立藤の木中学校(横浜市立藤の木中学校まで260m)
周辺環境:横浜市立藤の木中学校(横浜市立藤の木中学校まで260m)
周辺環境:久良岐公園(久良岐公園まで30m)
周辺環境:久良岐公園(久良岐公園まで30m)
周辺環境:上大岡こどもクリニック(上大岡こどもクリニックまで1200m)
周辺環境:上大岡こどもクリニック(上大岡こどもクリニックまで1200m)
周辺環境:食品館あおば岡村店(食品館あおば岡村店まで700m)
周辺環境:食品館あおば岡村店(食品館あおば岡村店まで700m)
周辺環境:大岡四丁目第二公園(大岡四丁目第二公園まで30m)
周辺環境:大岡四丁目第二公園(大岡四丁目第二公園まで30m)

この物件のココがオススメ!

複数路線が乗り入れる「上大岡」駅から徒歩11分。角地の為、開放感ある立地。全室2面採光で明るく、通風良好。食洗機・浴室暖房乾燥機他設備充実。

こだわりポイント

  • 省エネに配慮された建物
  • 食器洗い洗浄乾燥機
  • 浴室換気乾燥暖房機
  • 2沿線利用であんしん通勤
  • 大人の二人暮らし
  • おしゃれイメージな街に住む
  • LDKは1階に
  • 2階建て住宅限定
  • LDK15帖以上
  • 対面キッチン
  • ロフト・小屋裏収納
  • 小学校10分以内
  • 大規模公園10分以内
  • スーパー10分以内
  • 保育園10分以内
  • 公園10分以内
  • 都市ガス
  • フラット35利用可
  • 角地限定
  • 道路広々(5m以上)

お気軽にどうぞ!

資料請求 現地見学 電話でお問い合わせ
0120-046-690

地図

申し訳ありません
こちらは会員限定機能です

会員登録で利用できる6つの便利機能

詳しく見る

お気軽にどうぞ!

資料請求 現地見学 電話でお問い合わせ
0120-046-690

頭金0万円・金利0.495%の場合

ボーナス時(年2回)お支払額

0

この物件の月々のお支払額

147,889

年収に対する返済比率

59

  • ※会員登録し、詳細情報を記入されますと、全ての物件で自動的に金額が表示され、大変便利です。
  • ※まだ会員登録をされていない方は、下記チェック欄をご記入ください。
  • ※上記計算は物件価格5,280万円+諸経費 8%込みの金額による結果となります。
  • ※返済金額はあくまでも目安です。

お客様の条件からシミュレーションするには?

会員登録
マイページから登録

金利

直接入力する

ボーナス払い(年2回)

返済年数

頭金

直接入力する

 万円(半角数字)

年収

 万円(半角数字)

約1,200m

スーパー

周辺環境:オーケー上大岡店(オーケー上大岡店まで1200m)

スーパー

約1,200m

約4,200m

幼稚園・保育園

周辺環境:安部幼稚園(安部幼稚園まで4200m)

幼稚園・保育園

約4,200m

約700m

幼稚園・保育園

周辺環境:横浜市上大岡東保育園(横浜市上大岡東保育園まで700m)

幼稚園・保育園

約700m

約600m

小学校

周辺環境:横浜市立藤の木小学校(横浜市立藤の木小学校まで600m)

小学校

約600m

約260m

中学校

周辺環境:横浜市立藤の木中学校(横浜市立藤の木中学校まで260m)

中学校

約260m

約30m

公園

周辺環境:久良岐公園(久良岐公園まで30m)

公園

約30m

約1,200m

病院

周辺環境:上大岡こどもクリニック(上大岡こどもクリニックまで1200m)

病院

約1,200m

約700m

スーパー

周辺環境:食品館あおば岡村店(食品館あおば岡村店まで700m)

スーパー

約700m

約30m

公園

周辺環境:大岡四丁目第二公園(大岡四丁目第二公園まで30m)

公園

約30m

価格 5,280万円
物件種別 新築一戸建て
間取り 4LDK
所在地 横浜市港南区 上大岡東3丁目
交通
  • 京浜急行本線「上大岡」駅 徒歩 11 分
  • ブルーライン「上大岡」駅 徒歩 11 分
土地面積 79.84㎡
建物面積 81.20㎡
学区 藤の木小学校、藤の木中学校
用途地域 第一種低層住居専用
建ぺい率 50%
容積率 100%
地目 原野
駐車場 有り カースペース
接道 北9.5m、西4.6m
権利 所有権
私道面積 無し
セットバック 無し
建物構造 木造
建物階数 2階
築年月 2026年04月
入居日 2026年05月
都市計画 市街化区域
取引態様 仲介
物件番号 48560
設備 公営水道、公共下水、駐車場1台、緑豊かな住宅地、閑静な住宅地、角地、前道6m以上、スーパーが近い(10分以内)、2沿線以上利用可、小学校徒歩10分以内、中学校徒歩10分以内、システムキッチン、ガス3口、食器洗い機付き、I型キッチン、ユニットバス、浴室乾燥機、ウォシュレット、トイレ2ヶ所、浴室に窓、バルコニー、南面バルコニー、2階建、ロフト、LDK15畳以上、全室2面採光、フローリング、クローゼット、収納、下駄箱、全居室収納、シャンプドレッサー付き、モニタ付きインターフォン、24時間換気システム、建物10年保証
建築確認番号 第25KAK建確01728号
特記事項 宅地造成工事規制区域 高度地区 準防火地域 日影制限 敷地面積最低限度 建物高さ10m以下 建築基準法第22条区域 過少宅地 横浜市建築基準条例第3条による制限有 ※建物建築・再建築の際、深基礎、基礎杭、擁壁の補修・再構築、外壁後退等の対策が必要となる場合があります 建物建築・再建築の際、防護壁の設置、高基礎、外壁後退等の対策が必要となる場合があります 建物面積に防災備蓄倉庫1.51平米含 宅地造成工事規制区域:有/高度地区:有/準防火地域:有/日影制限:有/敷地面積最低限度:有/高さ限度:有/建築基準法第22条区域 過少宅地 横浜市建築基準条例第3条による制限有 ※建物建築・再建築の際、深基礎、基礎杭、擁壁の補修・再構築、外壁後退等の対策が必要となる場合があります 建物建築・再建築の際、防護壁の設置、高基礎、外壁後退等の対策が必要となる場合がありま
備考 複数路線が乗り入れる「上大岡」駅から徒歩11分。角地の為、開放感ある立地。全室2面採光で明るく、通風良好。食洗機・浴室暖房乾燥機他設備充実。

お気軽にどうぞ!

資料請求 現地見学 電話でお問い合わせ
0120-046-690

このエリアでお探しの方へ

今週末モデルハウス見学会開催中!京急・BL「上大岡」駅利用 新築一戸建て(1) ルーフバルコニー

京浜急行本線「上大岡」駅 徒歩 20 分

横須賀線「東戸塚」駅 バス停「水道橋下」まで 徒歩 3 分 バス利用 16分

横浜市南区 別所5丁目

4,980万円

3SLDK

値下げしました!「上永谷」駅徒歩8分 新築一戸建て(2) WIC・パントリー完備

ブルーライン「上永谷」駅 徒歩 8 分

京浜急行本線「上大岡」駅 バス停「丸山台」まで 徒歩 4 分 バス利用 20分

横浜市港南区 丸山台2丁目

4,990万円

3SLDK

値下げしました! 「根岸」駅利用 新築一戸建て(2) 床暖房 エコジョーズ

根岸線「根岸」駅 徒歩 23 分

京浜急行本線「上大岡」駅 バス停「古泉」まで 徒歩 1 分 バス利用 16分

横浜市磯子区 岡村1丁目

4,999万円

1LDK+2S

値下げしました!今週末内覧会開催中!「港南台」駅徒歩13分 未入居中古一戸建て(4) 閑静な住宅地

根岸線「港南台」駅 徒歩 13 分

京浜急行本線「上大岡」駅 バス停「日野」まで 徒歩 13 分 バス利用 10分

横浜市港南区 港南台1丁目

5,180万円

3SLDK

値下げしました!今週末内覧会開催中!「港南台」駅徒歩13分 未入居中古一戸建て(3) 閑静な住宅地

根岸線「港南台」駅 徒歩 13 分

京浜急行本線「上大岡」駅 バス停「日野」まで 徒歩 13 分 バス利用 10分

横浜市港南区 港南台1丁目

5,380万円

2LDK+2S

今週末モデルハウス見学会開催中!「上永谷」駅徒歩12分 新築一戸建て 20帖LDK SIC WIC

ブルーライン「上永谷」駅 徒歩 12 分

京浜急行本線「上大岡」駅 バス停「天谷」まで 徒歩 5 分 バス利用 18分

横浜市港南区 野庭町

5,380万円

3LDK

値下げしました! 「上永谷」駅徒歩13分 新築一戸建て(2)パントリー・SIC完備

ブルーライン「上永谷」駅 徒歩 13 分

京浜急行本線「上大岡」駅 バス停「月見ケ丘団地前」まで 徒歩 6 分 バス利用 7分

横浜市港南区 上永谷1丁目

5,390万円

4LDK

今週末モデルハウス見学会開催中!「東戸塚」駅利用 新築一戸建て 長期優良住宅

横須賀線「東戸塚」駅 バス停「澁谷台」まで 徒歩 3 分 バス利用 11分

京浜急行本線「上大岡」駅 バス停「せりぎんタウン」まで 徒歩 5 分 バス利用 16分

横浜市港南区 芹が谷4丁目

5,480万円

4LDK

値下げしました! 「上永谷」駅徒歩13分 新築一戸建て(1)パントリー完備

ブルーライン「上永谷」駅 徒歩 13 分

京浜急行本線「上大岡」駅 バス停「月見ケ丘団地前」まで 徒歩 6 分 バス利用 7分

横浜市港南区 上永谷1丁目

5,490万円

4LDK

今週末モデルハウス見学会開催中!「上大岡」駅利用 新築一戸建て SIC・WIC完備

京浜急行本線「上大岡」駅 徒歩 19 分

ブルーライン「上大岡」駅 徒歩 19 分

横浜市港南区 大久保3丁目

5,490万円

4LDK

今週末モデルハウス見学会開催中!「洋光台」駅利用 新築一戸建て 角地

根岸線「洋光台」駅 徒歩 19 分

ブルーライン「港南中央」駅 徒歩 21 分

横浜市港南区 笹下6丁目

4,980万円

4LDK

今週末モデルハウス見学会開催中!「戸塚」駅利用 新築一戸建て(A) 全室2面採光

東海道本線「戸塚」駅 バス停「港南プラザ」まで 徒歩 5 分 バス利用 12分

根岸線「港南台」駅 バス停「すずかけ通」まで 徒歩 10 分 バス利用 12分

横浜市港南区 日限山3丁目

5,490万円

4LDK

お気軽にどうぞ!

資料請求 現地見学 電話でお問い合わせ
0120-046-690
来店予約