1. トップページ
  2. 今週末モデルハウス見学会開催中!「辻堂」駅利用 新築一戸建て(2)

今週末モデルハウス見学会開催中!「辻堂」駅利用 新築一戸建て(2)

価格
6,599万円
物件種別
新築一戸建て
間取り
3LDK
所在地
藤沢市 辻堂太平台1丁目
交通
  • 東海道本線「辻堂」駅 徒歩 24 分
  • 江ノ島線「鵠沼海岸」駅 徒歩 22 分
土地面積
115.56㎡
建物面積
93.94㎡
  • 前回情報更新日 2026.04.27
  • 次回情報更新予定日 2026.05.11
資料請求 現地見学 電話でお問い合わせ
0120-046-690
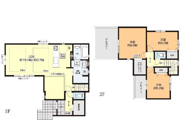
間取り
間取り
区画図
区画図

この物件のココがオススメ!

東海道線「辻堂」駅利用。緑豊かで、閑静な住環境。カースペース並列2台なので、ご来客時も心強いです。全室2面採光なので、明るく通風良好なお住まいです。空気の乾燥が少なく、ホコリも立ちにくい床暖房。環境性能・省エネ性能に優れたガス給湯器ecoジョーズ。食洗器・浴室乾燥・全室ペアガラス他設備充実。

こだわりポイント

  • 崖下・崖上
  • ごみ置き場隣接
  • 省エネに配慮された建物
  • 床暖房
  • 食器洗い洗浄乾燥機
  • 浴室換気乾燥暖房機
  • LDKは1階に
  • ウォークインクローゼット
  • リビングイン階段
  • LDK20帖以上
  • 対面キッチン
  • 浴室1坪以上
  • 小学校10分以内
  • 大規模公園10分以内
  • 大型商業施設15分以内
  • スーパー10分以内
  • コンビニ10分以内
  • 保育園10分以内
  • 幼稚園10分以内
  • 公園10分以内
  • 都市ガス
  • フラット35利用可
  • カースペース2台
  • 整形地

お気軽にどうぞ!

資料請求 現地見学 電話でお問い合わせ
0120-046-690

地図

申し訳ありません
こちらは会員限定機能です

会員登録で利用できる6つの便利機能

詳しく見る

お気軽にどうぞ!

資料請求 現地見学 電話でお問い合わせ
0120-046-690

頭金0万円・金利0.495%の場合

ボーナス時(年2回)お支払額

0

この物件の月々のお支払額

184,823

年収に対する返済比率

74

  • ※会員登録し、詳細情報を記入されますと、全ての物件で自動的に金額が表示され、大変便利です。
  • ※まだ会員登録をされていない方は、下記チェック欄をご記入ください。
  • ※上記計算は物件価格6,599万円+諸経費 8%込みの金額による結果となります。
  • ※返済金額はあくまでも目安です。

お客様の条件からシミュレーションするには?

会員登録
マイページから登録

金利

直接入力する

ボーナス払い(年2回)

返済年数

頭金

直接入力する

 万円(半角数字)

年収

 万円(半角数字)
価格 6,599万円
物件種別 新築一戸建て
間取り 3LDK
所在地 藤沢市 辻堂太平台1丁目
交通
  • 東海道本線「辻堂」駅 徒歩 24 分
  • 江ノ島線「鵠沼海岸」駅 徒歩 22 分
土地面積 115.56㎡
建物面積 93.94㎡
学区 辻堂小学校、湘洋中学校
用途地域 第一種低層住居専用
建ぺい率 50%
容積率 80%
地目 宅地
駐車場 有り カースペース
接道 北西4.5m
権利 所有権
私道面積 無し
セットバック 無し
建物構造 木造
建物階数 2階
築年月 2026年06月
入居日 2026年07月
都市計画 市街化区域
取引態様 仲介
物件番号 S01025-2
設備 公営水道、公共下水、省エネルギー対策、フラット35・S適合証明書、BELS/省エネ基準適合認定書あり、駐車場2台以上、緑豊かな住宅地、閑静な住宅地、海まで2km以内、スーパーが近い(10分以内)、小学校徒歩10分以内、公園5分以内、システムキッチン、ガス3口、食器洗い機付き、浄水器、I型キッチン、ユニットバス、追い焚き、浴室乾燥機、ウォシュレット、トイレ2ヶ所、浴室1坪以上、浴室に窓、暖房便座、浴室暖房、バルコニー2面、2階建、LDK20畳以上、省エネ給湯器、採光2面、全室2面採光、フローリング、全室フローリング、リビング階段、クローゼット、収納、床下収納、下駄箱、全居室収納、シャンプドレッサー付き、フラット35Sに対応、全居室複層ガラスか複層サッシ、24時間換気システム、建物10年保証
建築確認番号 第25UDI1W建12383号
特記事項 崖下につき建築制限:有 崖上につき建築制限:有 景観法:有 宅地造成工事規制区域:有 日影制限:有 高さ限度:有 その他制限事項:藤沢市緑の保全及緑化の推進に関する条例 建築基準法第22条区域 建物面積に備蓄倉庫部分面積約1.87平米含 建物建築・再建築の際、深基礎、基礎杭、高基礎、防護壁の設置、擁壁の補修・構築・再構築、外壁後退等の対策が必要となる場合があります フラット35S利用の場合、適合証明書取得費用がかかります(8.69万円) 崖下につき建築制限:有/崖上につき建築制限:有/景観法:有/宅地造成工事規制区域:有/日影制限:有/高さ限度:有/藤沢市緑の保全及緑化の推進に関する条例 建築基準法第22条区域 建物面積に備蓄倉庫部分面積約1.87平米含 建物建築・再建築の際、深基礎、基礎杭、高基礎、防護壁の設置、擁壁の補修・構築・再構築、外壁後退等
備考 東海道線「辻堂」駅利用。緑豊かで、閑静な住環境。カースペース並列2台なので、ご来客時も心強いです。全室2面採光なので、明るく通風良好なお住まいです。空気の乾燥が少なく、ホコリも立ちにくい床暖房。環境性能・省エネ性能に優れたガス給湯器ecoジョーズ。食洗器・浴室乾燥・全室ペアガラス他設備充実。

お気軽にどうぞ!

資料請求 現地見学 電話でお問い合わせ
0120-046-690

このエリアでお探しの方へ

今週末モデルハウス見学会開催中!「辻堂」駅利用 新築一戸建て(1)

東海道本線「辻堂」駅 徒歩 24 分

江ノ島線「鵠沼海岸」駅 徒歩 23 分

藤沢市 辻堂太平台1丁目

6,399万円

1LDK+2S

今週末モデルハウス見学会開催中!「辻堂」駅利用 新築一戸建て(3)

東海道本線「辻堂」駅 バス停「辻堂東海岸」まで 徒歩 7 分 バス利用 5分

江ノ島線「鵠沼海岸」駅 徒歩 20 分

藤沢市 辻堂東海岸1丁目

6,480万円

2SLDK

完成しました!今週末、建物見学会開催中!「鵠沼海岸」駅徒歩9分 新築一戸建て(1)

江ノ島線「鵠沼海岸」駅 徒歩 9 分

江ノ島電鉄線「鵠沼」駅 徒歩 10 分

藤沢市 鵠沼松が岡3丁目

6,599万円

3LDK

今週末モデルハウス見学会開催中!「鵠沼海岸」駅利用 新築一戸建て(1)

江ノ島線「鵠沼海岸」駅 徒歩 23 分

東海道本線「辻堂」駅 徒歩 29 分

藤沢市 辻堂東海岸3丁目

6,680万円

3LDK

今週末モデルハウス見学会開催中!「鵠沼海岸」駅利用 新築一戸建て(2)

江ノ島線「鵠沼海岸」駅 徒歩 23 分

東海道本線「辻堂」駅 徒歩 29 分

藤沢市 辻堂東海岸3丁目

6,680万円

2SLDK

今週末モデルハウス見学会開催中!「辻堂」駅利用 新築一戸建て(2)

東海道本線「辻堂」駅 徒歩 24 分

江ノ島線「鵠沼海岸」駅 徒歩 23 分

藤沢市 辻堂太平台1丁目

6,799万円

3LDK

建物完成しました!今週末内覧会開催中!「湘南海岸公園」駅徒歩4分 新築一戸建て(2)

江ノ島電鉄線「湘南海岸公園」駅 徒歩 4 分

江ノ島線「片瀬江ノ島」駅 徒歩 9 分

藤沢市 片瀬海岸3丁目

6,399万円

2LDK+2S

今週末モデルハウス見学会開催中!「湘南台」駅徒歩8分 新築一戸建て(1) SIC

江ノ島線「湘南台」駅 徒歩 8 分

ブルーライン「下飯田」駅 徒歩 18 分

藤沢市 湘南台6丁目

6,480万円

2SLDK

建物完成しました!今週末内覧会開催中!「大船」駅利用 新築一戸建て(6)

東海道本線「大船」駅 バス停「渡内」まで 徒歩 2 分 バス利用 13分

東海道本線「藤沢」駅 バス停「渡内」まで 徒歩 2 分 バス利用 14分

藤沢市 並木台1丁目

6,490万円

4LDK

建物完成しました!今週末内覧会開催中!「藤沢本町」駅徒歩18分 新築一戸建て完成(1)

江ノ島線「藤沢本町」駅 徒歩 18 分

東海道本線「藤沢」駅 バス停「NOK前」まで 徒歩 6 分 バス利用 8分

藤沢市 羽鳥5丁目

6,799万円

3SLDK

今週末モデルハウス見学会開催中!「鵠沼海岸」駅徒歩15分 新築一戸建て(4)

江ノ島線「鵠沼海岸」駅 徒歩 15 分

東海道本線「藤沢」駅 バス停「鵠沼運動公園前」まで 徒歩 6 分 バス利用 9分

藤沢市 辻堂太平台1丁目

5,590万円

4LDK

完成しました!今週末、建物見学会開催中!「鵠沼海岸」駅徒徒歩9分 新築一戸建て(2)

江ノ島線「鵠沼海岸」駅 徒歩 9 分

江ノ島電鉄線「鵠沼」駅 徒歩 10 分

藤沢市 鵠沼松が岡3丁目

5,899万円

3LDK

お気軽にどうぞ!

資料請求 現地見学 電話でお問い合わせ
0120-046-690
来店予約