1. トップページ
  2. 建物完成しました!今週末内覧会開催中!「藤沢本町」駅徒歩18分 新築一戸建て完成(1)

建物完成しました!今週末内覧会開催中!「藤沢本町」駅徒歩18分 新築一戸建て完成(1)

価格
6,599万円
物件種別
新築一戸建て
間取り
3SLDK
所在地
藤沢市 羽鳥5丁目
交通
  • 江ノ島線「藤沢本町」駅 徒歩 18 分
  • 東海道本線「藤沢」駅 バス停「NOK前」まで 徒歩 6 分 バス利用 8分
土地面積
134.23㎡
建物面積
107.02㎡
  • 前回情報更新日 2026.05.01
  • 次回情報更新予定日 2026.05.15
資料請求 現地見学 電話でお問い合わせ
0120-046-690
外観:目の前に広がる開放感とゆとり、暮らしの夢を育む理想の住まいがここにはあります。
外観:目の前に広がる開放感とゆとり、暮らしの夢を育む理想の住まいがここにはあります。
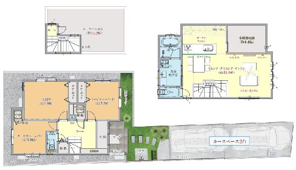
間取り
間取り
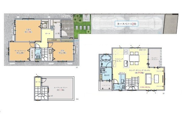
区画図
区画図
2階部分の窓から1階へと光を取り入れられる吹抜があり、明るく開放的な空間になっています。
2階部分の窓から1階へと光を取り入れられる吹抜があり、明るく開放的な空間になっています。

この物件のココがオススメ!

小田急江ノ島線「藤沢本町」駅徒歩18分。緑豊かで閑静な住環境。日差しが取り込みやすくプライバシーに配慮した2階リビング。LDには空気の乾燥が少なく足元から暖かい床暖房。

こだわりポイント

  • 崖下・崖上
  • 床暖房
  • 食器洗い洗浄乾燥機
  • 浴室換気乾燥暖房機
  • 大人の二人暮らし
  • 自然を感じる暮らし
  • ウォークインクローゼット
  • LDKは2階に
  • LDK20帖以上
  • 吹き抜け有り
  • 対面キッチン
  • 浴室1坪以上
  • 小学校10分以内
  • 大型商業施設15分以内
  • スーパー10分以内
  • コンビニ10分以内
  • 保育園10分以内
  • 幼稚園10分以内
  • 公園10分以内
  • 都市ガス
  • カースペース2台
  • 低層住居専用地域

お気軽にどうぞ!

資料請求 現地見学 電話でお問い合わせ
0120-046-690

地図

申し訳ありません
こちらは会員限定機能です

会員登録で利用できる6つの便利機能

詳しく見る

お気軽にどうぞ!

資料請求 現地見学 電話でお問い合わせ
0120-046-690

頭金0万円・金利0.495%の場合

ボーナス時(年2回)お支払額

0

この物件の月々のお支払額

184,823

年収に対する返済比率

74

  • ※会員登録し、詳細情報を記入されますと、全ての物件で自動的に金額が表示され、大変便利です。
  • ※まだ会員登録をされていない方は、下記チェック欄をご記入ください。
  • ※上記計算は物件価格6,599万円+諸経費 8%込みの金額による結果となります。
  • ※返済金額はあくまでも目安です。

お客様の条件からシミュレーションするには?

会員登録
マイページから登録

金利

直接入力する

ボーナス払い(年2回)

返済年数

頭金

直接入力する

 万円(半角数字)

年収

 万円(半角数字)
価格 6,599万円
物件種別 新築一戸建て
間取り 3SLDK
所在地 藤沢市 羽鳥5丁目
交通
  • 江ノ島線「藤沢本町」駅 徒歩 18 分
  • 東海道本線「藤沢」駅 バス停「NOK前」まで 徒歩 6 分 バス利用 8分
土地面積 134.23㎡
建物面積 107.02㎡
学区 羽鳥小学校、羽鳥中学校
用途地域 第一種低層住居専用
建ぺい率 50%
容積率 80%
地目 宅地
駐車場 有り カースペース
接道 西4m
権利 所有権
私道面積 無し
セットバック 無し
建物構造 木造
建物階数 2階
築年月 2026年02月
入居日 即時
都市計画 市街化区域
取引態様 仲介
物件番号 S00918-1
設備 公営水道、公共下水、吹き抜け、省エネルギー対策、フラット35・S適合証明書、BELS/省エネ基準適合認定書あり、駐車場2台以上、緑豊かな住宅地、閑静な住宅地、スーパーが近い(10分以内)、小学校徒歩10分以内、中学校徒歩10分以内、システムキッチン、ガス3口、食器洗い機付き、浄水器、I型キッチン、ユニットバス、浴室乾燥機、ウォシュレット、トイレ2ヶ所、浴室1坪以上、浴室に窓、暖房便座、セカンド洗面台、浴室暖房、バルコニー、バルコニー2面、南面バルコニー、2階建、LDK20畳以上、全室2面採光、フローリング、床下収納、下駄箱、全居室収納、シャンプドレッサー付き、フラット35Sに対応、モニタ付きインターフォン、24時間換気システム、建物10年保証
建築確認番号 -
特記事項 景観法:有 宅地造成工事規制区域:有 日影制限:有 高さ限度:有 その他制限事項:藤沢市緑の保全及緑化の推進に関する条例 建築基準法第22条区域 土地面積に共用部分約0.49平米含   景観法:有/宅地造成工事規制区域:有/日影制限:有/高さ限度:有/藤沢市緑の保全及緑化の推進に関する条例 建築基準法第22条区域 土地面積に共用部分約0.49平米含 。 /
備考 小田急江ノ島線「藤沢本町」駅徒歩18分。緑豊かで閑静な住環境。日差しが取り込みやすくプライバシーに配慮した2階リビング。LDには空気の乾燥が少なく足元から暖かい床暖房。

お気軽にどうぞ!

資料請求 現地見学 電話でお問い合わせ
0120-046-690

このエリアでお探しの方へ

今週末モデルハウス見学会開催中!「辻堂」駅利用 新築一戸建て(1)

東海道本線「辻堂」駅 バス停「辻堂東海岸」まで 徒歩 7 分 バス利用 5分

江ノ島線「鵠沼海岸」駅 徒歩 20 分

藤沢市 辻堂東海岸1丁目

6,380万円

2LDK+2S

今週末モデルハウス見学会開催中!「辻堂」駅利用 新築一戸建て(1)

東海道本線「辻堂」駅 徒歩 24 分

江ノ島線「鵠沼海岸」駅 徒歩 23 分

藤沢市 辻堂太平台1丁目

6,399万円

1LDK+2S

今週末モデルハウス見学会開催中!「鵠沼海岸」駅利用 新築一戸建て(1)

江ノ島線「鵠沼海岸」駅 徒歩 23 分

東海道本線「辻堂」駅 徒歩 29 分

藤沢市 辻堂東海岸3丁目

6,480万円

3LDK

今週末モデルハウス見学会開催中!「鵠沼海岸」駅利用 新築一戸建て(2)

江ノ島線「鵠沼海岸」駅 徒歩 23 分

東海道本線「辻堂」駅 徒歩 29 分

藤沢市 辻堂東海岸3丁目

6,480万円

2SLDK

今週末モデルハウス見学会開催中!「辻堂」駅利用 新築一戸建て(3)

東海道本線「辻堂」駅 バス停「辻堂東海岸」まで 徒歩 7 分 バス利用 5分

江ノ島線「鵠沼海岸」駅 徒歩 20 分

藤沢市 辻堂東海岸1丁目

6,480万円

2SLDK

今週末モデルハウス見学会開催中!「湘南台」駅徒歩8分 新築一戸建て(1) SIC

江ノ島線「湘南台」駅 徒歩 8 分

ブルーライン「下飯田」駅 徒歩 18 分

藤沢市 湘南台6丁目

6,480万円

2SLDK

今週末モデルハウス見学会開催中!「辻堂」駅利用 新築一戸建て(2)

東海道本線「辻堂」駅 徒歩 24 分

江ノ島線「鵠沼海岸」駅 徒歩 22 分

藤沢市 辻堂太平台1丁目

6,599万円

3LDK

建物完成しました!今週末内覧会開催中!「湘南海岸公園」駅徒歩4分 新築一戸建て(2)

江ノ島電鉄線「湘南海岸公園」駅 徒歩 4 分

江ノ島線「片瀬江ノ島」駅 徒歩 9 分

藤沢市 片瀬海岸3丁目

6,649万円

2LDK+2S

今週末モデルハウス見学会開催中!「辻堂」駅利用 新築一戸建て(2)

東海道本線「辻堂」駅 徒歩 24 分

江ノ島線「鵠沼海岸」駅 徒歩 23 分

藤沢市 辻堂太平台1丁目

6,799万円

3LDK

今週末モデルハウス見学会開催中!「湘南海岸公園」駅 徒歩5分 新築一戸建て(3)

江ノ島電鉄線「湘南海岸公園」駅 徒歩 5 分

江ノ島電鉄線「鵠沼」駅 徒歩 11 分

藤沢市 片瀬4丁目

6,898万円

4LDK

今週末モデルハウス見学会開催中!「小田急線善行駅」駅戸徒歩11分 新築一建て

江ノ島線「善行」駅 徒歩 11 分

江ノ島線「藤沢本町」駅 徒歩 23 分

藤沢市 白旗4丁目

3,980万円

3LDK

建物完成しました!今週末内覧会開催中!「藤沢本町」駅利用 新築一戸建て(1)

江ノ島線「藤沢本町」駅 徒歩 18 分

東海道本線「辻堂」駅 徒歩 29 分

藤沢市 羽鳥4丁目

4,280万円

3LDK

お気軽にどうぞ!

資料請求 現地見学 電話でお問い合わせ
0120-046-690
来店予約