1. トップページ
  2. 建物完成しました!今週末内覧会開催中!「本鵠沼」駅徒歩9分 新築一戸建て(B)

建物完成しました!今週末内覧会開催中!「本鵠沼」駅徒歩9分 新築一戸建て(B)

価格
6,880万円
物件種別
新築一戸建て
間取り
1SLDK
所在地
藤沢市 鵠沼海岸7丁目
交通
  • 江ノ島線「本鵠沼」駅 徒歩 9 分
  • 江ノ島電鉄線「柳小路」駅 徒歩 25 分
土地面積
112.88㎡
建物面積
91.90㎡
  • 前回情報更新日 2026.04.04
  • 次回情報更新予定日 2026.04.18
資料請求 現地見学 電話でお問い合わせ
0120-046-690
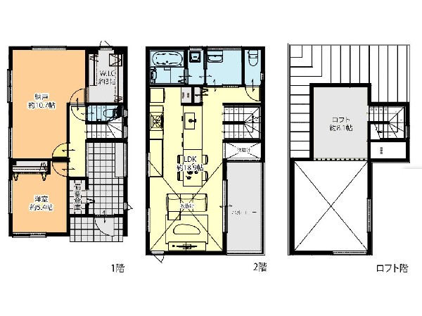
間取り
間取り
区画図
区画図

この物件のココがオススメ!

小田急江ノ島線「本鵠沼」駅から徒歩9分。緑豊かで、閑静な住環境。全室2面採光なので、明るく通風良好なお住まいです。グラフテクトのキッチンは作業スペースが広く、収納にも心強いです。納戸もお部屋としてご利用いただけます。固定階段のロフトは、季節物や大物も収納しやすいですね。

こだわりポイント

  • 道路狭い(4メートル未満)
  • 食器洗い洗浄乾燥機
  • 浴室換気乾燥暖房機
  • ウォークインクローゼット
  • リビングイン階段
  • LDKは2階に
  • LDK18帖以上
  • 吹き抜け有り
  • 浴室1坪以上
  • ロフト・小屋裏収納
  • 大規模公園10分以内
  • スーパー10分以内
  • コンビニ10分以内
  • 小児科医院10分以内
  • 保育園10分以内
  • 幼稚園10分以内
  • 公園10分以内
  • 都市ガス
  • フラット35利用可

お気軽にどうぞ!

資料請求 現地見学 電話でお問い合わせ
0120-046-690

地図

申し訳ありません
こちらは会員限定機能です

会員登録で利用できる6つの便利機能

詳しく見る

お気軽にどうぞ!

資料請求 現地見学 電話でお問い合わせ
0120-046-690

頭金0万円・金利0.495%の場合

ボーナス時(年2回)お支払額

0

この物件の月々のお支払額

192,707

年収に対する返済比率

77

  • ※会員登録し、詳細情報を記入されますと、全ての物件で自動的に金額が表示され、大変便利です。
  • ※まだ会員登録をされていない方は、下記チェック欄をご記入ください。
  • ※上記計算は物件価格6,880万円+諸経費 8%込みの金額による結果となります。
  • ※返済金額はあくまでも目安です。

お客様の条件からシミュレーションするには?

会員登録
マイページから登録

金利

直接入力する

ボーナス払い(年2回)

返済年数

頭金

直接入力する

 万円(半角数字)

年収

 万円(半角数字)
価格 6,880万円
物件種別 新築一戸建て
間取り 1SLDK
所在地 藤沢市 鵠沼海岸7丁目
交通
  • 江ノ島線「本鵠沼」駅 徒歩 9 分
  • 江ノ島電鉄線「柳小路」駅 徒歩 25 分
土地面積 112.88㎡
建物面積 91.90㎡
学区 鵠南小学校、湘洋中学校
用途地域 第一種低層住居専用
建ぺい率 50%
容積率 80%
地目 宅地
駐車場 有り カースペース
接道 南西2.9m
権利 所有権
私道面積 無し
セットバック 無し
建物構造 木造
建物階数 2階
築年月 2026年02月
入居日 即時
都市計画 市街化区域
取引態様 仲介
物件番号 S00974-B
設備 公営水道、公共下水、吹き抜け、フラット35・S適合証明書、駐車場1台、緑豊かな住宅地、閑静な住宅地、海まで2km以内、スーパーが近い(10分以内)、保育施設・幼稚園5分以内、コンビニ5分以内、システムキッチン、ガス3口、食器洗い機付き、浄水器、ユニットバス、追い焚き、浴室乾燥機、ウォシュレット、トイレ2ヶ所、浴室1坪以上、暖房便座、浴室暖房、バルコニー、ロフト、LDK18畳以上、採光2面、全室2面採光、東南向き、フローリング、リビング階段、クローゼット、収納、下駄箱、全居室収納、シャンプドレッサー付き、フラット35Sに対応、24時間換気システム、建物10年保証
建築確認番号 -
特記事項 景観法:有 宅地造成工事規制区域:有 日影制限:有 高さ限度:有 その他制限事項:居住誘導区域 藤沢市緑の保全及緑化の推進に関する条例 建築基準法第22条区域 建物面積に備蓄倉庫面積含む 景観法:有/宅地造成工事規制区域:有/日影制限:有/高さ限度:有/居住誘導区域 藤沢市緑の保全及緑化の推進に関する条例 建築基準法第22条区域 建物面積に備蓄倉庫面積含む。 /
備考 小田急江ノ島線「本鵠沼」駅から徒歩9分。緑豊かで、閑静な住環境。全室2面採光なので、明るく通風良好なお住まいです。グラフテクトのキッチンは作業スペースが広く、収納にも心強いです。納戸もお部屋としてご利用いただけます。固定階段のロフトは、季節物や大物も収納しやすいですね。

お気軽にどうぞ!

資料請求 現地見学 電話でお問い合わせ
0120-046-690

このエリアでお探しの方へ

今週末モデルハウス見学会開催中!「本鵠沼」駅徒歩9分 新築一戸建て(2) SIC

江ノ島線「本鵠沼」駅 徒歩 9 分

江ノ島電鉄線「石上」駅 徒歩 22 分

藤沢市 本鵠沼4丁目

6,990万円

2SLDK

今週末モデルハウス見学会開催中!「本鵠沼」駅徒歩9分 新築一戸建て(3) ロフト

江ノ島線「本鵠沼」駅 徒歩 9 分

江ノ島電鉄線「石上」駅 徒歩 22 分

藤沢市 本鵠沼4丁目

7,090万円

1LDK+2S

完成しました!今週末、建物見学会開催中!「鵠沼海岸」駅徒歩9分 新築一戸建て(1)

江ノ島線「鵠沼海岸」駅 徒歩 9 分

江ノ島電鉄線「鵠沼」駅 徒歩 10 分

藤沢市 鵠沼松が岡3丁目

6,599万円

3LDK

今週末モデルハウス見学会開催中!「鵠沼海岸」駅利用 新築一戸建て(1)

江ノ島線「鵠沼海岸」駅 徒歩 23 分

東海道本線「辻堂」駅 徒歩 29 分

藤沢市 辻堂東海岸3丁目

6,680万円

3LDK

今週末モデルハウス見学会開催中!「鵠沼海岸」駅利用 新築一戸建て(2)

江ノ島線「鵠沼海岸」駅 徒歩 23 分

東海道本線「辻堂」駅 徒歩 29 分

藤沢市 辻堂東海岸3丁目

6,680万円

2SLDK

建物完成しました!今週末内覧会開催中!「藤沢本町」駅徒歩18分 新築一戸建て完成(1)

江ノ島線「藤沢本町」駅 徒歩 18 分

東海道本線「藤沢」駅 バス停「NOK前」まで 徒歩 6 分 バス利用 8分

藤沢市 羽鳥5丁目

6,799万円

3SLDK

今週末モデルハウス見学会開催中!「湘南海岸公園」駅徒歩3分 新築一戸建て(3) S洗面

江ノ島電鉄線「湘南海岸公園」駅 徒歩 3 分

湘南モノレール「湘南江の島」駅 徒歩 10 分

藤沢市 片瀬4丁目

6,990万円

1LDK+2S

今週末モデルハウス見学会開催中!「湘南海岸公園」駅 徒歩5分 新築一戸建て(3)

江ノ島電鉄線「湘南海岸公園」駅 徒歩 5 分

江ノ島電鉄線「鵠沼」駅 徒歩 11 分

藤沢市 片瀬4丁目

7,098万円

4LDK

今週末モデルハウス見学会開催中!「鵠沼海岸」駅徒歩10分 新築一戸建て(1)

江ノ島線「鵠沼海岸」駅 徒歩 10 分

江ノ島線「本鵠沼」駅 徒歩 11 分

藤沢市 鵠沼海岸7丁目

6,298万円

3LDK

今週末モデルハウス見学会開催中!「鵠沼海岸」駅徒歩10分 新築一戸建て(2)

江ノ島線「鵠沼海岸」駅 徒歩 10 分

江ノ島線「本鵠沼」駅 徒歩 11 分

藤沢市 鵠沼海岸7丁目

7,398万円

4LDK

今週末モデルハウス見学会開催中!「本鵠沼」駅徒歩9分 新築一戸建て(1) 全室収納

江ノ島線「本鵠沼」駅 徒歩 9 分

江ノ島電鉄線「石上」駅 徒歩 22 分

藤沢市 本鵠沼4丁目

7,490万円

2SLDK

建物完成しました!今週末内覧会開催中!「湘南台」駅利用 未入居一戸建て(2)

ブルーライン「湘南台」駅 バス停「和泉橋」まで 徒歩 6 分 バス利用 6分

江ノ島線「六会日大前」駅 徒歩 30 分

藤沢市 石川5丁目

3,570万円

4LDK

お気軽にどうぞ!

資料請求 現地見学 電話でお問い合わせ
0120-046-690
来店予約