1. トップページ
  2. 今週末モデルハウス見学会開催中!「江ノ島」駅徒歩7分 新築一戸建て

今週末モデルハウス見学会開催中!「江ノ島」駅徒歩7分 新築一戸建て

価格
6,280万円
物件種別
新築一戸建て
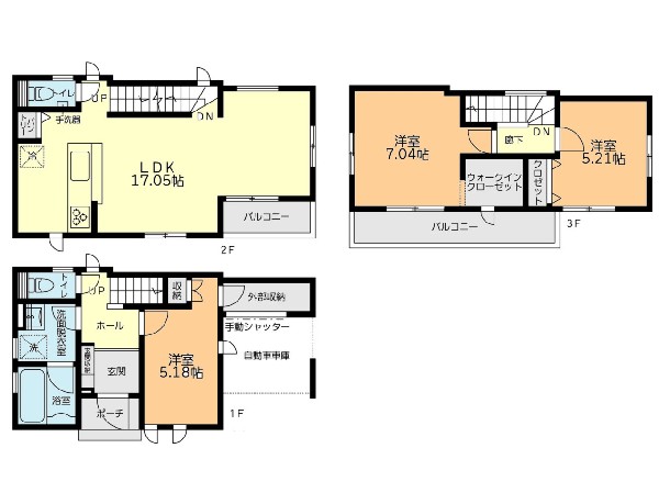
間取り
3LDK
所在地
鎌倉市 腰越3丁目
交通
  • 江ノ島電鉄線「江ノ島」駅 徒歩 7 分
  • 江ノ島線「片瀬江ノ島」駅 徒歩 11 分
土地面積
56.54㎡
建物面積
98.08㎡
  • 前回情報更新日 2026.04.27
  • 次回情報更新予定日 2026.05.11
資料請求 現地見学 電話でお問い合わせ
0120-046-690
間取り
間取り

この物件のココがオススメ!

江ノ島電鉄線「江ノ島」駅から徒歩7分。緑豊かで、閑静な住環境。リビングで遊んでいる子どもたちを見守りながら、時にはおしゃべりしながらお料理や後片付けができる対面キッチン。季節物や大物の収納に心強いWIC。

こだわりポイント

  • 海が近い家
  • サーファーに嬉しい家
  • 道路狭い(4メートル未満)
  • 断熱に配慮された建物
  • 食器洗い洗浄乾燥機
  • 浴室換気乾燥暖房機
  • 始発で座ってゆったり通勤
  • 2沿線利用であんしん通勤
  • ウォークインクローゼット
  • リビングイン階段
  • LDKは2階に
  • LDK15帖以上
  • 対面キッチン
  • 浴室1坪以上
  • パントリー
  • 小学校10分以内
  • 大規模公園10分以内
  • 大型商業施設15分以内
  • スーパー10分以内
  • コンビニ10分以内
  • 保育園10分以内
  • 幼稚園10分以内
  • 公園10分以内
  • 都市ガス
  • フラット35利用可

お気軽にどうぞ!

資料請求 現地見学 電話でお問い合わせ
0120-046-690

地図

申し訳ありません
こちらは会員限定機能です

会員登録で利用できる6つの便利機能

詳しく見る

お気軽にどうぞ!

資料請求 現地見学 電話でお問い合わせ
0120-046-690

頭金0万円・金利0.495%の場合

ボーナス時(年2回)お支払額

0

この物件の月々のお支払額

175,900

年収に対する返済比率

70

  • ※会員登録し、詳細情報を記入されますと、全ての物件で自動的に金額が表示され、大変便利です。
  • ※まだ会員登録をされていない方は、下記チェック欄をご記入ください。
  • ※上記計算は物件価格6,280万円+諸経費 8%込みの金額による結果となります。
  • ※返済金額はあくまでも目安です。

お客様の条件からシミュレーションするには?

会員登録
マイページから登録

金利

直接入力する

ボーナス払い(年2回)

返済年数

頭金

直接入力する

 万円(半角数字)

年収

 万円(半角数字)
価格 6,280万円
物件種別 新築一戸建て
間取り 3LDK
所在地 鎌倉市 腰越3丁目
交通
  • 江ノ島電鉄線「江ノ島」駅 徒歩 7 分
  • 江ノ島線「片瀬江ノ島」駅 徒歩 11 分
土地面積 56.54㎡
建物面積 98.08㎡
学区 腰越小学校、腰越中学校
用途地域 第一種住居
建ぺい率 60%
容積率 200%
地目 宅地
駐車場 有り ビルトイン車庫 駐車場面積:8.64㎡
接道 南西4m
権利 所有権
私道面積 有 10.11㎡ 1/1
セットバック 無し
建物構造 木造
建物階数 3階
築年月 2026年07月
入居日 2026年08月
都市計画 市街化区域
取引態様 仲介
物件番号 S00953
設備 公営水道、公共下水、外壁サイディング、フラット35・S適合証明書、耐震・制震・免震、ビルトインガレージ、駐車場1台、緑豊かな住宅地、閑静な住宅地、海まで2km以内、スーパーが近い(10分以内)、小学校徒歩10分以内、保育施設・幼稚園5分以内、公園5分以内、コンビニ5分以内、システムキッチン、ガス3口、食器洗い機付き、浄水器、I型キッチン、パントリー(食器・食品の収納庫)、ユニットバス、追い焚き、浴室乾燥機、ウォシュレット、トイレ2ヶ所、浴室1坪以上、浴室に窓、暖房便座、浴室暖房、バルコニー2面、3階建以上、LDK15畳以上、採光2面、全室2面採光、南西向き、フローリング、リビング階段、スマートキー、クローゼット、収納、床下収納、下駄箱、全居室収納、シャンプドレッサー付き、フラット35Sに対応、モニタ付きインターフォン、カードキー、複層ガラス、24時間換気システム、建物10年保証
建築確認番号 第25UDI1K建01790号
特記事項 不整形地:有 景観法:有 宅地造成工事規制区域:有 高度地区:有 準防火地域:有 日影制限:有 高さ限度:有 その他制限事項:景観計画:海浜住商複合地  建蔽率:60%(準耐火緩和70%) 土地面積に別途セットバック部分約10.11平米有 建物面積に車庫部分約8.64平米含 敷地内に存した古井戸は、お祓い後埋井済み 不整形地:有/景観法:有/宅地造成工事規制区域:有/高度地区:有/準防火地域:有/日影制限:有/高さ限度:有/景観計画:海浜住商複合地  建蔽率:60%(準耐火緩和70%) 土地面積に別途セットバック部分約10.11平米有 建物面積に車庫部分約8.64平米含 敷地内に存した古井戸は、お祓い後埋井済み。 /
備考 江ノ島電鉄線「江ノ島」駅から徒歩7分。緑豊かで、閑静な住環境。リビングで遊んでいる子どもたちを見守りながら、時にはおしゃべりしながらお料理や後片付けができる対面キッチン。季節物や大物の収納に心強いWIC。

お気軽にどうぞ!

資料請求 現地見学 電話でお問い合わせ
0120-046-690

このエリアでお探しの方へ

建物完成しました!今週末内覧会開催中!「湘南海岸公園」駅徒歩4分 新築一戸建て(2)

江ノ島電鉄線「湘南海岸公園」駅 徒歩 4 分

江ノ島線「片瀬江ノ島」駅 徒歩 9 分

藤沢市 片瀬海岸3丁目

6,399万円

2LDK+2S

建物完成しました!今週末内覧会開催中!「稲村ケ崎」駅徒歩12分 新築一戸建て (A)

江ノ島電鉄線「稲村ヶ崎」駅 徒歩 12 分

江ノ島電鉄線「七里ヶ浜」駅 徒歩 24 分

鎌倉市 稲村ガ崎5丁目

5,980万円

4LDK

今週末モデルハウス見学会開催中!「片瀬山」駅徒歩9分 新築一戸建て

湘南モノレール「片瀬山」駅 徒歩 9 分

江ノ島電鉄線「腰越」駅 徒歩 13 分

鎌倉市 津西1丁目

5,980万円

3SLDK

今週末モデルハウス見学会開催中!「鎌倉高校前」駅徒歩13分 新築一戸建て WIC

江ノ島電鉄線「鎌倉高校前」駅 徒歩 13 分

江ノ島電鉄線「七里ヶ浜」駅 徒歩 18 分

鎌倉市 七里ガ浜2丁目

6,380万円

3LDK

今週末モデルハウス見学会開催中!「西鎌倉」駅徒歩6分 新築一戸建て (I)

湘南モノレール「西鎌倉」駅 徒歩 6 分

江ノ島電鉄線「腰越」駅 徒歩 17 分

鎌倉市 腰越

6,380万円

4LDK

建物完成しました!今週末内覧会開催中!「湘南海岸公園」駅徒歩4分 新築一戸建て完成(2)

江ノ島電鉄線「湘南海岸公園」駅 徒歩 4 分

江ノ島線「片瀬江ノ島」駅 徒歩 14 分

藤沢市 片瀬4丁目

7,900万円

4LDK

建物完成しました!今週末内覧会開催中!「湘南海岸公園」駅徒歩4分 新築一戸建て完成(1)

江ノ島電鉄線「湘南海岸公園」駅 徒歩 4 分

江ノ島線「片瀬江ノ島」駅 徒歩 14 分

藤沢市 片瀬4丁目

7,900万円

3LDK

建物完成しました!今週末内覧会開催中!「腰越」駅徒歩2分 新築一戸建て

江ノ島電鉄線「腰越」駅 徒歩 2 分

江ノ島線「片瀬江ノ島」駅 徒歩 13 分

鎌倉市 腰越3丁目

9,900万円

3LDK

今週末モデルハウス見学会開催中!「大船」駅利用 新築一戸建て(A)

東海道本線「大船」駅 バス停「中町」まで 徒歩 1 分 バス利用 18分

横須賀線「北鎌倉」駅 徒歩 29 分

鎌倉市 今泉3丁目

3,380万円

3SLDK

建物完成しました!今週末内覧会開催中!「富士見町」駅 徒歩10分 新築一戸建て

湘南モノレール「富士見町」駅 徒歩 10 分

横須賀線「北鎌倉」駅 徒歩 20 分

鎌倉市 台4丁目

3,680万円

3SLDK

今週末モデルハウス見学会開催中「富士見町」駅徒歩10分新築一戸建て(2)

湘南モノレール「富士見町」駅 徒歩 10 分

湘南モノレール「湘南町屋」駅 徒歩 17 分

鎌倉市 台4丁目

4,480万円

3SLDK

建物完成しました!今週末内覧会開催中!「大船」駅徒歩15分 新築一戸建て(1)

東海道本線「大船」駅 徒歩 15 分

根岸線「大船」駅 徒歩 15 分

鎌倉市 大船4丁目

4,580万円

2SLDK

お気軽にどうぞ!

資料請求 現地見学 電話でお問い合わせ
0120-046-690
来店予約