1. トップページ
  2. 建物完成しました!今週末内覧会開催中!「湘南海岸公園」駅徒歩4分 新築一戸建て完成(1)

建物完成しました!今週末内覧会開催中!「湘南海岸公園」駅徒歩4分 新築一戸建て完成(1)

価格
7,599万円
物件種別
新築一戸建て
間取り
3LDK
所在地
藤沢市 片瀬4丁目
交通
  • 江ノ島電鉄線「湘南海岸公園」駅 徒歩 4 分
  • 江ノ島線「片瀬江ノ島」駅 徒歩 14 分
土地面積
141.08㎡
建物面積
106.73㎡
  • 前回情報更新日 2026.05.14
  • 次回情報更新予定日 2026.05.28
資料請求 現地見学 電話でお問い合わせ
0120-046-690
外観:最寄り駅まで平坦徒歩アクセスの好立地。利便性と住環境のどちらも譲れない方は是非現地をご覧ください。
外観:最寄り駅まで平坦徒歩アクセスの好立地。利便性と住環境のどちらも譲れない方は是非現地をご覧ください。
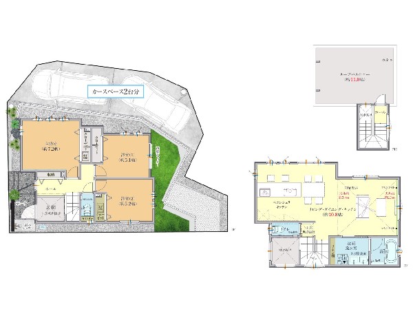
間取り
間取り
区画図
区画図
2階部分の窓から1階へと光を取り入れられる吹抜があり、明るく開放的な空間になっています。
2階部分の窓から1階へと光を取り入れられる吹抜があり、明るく開放的な空間になっています。

この物件のココがオススメ!

江ノ島電鉄線「湘南海岸公園」駅徒歩4分。緑豊かで閑静な住環境。19.7帖LDKは対面キッチン・リビングイン階段になっておりますのでご家族とのコミュニケーションが取りやすいですね。

こだわりポイント

  • 海が近い家
  • サーファーに嬉しい家
  • 省エネに配慮された建物
  • 床暖房
  • 食器洗い洗浄乾燥機
  • 浴室換気乾燥暖房機
  • 大人の二人暮らし
  • LDKは1階に
  • ウォークインクローゼット
  • リビングイン階段
  • LDK18帖以上
  • 主寝室 8帖以上
  • 吹き抜け有り
  • 対面キッチン
  • 浴室1坪以上
  • パントリー
  • コンビニ10分以内
  • 小児科医院10分以内
  • 保育園10分以内
  • 幼稚園10分以内
  • 公園10分以内
  • 都市ガス
  • フラット35利用可
  • カースペース2台
  • 低層住居専用地域

お気軽にどうぞ!

資料請求 現地見学 電話でお問い合わせ
0120-046-690

地図

申し訳ありません
こちらは会員限定機能です

会員登録で利用できる6つの便利機能

詳しく見る

お気軽にどうぞ!

資料請求 現地見学 電話でお問い合わせ
0120-046-690

頭金0万円・金利0.495%の場合

ボーナス時(年2回)お支払額

0

この物件の月々のお支払額

212,834

年収に対する返済比率

85

  • ※会員登録し、詳細情報を記入されますと、全ての物件で自動的に金額が表示され、大変便利です。
  • ※まだ会員登録をされていない方は、下記チェック欄をご記入ください。
  • ※上記計算は物件価格7,599万円+諸経費 8%込みの金額による結果となります。
  • ※返済金額はあくまでも目安です。

お客様の条件からシミュレーションするには?

会員登録
マイページから登録

金利

直接入力する

ボーナス払い(年2回)

返済年数

頭金

直接入力する

 万円(半角数字)

年収

 万円(半角数字)
価格 7,599万円
物件種別 新築一戸建て
間取り 3LDK
所在地 藤沢市 片瀬4丁目
交通
  • 江ノ島電鉄線「湘南海岸公園」駅 徒歩 4 分
  • 江ノ島線「片瀬江ノ島」駅 徒歩 14 分
土地面積 141.08㎡
建物面積 106.73㎡
学区 片瀬小学校、片瀬中学校
用途地域 第一種低層住居専用
建ぺい率 50%
容積率 80%
地目 山林
駐車場 有り カースペース
接道 東4.1m
権利 所有権
私道面積 無し
セットバック 無し
建物構造 木造
建物階数 2階
築年月 2026年01月
入居日 即時
都市計画 市街化区域
取引態様 仲介
物件番号 S00901-1
設備 公営水道、公共下水、省エネルギー対策、フラット35・S適合証明書、BELS/省エネ基準適合認定書あり、駐車場2台以上、緑豊かな住宅地、閑静な住宅地、海まで2km以内、保育施設・幼稚園5分以内、公園5分以内、システムキッチン、ガス3口、食器洗い機付き、浄水器、I型キッチン、パントリー(食器・食品の収納庫)、ユニットバス、追い焚き、浴室乾燥機、ウォシュレット、浴室1坪以上、浴室に窓、暖房便座、浴室暖房、室内洗濯物干し、バルコニー、ワイドバルコニー、2階建、LDK18畳以上、間取り変更可能、全室2面採光、フローリング、クローゼット、床下収納、下駄箱、全居室収納、洗面室収納、シャンプドレッサー付き、フラット35Sに対応、モニタ付きインターフォン、複層ガラス、24時間換気システム、建物10年保証
建築確認番号 -
特記事項 景観法:有 宅地造成工事規制区域:有 日影制限:有 高さ限度:有 その他制限事項:藤沢市緑の保全及緑化の推進に関する条例 建築基準法第22条区域  土地面積に協定地部分有  景観法:有/宅地造成工事規制区域:有/日影制限:有/高さ限度:有/藤沢市緑の保全及緑化の推進に関する条例 建築基準法第22条区域  土地面積に協定地部分有。 /
備考 江ノ島電鉄線「湘南海岸公園」駅徒歩4分。緑豊かで閑静な住環境。19.7帖LDKは対面キッチン・リビングイン階段になっておりますのでご家族とのコミュニケーションが取りやすいですね。

お気軽にどうぞ!

資料請求 現地見学 電話でお問い合わせ
0120-046-690

このエリアでお探しの方へ

建物完成しました!今週末内覧会開催中!「湘南海岸公園」駅徒歩4分 新築一戸建て完成(2)

江ノ島電鉄線「湘南海岸公園」駅 徒歩 4 分

江ノ島線「片瀬江ノ島」駅 徒歩 14 分

藤沢市 片瀬4丁目

7,599万円

4LDK

今週末モデルハウス見学会開催中!「本鵠沼」駅徒歩9分 新築一戸建て(1) 全室収納

江ノ島線「本鵠沼」駅 徒歩 9 分

江ノ島電鉄線「石上」駅 徒歩 22 分

藤沢市 本鵠沼4丁目

7,490万円

2SLDK

今週末モデルハウス見学会開催中!「辻堂」駅徒歩6分 新築一戸建て(B)

東海道本線「辻堂」駅 徒歩 6 分

湘南新宿高「辻堂」駅 バス停「熊の森」まで 徒歩 3 分 バス利用 2分

藤沢市 辻堂1丁目

7,680万円

3SLDK

今週末モデルハウス見学会開催中!「鵠沼海岸」駅利用 新築一戸建て(1)

江ノ島線「鵠沼海岸」駅 徒歩 20 分

江ノ島線「本鵠沼」駅 徒歩 22 分

藤沢市 辻堂太平台1丁目

7,698万円

4LDK

今週末モデルハウス見学会開催中「鵠沼海岸」駅徒歩5分 新築一戸建て

江ノ島線「鵠沼海岸」駅 徒歩 5 分

江ノ島電鉄線「鵠沼」駅 徒歩 22 分

藤沢市 鵠沼海岸3丁目

7,790万円

2SLDK

今週末モデルハウス見学会開催中!「辻堂」駅徒歩6分 新築一戸建て(A)

東海道本線「辻堂」駅 徒歩 6 分

湘南新宿高「辻堂」駅 バス停「熊の森」まで 徒歩 3 分 バス利用 2分

藤沢市 辻堂1丁目

7,880万円

2SLDK

今週末モデルハウス見学会開催中!「江ノ島」駅徒歩7分 新築一戸建て

江ノ島電鉄線「江ノ島」駅 徒歩 7 分

江ノ島線「片瀬江ノ島」駅 徒歩 11 分

鎌倉市 腰越3丁目

6,280万円

3LDK

建物完成しました!今週末内覧会開催中!「湘南海岸公園」駅徒歩4分 新築一戸建て(2)

江ノ島電鉄線「湘南海岸公園」駅 徒歩 4 分

江ノ島線「片瀬江ノ島」駅 徒歩 9 分

藤沢市 片瀬海岸3丁目

6,649万円

2LDK+2S

建物完成しました!今週末内覧会開催中!「湘南台」駅利用 未入居一戸建て(2)

ブルーライン「湘南台」駅 バス停「和泉橋」まで 徒歩 6 分 バス利用 6分

江ノ島線「六会日大前」駅 徒歩 30 分

藤沢市 石川5丁目

3,570万円

4LDK

今週末モデルハウス見学会開催中!「善行」駅徒歩16分 新築一戸建て(1)

江ノ島線「善行」駅 徒歩 14 分

江ノ島線「善行」駅 バス停「マーケット前」まで 徒歩 5 分 バス利用 6分

藤沢市 善行坂1丁目

3,580万円

3SLDK

今週末モデルハウス見学会開催中!「小田急線善行駅」駅戸徒歩11分 新築一建て

江ノ島線「善行」駅 徒歩 11 分

江ノ島線「藤沢本町」駅 徒歩 23 分

藤沢市 白旗4丁目

3,980万円

3LDK

今週末モデルハウス見学会開催中!「六会日大前」駅利用 新築一戸建て(2)

江ノ島線「六会日大前」駅 徒歩 31 分

いずみ野線「湘南台」駅 バス停「石川橋」まで 徒歩 1 分 バス利用 12分

藤沢市 石川2丁目

4,280万円

1LDK+2S

お気軽にどうぞ!

資料請求 現地見学 電話でお問い合わせ
0120-046-690
来店予約