1. トップページ
  2. 今週末モデルハウス見学会開催中!「西鎌倉」駅徒歩7分 新築一戸建て(1)

今週末モデルハウス見学会開催中!「西鎌倉」駅徒歩7分 新築一戸建て(1)

価格
6,599万円
物件種別
新築一戸建て
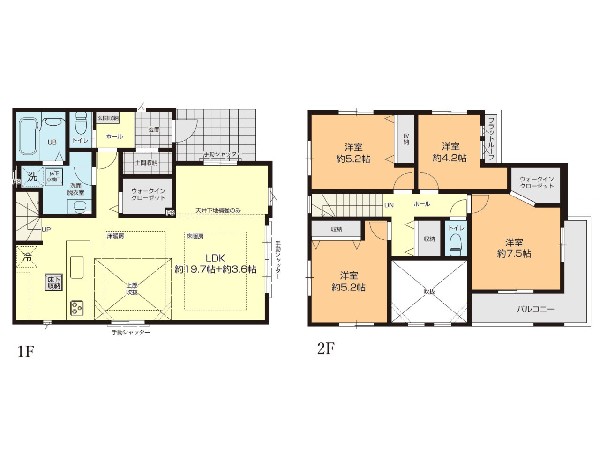
間取り
4LDK
所在地
鎌倉市 津
交通
  • 湘南モノレール「西鎌倉」駅 徒歩 7 分
  • 江ノ島電鉄線「腰越」駅 バス停「白山橋」まで 徒歩 4 分 バス利用 4分
土地面積
149.99㎡
建物面積
106.95㎡
  • 前回情報更新日 2026.02.09
  • 次回情報更新予定日 2026.02.23
資料請求 現地見学 電話でお問い合わせ
0120-046-690
外観:四季を通じて自然と触れ合えるスポットが周辺には盛りだくさん!週末のご家族での遊びに最適です。
外観:四季を通じて自然と触れ合えるスポットが周辺には盛りだくさん!週末のご家族での遊びに最適です。
間取り
間取り
区画図
区画図
外観
外観
外観
外観

この物件のココがオススメ!

湘南モノレール線「西鎌倉」駅から徒歩7分。緑豊かで、閑静な住環境。前面道路6mなので、開放感ある立地。前面2面採光なので、明るく通風良好なお住まいです。玄関に隣接のSICは、ベビーカーやゴルフバッグ等の収納に便利ですね。空気の乾燥が少なく、ホコリも立ちにくい床暖房。

こだわりポイント

  • 崖下・崖上
  • 省エネに配慮された建物
  • 床暖房
  • 食器洗い洗浄乾燥機
  • 浴室換気乾燥暖房機
  • 運転ラクラク生活
  • LDKは1階に
  • シューズインクローク
  • ウォークインクローゼット
  • リビングイン階段
  • LDK20帖以上
  • 吹き抜け有り
  • 対面キッチン
  • 浴室1坪以上
  • スーパー10分以内
  • コンビニ10分以内
  • 小児科医院10分以内
  • 保育園10分以内
  • 幼稚園10分以内
  • 公園10分以内
  • 都市ガス
  • カースペース2台
  • 道路広々(5m以上)
  • 低層住居専用地域

お気軽にどうぞ!

資料請求 現地見学 電話でお問い合わせ
0120-046-690

地図

申し訳ありません
こちらは会員限定機能です

会員登録で利用できる6つの便利機能

詳しく見る

お気軽にどうぞ!

資料請求 現地見学 電話でお問い合わせ
0120-046-690

頭金0万円・金利0.495%の場合

ボーナス時(年2回)お支払額

0

この物件の月々のお支払額

184,823

年収に対する返済比率

74

  • ※会員登録し、詳細情報を記入されますと、全ての物件で自動的に金額が表示され、大変便利です。
  • ※まだ会員登録をされていない方は、下記チェック欄をご記入ください。
  • ※上記計算は物件価格6,599万円+諸経費 8%込みの金額による結果となります。
  • ※返済金額はあくまでも目安です。

お客様の条件からシミュレーションするには?

会員登録
マイページから登録

金利

直接入力する

ボーナス払い(年2回)

返済年数

頭金

直接入力する

 万円(半角数字)

年収

 万円(半角数字)
価格 6,599万円
物件種別 新築一戸建て
間取り 4LDK
所在地 鎌倉市 津
交通
  • 湘南モノレール「西鎌倉」駅 徒歩 7 分
  • 江ノ島電鉄線「腰越」駅 バス停「白山橋」まで 徒歩 4 分 バス利用 4分
土地面積 149.99㎡
建物面積 106.95㎡
学区 西鎌倉小学校、腰越中学校
用途地域 第一種低層住居専用
建ぺい率 40%
容積率 80%
地目 宅地
駐車場 有り カースペース
接道 北東6.2m
権利 所有権
私道面積 無し
セットバック 無し
建物構造 木造
建物階数 2階
築年月 2026年03月
入居日 2026年04月
都市計画 市街化区域
取引態様 仲介
物件番号 S00782-1
設備 公営水道、公共下水、吹き抜け、省エネルギー対策、フラット35・S適合証明書、BELS/省エネ基準適合認定書あり、駐車場2台以上、緑豊かな住宅地、閑静な住宅地、前道6m以上、海まで2km以内、スーパーが近い(10分以内)、公園5分以内、コンビニ5分以内、システムキッチン、ガス3口、食器洗い機付き、浄水器、I型キッチン、ユニットバス、追い焚き、浴室乾燥機、ウォシュレット、トイレ2ヶ所、浴室1坪以上、暖房便座、浴室暖房、バルコニー、南面バルコニー、2階建、LDK20畳以上、省エネ給湯器、採光2面、南向き、全室2面採光、フローリング、全室フローリング、リビング階段、クローゼット、収納、床下収納、下駄箱、シャンプドレッサー付き、フラット35Sに対応、全居室複層ガラスか複層サッシ、24時間換気システム、建物10年保証、勾配天井
建築確認番号 第UDI1W建09287号
特記事項 崖下につき建築制限:有 崖上につき建築制限:有 不整形地:有 壁面後退:有 景観法:有 宅地造成工事規制区域:有 風致地区:有 日影制限:有 高さ限度:有 その他制限事項:建築基準法第22条区域 景観計画:一般住宅地 建物建築・再建築の際、深基礎、基礎杭、高基礎、防護壁の設置、擁壁の補修・構築・再構築、外壁後退等の対策が必要となる場合があります フラット35S利用の場合、適合証明書取得費用がかかります(8.69万円) 崖下につき建築制限:有/崖上につき建築制限:有/不整形地:有/壁面後退:有/景観法:有/宅地造成工事規制区域:有/風致地区:有/日影制限:有/高さ限度:有/建築基準法第22条区域 景観計画:一般住宅地 建物建築・再建築の際、深基礎、基礎杭、高基礎、防護壁の設置、擁壁の補修・構築・再構築、外壁後退等の対策が必要となる場合があります フ
備考 湘南モノレール線「西鎌倉」駅から徒歩7分。緑豊かで、閑静な住環境。前面道路6mなので、開放感ある立地。前面2面採光なので、明るく通風良好なお住まいです。玄関に隣接のSICは、ベビーカーやゴルフバッグ等の収納に便利ですね。空気の乾燥が少なく、ホコリも立ちにくい床暖房。

お気軽にどうぞ!

資料請求 現地見学 電話でお問い合わせ
0120-046-690

このエリアでお探しの方へ

川崎市多摩区生田6丁目 新築一戸建 6299万円 2号棟

小田急線「生田」駅 徒歩 10 分

小田急線「読売ランド前」駅 徒歩 13 分

川崎市多摩区 生田6丁目

6,299万円

1LDK+2S

今週末モデルハウス見学会開催中!「辻堂」駅利用 新築一戸建て (1)

東海道本線「辻堂」駅 徒歩 18 分

江ノ島線「藤沢」駅 バス停「汲田」まで 徒歩 10 分 バス利用 13分

藤沢市 羽鳥2丁目

6,299万円

4LDK

川崎市高津区梶ケ谷3丁目 新築一戸建 6349万円 1号棟

田園都市線「梶が谷」駅 徒歩 13 分

南武線「武蔵溝ノ口」駅 徒歩 24 分

川崎市高津区 梶ケ谷3丁目

6,349万円

2LDK+2S

今週末モデルハウス見学会開催中!「藤沢」駅徒歩10分 新築一戸建て(A)

東海道本線「藤沢」駅 徒歩 12 分

江ノ島電鉄線「石上」駅 徒歩 9 分

藤沢市 鵠沼橘2丁目

6,360万円

3LDK

値下げしました!「東戸塚」駅徒歩14分 新築一戸建て(9)全室2面採光

横須賀線「東戸塚」駅 徒歩 14 分

京浜急行本線「上大岡」駅 バス停「坂下」まで 徒歩 5 分 バス利用 25分

横浜市戸塚区 平戸町

6,362万円

3LDK

値下げしました! 「弥生台」駅徒歩8分 新築一戸建て LD床暖房装備

いずみ野線「弥生台」駅 徒歩 8 分

東海道本線「戸塚」駅 バス停「親善病院前」まで 徒歩 3 分 バス利用 22分

横浜市泉区 弥生台

6,380万円

4LDK

横浜市青葉区榎が丘 新築一戸建 6380万円 1号棟

田園都市線「青葉台」駅 徒歩 16 分

田園都市線「長津田」駅 徒歩 24 分

横浜市青葉区 榎が丘

6,380万円

4LDK

川崎市麻生区千代ケ丘6丁目 新築一戸建 6380万円 1号棟

小田急線「百合ヶ丘」駅 徒歩 16 分

小田急線「新百合ヶ丘」駅 バス停「千代ヶ丘七丁目」まで 徒歩 2 分 バス利用 5分

川崎市麻生区 千代ケ丘6丁目

6,380万円

3LDK

横浜市港北区菊名3丁目 新築一戸建 6380万円 4号棟

東急東横線「妙蓮寺」駅 徒歩 11 分

横浜線「菊名」駅 徒歩 12 分

横浜市港北区 菊名3丁目

6,380万円

2LDK+2S

横浜市鶴見区下末吉5丁目 新築一戸建 6380万円 17号棟

京浜東北線「鶴見」駅 徒歩 20 分

京浜急行本線「京急鶴見」駅 バス停「宮の下」まで 徒歩 3 分 バス利用 7分

横浜市鶴見区 下末吉5丁目

6,380万円

4LDK

建物完成しました! 今週末内覧会開催中!「金沢八景」駅徒歩13分 新築一戸建て(3) 長期優良住宅

京浜急行本線「金沢八景」駅 徒歩 13 分

逗子線「金沢八景」駅 徒歩 13 分

横浜市金沢区 柳町

6,380万円

4LDK

横浜市鶴見区下末吉5丁目 新築一戸建 6380万円 20号棟

京浜東北線「鶴見」駅 徒歩 20 分

京浜急行本線「京急鶴見」駅 バス停「宮の下」まで 徒歩 3 分 バス利用 7分

横浜市鶴見区 下末吉5丁目

6,380万円

4LDK

お気軽にどうぞ!

資料請求 現地見学 電話でお問い合わせ
0120-046-690
来店予約