1. トップページ
  2. 建物完成しました!今週末内覧会開催中!「逗子」駅利用 新築一戸建て(D)

建物完成しました!今週末内覧会開催中!「逗子」駅利用 新築一戸建て(D)

価格
3,490万円
物件種別
新築一戸建て
間取り
3LDK
所在地
逗子市 久木9丁目
交通
  • 横須賀線「逗子」駅 徒歩 17 分
  • 逗子線「逗子・葉山」駅 徒歩 23 分
土地面積
58.03㎡
建物面積
106.40㎡
  • 前回情報更新日 2026.02.05
  • 次回情報更新予定日 2026.02.19
資料請求 現地見学 電話でお問い合わせ
0120-046-690
外観:深く豊かな緑と爽快な青い空を感じる、まるで杜の中に暮らすような心地よさを存分に堪能頂ける邸宅です。
外観:深く豊かな緑と爽快な青い空を感じる、まるで杜の中に暮らすような心地よさを存分に堪能頂ける邸宅です。
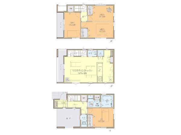
間取り:D号棟間取図
間取り:D号棟間取図
区画図
区画図

この物件のココがオススメ!

JR横須賀線「逗子」駅徒歩17分。緑豊かで、閑静な住環境。リビングで遊んでいる子どもたちを見守りながら、時にはおしゃべりしながらお料理や後片づけができる対面キッチン。ビルドインガレージ付き。

こだわりポイント

  • 省エネに配慮された建物
  • 食器洗い洗浄乾燥機
  • 浴室換気乾燥暖房機
  • オール電化
  • 駅まで平坦ラクラク通勤
  • 2沿線利用であんしん通勤
  • リビングイン階段
  • LDKは2階に
  • LDK15帖以上
  • 対面キッチン
  • 浴室1坪以上
  • コンビニ10分以内
  • 公園10分以内
  • フラット35利用可
  • 日当たり良好

お気軽にどうぞ!

資料請求 現地見学 電話でお問い合わせ
0120-046-690

地図

申し訳ありません
こちらは会員限定機能です

会員登録で利用できる6つの便利機能

詳しく見る

お気軽にどうぞ!

資料請求 現地見学 電話でお問い合わせ
0120-046-690

頭金0万円・金利0.495%の場合

ボーナス時(年2回)お支払額

0

この物件の月々のお支払額

97,754

年収に対する返済比率

39

  • ※会員登録し、詳細情報を記入されますと、全ての物件で自動的に金額が表示され、大変便利です。
  • ※まだ会員登録をされていない方は、下記チェック欄をご記入ください。
  • ※上記計算は物件価格3,490万円+諸経費 8%込みの金額による結果となります。
  • ※返済金額はあくまでも目安です。

お客様の条件からシミュレーションするには?

会員登録
マイページから登録

金利

直接入力する

ボーナス払い(年2回)

返済年数

頭金

直接入力する

 万円(半角数字)

年収

 万円(半角数字)
価格 3,490万円
物件種別 新築一戸建て
間取り 3LDK
所在地 逗子市 久木9丁目
交通
  • 横須賀線「逗子」駅 徒歩 17 分
  • 逗子線「逗子・葉山」駅 徒歩 23 分
土地面積 58.03㎡
建物面積 106.40㎡
学区 久木小学校、久木中学校
用途地域 第一種住居
建ぺい率 60%
容積率 200%
地目 宅地
駐車場 有り ビルトイン車庫 駐車場面積:14.9㎡
接道 西10m、南11.1m
権利 所有権
私道面積 無し
セットバック 無し
建物構造 木造
建物階数 3階
築年月 2025年05月
入居日 即時
都市計画 市街化区域
取引態様 仲介
物件番号 S00623-D
設備 公営水道、公共下水、ビルトインガレージ、駐車場1台、角地、都市近郊、南側道路面す、前道6m以上、市街地が近い、海まで2km以内、駅まで平坦、2沿線以上利用可、公園5分以内、コンビニ5分以内、システムキッチン、ガス3口、L型キッチン、浄水器、ユニットバス、追い焚き、浴室乾燥機、ウォシュレット、トイレ2ヶ所、浴室1坪以上、浴室に窓、暖房便座、浴室暖房、バルコニー、バルコニー2面、3階建以上、LDK15畳以上、省エネ給湯器、採光2面、採光3面、南向き、フローリング、全室フローリング、リビング階段、クローゼット、収納、床下収納、下駄箱、全居室収納、納戸、シャンプドレッサー付き、モニタ付きインターフォン、通風良好、陽当り良好、24時間換気システム、建物10年保証
建築確認番号 -
特記事項 景観法:有 宅地造成工事規制区域:有 日影制限:有 その他制限事項:居住誘導区域 建築基準法第22・23条区域 建物面積に車庫部分14.90平米含 景観法:有/宅地造成工事規制区域:有/日影制限:有/居住誘導区域 建築基準法第22・23条区域 建物面積に車庫部分14.90平米含。 /
備考 JR横須賀線「逗子」駅徒歩17分。緑豊かで、閑静な住環境。リビングで遊んでいる子どもたちを見守りながら、時にはおしゃべりしながらお料理や後片づけができる対面キッチン。ビルドインガレージ付き。

お気軽にどうぞ!

資料請求 現地見学 電話でお問い合わせ
0120-046-690

このエリアでお探しの方へ

値下げしました!今週末内覧会開催中!「逗子」駅利用 未入居中古一戸建て(A) 閑静な住宅地

横須賀線「逗子」駅 徒歩 17 分

逗子線「逗子・葉山」駅 徒歩 24 分

逗子市 久木9丁目

3,470万円

2SLDK

建物完成しました!今週末内覧会開催中!「逗子」駅利用 新築一戸建て(A)

横須賀線「逗子」駅 徒歩 17 分

逗子線「逗子・葉山」駅 徒歩 23 分

逗子市 久木9丁目

3,470万円

2SLDK

値下げしました!今週末内覧会開催中!「逗子」駅利用 未入居中古一戸建て(D) 角地

横須賀線「逗子」駅 徒歩 17 分

逗子線「逗子・葉山」駅 徒歩 24 分

逗子市 久木9丁目

3,490万円

3LDK

値下げしました!今週末内覧会開催中!「逗子」駅利用 未入居中古一戸建て(C) 閑静な住宅地

横須賀線「逗子」駅 徒歩 17 分

逗子線「逗子・葉山」駅 徒歩 24 分

逗子市 久木9丁目

3,590万円

3LDK

建物完成しました!今週末内覧会開催中!「逗子」駅利用 新築一戸建て(C)

横須賀線「逗子」駅 徒歩 17 分

逗子線「逗子・葉山」駅 徒歩 23 分

逗子市 久木9丁目

3,790万円

3LDK

値下げしました!今週末内覧会開催中!「東逗子」駅徒歩5分 新築一戸建て(1) 閑静な住環境

横須賀線「東逗子」駅 徒歩 5 分

横須賀線「逗子」駅 バス停「桜山四丁目」まで 徒歩 2 分 バス利用 6分

逗子市 桜山5丁目

5,280万円

4LDK

今週末モデルハウス見学会開催中!「東逗子」駅徒歩5分 新築一戸建て(3) 閑静な住環境

横須賀線「東逗子」駅 徒歩 5 分

横須賀線「逗子」駅 バス停「桜山四丁目」まで 徒歩 2 分 バス利用 6分

逗子市 桜山5丁目

5,980万円

2LDK+2S

お気軽にどうぞ!

資料請求 現地見学 電話でお問い合わせ
0120-046-690
来店予約