1. トップページ
  2. 値下げしました!今週末内覧会開催中!「東逗子」駅徒歩5分 新築一戸建て(1) 閑静な住環境

値下げしました!今週末内覧会開催中!「東逗子」駅徒歩5分 新築一戸建て(1) 閑静な住環境

価格
5,280万円
物件種別
新築一戸建て
間取り
4LDK
所在地
逗子市 桜山5丁目
交通
  • 横須賀線「東逗子」駅 徒歩 5 分
  • 横須賀線「逗子」駅 バス停「桜山四丁目」まで 徒歩 2 分 バス利用 6分
土地面積
95.71㎡
建物面積
109.70㎡
  • 前回情報更新日 2026.04.09
  • 次回情報更新予定日 2026.04.23
資料請求 現地見学 電話でお問い合わせ
0120-046-690
外観:窓枠から切り取られたまるで写真のような澄み切った光景。季節の移り変わりとともに、ゆっくりと愛でる時のありがたみ。
外観:窓枠から切り取られたまるで写真のような澄み切った光景。季節の移り変わりとともに、ゆっくりと愛でる時のありがたみ。
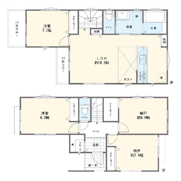
間取り:1号棟間取図
間取り:1号棟間取図
区画図
区画図
外観:閑静な住宅地に馴染む落ち着いた色合いの外観。長く愛着を持って頂きたいからこそ飽きのこないシンプルな色目に仕上げました。外壁には耐久性・防汚性に優れたサイディング材を使用しております!
外観:閑静な住宅地に馴染む落ち着いた色合いの外観。長く愛着を持って頂きたいからこそ飽きのこないシンプルな色目に仕上げました。外壁には耐久性・防汚性に優れたサイディング材を使用しております!
外観:◇前面道路の様子◇  閑静な車通りの少ない道路。お車の出し入れが苦手なママや小さなお子様にも安心ですね。車のすれ違いも問題なくできるので、ストレスなく運転できます!
外観:◇前面道路の様子◇ 閑静な車通りの少ない道路。お車の出し入れが苦手なママや小さなお子様にも安心ですね。車のすれ違いも問題なくできるので、ストレスなく運転できます!
外観:小学校までの距離は徒歩約3分。小さなお子様や女の子も無理なく安全に通えますね。お子様をいつも身近に感じられる安心の子育て環境です。
外観:小学校までの距離は徒歩約3分。小さなお子様や女の子も無理なく安全に通えますね。お子様をいつも身近に感じられる安心の子育て環境です。
外観:四季を通じて自然と触れ合えるスポットが周辺には盛りだくさん!お散歩やジョギング、週末のご家族での遊びに最適です。目の前に広がる開放感とゆとり、暮らしの夢を育む理想の住まいがここにはあります。
外観:四季を通じて自然と触れ合えるスポットが周辺には盛りだくさん!お散歩やジョギング、週末のご家族での遊びに最適です。目の前に広がる開放感とゆとり、暮らしの夢を育む理想の住まいがここにはあります。
外観:現地でこの周辺環境:と日当たりの良さを実感して下さい♪
外観:現地でこの周辺環境:と日当たりの良さを実感して下さい♪
周辺環境:逗子市立沼間小学校(逗子市立沼間小学校まで260m)
周辺環境:逗子市立沼間小学校(逗子市立沼間小学校まで260m)
周辺環境:逗子市立沼間中学校(逗子市立沼間中学校まで1400m)
周辺環境:逗子市立沼間中学校(逗子市立沼間中学校まで1400m)

この物件のココがオススメ!

JR「東逗子」駅から徒歩5分。通勤・通学に便利な立地。全室2面採光で明るく、通風良好。ご家族とのコミュニケーションが取りやすい対面キッチン・リビングイン階段。

こだわりポイント

  • 道路狭い(4メートル未満)
  • 省エネに配慮された建物
  • 子供の多い街に住む
  • LDKは1階に
  • 2階建て住宅限定
  • リビングイン階段
  • LDK15帖以上
  • 対面キッチン
  • 小学校10分以内
  • スーパー10分以内
  • コンビニ10分以内
  • 小児科医院10分以内
  • 保育園10分以内
  • 公園10分以内
  • 都市ガス

お気軽にどうぞ!

資料請求 現地見学 電話でお問い合わせ
0120-046-690

地図

申し訳ありません
こちらは会員限定機能です

会員登録で利用できる6つの便利機能

詳しく見る

お気軽にどうぞ!

資料請求 現地見学 電話でお問い合わせ
0120-046-690

頭金0万円・金利0.495%の場合

ボーナス時(年2回)お支払額

0

この物件の月々のお支払額

147,889

年収に対する返済比率

59

  • ※会員登録し、詳細情報を記入されますと、全ての物件で自動的に金額が表示され、大変便利です。
  • ※まだ会員登録をされていない方は、下記チェック欄をご記入ください。
  • ※上記計算は物件価格5,280万円+諸経費 8%込みの金額による結果となります。
  • ※返済金額はあくまでも目安です。

お客様の条件からシミュレーションするには?

会員登録
マイページから登録

金利

直接入力する

ボーナス払い(年2回)

返済年数

頭金

直接入力する

 万円(半角数字)

年収

 万円(半角数字)

約260m

小学校

周辺環境:逗子市立沼間小学校(逗子市立沼間小学校まで260m)

小学校

約260m

約1,400m

中学校

周辺環境:逗子市立沼間中学校(逗子市立沼間中学校まで1400m)

中学校

約1,400m

価格 5,280万円
物件種別 新築一戸建て
間取り 4LDK
所在地 逗子市 桜山5丁目
交通
  • 横須賀線「東逗子」駅 徒歩 5 分
  • 横須賀線「逗子」駅 バス停「桜山四丁目」まで 徒歩 2 分 バス利用 6分
土地面積 95.71㎡
建物面積 109.70㎡
学区 沼間小学校、沼間中学校
用途地域 第一種中高層住居専用
建ぺい率 60%
容積率 160%
地目 宅地
駐車場 有り カースペース
接道 北4m
権利 所有権
私道面積 有 14.53㎡ 1/2
セットバック 無し
建物構造 木造
建物階数 2階
築年月 2025年10月
入居日 即時
都市計画 市街化区域
取引態様 仲介
物件番号 47657-1
設備 公営水道、公共下水、緑豊かな住宅地、閑静な住宅地、スーパーが近い(10分以内)、2沿線以上利用可、小学校徒歩10分以内、コンビニ5分以内、システムキッチン、I型キッチン、ユニットバス、ウォシュレット、トイレ2ヶ所、浴室に窓、バルコニー、2階建、LDK15畳以上、採光2面、全室2面採光、フローリング、リビング階段、クローゼット、収納、床下収納、全居室収納、シャンプドレッサー付き、モニタ付きインターフォン、24時間換気システム、建物10年保証
建築確認番号 -
特記事項 不整形地 宅地造成工事規制区域 建築基準法第22条区域 私道通行承諾有 建物面積に車庫9.93平米含 不整形地:有/宅地造成工事規制区域:有/建築基準法第22条区域 私道通行承諾有 建物面積に車庫9.93平米含。 /
備考 JR「東逗子」駅から徒歩5分。通勤・通学に便利な立地。全室2面採光で明るく、通風良好。ご家族とのコミュニケーションが取りやすい対面キッチン・リビングイン階段。

お気軽にどうぞ!

資料請求 現地見学 電話でお問い合わせ
0120-046-690

このエリアでお探しの方へ

今週末モデルハウス見学会開催中!「大口」駅利用 新築一戸建て(3) 全室2面採光

横浜線「大口」駅 徒歩 19 分

京浜東北線「鶴見」駅 バス停「宝蔵院前」まで 徒歩 3 分 バス利用 12分

横浜市鶴見区 東寺尾1丁目

4,980万円

3SLDK

今週末モデルハウス見学会開催中!「大口」駅利用 新築一戸建て(5) 全室2面採光

横浜線「大口」駅 徒歩 19 分

京浜東北線「鶴見」駅 バス停「宝蔵院前」まで 徒歩 3 分 バス利用 12分

横浜市鶴見区 東寺尾1丁目

4,980万円

4LDK

今週末モデルハウス見学会開催中!「辻堂」駅利用 新築一戸建て(B)

東海道本線「辻堂」駅 徒歩 19 分

東海道本線「茅ヶ崎」駅 バス停「小和田」まで 徒歩 4 分 バス利用 9分

茅ヶ崎市 小和田1丁目

4,980万円

4LDK

建物完成しました!今週末内覧会開催中!「茅ヶ崎」駅利用 新築一戸建て(24)

東海道本線「茅ヶ崎」駅 バス停「菱沼」まで 徒歩 5 分 バス利用 7分

東海道本線「辻堂」駅 バス停「菱沼」まで 徒歩 5 分 バス利用 10分

茅ヶ崎市 松林1丁目

4,980万円

2LDK+2S

今週末モデルハウス見学会開催中!「長後」駅徒歩15分 新築一戸建て

江ノ島線「長後」駅 徒歩 15 分

いずみ野線「いずみ中央」駅 徒歩 17 分

藤沢市 高倉

4,980万円

2LDK+2S

今週末モデルハウス見学会開催中!「綱島」駅利用 新築一戸建て 小屋裏収納付

東急東横線「綱島」駅 徒歩 18 分

グリーンライン「高田」駅 徒歩 21 分

横浜市港北区 新吉田東5丁目

4,980万円

2SLDK

建物完成しました! 今週末内覧会開催中!「下永谷」駅利用 新築一戸建て 全室2面採光

ブルーライン「下永谷」駅 徒歩 19 分

横須賀線「東戸塚」駅 バス停「柏尾台住宅入口」まで 徒歩 5 分 バス利用 6分

横浜市港南区 下永谷5丁目

4,980万円

4LDK

建物完成しました! 今週末内覧会開催中!「屏風浦」駅徒歩7分 新築一戸建て 全室2面採光

京浜急行本線「屏風浦」駅 徒歩 7 分

ブルーライン「上大岡」駅 バス停「上大岡台」まで 徒歩 4 分 バス利用 9分

横浜市磯子区 森4丁目

4,980万円

3SLDK

建物完成しました!今週末内覧会開催中!「茅ヶ崎」駅利用 新築一戸建て(18)

東海道本線「茅ヶ崎」駅 バス停「菱沼」まで 徒歩 5 分 バス利用 7分

東海道本線「辻堂」駅 バス停「菱沼」まで 徒歩 5 分 バス利用 10分

茅ヶ崎市 松林1丁目

4,980万円

1SLDK

建物完成しました!今週末内覧会開催中!「茅ヶ崎」駅利用 新築一戸建て(17)

東海道本線「茅ヶ崎」駅 バス停「菱沼」まで 徒歩 5 分 バス利用 7分

東海道本線「辻堂」駅 バス停「菱沼」まで 徒歩 5 分 バス利用 10分

茅ヶ崎市 松林1丁目

4,980万円

1LDK+2S

建物完成しました! 今週末内覧会開催中!「山手」駅利用 新築一戸建て(2) 対面キッチン

根岸線「山手」駅 徒歩 25 分

みなとみらい線「元町・中華街」駅 バス停「東福院前」まで 徒歩 5 分 バス利用 22分

横浜市中区 本牧間門

4,980万円

2LDK+2S

建物完成しました! 今週末内覧会開催中!「戸塚」駅利用 新築一戸建て(A)カースペース2台

東海道本線「戸塚」駅 バス停「豊田中学校前」まで 徒歩 4 分 バス利用 12分

根岸線「本郷台」駅 バス停「長沼」まで 徒歩 8 分 バス利用 9分

横浜市戸塚区 下倉田町

4,980万円

3LDK

お気軽にどうぞ!

資料請求 現地見学 電話でお問い合わせ
0120-046-690
来店予約