1. トップページ
  2. 今週末モデルハウス見学会開催中「鵠沼海岸」駅徒歩5分 新築一戸建て

今週末モデルハウス見学会開催中「鵠沼海岸」駅徒歩5分 新築一戸建て

価格
7,790万円
物件種別
新築一戸建て
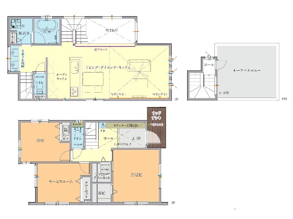
間取り
2SLDK
所在地
藤沢市 鵠沼海岸3丁目
交通
  • 江ノ島線「鵠沼海岸」駅 徒歩 5 分
  • 江ノ島電鉄線「鵠沼」駅 徒歩 22 分
土地面積
120.09㎡
建物面積
97.50㎡
  • 前回情報更新日 2026.04.05
  • 次回情報更新予定日 2026.04.19
資料請求 現地見学 電話でお問い合わせ
0120-046-690
外観:閑静な住宅地で子育て家族にピッタリ。緑の潤いを感じながらホッと生活できそう。
外観:閑静な住宅地で子育て家族にピッタリ。緑の潤いを感じながらホッと生活できそう。
間取り
間取り
区画図
区画図
外観
外観
外観
外観
外観
外観
外観
外観

この物件のココがオススメ!

小田急江ノ島線「鵠沼海岸」駅徒歩5分。緑豊かで閑静な住環境。海まで600m徒歩約8分。カースペース2台。全居室収納やウォークインクローゼット、ファミリークローゼットなど、荷物が多くても安心ですね。ルーフバルコニーは富士山が見え、LDK20帖は、ゆったりとした家族の時間が過ごせますね。

こだわりポイント

  • 海が近い家
  • サーファーに嬉しい家
  • 耐震に配慮された建物
  • 断熱に配慮された建物
  • 省エネに配慮された建物
  • 食器洗い洗浄乾燥機
  • 浴室換気乾燥暖房機
  • 大人の二人暮らし
  • スカイバルコニー
  • ウォークインクローゼット
  • リビングイン階段
  • LDKは2階に
  • LDK20帖以上
  • 吹き抜け有り
  • 広々バルコニー
  • 対面キッチン
  • 浴室1坪以上
  • 小学校10分以内
  • スーパー10分以内
  • コンビニ10分以内
  • 保育園10分以内
  • 幼稚園10分以内
  • 公園10分以内
  • 都市ガス
  • フラット35利用可
  • カースペース2台

お気軽にどうぞ!

資料請求 現地見学 電話でお問い合わせ
0120-046-690

地図

申し訳ありません
こちらは会員限定機能です

会員登録で利用できる6つの便利機能

詳しく見る

お気軽にどうぞ!

資料請求 現地見学 電話でお問い合わせ
0120-046-690

頭金0万円・金利0.495%の場合

ボーナス時(年2回)お支払額

0

この物件の月々のお支払額

218,203

年収に対する返済比率

87

  • ※会員登録し、詳細情報を記入されますと、全ての物件で自動的に金額が表示され、大変便利です。
  • ※まだ会員登録をされていない方は、下記チェック欄をご記入ください。
  • ※上記計算は物件価格7,790万円+諸経費 8%込みの金額による結果となります。
  • ※返済金額はあくまでも目安です。

お客様の条件からシミュレーションするには?

会員登録
マイページから登録

金利

直接入力する

ボーナス払い(年2回)

返済年数

頭金

直接入力する

 万円(半角数字)

年収

 万円(半角数字)
価格 7,790万円
物件種別 新築一戸建て
間取り 2SLDK
所在地 藤沢市 鵠沼海岸3丁目
交通
  • 江ノ島線「鵠沼海岸」駅 徒歩 5 分
  • 江ノ島電鉄線「鵠沼」駅 徒歩 22 分
土地面積 120.09㎡
建物面積 97.50㎡
学区 鵠南小学校、湘洋中学校
用途地域 第一種低層住居専用
建ぺい率 50%
容積率 80%
地目 宅地
駐車場 有り カースペース
接道 南東4.5m
権利 所有権
私道面積 無し
セットバック 無し
建物構造 木造
建物階数 2階
築年月 2026年06月
入居日 2026年07月
都市計画 市街化区域
取引態様 仲介
物件番号 S00433-2
設備 公営水道、公共下水、吹き抜け、省エネルギー対策、耐震構造、BELS/省エネ基準適合認定書あり、耐震・制震・免震、駐車場2台以上、緑豊かな住宅地、閑静な住宅地、海まで2km以内、スーパーが近い(10分以内)、小学校徒歩10分以内、コンビニ5分以内、システムキッチン、ガス3口、食器洗い機付き、浄水器、I型キッチン、ユニットバス、追い焚き、浴室乾燥機、ウォシュレット、トイレ2ヶ所、浴室1坪以上、浴室に窓、暖房便座、セカンド洗面台、浴室暖房、バルコニー、ルーフバルコニー、2階建、LDK20畳以上、全室2面採光、フローリング、リビング階段、クローゼット、収納、床下収納、下駄箱、全居室収納、洗面室収納、シャンプドレッサー付き、洗面ボウル2ヶ所、24時間換気システム、建物10年保証、電動シャッター
建築確認番号 第2025確認建築静建住ま11461号
特記事項 不整形地:有 景観法:有 宅地造成工事規制区域:有 日影制限:有 高さ限度:有 その他制限事項:藤沢市緑の保全及び緑化の推進に関する条例 洪水浸水想定区域 津波災害警戒区域 建築基準法第22条区域 建物面積にペントハウス面積約0.88平米含 建物面積に備蓄倉庫部分面積約1.86平米含 フラット35利用の場合、適合証明書取得費用がかかります(約11万円) 不整形地:有/景観法:有/宅地造成工事規制区域:有/日影制限:有/高さ限度:有/藤沢市緑の保全及び緑化の推進に関する条例 洪水浸水想定区域 津波災害警戒区域 建築基準法第22条区域 建物面積にペントハウス面積約0.88平米含 建物面積に備蓄倉庫部分面積約1.86平米含 フラット35利用の場合、適合証明書取得費用がかかります(11万円)。 /
備考 小田急江ノ島線「鵠沼海岸」駅徒歩5分。緑豊かで閑静な住環境。海まで600m徒歩約8分。カースペース2台。全居室収納やウォークインクローゼット、ファミリークローゼットなど、荷物が多くても安心ですね。ルーフバルコニーは富士山が見え、LDK20帖は、ゆったりとした家族の時間が過ごせますね。

お気軽にどうぞ!

資料請求 現地見学 電話でお問い合わせ
0120-046-690

このエリアでお探しの方へ

建物完成しました!今週末内覧会開催中!「辻堂」駅徒歩11分 新築一戸建て(B) 床暖房

東海道本線「辻堂」駅 徒歩 11 分

江ノ島電鉄線「藤沢」駅 バス停「新町二丁目」まで 徒歩 6 分 バス利用 13分

藤沢市 辻堂元町2丁目

7,490万円

4LDK

今週末モデルハウス見学会開催中!「本鵠沼」駅徒歩9分 新築一戸建て(1) 全室収納

江ノ島線「本鵠沼」駅 徒歩 9 分

江ノ島電鉄線「石上」駅 徒歩 22 分

藤沢市 本鵠沼4丁目

7,490万円

2SLDK

今週末モデルハウス見学会開催中!「湘南海岸公園」駅徒歩3分 新築一戸建て(1) リネン棚

江ノ島電鉄線「湘南海岸公園」駅 徒歩 3 分

湘南モノレール「湘南江の島」駅 徒歩 10 分

藤沢市 片瀬4丁目

7,790万円

3LDK

今週末モデルハウス見学会開催中!「辻堂」駅徒歩6分 新築一戸建て(B)

東海道本線「辻堂」駅 徒歩 6 分

湘南新宿高「辻堂」駅 バス停「熊の森」まで 徒歩 3 分 バス利用 2分

藤沢市 辻堂1丁目

7,880万円

3SLDK

建物完成しました!今週末内覧会開催中!「湘南海岸公園」駅徒歩4分 新築一戸建て完成(2)

江ノ島電鉄線「湘南海岸公園」駅 徒歩 4 分

江ノ島線「片瀬江ノ島」駅 徒歩 14 分

藤沢市 片瀬4丁目

7,898万円

4LDK

建物完成しました!今週末内覧会開催中!「湘南海岸公園」駅徒歩4分 新築一戸建て完成(1)

江ノ島電鉄線「湘南海岸公園」駅 徒歩 4 分

江ノ島線「片瀬江ノ島」駅 徒歩 14 分

藤沢市 片瀬4丁目

7,898万円

3LDK

今週末モデルハウス見学会開催中!「辻堂」駅徒歩6分 新築一戸建て(A)

東海道本線「辻堂」駅 徒歩 6 分

湘南新宿高「辻堂」駅 バス停「熊の森」まで 徒歩 3 分 バス利用 2分

藤沢市 辻堂1丁目

7,980万円

2SLDK

今週末モデルハウス見学会開催中!「鵠沼海岸」駅徒歩15分 新築一戸建て(4)

江ノ島線「鵠沼海岸」駅 徒歩 15 分

東海道本線「藤沢」駅 バス停「鵠沼運動公園前」まで 徒歩 6 分 バス利用 9分

藤沢市 辻堂太平台1丁目

5,590万円

4LDK

完成しました!今週末、建物見学会開催中!「鵠沼海岸」駅徒徒歩9分 新築一戸建て(2)

江ノ島線「鵠沼海岸」駅 徒歩 9 分

江ノ島電鉄線「鵠沼」駅 徒歩 10 分

藤沢市 鵠沼松が岡3丁目

5,899万円

3LDK

今週末モデルハウス見学会開催中!「鵠沼海岸」駅徒歩15分 新築一戸建て(5)

江ノ島線「鵠沼海岸」駅 徒歩 15 分

東海道本線「藤沢」駅 バス停「鵠沼運動公園前」まで 徒歩 6 分 バス利用 9分

藤沢市 辻堂太平台1丁目

5,990万円

4LDK

今週末モデルハウス見学会開催中!「鵠沼海岸」駅徒歩15分 新築一戸建て(1)

江ノ島線「鵠沼海岸」駅 徒歩 15 分

東海道本線「藤沢」駅 バス停「鵠沼運動公園前」まで 徒歩 6 分 バス利用 9分

藤沢市 辻堂太平台1丁目

6,090万円

4LDK

今週末モデルハウス見学会開催中!「鵠沼海岸」駅徒歩10分 新築一戸建て(1)

江ノ島線「鵠沼海岸」駅 徒歩 10 分

江ノ島線「本鵠沼」駅 徒歩 11 分

藤沢市 鵠沼海岸7丁目

6,298万円

3LDK

お気軽にどうぞ!

資料請求 現地見学 電話でお問い合わせ
0120-046-690
来店予約