1. トップページ
  2. 今週末モデルハウス見学会開催中!「茅ヶ崎」駅利用 新築一戸建て(A)

今週末モデルハウス見学会開催中!「茅ヶ崎」駅利用 新築一戸建て(A)

価格
3,490万円
物件種別
新築一戸建て
間取り
4LDK
所在地
茅ヶ崎市 柳島1丁目
交通
  • 東海道本線「茅ヶ崎」駅 バス停「柳島」まで 徒歩 4 分 バス利用 8分
  • 湘南新宿高「平塚」駅 バス停「町屋」まで 徒歩 16 分 バス利用 12分
土地面積
103.41㎡
建物面積
86.52㎡
  • 前回情報更新日 2026.01.22
  • 次回情報更新予定日 2026.02.05
資料請求 現地見学 電話でお問い合わせ
0120-046-690
外観:閑静な住宅地で子育て家族にピッタリ。緑の潤いを感じながらホッと生活できそう。
外観:閑静な住宅地で子育て家族にピッタリ。緑の潤いを感じながらホッと生活できそう。
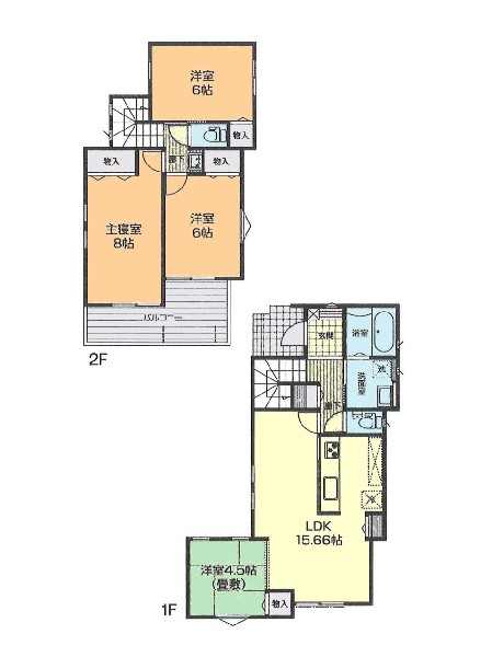
間取り:A号棟間取図
間取り:A号棟間取図
区画図
区画図
外観:大切なご家族が集まるLDKはこだわりたいですね!休日はおひさまの光をたっぷりと取りこめるリビングでゆったりと過ごしませんか?子供たちが元気に笑いながら走り回っている姿が目に浮かぶ空間です。
外観:大切なご家族が集まるLDKはこだわりたいですね!休日はおひさまの光をたっぷりと取りこめるリビングでゆったりと過ごしませんか?子供たちが元気に笑いながら走り回っている姿が目に浮かぶ空間です。
外観
外観
外観
外観
外観
外観
外観
外観
外観
外観
外観:白いクロスと窓サッシにナチュラルな明るめのフローリングでコーディネートしました!どんな家具にも映える飽きのこない仕様です!
外観:白いクロスと窓サッシにナチュラルな明るめのフローリングでコーディネートしました!どんな家具にも映える飽きのこない仕様です!
外観
外観
外観
外観
外観
外観
外観
外観
外観
外観

この物件のココがオススメ!

JR東海道本線「茅ヶ崎」駅利用。緑豊かで、閑静な住環境。 リビングで遊んでいる子どもたちを見守りながら、時にはおしゃべりしながらお料理や後片づけができる対面キッチン。環境性能・省エネ性能に優れたガス給湯器ecoジョーズ

こだわりポイント

  • 敷地延長(旗竿地)
  • 耐震に配慮された建物
  • 省エネに配慮された建物
  • 浴室換気乾燥暖房機
  • 運転ラクラク生活
  • LDKは1階に
  • リビングイン階段
  • LDK18帖以上
  • 対面キッチン
  • 浴室1坪以上
  • 小学校10分以内
  • 有料道路インター2キロ以内
  • 大型商業施設15分以内
  • スーパー10分以内
  • コンビニ10分以内
  • 小児科医院10分以内
  • 保育園10分以内
  • 幼稚園10分以内
  • 公園10分以内
  • 都市ガス
  • フラット35利用可
  • カースペース2台
  • 道路広々(5m以上)
  • 整形地

お気軽にどうぞ!

資料請求 現地見学 電話でお問い合わせ
0120-046-690

地図

申し訳ありません
こちらは会員限定機能です

会員登録で利用できる6つの便利機能

詳しく見る

お気軽にどうぞ!

資料請求 現地見学 電話でお問い合わせ
0120-046-690

頭金0万円・金利0.495%の場合

ボーナス時(年2回)お支払額

0

この物件の月々のお支払額

97,754

年収に対する返済比率

39

  • ※会員登録し、詳細情報を記入されますと、全ての物件で自動的に金額が表示され、大変便利です。
  • ※まだ会員登録をされていない方は、下記チェック欄をご記入ください。
  • ※上記計算は物件価格3,490万円+諸経費 8%込みの金額による結果となります。
  • ※返済金額はあくまでも目安です。

お客様の条件からシミュレーションするには?

会員登録
マイページから登録

金利

直接入力する

ボーナス払い(年2回)

返済年数

頭金

直接入力する

 万円(半角数字)

年収

 万円(半角数字)
価格 3,490万円
物件種別 新築一戸建て
間取り 4LDK
所在地 茅ヶ崎市 柳島1丁目
交通
  • 東海道本線「茅ヶ崎」駅 バス停「柳島」まで 徒歩 4 分 バス利用 8分
  • 湘南新宿高「平塚」駅 バス停「町屋」まで 徒歩 16 分 バス利用 12分
土地面積 103.41㎡
建物面積 86.52㎡
学区 柳島小学校、中島中学校
用途地域 第一種中高層住居専用
建ぺい率 60%
容積率 200%
地目 宅地
駐車場 有り カースペース
接道 西6.5m
権利 所有権
私道面積 無し
セットバック 無し
建物構造 木造
建物階数 2階
築年月 2025年09月
入居日 即時
都市計画 市街化区域
取引態様 仲介
物件番号 S00426-A
設備 公営水道、公共下水、設計住宅性能評価付、省エネルギー対策、外壁サイディング、フラット35・S適合証明書、耐震・制震・免震、駐車場2台以上、緑豊かな住宅地、閑静な住宅地、前道6m以上、スーパーが近い(10分以内)、小学校徒歩10分以内、コンビニ5分以内、システムキッチン、ガス3口、浄水器、ユニットバス、追い焚き、浴室乾燥機、ウォシュレット、トイレ2ヶ所、浴室に窓、暖房便座、浴室暖房、バルコニー、2階建、LDK18畳以上、省エネ給湯器、採光2面、採光3面、フローリング、リビング階段、クローゼット、収納、床下収納、下駄箱、全居室収納、シャンプドレッサー付き、フラット35Sに対応、モニタ付きインターフォン、全居室複層ガラスか複層サッシ、24時間換気システム、建物10年保証
建築確認番号 第HPA-25-05389-1号
特記事項 不整形地:有 宅地造成工事規制区域:有 高度地区:有 準防火地域:有 日影制限:有 高さ限度:有 その他制限事項:敷地面積に路地状部分面積約30.4平米含む  不整形地:有/宅地造成工事規制区域:有/高度地区:有/準防火地域:有/日影制限:有/高さ限度:有/敷地面積に路地状部分面積約30.4平米含む。 /
備考 JR東海道本線「茅ヶ崎」駅利用。緑豊かで、閑静な住環境。 リビングで遊んでいる子どもたちを見守りながら、時にはおしゃべりしながらお料理や後片づけができる対面キッチン。環境性能・省エネ性能に優れたガス給湯器ecoジョーズ

お気軽にどうぞ!

資料請求 現地見学 電話でお問い合わせ
0120-046-690

このエリアでお探しの方へ

今週末モデルハウス見学会開催中!「茅ヶ崎」駅利用 新築一戸建て (C)

東海道本線「茅ヶ崎」駅 バス停「町屋」まで 徒歩 9 分 バス利用 7分

東海道本線「平塚」駅 バス停「町屋」まで 徒歩 9 分 バス利用 12分

茅ヶ崎市 下町屋2丁目

3,290万円

3SLDK

建物完成しました!今週末内覧会開催中!「茅ヶ崎」駅利用 未入居一戸建て(12)

東海道本線「茅ヶ崎」駅 バス停「浜見平団地」まで 徒歩 3 分 バス利用 9分

湘南新宿高「平塚」駅 バス停「町屋」まで 徒歩 15 分 バス利用 12分

茅ヶ崎市 柳島1丁目

3,380万円

3LDK

建物完成しました!今週末内覧会開催中!「茅ヶ崎」駅利用 新築一戸建て

東海道本線「茅ヶ崎」駅 バス停「柳島」まで 徒歩 5 分 バス利用 8分

湘南新宿高「平塚」駅 バス停「町屋」まで 徒歩 12 分 バス利用 12分

茅ヶ崎市 柳島1丁目

3,480万円

4LDK

今週末モデルハウス見学会開催中!「茅ヶ崎」駅利用 新築一戸建て(C)

東海道本線「茅ヶ崎」駅 バス停「柳島」まで 徒歩 4 分 バス利用 8分

湘南新宿高「平塚」駅 バス停「町屋」まで 徒歩 16 分 バス利用 12分

茅ヶ崎市 柳島1丁目

3,590万円

3LDK

建物完成しました!今週末内覧会開催中!「茅ヶ崎」駅利用 未入居一戸建て(6)

東海道本線「茅ヶ崎」駅 バス停「今宿」まで 徒歩 5 分 バス利用 7分

湘南新宿高「平塚」駅 バス停「今宿」まで 徒歩 5 分 バス利用 10分

茅ヶ崎市 今宿

3,690万円

4LDK

建物完成しました!今週末内覧会開催中!「茅ヶ崎」駅利用 未入居一戸建て(4)

東海道本線「茅ヶ崎」駅 バス停「今宿」まで 徒歩 5 分 バス利用 7分

湘南新宿高「平塚」駅 バス停「今宿」まで 徒歩 5 分 バス利用 10分

茅ヶ崎市 今宿

3,690万円

4LDK

今週末モデルハウス見学会開催中!「茅ヶ崎」駅利用 新築一戸建て(3)

東海道本線「茅ヶ崎」駅 バス停「辻東」まで 徒歩 5 分 バス利用 10分

湘南新宿高「平塚」駅 バス停「今宿」まで 徒歩 13 分 バス利用 10分

茅ヶ崎市 今宿

3,780万円

2LDK+2S

今週末モデルハウス見学会開催中!「茅ヶ崎」駅利用 新築一戸建て(2)

東海道本線「茅ヶ崎」駅 バス停「今宿」まで 徒歩 6 分 バス利用 9分

湘南新宿高「平塚」駅 バス停「今宿」まで 徒歩 6 分 バス利用 10分

茅ヶ崎市 今宿

3,790万円

4LDK

今週末モデルハウス見学会開催中!「茅ヶ崎」駅利用 新築一戸建て (D)

東海道本線「茅ヶ崎」駅 バス停「町屋」まで 徒歩 9 分 バス利用 7分

東海道本線「平塚」駅 バス停「町屋」まで 徒歩 9 分 バス利用 12分

茅ヶ崎市 下町屋2丁目

3,790万円

3SLDK

建物完成しました!今週末内覧会開催中!「茅ヶ崎」駅利用 新築一戸建て(3)

東海道本線「茅ヶ崎」駅 バス停「今宿」まで 徒歩 4 分 バス利用 7分

湘南新宿高「平塚」駅 バス停「中島」まで 徒歩 4 分 バス利用 8分

茅ヶ崎市 今宿

3,790万円

2LDK+2S

建物完成しました!今週末内覧会開催中!「茅ヶ崎」駅利用 新築一戸建て(2)

東海道本線「茅ヶ崎」駅 バス停「今宿」まで 徒歩 4 分 バス利用 7分

湘南新宿高「平塚」駅 バス停「中島」まで 徒歩 4 分 バス利用 8分

茅ヶ崎市 今宿

3,790万円

4LDK

建物完成しました!今週末内覧会開催中!「茅ヶ崎」駅利用 未入居一戸建て(8)

東海道本線「茅ヶ崎」駅 バス停「辻西」まで 徒歩 1 分 バス利用 18分

相模線「寒川」駅 バス停「辻西」まで 徒歩 1 分 バス利用 12分

茅ヶ崎市 萩園

3,480万円

2SLDK

お気軽にどうぞ!

資料請求 現地見学 電話でお問い合わせ
0120-046-690
来店予約