1. トップページ
  2. 建物完成しました!今週末内覧会開催中!「茅ヶ崎」駅利用 新築一戸建て(4)

建物完成しました!今週末内覧会開催中!「茅ヶ崎」駅利用 新築一戸建て(4)

価格
3,890万円
物件種別
新築一戸建て
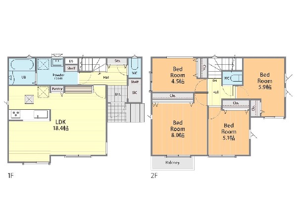
間取り
4LDK
所在地
茅ヶ崎市 今宿
交通
  • 東海道本線「茅ヶ崎」駅 バス停「今宿」まで 徒歩 4 分 バス利用 7分
  • 湘南新宿高「平塚」駅 バス停「中島」まで 徒歩 4 分 バス利用 8分
土地面積
98.87㎡
建物面積
97.91㎡
  • 前回情報更新日 2026.02.07
  • 次回情報更新予定日 2026.02.21
資料請求 現地見学 電話でお問い合わせ
0120-046-690
外観:心踊る日常と守られている安心感 どのライフステージでも快適に暮らすことができる住空間です。
外観:心踊る日常と守られている安心感 どのライフステージでも快適に暮らすことができる住空間です。
間取り
間取り
区画図
区画図
ソファを置いてゆったり寛げる広さのリビングは、ご家族の憩いの場にぴったり!
ソファを置いてゆったり寛げる広さのリビングは、ご家族の憩いの場にぴったり!
外観
外観

この物件のココがオススメ!

複数路線が乗り入れる「茅ヶ崎」駅利用。緑豊かで、閑静な住環境。18帖LDKは、ご家族との会話が弾む対面キッチン。玄関に隣接のSICは、ベビーカーやゴルフバッグ等の収納に便利ですね。

こだわりポイント

  • プロパンガス
  • 省エネに配慮された建物
  • 浴室換気乾燥暖房機
  • LDKは1階に
  • LDK18帖以上
  • 主寝室 8帖以上
  • 対面キッチン
  • 浴室1坪以上
  • パントリー
  • 小学校10分以内
  • 有料道路インター2キロ以内
  • コンビニ10分以内
  • 保育園10分以内
  • 公園10分以内
  • フラット35利用可
  • カースペース2台

お気軽にどうぞ!

資料請求 現地見学 電話でお問い合わせ
0120-046-690

地図

申し訳ありません
こちらは会員限定機能です

会員登録で利用できる6つの便利機能

詳しく見る

お気軽にどうぞ!

資料請求 現地見学 電話でお問い合わせ
0120-046-690

頭金0万円・金利0.495%の場合

ボーナス時(年2回)お支払額

0

この物件の月々のお支払額

108,959

年収に対する返済比率

44

  • ※会員登録し、詳細情報を記入されますと、全ての物件で自動的に金額が表示され、大変便利です。
  • ※まだ会員登録をされていない方は、下記チェック欄をご記入ください。
  • ※上記計算は物件価格3,890万円+諸経費 8%込みの金額による結果となります。
  • ※返済金額はあくまでも目安です。

お客様の条件からシミュレーションするには?

会員登録
マイページから登録

金利

直接入力する

ボーナス払い(年2回)

返済年数

頭金

直接入力する

 万円(半角数字)

年収

 万円(半角数字)
価格 3,890万円
物件種別 新築一戸建て
間取り 4LDK
所在地 茅ヶ崎市 今宿
交通
  • 東海道本線「茅ヶ崎」駅 バス停「今宿」まで 徒歩 4 分 バス利用 7分
  • 湘南新宿高「平塚」駅 バス停「中島」まで 徒歩 4 分 バス利用 8分
土地面積 98.87㎡
建物面積 97.91㎡
学区 今宿小学校、萩園中学校
用途地域 第一種中高層住居専用
建ぺい率 60%
容積率 200%
地目 宅地
駐車場 有り カースペース
接道 東4m
権利 所有権
私道面積 無し
セットバック 無し
建物構造 木造
建物階数 2階
築年月 2025年12月
入居日 即時
都市計画 市街化区域
取引態様 仲介
物件番号 S00695-4
設備 個別LPG、公共下水、個別浄化槽、省エネルギー対策、フラット35・S適合証明書、BELS/省エネ基準適合認定書あり、駐車場2台以上、緑豊かな住宅地、閑静な住宅地、小学校徒歩10分以内、保育施設・幼稚園5分以内、公園5分以内、コンビニ5分以内、システムキッチン、ガス3口、浄水器、I型キッチン、パントリー(食器・食品の収納庫)、ユニットバス、追い焚き、浴室乾燥機、ウォシュレット、トイレ2ヶ所、浴室1坪以上、浴室に窓、暖房便座、浴室暖房、バルコニー、南面バルコニー、2階建、LDK18畳以上、採光2面、南向き、全室2面採光、フローリング、全室フローリング、クローゼット、収納、床下収納、下駄箱、全居室収納、シャンプドレッサー付き、24時間換気システム、建物10年保証
建築確認番号 第2025SBC‐確00723H号
特記事項 不整形地:有 宅地造成工事規制区域:有 高度地区:有 準防火地域:有 日影制限:有 敷地内段差:有 高さ限度:有 その他制限事項:フラット35利用の場合、適合証明書取得費用がかかります(13.2万円) 不整形地:有/宅地造成工事規制区域:有/高度地区:有/準防火地域:有/日影制限:有/敷地内段差:有/高さ限度:有/フラット35利用の場合、適合証明書取得費用がかかります(13.2万円)。 /
備考 複数路線が乗り入れる「茅ヶ崎」駅利用。緑豊かで、閑静な住環境。18帖LDKは、ご家族との会話が弾む対面キッチン。玄関に隣接のSICは、ベビーカーやゴルフバッグ等の収納に便利ですね。

お気軽にどうぞ!

資料請求 現地見学 電話でお問い合わせ
0120-046-690

このエリアでお探しの方へ

今週末モデルハウス見学会開催中!「茅ヶ崎」駅利用 新築一戸建て(C)

東海道本線「茅ヶ崎」駅 バス停「柳島」まで 徒歩 4 分 バス利用 8分

湘南新宿高「平塚」駅 バス停「町屋」まで 徒歩 16 分 バス利用 12分

茅ヶ崎市 柳島1丁目

3,590万円

3LDK

建物完成しました!今週末内覧会開催中!「茅ヶ崎」駅利用 新築一戸建て(3)

東海道本線「茅ヶ崎」駅 バス停「今宿」まで 徒歩 4 分 バス利用 7分

湘南新宿高「平塚」駅 バス停「中島」まで 徒歩 4 分 バス利用 8分

茅ヶ崎市 今宿

3,590万円

2LDK+2S

建物完成しました!今週末内覧会開催中!「茅ヶ崎」駅利用 新築一戸建て(2)

東海道本線「茅ヶ崎」駅 バス停「今宿」まで 徒歩 4 分 バス利用 7分

湘南新宿高「平塚」駅 バス停「中島」まで 徒歩 4 分 バス利用 8分

茅ヶ崎市 今宿

3,590万円

4LDK

建物完成しました!今週末内覧会開催中!「茅ヶ崎」駅利用 未入居一戸建て(6)

東海道本線「茅ヶ崎」駅 バス停「今宿」まで 徒歩 5 分 バス利用 7分

湘南新宿高「平塚」駅 バス停「今宿」まで 徒歩 5 分 バス利用 10分

茅ヶ崎市 今宿

3,690万円

4LDK

建物完成しました!今週末内覧会開催中!「茅ヶ崎」駅利用 未入居一戸建て(4)

東海道本線「茅ヶ崎」駅 バス停「今宿」まで 徒歩 5 分 バス利用 7分

湘南新宿高「平塚」駅 バス停「今宿」まで 徒歩 5 分 バス利用 10分

茅ヶ崎市 今宿

3,690万円

4LDK

今週末モデルハウス見学会開催中!「茅ヶ崎」駅利用 新築一戸建て(2)

東海道本線「茅ヶ崎」駅 バス停「今宿」まで 徒歩 6 分 バス利用 9分

湘南新宿高「平塚」駅 バス停「今宿」まで 徒歩 6 分 バス利用 10分

茅ヶ崎市 今宿

3,790万円

4LDK

今週末、建物見学会開催!「茅ヶ崎」駅利用 新築一戸建て(2)

東海道本線「茅ヶ崎」駅 バス停「柳島」まで 徒歩 6 分 バス利用 11分

湘南新宿高「平塚」駅 バス停「中島」まで 徒歩 14 分 バス利用 8分

茅ヶ崎市 柳島2丁目

3,880万円

2LDK+2S

今週末モデルハウス見学会開催中!「茅ヶ崎」駅利用 新築一戸建て(B)

東海道本線「茅ヶ崎」駅 バス停「古川」まで 徒歩 4 分 バス利用 12分

湘南新宿高「平塚」駅 バス停「中島」まで 徒歩 7 分 バス利用 8分

茅ヶ崎市 今宿

3,980万円

2SLDK

今週末モデルハウス見学会開催中!「茅ヶ崎」駅利用 新築一戸建て(C)

東海道本線「茅ヶ崎」駅 バス停「古川」まで 徒歩 4 分 バス利用 12分

湘南新宿高「平塚」駅 バス停「中島」まで 徒歩 7 分 バス利用 8分

茅ヶ崎市 今宿

3,980万円

1LDK+2S

建物完成しました!今週末内覧会開催中!「茅ヶ崎」駅利用 新築一戸建て(1)

東海道本線「茅ヶ崎」駅 バス停「今宿」まで 徒歩 4 分 バス利用 7分

湘南新宿高「平塚」駅 バス停「中島」まで 徒歩 4 分 バス利用 8分

茅ヶ崎市 今宿

3,990万円

4LDK

今週末モデルハウス見学会開催中!「茅ヶ崎」駅利用 新築一戸建て (2)

東海道本線「茅ヶ崎」駅 バス停「堤坂下」まで 徒歩 5 分 バス利用 16分

江ノ島線「湘南台」駅 バス停「堤坂下」まで 徒歩 5 分 バス利用 21分

茅ヶ崎市 堤

3,680万円

3LDK

今週末モデルハウス見学会開催中!「香川」駅徒歩13分 新築一戸建て(2)

相模線「香川」駅 徒歩 13 分

東海道本線「茅ヶ崎」駅 バス停「香川小学校入口」まで 徒歩 1 分 バス利用 11分

茅ヶ崎市 香川1丁目

3,680万円

3LDK

お気軽にどうぞ!

資料請求 現地見学 電話でお問い合わせ
0120-046-690
来店予約