1. トップページ
  2. 川崎市宮前区南野川1丁目 新築一戸建 5280万円 4号棟

川崎市宮前区南野川1丁目 新築一戸建 5280万円 4号棟

価格
5,280万円
物件種別
新築一戸建て
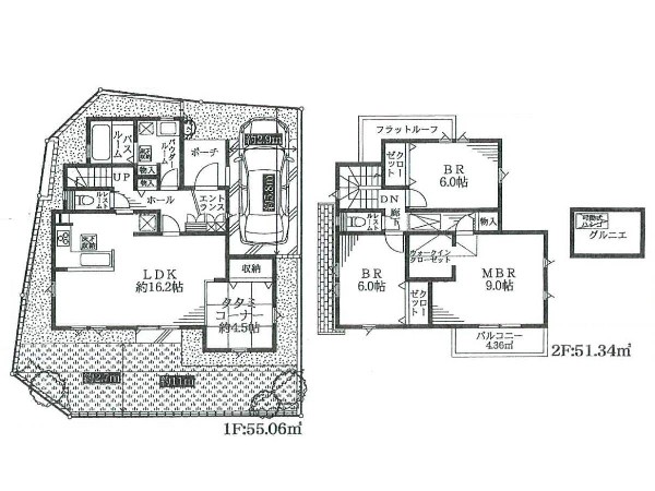
間取り
3LDK
所在地
川崎市宮前区 南野川1丁目
交通
  • 田園都市線「鷺沼」駅 バス停「野川台西口」まで 徒歩 5 分 バス利用 8分
  • 南武線「武蔵中原」駅 バス停「野川台公園前」まで 徒歩 5 分 バス利用 20分
土地面積
145.00㎡
建物面積
103.50㎡
  • 前回情報更新日 2025.11.28
  • 次回情報更新予定日 2025.12.12
資料請求 現地見学 電話でお問い合わせ
0120-046-690
間取り
間取り
区画図
区画図
周辺環境:南野川小学校(自然豊かな地域にある小学校です。 元気な挨拶 明るい笑顔 南野川っ子は毎日輝いています。)
周辺環境:南野川小学校(自然豊かな地域にある小学校です。 元気な挨拶 明るい笑顔 南野川っ子は毎日輝いています。)
周辺環境:野川中学校(自己の将来を思慮しながら、自主的、創造的に活動する生徒の育成を目指します。)
周辺環境:野川中学校(自己の将来を思慮しながら、自主的、創造的に活動する生徒の育成を目指します。)
周辺環境:ライフ東有馬店(食べ盛りのお子様がいるご家庭の強い味方、魅力の量・価格のスーパーが近くにあると、とても心強いですね。)
周辺環境:ライフ東有馬店(食べ盛りのお子様がいるご家庭の強い味方、魅力の量・価格のスーパーが近くにあると、とても心強いですね。)
周辺環境:ファミリーマート東有馬二丁目店(ファミチキをはじめスナックメニューも大人気です。)
周辺環境:ファミリーマート東有馬二丁目店(ファミチキをはじめスナックメニューも大人気です。)
周辺環境:野川第一公園(青空の下で駆け回ったり、遊具で遊んだり、思い思いの遊びができます。子供たちの元気で楽しそうな声が響き渡ります。)
周辺環境:野川第一公園(青空の下で駆け回ったり、遊具で遊んだり、思い思いの遊びができます。子供たちの元気で楽しそうな声が響き渡ります。)
周辺環境:こども元気!内科クリニック(おしゃれで楽しい小児科クリニックです。隣に専用の健診・ワクチンセンターを併設しております。)
周辺環境:こども元気!内科クリニック(おしゃれで楽しい小児科クリニックです。隣に専用の健診・ワクチンセンターを併設しております。)

この物件のココがオススメ!

「鷺沼」駅利用 タタミコーナーのある居心地よいリビング 南側に広いお庭があり陽当たり良好です

こだわりポイント

  • 外食を楽しめる生活
  • 広い庭のある暮らし
  • LDKは1階に
  • 2階建て住宅限定
  • ウォークインクローゼット
  • LDK20帖以上
  • 主寝室 8帖以上
  • 対面キッチン
  • ロフト・小屋裏収納
  • スーパー10分以内
  • コンビニ10分以内
  • 小児科医院10分以内
  • 保育園10分以内
  • 幼稚園10分以内
  • 公園10分以内
  • 都市ガス
  • 5棟以上の分譲地
  • 隣家との間隔たっぷり
  • 道路広々(5m以上)
  • 日当たり良好
  • 建物35坪以上建築可能
  • 低層住居専用地域

お気軽にどうぞ!

資料請求 現地見学 電話でお問い合わせ
0120-046-690

地図

申し訳ありません
こちらは会員限定機能です

会員登録で利用できる6つの便利機能

詳しく見る

お気軽にどうぞ!

資料請求 現地見学 電話でお問い合わせ
0120-046-690

頭金0万円・金利0.495%の場合

ボーナス時(年2回)お支払額

0

この物件の月々のお支払額

147,889

年収に対する返済比率

59

  • ※会員登録し、詳細情報を記入されますと、全ての物件で自動的に金額が表示され、大変便利です。
  • ※まだ会員登録をされていない方は、下記チェック欄をご記入ください。
  • ※上記計算は物件価格5,280万円+諸経費 8%込みの金額による結果となります。
  • ※返済金額はあくまでも目安です。

お客様の条件からシミュレーションするには?

会員登録
マイページから登録

金利

直接入力する

ボーナス払い(年2回)

返済年数

頭金

直接入力する

 万円(半角数字)

年収

 万円(半角数字)

約1,200m

小学校

周辺環境:南野川小学校(自然豊かな地域にある小学校です。 元気な挨拶 明るい笑顔 南野川っ子は毎日輝いています。)

小学校

約1,200m

約1,000m

中学校

周辺環境:野川中学校(自己の将来を思慮しながら、自主的、創造的に活動する生徒の育成を目指します。)

中学校

約1,000m

約800m

スーパー

周辺環境:ライフ東有馬店(食べ盛りのお子様がいるご家庭の強い味方、魅力の量・価格のスーパーが近くにあると、とても心強いですね。)

スーパー

約800m

約400m

コンビニ

周辺環境:ファミリーマート東有馬二丁目店(ファミチキをはじめスナックメニューも大人気です。)

コンビニ

約400m

約400m

公園

周辺環境:野川第一公園(青空の下で駆け回ったり、遊具で遊んだり、思い思いの遊びができます。子供たちの元気で楽しそうな声が響き渡ります。)

公園

約400m

約290m

病院

周辺環境:こども元気!内科クリニック(おしゃれで楽しい小児科クリニックです。隣に専用の健診・ワクチンセンターを併設しております。)

病院

約290m

価格 5,280万円
物件種別 新築一戸建て
間取り 3LDK
所在地 川崎市宮前区 南野川1丁目
交通
  • 田園都市線「鷺沼」駅 バス停「野川台西口」まで 徒歩 5 分 バス利用 8分
  • 南武線「武蔵中原」駅 バス停「野川台公園前」まで 徒歩 5 分 バス利用 20分
土地面積 145.00㎡
建物面積 103.50㎡
学区 南野川小学校、野川中学校
用途地域 第一種低層住居専用
建ぺい率 50%
容積率 80%
地目 宅地
駐車場 有り カースペース
接道 西6m
権利 所有権
私道面積 有 180.00㎡ 1/7
セットバック 無し
建物構造 木造
建物階数 2階
築年月 2025年11月
入居日 2025年12月
都市計画 市街化区域
取引態様 仲介
物件番号 A1826-4
設備 公営水道、公共下水、駐車場1台、閑静な住宅地、都市近郊、地盤調査済、前道6m以上、市街地が近い、隣家との間隔が大きい、周辺交通量少なめ、スーパーが近い(10分以内)、2沿線以上利用可、公園5分以内、コンビニ5分以内、システムキッチン、ガス3口、L型キッチン、浄水器、ユニットバス、追い焚き、浴室乾燥機、ウォシュレット、トイレ2ヶ所、浴室に窓、暖房便座、バルコニー、テラス、南面バルコニー、2階建、全居室6畳以上、LDK20畳以上、グルニエ、採光3面、南向き、全室2面採光、クローゼット、収納、床下収納、下駄箱、屋根裏収納、全居室収納、洗面室収納、シャンプドレッサー付き、専用庭、南庭、庭10坪以上、年内入居可、モニタ付きインターフォン、複層ガラス、火災警報器(報知機)、通風良好、陽当り良好、24時間換気システム、建物10年保証
建築確認番号 第KBI-YKH25-10-1135号
特記事項 建築基準法第22条による区域 ゴミ協定書有り 給排水施設に関する協定書有り 共有地に関する協定書有り/壁面後退:有/景観法:有/宅地造成工事規制区域:有/急傾斜地崩壊危険区域:有/高度地区:有/日影制限:有/敷地面積最低限度:有/高さ限度:有。 /
備考 「鷺沼」駅利用 タタミコーナーのある居心地よいリビング 南側に広いお庭があり陽当たり良好です

お気軽にどうぞ!

資料請求 現地見学 電話でお問い合わせ
0120-046-690

このエリアでお探しの方へ

川崎市宮前区南平台 新築一戸建 4980万円 1号棟

田園都市線「宮前平」駅 バス停「東名向丘入口」まで 徒歩 5 分 バス利用 9分

小田急線「向ヶ丘遊園」駅 バス停「原ケ谷」まで 徒歩 8 分 バス利用 13分

川崎市宮前区 南平台

4,980万円

4LDK

川崎市宮前区野川本町1丁目 新築一戸建 5180万円 6号棟

田園都市線「梶が谷」駅 バス停「上野川」まで 徒歩 2 分 バス利用 6分

南武線「武蔵新城」駅 バス停「上野川」まで 徒歩 2 分 バス利用 14分

川崎市宮前区 野川本町1丁目

4,980万円

4LDK

川崎市宮前区野川本町1丁目 新築一戸建 4980万円 5号棟

田園都市線「梶が谷」駅 バス停「上野川」まで 徒歩 2 分 バス利用 6分

南武線「武蔵新城」駅 バス停「上野川」まで 徒歩 2 分 バス利用 14分

川崎市宮前区 野川本町1丁目

4,980万円

4LDK

川崎市宮前区野川本町1丁目 新築一戸建 4980万円 4号棟

田園都市線「梶が谷」駅 バス停「上野川」まで 徒歩 2 分 バス利用 6分

南武線「武蔵新城」駅 バス停「上野川」まで 徒歩 2 分 バス利用 14分

川崎市宮前区 野川本町1丁目

4,980万円

4LDK

川崎市宮前区野川本町1丁目 新築一戸建 4980万円 7号棟

田園都市線「梶が谷」駅 バス停「上野川」まで 徒歩 2 分 バス利用 6分

南武線「武蔵新城」駅 バス停「上野川」まで 徒歩 2 分 バス利用 14分

川崎市宮前区 野川本町1丁目

4,980万円

4LDK

川崎市宮前区南平台 新築一戸建 4980万円 4号棟

田園都市線「宮前平」駅 徒歩 23 分

南武線「武蔵溝ノ口」駅 バス停「東名向丘入口」まで 徒歩 1 分 バス利用 16分

川崎市宮前区 南平台

4,980万円

2LDK+2S

川崎市宮前区西野川3丁目 新築一戸建 4980万円 2号棟

田園都市線「宮前平」駅 バス停「野川台東」まで 徒歩 1 分 バス利用 12分

南武線「武蔵中原」駅 バス停「野川台」まで 徒歩 4 分 バス利用 16分

川崎市宮前区 西野川3丁目

4,980万円

3LDK

川崎市宮前区東有馬5丁目 新築一戸建 4980万円 2号棟

グリーンライン「北山田」駅 徒歩 16 分

東急東横線「武蔵小杉」駅 バス停「東有馬第一団地前」まで 徒歩 3 分 バス利用 35分

川崎市宮前区 東有馬5丁目

4,980万円

4LDK

川崎市宮前区馬絹4丁目 新築一戸建 5080万円 3号棟

田園都市線「宮崎台」駅 徒歩 20 分

田園都市線「鷺沼」駅 バス停「宮前休日診療所」まで 徒歩 3 分 バス利用 7分

川崎市宮前区 馬絹4丁目

5,080万円

3SLDK

川崎市宮前区西野川3丁目 新築一戸建 5180万円 1号棟

田園都市線「宮前平」駅 バス停「野川台東」まで 徒歩 1 分 バス利用 12分

南武線「武蔵中原」駅 バス停「野川台」まで 徒歩 4 分 バス利用 16分

川崎市宮前区 西野川3丁目

5,180万円

3LDK

川崎市宮前区東有馬3丁目 新築一戸建 5190万円

グリーンライン「北山田」駅 徒歩 20 分

田園都市線「鷺沼」駅 バス停「下有馬」まで 徒歩 5 分 バス利用 16分

川崎市宮前区 東有馬3丁目

5,190万円

4LDK

川崎市宮前区東有馬1丁目 新築一戸建 5250万円

田園都市線「宮前平」駅 徒歩 20 分

田園都市線「鷺沼」駅 バス停「寺台」まで 徒歩 9 分 バス利用 12分

川崎市宮前区 東有馬1丁目

5,250万円

3LDK

お気軽にどうぞ!

資料請求 現地見学 電話でお問い合わせ
0120-046-690