1. トップページ
  2. 川崎市宮前区西野川3丁目 新築一戸建 5180万円 1号棟

川崎市宮前区西野川3丁目 新築一戸建 5180万円 1号棟

価格
5,180万円
物件種別
新築一戸建て
間取り
3LDK
所在地
川崎市宮前区 西野川3丁目
交通
  • 田園都市線「宮前平」駅 バス停「野川台東」まで 徒歩 1 分 バス利用 12分
  • 南武線「武蔵中原」駅 バス停「野川台」まで 徒歩 4 分 バス利用 16分
土地面積
128.33㎡
建物面積
106.40㎡
  • 前回情報更新日 2026.01.09
  • 次回情報更新予定日 2026.01.23
資料請求 現地見学 電話でお問い合わせ
0120-046-690
間取り
間取り
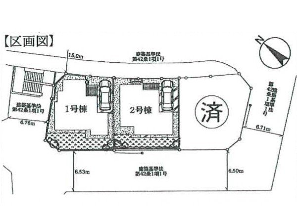
区画図
区画図
周辺環境:野川小学校(明治6年創立で約155年の歴史がある学校。総生徒数約780人で各学年120~130人。)
周辺環境:野川小学校(明治6年創立で約155年の歴史がある学校。総生徒数約780人で各学年120~130人。)
周辺環境:野川中学校(自己の将来を思慮しながら、自主的、創造的に活動する生徒の育成を目指します。)
周辺環境:野川中学校(自己の将来を思慮しながら、自主的、創造的に活動する生徒の育成を目指します。)
周辺環境:野川第二公園(青空の下で駆け回ったり、遊具で遊んだり、思い思いの遊びができます。子供たちの元気で楽しそうな声が響き渡ります。)
周辺環境:野川第二公園(青空の下で駆け回ったり、遊具で遊んだり、思い思いの遊びができます。子供たちの元気で楽しそうな声が響き渡ります。)
周辺環境:セブンイレブン野川台店(セブンミールは大好評です。今や公共料金の支払いや宅配など、色々な用途があるコンビニは必須ですね。)
周辺環境:セブンイレブン野川台店(セブンミールは大好評です。今や公共料金の支払いや宅配など、色々な用途があるコンビニは必須ですね。)
周辺環境:ヨークマート川崎野川店(セブン&アイ・ホールディングス傘下のイトーヨーカ堂が関東南部に展開する日本のスーパーマーケットです。)
周辺環境:ヨークマート川崎野川店(セブン&アイ・ホールディングス傘下のイトーヨーカ堂が関東南部に展開する日本のスーパーマーケットです。)
周辺環境:こども元気!内科クリニック(おしゃれで楽しい小児科クリニックです。隣に専用の健診・ワクチンセンターを併設しております。)
周辺環境:こども元気!内科クリニック(おしゃれで楽しい小児科クリニックです。隣に専用の健診・ワクチンセンターを併設しております。)

この物件のココがオススメ!

「宮前平」駅 バス停まで1分 畳コーナーのある落ち着いたリビング 太陽光パネルつき新築全3棟が誕生です

こだわりポイント

  • 崖下・崖上
  • 大通り沿い
  • 耐震に配慮された建物
  • 運転ラクラク生活
  • 子供の多い街に住む
  • 自然を感じる暮らし
  • LDKは1階に
  • 2階建て住宅限定
  • ウォークインクローゼット
  • LDK15帖以上
  • 主寝室 8帖以上
  • 対面キッチン
  • ロフト・小屋裏収納
  • 小学校10分以内
  • コンビニ10分以内
  • 幼稚園10分以内
  • 公園10分以内
  • 都市ガス
  • フラット35利用可
  • 角地限定
  • 道路広々(5m以上)
  • 日当たり良好
  • 道路と段差無し
  • 低層住居専用地域

お気軽にどうぞ!

資料請求 現地見学 電話でお問い合わせ
0120-046-690

地図

申し訳ありません
こちらは会員限定機能です

会員登録で利用できる6つの便利機能

詳しく見る

お気軽にどうぞ!

資料請求 現地見学 電話でお問い合わせ
0120-046-690

頭金0万円・金利0.495%の場合

ボーナス時(年2回)お支払額

0

この物件の月々のお支払額

145,088

年収に対する返済比率

58

  • ※会員登録し、詳細情報を記入されますと、全ての物件で自動的に金額が表示され、大変便利です。
  • ※まだ会員登録をされていない方は、下記チェック欄をご記入ください。
  • ※上記計算は物件価格5,180万円+諸経費 8%込みの金額による結果となります。
  • ※返済金額はあくまでも目安です。

お客様の条件からシミュレーションするには?

会員登録
マイページから登録

金利

直接入力する

ボーナス払い(年2回)

返済年数

頭金

直接入力する

 万円(半角数字)

年収

 万円(半角数字)

約550m

小学校

周辺環境:野川小学校(明治6年創立で約155年の歴史がある学校。総生徒数約780人で各学年120~130人。)

小学校

約550m

約300m

中学校

周辺環境:野川中学校(自己の将来を思慮しながら、自主的、創造的に活動する生徒の育成を目指します。)

中学校

約300m

約210m

公園

周辺環境:野川第二公園(青空の下で駆け回ったり、遊具で遊んだり、思い思いの遊びができます。子供たちの元気で楽しそうな声が響き渡ります。)

公園

約210m

約300m

コンビニ

周辺環境:セブンイレブン野川台店(セブンミールは大好評です。今や公共料金の支払いや宅配など、色々な用途があるコンビニは必須ですね。)

コンビニ

約300m

約900m

スーパー

周辺環境:ヨークマート川崎野川店(セブン&アイ・ホールディングス傘下のイトーヨーカ堂が関東南部に展開する日本のスーパーマーケットです。)

スーパー

約900m

約900m

病院

周辺環境:こども元気!内科クリニック(おしゃれで楽しい小児科クリニックです。隣に専用の健診・ワクチンセンターを併設しております。)

病院

約900m

価格 5,180万円
物件種別 新築一戸建て
間取り 3LDK
所在地 川崎市宮前区 西野川3丁目
交通
  • 田園都市線「宮前平」駅 バス停「野川台東」まで 徒歩 1 分 バス利用 12分
  • 南武線「武蔵中原」駅 バス停「野川台」まで 徒歩 4 分 バス利用 16分
土地面積 128.33㎡
建物面積 106.40㎡
学区 野川小学校、野川中学校
用途地域 第二種低層住居専用
建ぺい率 50%
容積率 100%
地目 宅地
駐車場 有り カースペース
接道 北東16m、北西6.7m、南西6.5m
権利 所有権
私道面積 無し
セットバック 無し
建物構造 木造
建物階数 2階
築年月 2026年03月
入居日 2026年04月
都市計画 市街化区域
取引態様 仲介
物件番号 A1772-1
設備 公営水道、公共下水、耐震構造、駐車場1台、高台に立地、角地、都市近郊、地盤調査済、南側道路面す、前道6m以上、市街地が近い、2沿線以上利用可、小学校徒歩10分以内、中学校徒歩10分以内、公園5分以内、コンビニ5分以内、システムキッチン、ガス3口、L型キッチン、浄水器、ユニットバス、追い焚き、浴室乾燥機、ウォシュレット、トイレ2ヶ所、浴室に窓、暖房便座、バルコニー、テラス、南面バルコニー、2階建、LDK15畳以上、全居室6畳以上、グルニエ、採光3面、全室2面採光、南西向き、クローゼット、収納、床下収納、下駄箱、屋根裏収納、全居室収納、洗面室収納、シャンプドレッサー付き、フラット35Sに対応、モニタ付きインターフォン、複層ガラス、火災警報器(報知機)、通風良好、陽当り良好、24時間換気システム、建物10年保証
建築確認番号 第KS125-3820-50285号
特記事項 建築基準法第22条による区域 再建築の際は擁壁側にRC造りの防護壁を設ける必要があります/崖上につき建築制限:有/隅切り:有/壁面後退:有/景観法:有/宅地造成工事規制区域:有/高度地区:有/日影制限:有/敷地面積最低限度:有/高さ限度:有。 /
備考 「宮前平」駅 バス停まで1分 畳コーナーのある落ち着いたリビング 太陽光パネルつき新築全3棟が誕生です

お気軽にどうぞ!

資料請求 現地見学 電話でお問い合わせ
0120-046-690

このエリアでお探しの方へ

川崎市宮前区平6丁目 新築一戸建 4880万円

田園都市線「宮前平」駅 徒歩 19 分

南武線「武蔵溝ノ口」駅 バス停「向丘出張所」まで 徒歩 9 分 バス利用 15分

川崎市宮前区 平6丁目

4,880万円

4LDK

川崎市宮前区初山2丁目 新築一戸建 4880万円 13号棟

田園都市線「溝の口」駅 バス停「初山」まで 徒歩 1 分 バス利用 16分

小田急線「向ヶ丘遊園」駅 バス停「原ヶ谷」まで 徒歩 7 分 バス利用 15分

川崎市宮前区 初山2丁目

4,880万円

3LDK

川崎市宮前区野川本町1丁目 新築一戸建 5180万円 6号棟

田園都市線「梶が谷」駅 バス停「上野川」まで 徒歩 2 分 バス利用 6分

南武線「武蔵新城」駅 バス停「上野川」まで 徒歩 2 分 バス利用 14分

川崎市宮前区 野川本町1丁目

4,980万円

4LDK

川崎市宮前区野川本町1丁目 新築一戸建 4980万円 4号棟

田園都市線「梶が谷」駅 バス停「上野川」まで 徒歩 2 分 バス利用 6分

南武線「武蔵新城」駅 バス停「上野川」まで 徒歩 2 分 バス利用 14分

川崎市宮前区 野川本町1丁目

4,980万円

4LDK

川崎市宮前区野川本町1丁目 新築一戸建 4980万円 7号棟

田園都市線「梶が谷」駅 バス停「上野川」まで 徒歩 2 分 バス利用 6分

南武線「武蔵新城」駅 バス停「上野川」まで 徒歩 2 分 バス利用 14分

川崎市宮前区 野川本町1丁目

4,980万円

4LDK

川崎市宮前区西野川3丁目 新築一戸建 4980万円 2号棟

田園都市線「宮前平」駅 バス停「野川郵便局前」まで 徒歩 9 分 バス利用 14分

南武線「武蔵新城」駅 バス停「野川郵便局前」まで 徒歩 9 分 バス利用 13分

川崎市宮前区 西野川3丁目

4,980万円

3LDK

川崎市宮前区南平台 新築一戸建 4980万円 4号棟

田園都市線「宮前平」駅 徒歩 23 分

南武線「武蔵溝ノ口」駅 バス停「東名向丘入口」まで 徒歩 1 分 バス利用 16分

川崎市宮前区 南平台

4,980万円

2LDK+2S

川崎市宮前区東有馬5丁目 新築一戸建 4980万円 2号棟

グリーンライン「北山田」駅 徒歩 16 分

東急東横線「武蔵小杉」駅 バス停「東有馬第一団地前」まで 徒歩 3 分 バス利用 35分

川崎市宮前区 東有馬5丁目

4,980万円

4LDK

川崎市宮前区神木本町1丁目 新築一戸建 4980万円 No.4

田園都市線「溝の口」駅 バス停「神木本町」まで 徒歩 5 分 バス利用 12分

小田急線「登戸」駅 バス停「神木不動」まで 徒歩 3 分 バス利用 11分

川崎市宮前区 神木本町1丁目

4,980万円

1LDK+2S

川崎市宮前区神木本町1丁目 新築一戸建 4980万円 No.5

田園都市線「溝の口」駅 バス停「神木本町」まで 徒歩 5 分 バス利用 12分

小田急線「登戸」駅 バス停「神木不動」まで 徒歩 3 分 バス利用 11分

川崎市宮前区 神木本町1丁目

4,980万円

1LDK+2S

川崎市宮前区初山2丁目 新築一戸建 4980万円 16号棟

田園都市線「溝の口」駅 バス停「初山」まで 徒歩 1 分 バス利用 16分

小田急線「向ヶ丘遊園」駅 バス停「原ヶ谷」まで 徒歩 7 分 バス利用 15分

川崎市宮前区 初山2丁目

4,980万円

4LDK

川崎市宮前区南野川2丁目 新築一戸建 4980万円 B号棟

グリーンライン「北山田」駅 徒歩 23 分

田園都市線「鷺沼」駅 バス停「稲荷坂」まで 徒歩 6 分 バス利用 20分

川崎市宮前区 南野川2丁目

4,980万円

4LDK

お気軽にどうぞ!

資料請求 現地見学 電話でお問い合わせ
0120-046-690