1. トップページ
  2. 今週末モデルハウス見学会開催中!「中山」駅利用 新築一戸建て 浴室TV・食洗器他設備充実

今週末モデルハウス見学会開催中!「中山」駅利用 新築一戸建て 浴室TV・食洗器他設備充実

価格
3,980万円
物件種別
新築一戸建て
間取り
3LDK
所在地
横浜市緑区 三保町
交通
  • 横浜線「中山」駅 徒歩 17 分
  • グリーンライン「中山」駅 徒歩 17 分
土地面積
137.82㎡
建物面積
101.02㎡
  • 前回情報更新日 2026.04.09
  • 次回情報更新予定日 2026.04.23
資料請求 現地見学 電話でお問い合わせ
0120-046-690
外観:心踊る日常と守られている安心感 どのライフステージでも快適に暮らすことができる場所です。
外観:心踊る日常と守られている安心感 どのライフステージでも快適に暮らすことができる場所です。
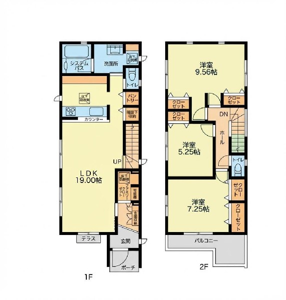
間取図
間取図
外観:窓枠から切り取られたまるで写真のような澄み切った光景。季節の移り変わりとともに、ゆっくりと愛でる時のありがたみ。
外観:窓枠から切り取られたまるで写真のような澄み切った光景。季節の移り変わりとともに、ゆっくりと愛でる時のありがたみ。
外観:☆☆風通しの良い住宅地☆☆  ゆとりのある住宅地 部屋の窓を開けるとそこには心地よい風が通りぬけます♪
外観:☆☆風通しの良い住宅地☆☆ ゆとりのある住宅地 部屋の窓を開けるとそこには心地よい風が通りぬけます♪
外観:光と風が行わたる開放感あふれる邸宅 春には気持ちの良いそよ風、冬には朝の暖かな光 季節の移り変わりを感じる暮らしを実現
外観:光と風が行わたる開放感あふれる邸宅 春には気持ちの良いそよ風、冬には朝の暖かな光 季節の移り変わりを感じる暮らしを実現
周辺環境:みほ幼稚園(みほ幼稚園まで500m)
周辺環境:みほ幼稚園(みほ幼稚園まで500m)
周辺環境:横浜市立三保小学校(横浜市立三保小学校まで850m)
周辺環境:横浜市立三保小学校(横浜市立三保小学校まで850m)
周辺環境:横浜市立十日市場中学校(横浜市立十日市場中学校まで2600m)
周辺環境:横浜市立十日市場中学校(横浜市立十日市場中学校まで2600m)
周辺環境:三保大上第二公園(三保大上第二公園まで220m)
周辺環境:三保大上第二公園(三保大上第二公園まで220m)
周辺環境:四季の森公園(四季の森公園まで1100m)
周辺環境:四季の森公園(四季の森公園まで1100m)
周辺環境:食品館あおば中山店(食品館あおば中山店まで1100m)
周辺環境:食品館あおば中山店(食品館あおば中山店まで1100m)
周辺環境:森の子キッズクリニック(森の子キッズクリニックまで1900m)
周辺環境:森の子キッズクリニック(森の子キッズクリニックまで1900m)
周辺環境:森の台保育園(森の台保育園まで400m)
周辺環境:森の台保育園(森の台保育園まで400m)
周辺環境:中山とうきゅう(東急ストア中山店)(中山とうきゅう(東急ストア中山店)まで1500m)
周辺環境:中山とうきゅう(東急ストア中山店)(中山とうきゅう(東急ストア中山店)まで1500m)

この物件のココがオススメ!

複数路線が乗り入れる「中山」駅利用。ご家族とのコミュニケーションが取りやすい対面キッチン・リビングイン階段の19帖LDK。食洗機・浴室乾燥他設備充実。

こだわりポイント

  • 前面道路急坂
  • 崖下・崖上
  • 敷地延長(旗竿地)
  • 断熱に配慮された建物
  • 食器洗い洗浄乾燥機
  • 浴室換気乾燥暖房機
  • 2沿線利用であんしん通勤
  • 大人の二人暮らし
  • LDKは1階に
  • 2階建て住宅限定
  • リビングイン階段
  • LDK18帖以上
  • 対面キッチン
  • ロフト・小屋裏収納
  • パントリー
  • 保育園10分以内
  • 幼稚園10分以内
  • 公園10分以内
  • 都市ガス
  • 隣家との間隔たっぷり
  • 道路広々(5m以上)
  • 眺望良好
  • 道路と段差無し

お気軽にどうぞ!

資料請求 現地見学 電話でお問い合わせ
0120-046-690

地図

申し訳ありません
こちらは会員限定機能です

会員登録で利用できる6つの便利機能

詳しく見る

お気軽にどうぞ!

資料請求 現地見学 電話でお問い合わせ
0120-046-690

頭金0万円・金利0.495%の場合

ボーナス時(年2回)お支払額

0

この物件の月々のお支払額

111,474

年収に対する返済比率

45

  • ※会員登録し、詳細情報を記入されますと、全ての物件で自動的に金額が表示され、大変便利です。
  • ※まだ会員登録をされていない方は、下記チェック欄をご記入ください。
  • ※上記計算は物件価格3,980万円+諸経費 8%込みの金額による結果となります。
  • ※返済金額はあくまでも目安です。

お客様の条件からシミュレーションするには?

会員登録
マイページから登録

金利

直接入力する

ボーナス払い(年2回)

返済年数

頭金

直接入力する

 万円(半角数字)

年収

 万円(半角数字)

約500m

幼稚園・保育園

周辺環境:みほ幼稚園(みほ幼稚園まで500m)

幼稚園・保育園

約500m

約850m

小学校

周辺環境:横浜市立三保小学校(横浜市立三保小学校まで850m)

小学校

約850m

約2,600m

中学校

周辺環境:横浜市立十日市場中学校(横浜市立十日市場中学校まで2600m)

中学校

約2,600m

約220m

公園

周辺環境:三保大上第二公園(三保大上第二公園まで220m)

公園

約220m

約1,100m

公園

周辺環境:四季の森公園(四季の森公園まで1100m)

公園

約1,100m

約1,100m

スーパー

周辺環境:食品館あおば中山店(食品館あおば中山店まで1100m)

スーパー

約1,100m

約1,900m

病院

周辺環境:森の子キッズクリニック(森の子キッズクリニックまで1900m)

病院

約1,900m

約400m

幼稚園・保育園

周辺環境:森の台保育園(森の台保育園まで400m)

幼稚園・保育園

約400m

約1,500m

スーパー

周辺環境:中山とうきゅう(東急ストア中山店)(中山とうきゅう(東急ストア中山店)まで1500m)

スーパー

約1,500m

価格 3,980万円
物件種別 新築一戸建て
間取り 3LDK
所在地 横浜市緑区 三保町
交通
  • 横浜線「中山」駅 徒歩 17 分
  • グリーンライン「中山」駅 徒歩 17 分
土地面積 137.82㎡
建物面積 101.02㎡
学区 三保小学校、十日市場中学校
用途地域 第一種低層住居専用
建ぺい率 50%
容積率 80%
地目 宅地
駐車場 有り カースペース
接道 南東6.9m
権利 所有権
私道面積 無し
セットバック 無し
建物構造 木造
建物階数 2階
築年月 2026年08月
入居日 2026年09月
都市計画 市街化区域
取引態様 仲介
物件番号 48464
設備 公営水道、公共下水、外壁サイディング、駐車場1台、緑豊かな住宅地、閑静な住宅地、前道6m以上、2沿線以上利用可、保育施設・幼稚園5分以内、公園5分以内、システムキッチン、ガス3口、食器洗い機付き、浄水器、I型キッチン、パントリー(食器・食品の収納庫)、ユニットバス、浴室乾燥機、ウォシュレット、トイレ2ヶ所、TV付浴室、浴室に窓、バルコニー、南面バルコニー、2階建、LDK18畳以上、グルニエ、採光2面、フローリング、リビング階段、クローゼット、床下収納、下駄箱、全居室収納、シャンプドレッサー付き、南庭、モニタ付きインターフォン、カードキー、複層ガラス、通風良好、陽当り良好、24時間換気システム、建物10年保証
建築確認番号 第25UDI1K02405号
特記事項 宅地造成工事規制区域 急傾斜地崩壊危険区域 高度地区 日影制限 敷地面積最低限度 建物高さ10m以下 建築基準法第22条区域 土砂災害警戒区域 傾斜地含 横浜市建築基準条例第3条による制限有 ※建物建築・再建築の際、深基礎、基礎杭、擁壁の補修・再構築、外壁後退等の対策が必要となる場合があります 建物建築・再建築の際、防護壁の設置、高基礎、外壁後退等の対策が必要となる場合があります 北側隣地との間において協定部分に関する確認書有(要継承) 建築基準法第22条区域 土砂災害警戒区域 傾斜地含 横浜市建築基準条例第3条による制限有 ※建物建築・再建築の際、深基礎、基礎杭、擁壁の補修・再構築、外壁後退等の対策が必要となる場合があります 建物建築・再建築の際、防護壁の設置、高基礎、外壁後退等の対策が必要となる場合があります 北側隣地との間において協定部分に関す
備考 複数路線が乗り入れる「中山」駅利用。ご家族とのコミュニケーションが取りやすい対面キッチン・リビングイン階段の19帖LDK。食洗機・浴室乾燥他設備充実。

お気軽にどうぞ!

資料請求 現地見学 電話でお問い合わせ
0120-046-690

このエリアでお探しの方へ

今週末モデルハウス見学会開催中!「洋光台」駅利用 新築一戸建て ルーフバルコニー

根岸線「洋光台」駅 徒歩 16 分

京浜急行本線「杉田」駅 徒歩 18 分

横浜市磯子区 栗木1丁目

3,680万円

1SLDK

今週末モデルハウス見学会開催中!「茅ヶ崎」駅利用 新築一戸建て(2)

東海道本線「茅ヶ崎」駅 バス停「古川」まで 徒歩 3 分 バス利用 12分

湘南新宿高「平塚」駅 バス停「今宿」まで 徒歩 4 分 バス利用 10分

茅ヶ崎市 萩園

3,680万円

3LDK

今週末内覧会開催中!「洋光台」駅徒歩13分 中古一戸建て クロス貼替他、R7年11月リフォーム済み

根岸線「洋光台」駅 徒歩 13 分

京浜急行本線「上大岡」駅 バス停「田中」まで 徒歩 5 分 バス利用 10分

横浜市磯子区 洋光台1丁目

3,680万円

4LDK

今週末モデルハウス見学会開催中!「茅ヶ崎」駅利用 新築一戸建て

東海道本線「茅ヶ崎」駅 バス停「西久保保育園、つるみね老人ホーム前」まで 徒歩 4 分 バス利用 9分

相模線「茅ヶ崎」駅 バス停「西久保保育園、つるみね老人ホーム前」まで 徒歩 4 分 バス利用 9分

茅ヶ崎市 浜之郷

3,680万円

4LDK

横浜市鶴見区上末吉2丁目 新築一戸建 3680万円

京浜東北線「鶴見」駅 バス停「末吉不動前」まで 徒歩 2 分 バス利用 14分

東急東横線「綱島」駅 バス停「末吉小学校前」まで 徒歩 3 分 バス利用 22分

横浜市鶴見区 上末吉2丁目

3,680万円

2SLDK

今週末モデルハウス見学会開催中!「平塚」駅利用 新築一戸建て(2)

東海道本線「平塚」駅 バス停「新田入口」まで 徒歩 5 分 バス利用 6分

湘南新宿高「茅ヶ崎」駅 バス停「新田入口」まで 徒歩 5 分 バス利用 9分

茅ヶ崎市 中島

3,680万円

4LDK

横浜市神奈川区斎藤分町 新築一戸建 3680万円

東急東横線「東白楽」駅 徒歩 11 分

ブルーライン「三ッ沢下町」駅 徒歩 13 分

横浜市神奈川区 斎藤分町

3,680万円

4LDK

値下げしました!「根岸」駅利用 新築一戸建て(1) 全居室ペアガラス

根岸線「根岸」駅 バス停「浜」まで 徒歩 5 分 バス利用 6分

根岸線「磯子」駅 バス停「浜」まで 徒歩 3 分 バス利用 5分

横浜市磯子区 久木町

3,680万円

3LDK

値下げしました!「戸塚」駅利用 新築一戸建て(2) 全4棟 閑静な住宅地

東海道本線「戸塚」駅 徒歩 22 分

ブルーライン「戸塚」駅 バス停「大坂上」まで 徒歩 4 分 バス利用 5分

横浜市戸塚区 戸塚町

3,680万円

3LDK

値下げしました! 「いずみ野」駅利用 新築一戸建て(2) WIC

いずみ野線「いずみ野」駅 徒歩 26 分

いずみ野線「いずみ野」駅 バス停「ひなた山」まで 徒歩 5 分 バス利用 10分

横浜市泉区 和泉町

3,680万円

3LDK

建物完成しました!今週末内覧会開催中!「茅ヶ崎」駅利用 未入居一戸建て(6)

東海道本線「茅ヶ崎」駅 バス停「今宿」まで 徒歩 5 分 バス利用 7分

湘南新宿高「平塚」駅 バス停「今宿」まで 徒歩 5 分 バス利用 10分

茅ヶ崎市 今宿

3,690万円

4LDK

建物完成しました!今週末内覧会開催中!「茅ヶ崎」駅利用 未入居一戸建て(4)

東海道本線「茅ヶ崎」駅 バス停「今宿」まで 徒歩 5 分 バス利用 7分

湘南新宿高「平塚」駅 バス停「今宿」まで 徒歩 5 分 バス利用 10分

茅ヶ崎市 今宿

3,690万円

4LDK

お気軽にどうぞ!

資料請求 現地見学 電話でお問い合わせ
0120-046-690
来店予約