1. トップページ
  2. 横浜市神奈川区斎藤分町 新築一戸建 3980万円

横浜市神奈川区斎藤分町 新築一戸建 3980万円

価格
3,980万円
物件種別
新築一戸建て
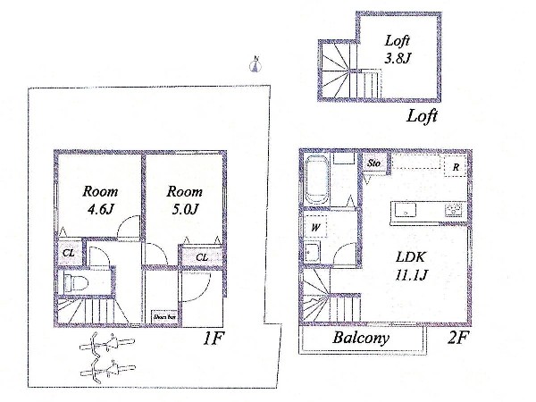
間取り
4LDK
所在地
横浜市神奈川区 斎藤分町
交通
  • 東急東横線「東白楽」駅 徒歩 11 分
  • ブルーライン「三ッ沢下町」駅 徒歩 13 分
土地面積
124.75㎡
建物面積
92.74㎡
  • 前回情報更新日 2025.12.12
  • 次回情報更新予定日 2025.12.26
資料請求 現地見学 電話でお問い合わせ
0120-046-690
外観:シンプルで清潔感がある白い外観は、明るく爽やかな印象です。広い青空に白が映えています。
外観:シンプルで清潔感がある白い外観は、明るく爽やかな印象です。広い青空に白が映えています。
間取り
間取り
区画図
区画図
お庭に面した掃出し窓からたっぷり光が入る開放的なリビング。階段は廊下にあるので冷暖房効率アップ。
お庭に面した掃出し窓からたっぷり光が入る開放的なリビング。階段は廊下にあるので冷暖房効率アップ。
キッチンの横には大容量のパントリーを設置。食材などのストックや防災用品の備蓄庫としても活躍します。
キッチンの横には大容量のパントリーを設置。食材などのストックや防災用品の備蓄庫としても活躍します。
16帖のLDK。導線もしっかりと取れているので、ソファーなどの家具もしっかりと配置できます。
16帖のLDK。導線もしっかりと取れているので、ソファーなどの家具もしっかりと配置できます。
外観:2部屋から出入り可能な広いバルコニー。南に面して日当たり良好。お洗濯もあっという間に乾きそうです。
外観:2部屋から出入り可能な広いバルコニー。南に面して日当たり良好。お洗濯もあっという間に乾きそうです。
外観:カースペース2台+お庭付。ゆとりある敷地だからこそ可能な多用途にご利用いただけるスペースです。
外観:カースペース2台+お庭付。ゆとりある敷地だからこそ可能な多用途にご利用いただけるスペースです。
壁紙の一面を茶色にしたアクセントクロス。オシャレで個性的な空間を作り出しています。食器洗乾燥機付き。
壁紙の一面を茶色にしたアクセントクロス。オシャレで個性的な空間を作り出しています。食器洗乾燥機付き。
大容量のシューズインクロークが嬉しい住まい。ベビーカー、アウトドア用品、カー用品などもスッキリ収納。
大容量のシューズインクロークが嬉しい住まい。ベビーカー、アウトドア用品、カー用品などもスッキリ収納。
収納力のある三面鏡タイプの洗面化粧台に加えてリネン庫もあります。キッチン近くに水回り集中し家事動線良好。
収納力のある三面鏡タイプの洗面化粧台に加えてリネン庫もあります。キッチン近くに水回り集中し家事動線良好。
ゆったり入れる1坪タイプの浴室。雨の多い時季のお洗濯に重宝する浴室換気乾燥機付。追炊きオートバス付。
ゆったり入れる1坪タイプの浴室。雨の多い時季のお洗濯に重宝する浴室換気乾燥機付。追炊きオートバス付。
窓があるので陽ざしが入り明るいトイレ。洗浄機能付き便座を標準装備しています。1階と2階にあります。
窓があるので陽ざしが入り明るいトイレ。洗浄機能付き便座を標準装備しています。1階と2階にあります。
南側の5帖、6.5帖のお部屋は造り付け収納付き。居室空間を隅々まで使えます。廊下にご家族で使える納戸もあります。
南側の5帖、6.5帖のお部屋は造り付け収納付き。居室空間を隅々まで使えます。廊下にご家族で使える納戸もあります。
南西向きで日当たり良好。2階は2部屋がバルコニー付。風通しもよく毎日の生活も自然と明るくなりそうです。
南西向きで日当たり良好。2階は2部屋がバルコニー付。風通しもよく毎日の生活も自然と明るくなりそうです。
外観:前面道路は車通りの少ない道路。小さなお子様も安心です。お車の出し入れが苦手な方も駐車しやすそうです。
外観:前面道路は車通りの少ない道路。小さなお子様も安心です。お車の出し入れが苦手な方も駐車しやすそうです。
大容量のシューズインクローゼットがあり靴以外にもアウトドア用品やお子様の遊び道具なども収納できます。
大容量のシューズインクローゼットがあり靴以外にもアウトドア用品やお子様の遊び道具なども収納できます。
居室空間をすっきり保てる、ウォークインクローゼット付です。衣類だけでなく、思い出の品もたっぷり収納。
居室空間をすっきり保てる、ウォークインクローゼット付です。衣類だけでなく、思い出の品もたっぷり収納。
あったらいいなの代表的な設備である食洗機。ビルトイン型なので、おさまりもよく、使い勝手も良好です。
あったらいいなの代表的な設備である食洗機。ビルトイン型なので、おさまりもよく、使い勝手も良好です。
周辺環境:平川町公園(東急東横線沿いにあり、線路上を渡れる橋で隣の二ツ谷公園と繋がっています。春は桜が綺麗に咲きます。)
周辺環境:平川町公園(東急東横線沿いにあり、線路上を渡れる橋で隣の二ツ谷公園と繋がっています。春は桜が綺麗に咲きます。)
周辺環境:ビッグヨーサン東神奈川店(生鮮食品が自慢のスーパー。特に魚は種類豊富で新鮮です。大容量パックがお勧め。営業時間は10時~21時)
周辺環境:ビッグヨーサン東神奈川店(生鮮食品が自慢のスーパー。特に魚は種類豊富で新鮮です。大容量パックがお勧め。営業時間は10時~21時)
周辺環境:ローソン 神奈川大学前店(コーヒーやスイーツ、ホットスナックが人気のコンビニエンスストア。酒たばこ取扱い有。無料Wi-Fi有。)
周辺環境:ローソン 神奈川大学前店(コーヒーやスイーツ、ホットスナックが人気のコンビニエンスストア。酒たばこ取扱い有。無料Wi-Fi有。)
周辺環境:斎藤分小学校(市内ではめずらしい児童数200名程度の小規模小学校。異学年縦割り活動や地域との交流も盛んに行われています。)
周辺環境:斎藤分小学校(市内ではめずらしい児童数200名程度の小規模小学校。異学年縦割り活動や地域との交流も盛んに行われています。)
周辺環境:反町こどもクリニック(平日夜7時まで診療しており、安心できて通いやすい身近な小児科。こどもに関するどんなことも相談できる場所を目指す。)
周辺環境:反町こどもクリニック(平日夜7時まで診療しており、安心できて通いやすい身近な小児科。こどもに関するどんなことも相談できる場所を目指す。)
周辺環境:いずみ松本町保育園(工夫をこらした可愛らしい園舎と広い園庭がある保育園。3歳児から文字、数、英語の勉強を楽しみながら行います。)
周辺環境:いずみ松本町保育園(工夫をこらした可愛らしい園舎と広い園庭がある保育園。3歳児から文字、数、英語の勉強を楽しみながら行います。)
周辺環境:クリエイトS・D 横浜六角橋店(医薬品、化粧品、日用品、ベビー用品はもちろん、野菜、精肉、冷凍冷蔵食品も取扱う。駐車場有。)
周辺環境:クリエイトS・D 横浜六角橋店(医薬品、化粧品、日用品、ベビー用品はもちろん、野菜、精肉、冷凍冷蔵食品も取扱う。駐車場有。)
周辺環境:マクドナルド神奈川大学店(定番のハンバーガーショップ。ハッピーセットやマックカフェも人気。営業時間は7:30~20:30。)
周辺環境:マクドナルド神奈川大学店(定番のハンバーガーショップ。ハッピーセットやマックカフェも人気。営業時間は7:30~20:30。)
周辺環境:イオンスタイル東神奈川(食料品、生活用品が揃う4階建ての大型スーパー。大抵のものは揃います。衣料品、100円ショップもあり便利です。)
周辺環境:イオンスタイル東神奈川(食料品、生活用品が揃う4階建ての大型スーパー。大抵のものは揃います。衣料品、100円ショップもあり便利です。)

この物件のココがオススメ!

東横線など3路線徒歩利用可能 広いお庭 車2台駐車可能 パントリー、ウォークインCなど大型収納充実

こだわりポイント

  • 借地権
  • 断熱に配慮された建物
  • 食器洗い洗浄乾燥機
  • 浴室換気乾燥暖房機
  • 急行電車でスピード通勤
  • 2沿線利用であんしん通勤
  • 子供の多い街に住む
  • LDKは1階に
  • 2階建て住宅限定
  • シューズインクローク
  • ウォークインクローゼット
  • LDK15帖以上
  • 広々バルコニー
  • 対面キッチン
  • 浴室1坪以上
  • パントリー
  • 小学校10分以内
  • コンビニ10分以内
  • 小児科医院10分以内
  • 保育園10分以内
  • 幼稚園10分以内
  • 公園10分以内
  • 都市ガス
  • カースペース2台
  • 日当たり良好
  • 南道路限定
  • 道路と段差無し
  • 低層住居専用地域

お気軽にどうぞ!

資料請求 現地見学 電話でお問い合わせ
0120-046-690

地図

申し訳ありません
こちらは会員限定機能です

会員登録で利用できる6つの便利機能

詳しく見る

お気軽にどうぞ!

資料請求 現地見学 電話でお問い合わせ
0120-046-690

頭金0万円・金利0.495%の場合

ボーナス時(年2回)お支払額

0

この物件の月々のお支払額

111,474

年収に対する返済比率

45

  • ※会員登録し、詳細情報を記入されますと、全ての物件で自動的に金額が表示され、大変便利です。
  • ※まだ会員登録をされていない方は、下記チェック欄をご記入ください。
  • ※上記計算は物件価格3,980万円+諸経費 8%込みの金額による結果となります。
  • ※返済金額はあくまでも目安です。

お客様の条件からシミュレーションするには?

会員登録
マイページから登録

金利

直接入力する

ボーナス払い(年2回)

返済年数

頭金

直接入力する

 万円(半角数字)

年収

 万円(半角数字)

約800m

公園

周辺環境:平川町公園(東急東横線沿いにあり、線路上を渡れる橋で隣の二ツ谷公園と繋がっています。春は桜が綺麗に咲きます。)

公園

約800m

約850m

スーパー

周辺環境:ビッグヨーサン東神奈川店(生鮮食品が自慢のスーパー。特に魚は種類豊富で新鮮です。大容量パックがお勧め。営業時間は10時~21時)

スーパー

約850m

約650m

コンビニ

周辺環境:ローソン 神奈川大学前店(コーヒーやスイーツ、ホットスナックが人気のコンビニエンスストア。酒たばこ取扱い有。無料Wi-Fi有。)

コンビニ

約650m

約290m

小学校

周辺環境:斎藤分小学校(市内ではめずらしい児童数200名程度の小規模小学校。異学年縦割り活動や地域との交流も盛んに行われています。)

小学校

約290m

約800m

病院

周辺環境:反町こどもクリニック(平日夜7時まで診療しており、安心できて通いやすい身近な小児科。こどもに関するどんなことも相談できる場所を目指す。)

病院

約800m

約650m

幼稚園・保育園

周辺環境:いずみ松本町保育園(工夫をこらした可愛らしい園舎と広い園庭がある保育園。3歳児から文字、数、英語の勉強を楽しみながら行います。)

幼稚園・保育園

約650m

約750m

ドラッグストア

周辺環境:クリエイトS・D 横浜六角橋店(医薬品、化粧品、日用品、ベビー用品はもちろん、野菜、精肉、冷凍冷蔵食品も取扱う。駐車場有。)

ドラッグストア

約750m

約550m

飲食店

周辺環境:マクドナルド神奈川大学店(定番のハンバーガーショップ。ハッピーセットやマックカフェも人気。営業時間は7:30~20:30。)

飲食店

約550m

約1,200m

ショッピングセンター

周辺環境:イオンスタイル東神奈川(食料品、生活用品が揃う4階建ての大型スーパー。大抵のものは揃います。衣料品、100円ショップもあり便利です。)

ショッピングセンター

約1,200m

価格 3,980万円
物件種別 新築一戸建て
間取り 4LDK
所在地 横浜市神奈川区 斎藤分町
交通
  • 東急東横線「東白楽」駅 徒歩 11 分
  • ブルーライン「三ッ沢下町」駅 徒歩 13 分
土地面積 124.75㎡
建物面積 92.74㎡
学区 斎藤分小学校、栗田谷中学校
用途地域 第一種低層住居専用
建ぺい率 60%
容積率 100%
地目 宅地
駐車場 有り カースペース
接道 南東4m
権利 旧法賃借
私道面積 無し
セットバック 無し
建物構造 木造
建物階数 2階
築年月 2025年09月
入居日 即時
都市計画 市街化区域
取引態様 仲介
物件番号 P0963
設備 公営水道、公共下水、スレート葺、駐車場2台以上、緑豊かな住宅地、閑静な住宅地、都市近郊、地盤調査済、南側道路面す、市街地が近い、隣家との間隔が大きい、周辺交通量少なめ、ゴルフ場が近い、始発駅、2沿線以上利用可、小学校徒歩10分以内、中学校徒歩10分以内、システムキッチン、カウンタキッチン、食器洗い機付き、浄水器、パントリー(食器・食品の収納庫)、ユニットバス、追い焚き、浴室乾燥機、ウォシュレット、オートバス付き、トイレ2ヶ所、浴室1坪以上、暖房便座、浴室暖房、バルコニー、南面バルコニー、2階建、LDK15畳以上、採光2面、南向き、フローリング、クローゼット、収納、床下収納、洗面室収納、シャンプドレッサー付き、庭、10㎡以上の庭、年内入居可、モニタ付きインターフォン、複層ガラス、火災警報器(報知機)、通風良好、陽当り良好、24時間換気システム、建物10年保証
建築確認番号 第24UDI1C建07365号
特記事項 航空法:有/宅地造成工事規制区域:有/高度地区:有/準防火地域:有/日影制限:有/敷地面積最低限度:有/高さ限度:有/緑化地域 横浜市建築基準条例第3条による制限有 駐車は車種により2台可。 //地代:29700円/借地期間:19年6ヶ月。
備考 東横線など3路線徒歩利用可能 広いお庭 車2台駐車可能 パントリー、ウォークインCなど大型収納充実

お気軽にどうぞ!

資料請求 現地見学 電話でお問い合わせ
0120-046-690

このエリアでお探しの方へ

建物完成しました!今週末内覧会開催中!「茅ヶ崎」駅利用 新築一戸建て

東海道本線「茅ヶ崎」駅 バス停「柳島」まで 徒歩 5 分 バス利用 8分

湘南新宿高「平塚」駅 バス停「町屋」まで 徒歩 12 分 バス利用 12分

茅ヶ崎市 柳島1丁目

3,680万円

4LDK

今週末内覧会開催中!「下永谷」駅徒歩10分 中古一戸建て 床暖房 ロフト

ブルーライン「下永谷」駅 徒歩 10 分

横須賀線「東戸塚」駅 バス停「永田」まで 徒歩 4 分 バス利用 17分

横浜市港南区 上永谷6丁目

3,680万円

3LDK

値下げしました!今週末内覧会開催中!「中田」駅徒歩13分 中古一戸建て 全室2面採光

ブルーライン「中田」駅 徒歩 13 分

東海道本線「戸塚」駅 バス停「西が岡三丁目」まで 徒歩 5 分 バス利用 14分

横浜市泉区 白百合3丁目

3,680万円

4LDK

値下げしました!「戸塚」駅利用 新築一戸建て(2) 全4棟 閑静な住宅地

東海道本線「戸塚」駅 徒歩 22 分

ブルーライン「戸塚」駅 バス停「大坂上」まで 徒歩 4 分 バス利用 5分

横浜市戸塚区 戸塚町

3,680万円

3LDK

値下げしました! 「鶴ケ峰」駅利用 新築一戸建て 全室南向き

相模鉄道線「鶴ヶ峰」駅 バス停「稲荷通」まで 徒歩 6 分 バス利用 5分

相鉄新横浜線「西谷」駅 バス停「稲荷通」まで 徒歩 6 分 バス利用 5分

横浜市旭区 白根7丁目

3,680万円

3LDK

値下げしました! 「いずみ野」駅利用 新築一戸建て(2) WIC

いずみ野線「いずみ野」駅 徒歩 26 分

いずみ野線「いずみ野」駅 バス停「ひなた山」まで 徒歩 5 分 バス利用 10分

横浜市泉区 和泉町

3,680万円

3LDK

川崎市多摩区東三田3丁目 新築一戸建 3980万円

小田急線「生田」駅 徒歩 18 分

南武線「登戸」駅 徒歩 33 分

川崎市多摩区 東三田3丁目

3,680万円

2SLDK

今週末内覧会開催中!「東戸塚」駅利用 中古一戸建て カースペース2台

横須賀線「東戸塚」駅 バス停「今井町(横浜新道)」まで 徒歩 6 分 バス利用 8分

東海道本線「横浜」駅 バス停「今井町」まで 徒歩 6 分 バス利用 35分

横浜市保土ケ谷区 法泉2丁目

3,680万円

4LDK

値下げしました!今週末内覧会開催中!「上永谷」駅徒歩15分 中古一戸建て 閑静な住宅地

ブルーライン「上永谷」駅 徒歩 15 分

京浜急行本線「上大岡」駅 バス停「日野サザンポート前」まで 徒歩 4 分 バス利用 13分

横浜市港南区 野庭町

3,680万円

3LDK

今週末モデルハウス見学会開催中!「茅ヶ崎」駅利用 新築一戸建て (C)

東海道本線「茅ヶ崎」駅 バス停「町屋」まで 徒歩 9 分 バス利用 7分

東海道本線「平塚」駅 バス停「町屋」まで 徒歩 9 分 バス利用 12分

茅ヶ崎市 下町屋2丁目

3,690万円

3SLDK

建物完成しました!今週末内覧会開催中!「茅ヶ崎」駅利用 未入居一戸建て(6)

東海道本線「茅ヶ崎」駅 バス停「今宿」まで 徒歩 5 分 バス利用 7分

湘南新宿高「平塚」駅 バス停「今宿」まで 徒歩 5 分 バス利用 10分

茅ヶ崎市 今宿

3,690万円

4LDK

建物完成しました!今週末内覧会開催中!「茅ヶ崎」駅利用 未入居一戸建て(4)

東海道本線「茅ヶ崎」駅 バス停「今宿」まで 徒歩 5 分 バス利用 7分

湘南新宿高「平塚」駅 バス停「今宿」まで 徒歩 5 分 バス利用 10分

茅ヶ崎市 今宿

3,690万円

4LDK

お気軽にどうぞ!

資料請求 現地見学 電話でお問い合わせ
0120-046-690