1. トップページ
  2. 建物完成しました!今週末内覧会開催中!「茅ヶ崎」駅利用 新築一戸建て(17)

建物完成しました!今週末内覧会開催中!「茅ヶ崎」駅利用 新築一戸建て(17)

価格
4,980万円
物件種別
新築一戸建て
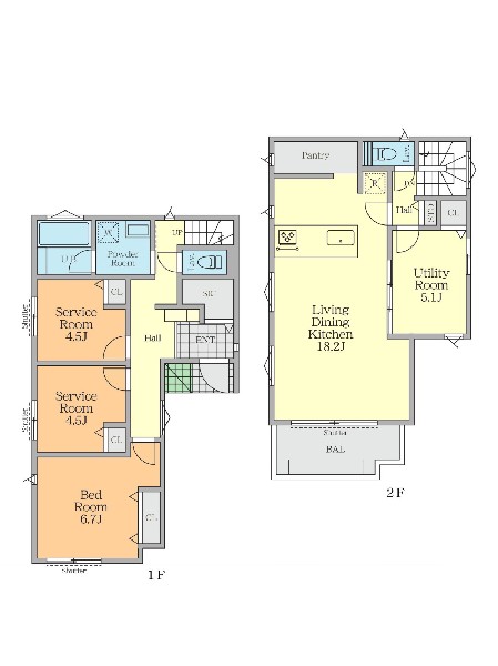
間取り
1LDK+2S
所在地
茅ヶ崎市 松林1丁目
交通
  • 東海道本線「茅ヶ崎」駅 バス停「菱沼」まで 徒歩 5 分 バス利用 7分
  • 東海道本線「辻堂」駅 バス停「菱沼」まで 徒歩 5 分 バス利用 10分
土地面積
100.20㎡
建物面積
99.52㎡
  • 前回情報更新日 2026.04.04
  • 次回情報更新予定日 2026.04.18
資料請求 現地見学 電話でお問い合わせ
0120-046-690
間取り
間取り
区画図
区画図

この物件のココがオススメ!

東海道線「茅ヶ崎」駅利用。全31区画の大型開発分譲住宅。整形地。カースペース2台。5帖のユーティリティールームで、家事がはかどりますね。サービスルームは、居室としても使用できます。全居室収納と大型パントリーやシューズインクローゼットなど収納たっぷりで、荷物が多くても安心ですね。

こだわりポイント

  • 耐震に配慮された建物
  • 断熱に配慮された建物
  • 省エネに配慮された建物
  • 食器洗い洗浄乾燥機
  • 浴室換気乾燥暖房機
  • 区画整理分譲地内に住む
  • シューズインクローク
  • LDKは2階に
  • LDK18帖以上
  • 広々バルコニー
  • 対面キッチン
  • 浴室1坪以上
  • パントリー
  • 小学校10分以内
  • スーパー10分以内
  • コンビニ10分以内
  • 保育園10分以内
  • 公園10分以内
  • 都市ガス
  • フラット35利用可
  • カースペース2台
  • 20棟以上の分譲地
  • 整形地

お気軽にどうぞ!

資料請求 現地見学 電話でお問い合わせ
0120-046-690

地図

申し訳ありません
こちらは会員限定機能です

会員登録で利用できる6つの便利機能

詳しく見る

お気軽にどうぞ!

資料請求 現地見学 電話でお問い合わせ
0120-046-690

頭金0万円・金利0.495%の場合

ボーナス時(年2回)お支払額

0

この物件の月々のお支払額

139,486

年収に対する返済比率

56

  • ※会員登録し、詳細情報を記入されますと、全ての物件で自動的に金額が表示され、大変便利です。
  • ※まだ会員登録をされていない方は、下記チェック欄をご記入ください。
  • ※上記計算は物件価格4,980万円+諸経費 8%込みの金額による結果となります。
  • ※返済金額はあくまでも目安です。

お客様の条件からシミュレーションするには?

会員登録
マイページから登録

金利

直接入力する

ボーナス払い(年2回)

返済年数

頭金

直接入力する

 万円(半角数字)

年収

 万円(半角数字)
価格 4,980万円
物件種別 新築一戸建て
間取り 1LDK+2S
所在地 茅ヶ崎市 松林1丁目
交通
  • 東海道本線「茅ヶ崎」駅 バス停「菱沼」まで 徒歩 5 分 バス利用 7分
  • 東海道本線「辻堂」駅 バス停「菱沼」まで 徒歩 5 分 バス利用 10分
土地面積 100.20㎡
建物面積 99.52㎡
学区 松林小学校、松林中学校
用途地域 第一種中高層住居専用
建ぺい率 60%
容積率 200%
地目 宅地
駐車場 有り カースペース
接道 南西4.5m
権利 所有権
私道面積 無し
セットバック 無し
建物構造 木造
建物階数 2階
築年月 2025年11月
入居日 即時
都市計画 市街化区域
取引態様 仲介
物件番号 S00931-17
設備 公営水道、公共下水、分譲タイプ、2×4工法、省エネルギー対策、耐震構造、スレート葺、フラット35・S適合証明書、BELS/省エネ基準適合認定書あり、耐震・制震・免震、駐車場2台以上、緑豊かな住宅地、閑静な住宅地、開発分譲地内、スーパーが近い(10分以内)、小学校徒歩10分以内、中学校徒歩10分以内、公園5分以内、コンビニ5分以内、システムキッチン、ガス3口、食器洗い機付き、浄水器、I型キッチン、パントリー(食器・食品の収納庫)、ユニットバス、追い焚き、浴室乾燥機、ウォシュレット、トイレ2ヶ所、浴室1坪以上、浴室に窓、暖房便座、浴室暖房、バルコニー、ワイドバルコニー、2階建、LDK18畳以上、全居室6畳以上、省エネ給湯器、全室2面採光、全室フローリング、クローゼット、収納、床下収納、全居室収納、シャンプドレッサー付き、モニタ付きインターフォン、全居室複層ガラスか複層サッシ、24時間換気システム、建物10年保証
建築確認番号 第25KAK建確00218号
特記事項 文化財保護法:有 宅地造成工事規制区域:有 高度地区:有 準防火地域:有 日影制限:有 高さ限度:有 その他制限事項:フラット35利用の場合、適合証明書取得費用がかかります(110、000円) ゴミ置場(14号棟側):3.49平米1/19有、 ゴミ置場(30号棟側):3.5平米1/19有。※敷地内に、電柱及び支線が入る場合がございます。 文化財保護法:有/宅地造成工事規制区域:有/高度地区:有/準防火地域:有/日影制限:有/高さ限度:有/フラット35利用の場合、適合証明書取得費用がかかります(110、000円) ゴミ置場(14号棟側):3.49平米1/11有、 ゴミ置場(30号棟側):3.5平米1/11有。※敷地内に、電柱及び支線が入る場合がございます。 /
備考 東海道線「茅ヶ崎」駅利用。全31区画の大型開発分譲住宅。整形地。カースペース2台。5帖のユーティリティールームで、家事がはかどりますね。サービスルームは、居室としても使用できます。全居室収納と大型パントリーやシューズインクローゼットなど収納たっぷりで、荷物が多くても安心ですね。

お気軽にどうぞ!

資料請求 現地見学 電話でお問い合わせ
0120-046-690

このエリアでお探しの方へ

建物完成しました!今週末内覧会開催中!「茅ヶ崎」駅利用 新築一戸建て(22)

東海道本線「茅ヶ崎」駅 バス停「菱沼」まで 徒歩 5 分 バス利用 7分

東海道本線「辻堂」駅 バス停「菱沼」まで 徒歩 5 分 バス利用 10分

茅ヶ崎市 松林1丁目

4,680万円

4LDK

今週末モデルハウス見学会開催中!「鶴ケ峰」駅利用 新築一戸建て 全室2面採光

相模鉄道線「鶴ヶ峰」駅 徒歩 25 分

相模鉄道線「鶴ヶ峰」駅 バス停「白根小学校前」まで 徒歩 6 分 バス利用 4分

横浜市旭区 白根5丁目

4,680万円

4LDK

今週末モデルハウス見学会開催中!「茅ヶ崎」駅利用 新築一戸建て

東海道本線「茅ヶ崎」駅 徒歩 37 分

相模線「茅ヶ崎」駅 バス停「柳島」まで 徒歩 3 分 バス利用 8分

茅ヶ崎市 柳島1丁目

4,680万円

4LDK

今週末モデルハウス見学会開催中!「和田町」駅徒歩4分 借地権付き新築一戸建て 通勤・通学に便利な立地

相模鉄道線「和田町」駅 徒歩 4 分

東海道本線「横浜」駅 バス停「和田町」まで 徒歩 1 分 バス利用 13分

横浜市保土ケ谷区 和田1丁目

4,680万円

3LDK

今週末モデルハウス見学会開催中!京急「弘明寺」駅利用 新築一戸建て 閑静な住宅地

京浜急行本線「弘明寺」駅 徒歩 23 分

横須賀線「東戸塚」駅 バス停「引越坂」まで 徒歩 3 分 バス利用 15分

横浜市南区 六ツ川2丁目

4,680万円

4LDK

川崎市宮前区初山2丁目 新築一戸建 4680万円 5号棟

田園都市線「溝の口」駅 バス停「初山」まで 徒歩 1 分 バス利用 16分

小田急線「向ヶ丘遊園」駅 バス停「原ヶ谷」まで 徒歩 7 分 バス利用 15分

川崎市宮前区 初山2丁目

4,680万円

3LDK

川崎市宮前区初山2丁目 新築一戸建 4680万円 8号棟

田園都市線「溝の口」駅 バス停「初山」まで 徒歩 1 分 バス利用 16分

小田急線「向ヶ丘遊園」駅 バス停「原ヶ谷」まで 徒歩 7 分 バス利用 15分

川崎市宮前区 初山2丁目

4,680万円

3LDK

川崎市宮前区神木本町5丁目 新築一戸建 4680万円

田園都市線「溝の口」駅 バス停「向丘中学校」まで 徒歩 3 分 バス利用 13分

南武線「武蔵溝ノ口」駅 バス停「向丘中学校」まで 徒歩 3 分 バス利用 13分

川崎市宮前区 神木本町5丁目

4,680万円

3SLDK

値下げしました!「片倉町」駅徒歩13分 新築一戸建て(3) 全8棟 閑静な住宅地

ブルーライン「片倉町」駅 徒歩 13 分

東海道本線「横浜」駅 バス停「峰沢団地前」まで 徒歩 5 分 バス利用 10分

横浜市神奈川区 片倉2丁目

4,680万円

3LDK

値下げしました!「舞岡」駅徒歩13分 新築一戸建て 角地

ブルーライン「舞岡」駅 徒歩 13 分

横須賀線「戸塚」駅 バス停「坂下口」まで 徒歩 1 分 バス利用 14分

横浜市戸塚区 南舞岡4丁目

4,680万円

4LDK

建物完成しました! 今週末内覧会開催中!「港南台」駅利用 新築一戸建て(8) 小屋裏収納付き

根岸線「港南台」駅 バス停「光明寺」まで 徒歩 8 分 バス利用 13分

東海道本線「大船」駅 バス停「光明寺」まで 徒歩 8 分 バス利用 21分

横浜市栄区 庄戸4丁目

4,680万円

4LDK

川崎市宮前区東有馬5丁目 新築一戸建 4680万円 1号棟

グリーンライン「北山田」駅 徒歩 16 分

東急東横線「武蔵小杉」駅 バス停「東有馬第一団地前」まで 徒歩 3 分 バス利用 35分

川崎市宮前区 東有馬5丁目

4,680万円

4LDK

お気軽にどうぞ!

資料請求 現地見学 電話でお問い合わせ
0120-046-690
来店予約