ようこそ!ゲストさん
お気に入り
保存した検索条件
閲覧履歴
会員登録
ログイン
0120-046-690
選択中の条件:都市ガス
詳細条件
-
こだわり
都市ガス
該当件数
2,334件
横浜市鶴見区馬場3丁目 建築条件付売地 3790.4万円 1区画
土地・売り地
3,790万円
2025.12.11更新
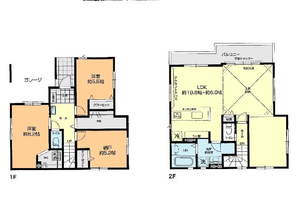
建物完成しました!今週末内覧会開催中!「長後」駅徒歩15分 新築一戸建て
間取り
建物完成しましたのでご見学頂けます!
新築一戸建て
3SLDK
2025.11.28更新
今週末モデルハウス見学会開催中!「瀬谷」駅利用 新築一戸建て(C) カースペース2台
4LDK
2024.08.15更新
今週末モデルハウス見学会開催中!京急「弘明寺」駅利用 新築一戸建て(A) 角地
3LDK
2024.09.12更新
川崎市川崎区浅田2丁目 建築条件付売地 3790万円 C区画
2025.12.12更新
建物完成しました!今週末内覧会開催中!「湘南台」駅利用 新築一戸建て
3,799万円
2SLDK
2025.12.16更新
今週末内覧会開催中!「東戸塚」駅利用 中古一戸建て カースペース2台
中古一戸建て
2025.12.04更新
川崎市多摩区中野島5丁目 中古一戸建 3799万円
値下げしました
申し訳ありません こちらは会員限定物件です
会員登録で利用できる6つの便利機能
川崎市多摩区西生田3丁目 建築条件付売地 3800万円 1区画
3,800万円
2025.12.15更新
値下げしました!建物完成しました!「能見台」駅徒歩10分 未入居中古一戸建て ペアガラス
3,850万円
今週末内覧会開催中!「西谷」駅利用 中古一戸建て 閑静な住宅地 全居室2面採光
3,880万円
2024.08.16更新