1. トップページ
  2. 今週末モデルハウス見学会開催中!「茅ヶ崎」駅利用 新築一戸建て(4)

今週末モデルハウス見学会開催中!「茅ヶ崎」駅利用 新築一戸建て(4)

価格
4,380万円
物件種別
新築一戸建て
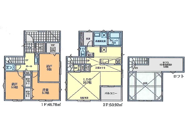
間取り
4LDK
所在地
茅ヶ崎市 芹沢
交通
  • 東海道本線「茅ヶ崎」駅 バス停「芹沢入口」まで 徒歩 16 分 バス利用 20分
  • 江ノ島線「湘南台」駅 バス停「芹沢入口」まで 徒歩 16 分 バス利用 16分
土地面積
165.46㎡
建物面積
108.89㎡
  • 前回情報更新日 2026.04.27
  • 次回情報更新予定日 2026.05.11
資料請求 現地見学 電話でお問い合わせ
0120-046-690
間取り
間取り
区画図
区画図

この物件のココがオススメ!

複数路線が乗り入れる「茅ヶ崎」駅利用。緑豊かで、閑静な住環境。カースペース2台駐車可能。全室2面採光なので、明るく通風良好なお住まいです。17帖LDKは、ご家族との会話が弾む対面キッチン。玄関に隣接のSICは、ベビーカーやゴルフバッグ等の収納に便利ですね。

こだわりポイント

  • 崖下・崖上
  • プロパンガス
  • 耐震に配慮された建物
  • 断熱に配慮された建物
  • 省エネに配慮された建物
  • 長期優良住宅
  • 食器洗い洗浄乾燥機
  • 浴室換気乾燥暖房機
  • 運転ラクラク生活
  • LDKは1階に
  • シューズインクローク
  • ウォークインクローゼット
  • LDK15帖以上
  • 対面キッチン
  • 浴室1坪以上
  • パントリー
  • 大規模公園10分以内
  • 公園10分以内
  • フラット35利用可
  • カースペース2台
  • 道路広々(5m以上)
  • 整形地

お気軽にどうぞ!

資料請求 現地見学 電話でお問い合わせ
0120-046-690

地図

申し訳ありません
こちらは会員限定機能です

会員登録で利用できる6つの便利機能

詳しく見る

お気軽にどうぞ!

資料請求 現地見学 電話でお問い合わせ
0120-046-690

頭金0万円・金利0.495%の場合

ボーナス時(年2回)お支払額

0

この物件の月々のお支払額

122,679

年収に対する返済比率

49

  • ※会員登録し、詳細情報を記入されますと、全ての物件で自動的に金額が表示され、大変便利です。
  • ※まだ会員登録をされていない方は、下記チェック欄をご記入ください。
  • ※上記計算は物件価格4,380万円+諸経費 8%込みの金額による結果となります。
  • ※返済金額はあくまでも目安です。

お客様の条件からシミュレーションするには?

会員登録
マイページから登録

金利

直接入力する

ボーナス払い(年2回)

返済年数

頭金

直接入力する

 万円(半角数字)

年収

 万円(半角数字)
価格 4,380万円
物件種別 新築一戸建て
間取り 4LDK
所在地 茅ヶ崎市 芹沢
交通
  • 東海道本線「茅ヶ崎」駅 バス停「芹沢入口」まで 徒歩 16 分 バス利用 20分
  • 江ノ島線「湘南台」駅 バス停「芹沢入口」まで 徒歩 16 分 バス利用 16分
土地面積 165.46㎡
建物面積 108.89㎡
学区 小出小学校、北陽中学校
用途地域 無指
建ぺい率 50%
容積率 100%
地目 宅地
駐車場 有り カースペース
接道 南東8.4m
権利 所有権
私道面積 無し
セットバック 無し
建物構造 木造
建物階数 2階
築年月 2026年07月
入居日 2026年08月
都市計画 市街化調整区域
取引態様 仲介
物件番号 S01037-4
設備 個別LPG、公営水道、個別浄化槽、設計住宅性能評価付、省エネルギー対策、フラット35・S適合証明書、BELS/省エネ基準適合認定書あり、耐震・制震・免震、駐車場2台以上、緑豊かな住宅地、閑静な住宅地、土地50坪以上、前道6m以上、システムキッチン、ガス3口、食器洗い機付き、浄水器、I型キッチン、パントリー(食器・食品の収納庫)、ユニットバス、追い焚き、浴室乾燥機、ウォシュレット、トイレ2ヶ所、浴室1坪以上、暖房便座、浴室暖房、バルコニー、2階建、LDK15畳以上、省エネ給湯器、採光2面、全室2面採光、東南向き、フローリング、スマートキー、クローゼット、収納、床下収納、下駄箱、全居室収納、シャンプドレッサー付き、フラット35Sに対応、モニタ付きインターフォン、カードキー、複層ガラス、24時間換気システム、建物10年保証
建築確認番号 第トラストT25-0388号
特記事項 崖下につき建築制限:有 崖上につき建築制限:有 宅地造成工事規制区域:有 日影制限:有 その他制限事項:建築基準法第22条区域 建物建築・再建築の際、深基礎、基礎杭、高基礎、防護壁の設置、擁壁の補修・構築・再構築、外壁後退等の対策が必要となる場合があります フラット35S利用の場合、適合証明書取得費用がかかります(8.8万円) ゴミ置場5.01平米1/12有 崖下につき建築制限:有/崖上につき建築制限:有/宅地造成工事規制区域:有/日影制限:有/建築基準法第22条区域 建物建築・再建築の際、深基礎、基礎杭、高基礎、防護壁の設置、擁壁の補修・構築・再構築、外壁後退等の対策が必要となる場合があります フラット35S利用の場合、適合証明書取得費用がかかります(8.8万円) ゴミ置場5.01平米1/12有。 /
備考 複数路線が乗り入れる「茅ヶ崎」駅利用。緑豊かで、閑静な住環境。カースペース2台駐車可能。全室2面採光なので、明るく通風良好なお住まいです。17帖LDKは、ご家族との会話が弾む対面キッチン。玄関に隣接のSICは、ベビーカーやゴルフバッグ等の収納に便利ですね。

お気軽にどうぞ!

資料請求 現地見学 電話でお問い合わせ
0120-046-690

このエリアでお探しの方へ

今週末モデルハウス見学会開催中!「辻堂」駅利用 新築一戸建て(1)

東海道本線「辻堂」駅 バス停「二番構保険医療センター」まで 徒歩 8 分 バス利用 11分

ブルーライン「湘南台」駅 バス停「一ノ坪」まで 徒歩 2 分 バス利用 14分

藤沢市 石川

4,180万円

1LDK+2S

今週末モデルハウス見学会開催中!「茅ヶ崎」駅利用 新築一戸建て(1)

東海道本線「茅ヶ崎」駅 バス停「芹沢入口」まで 徒歩 16 分 バス利用 20分

江ノ島線「湘南台」駅 バス停「芹沢入口」まで 徒歩 16 分 バス利用 16分

茅ヶ崎市 芹沢

4,180万円

4LDK

今週末モデルハウス見学会開催中!「六会日大前」駅利用 新築一戸建て(2)

江ノ島線「六会日大前」駅 徒歩 31 分

いずみ野線「湘南台」駅 バス停「石川橋」まで 徒歩 1 分 バス利用 12分

藤沢市 石川2丁目

4,280万円

1LDK+2S

今週末モデルハウス見学会開催中!「六会日大前」駅利用 新築一戸建て(1)

江ノ島線「六会日大前」駅 徒歩 31 分

いずみ野線「湘南台」駅 バス停「石川橋」まで 徒歩 1 分 バス利用 12分

藤沢市 石川2丁目

4,380万円

3LDK

今週末モデルハウス見学会開催中!「茅ヶ崎」駅利用 新築一戸建て(2)

東海道本線「茅ヶ崎」駅 バス停「芹沢入口」まで 徒歩 16 分 バス利用 20分

江ノ島線「湘南台」駅 バス停「芹沢入口」まで 徒歩 16 分 バス利用 16分

茅ヶ崎市 芹沢

4,380万円

4LDK

建物完成しました!今週末内覧会開催中!「湘南台」駅利用 未入居一戸建て

いずみ野線「湘南台」駅 バス停「和泉橋」まで 徒歩 1 分 バス利用 6分

江ノ島線「六会日大前」駅 バス停「3号西」まで 徒歩 11 分 バス利用 3分

藤沢市 石川1丁目

4,680万円

3LDK

今週末モデルハウス見学会開催中!「茅ヶ崎」駅利用 新築一戸建て

東海道本線「茅ヶ崎」駅 バス停「鶴が台入口」まで 徒歩 4 分 バス利用 8分

相模線「北茅ヶ崎」駅 徒歩 18 分

茅ヶ崎市 高田1丁目

4,080万円

3SLDK

今週末モデルハウス見学会開催中!「茅ヶ崎」駅利用 新築一戸建て(1)

東海道本線「茅ヶ崎」駅 バス停「柳島」まで 徒歩 4 分 バス利用 8分

相模線「茅ヶ崎」駅 バス停「柳島」まで 徒歩 4 分 バス利用 8分

茅ヶ崎市 柳島1丁目

4,180万円

3LDK

今週末モデルハウス見学会開催中!「辻堂」駅利用 新築一戸建て

東海道本線「辻堂」駅 バス停「松林ケアセンター前」まで 徒歩 6 分 バス利用 6分

相模線「茅ヶ崎」駅 バス停「室田小学校入口」まで 徒歩 8 分 バス利用 14分

茅ヶ崎市 松林3丁目

4,190万円

4LDK

建物完成しました!今週末内覧会開催中!「北茅ヶ崎」駅徒歩9分 新築一戸建て

相模線「北茅ヶ崎」駅 徒歩 9 分

東海道本線「茅ヶ崎」駅 徒歩 20 分

茅ヶ崎市 円蔵2丁目

4,190万円

3LDK

建物完成しました!今週末内覧会開催中!「茅ヶ崎」駅利用 新築一戸建て(1) SIC

東海道本線「茅ヶ崎」駅 徒歩 40 分

湘南新宿高「茅ヶ崎」駅 バス停「古川」まで 徒歩 4 分 バス利用 12分

茅ヶ崎市 今宿

4,199万円

4LDK

建物完成しました!今週末内覧会開催中!「茅ヶ崎」駅利用 新築一戸建て(2)

東海道本線「茅ヶ崎」駅 バス停「鶴が台入口」まで 徒歩 6 分 バス利用 8分

相模線「茅ヶ崎」駅 バス停「鶴が台入口」まで 徒歩 6 分 バス利用 8分

茅ヶ崎市 高田1丁目

4,249万円

4LDK

お気軽にどうぞ!

資料請求 現地見学 電話でお問い合わせ
0120-046-690
来店予約