1. トップページ
  2. 今週末モデルハウス見学会開催中!「茅ヶ崎」駅利用 新築一戸建て

今週末モデルハウス見学会開催中!「茅ヶ崎」駅利用 新築一戸建て

価格
5,880万円
物件種別
新築一戸建て
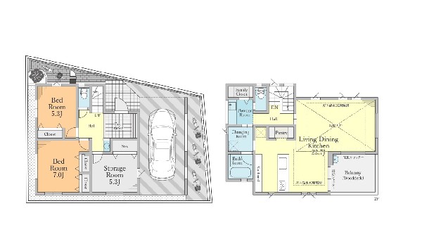
間取り
2SLDK
所在地
茅ヶ崎市 松が丘2丁目
交通
  • 東海道本線「茅ヶ崎」駅 徒歩 23 分
  • 相模線「茅ヶ崎」駅 バス停「ひばりが丘」まで 徒歩 6 分 バス利用 9分
土地面積
99.42㎡
建物面積
123.38㎡
  • 前回情報更新日 2026.04.27
  • 次回情報更新予定日 2026.05.11
資料請求 現地見学 電話でお問い合わせ
0120-046-690
間取り
間取り
区画図
区画図

この物件のココがオススメ!

JR東海道本線「茅ヶ崎」駅利用。緑豊かで閑静な住環境。日差しが取り込みやすくプライバシーに配慮した2階リビング。空気の乾燥が少なく足元ポカポカの床暖房がDKに装備。

こだわりポイント

  • 海が近い家
  • サーファーに嬉しい家
  • 耐震に配慮された建物
  • 断熱に配慮された建物
  • 床暖房
  • 食器洗い洗浄乾燥機
  • 浴室換気乾燥暖房機
  • 大人の二人暮らし
  • LDKは2階に
  • LDK20帖以上
  • 対面キッチン
  • 浴室1坪以上
  • パントリー
  • 大規模公園10分以内
  • スーパー10分以内
  • コンビニ10分以内
  • 小児科医院10分以内
  • 保育園10分以内
  • 幼稚園10分以内
  • 公園10分以内
  • 都市ガス
  • 低層住居専用地域

お気軽にどうぞ!

資料請求 現地見学 電話でお問い合わせ
0120-046-690

地図

申し訳ありません
こちらは会員限定機能です

会員登録で利用できる6つの便利機能

詳しく見る

お気軽にどうぞ!

資料請求 現地見学 電話でお問い合わせ
0120-046-690

頭金0万円・金利0.495%の場合

ボーナス時(年2回)お支払額

0

この物件の月々のお支払額

164,696

年収に対する返済比率

66

  • ※会員登録し、詳細情報を記入されますと、全ての物件で自動的に金額が表示され、大変便利です。
  • ※まだ会員登録をされていない方は、下記チェック欄をご記入ください。
  • ※上記計算は物件価格5,880万円+諸経費 8%込みの金額による結果となります。
  • ※返済金額はあくまでも目安です。

お客様の条件からシミュレーションするには?

会員登録
マイページから登録

金利

直接入力する

ボーナス払い(年2回)

返済年数

頭金

直接入力する

 万円(半角数字)

年収

 万円(半角数字)
価格 5,880万円
物件種別 新築一戸建て
間取り 2SLDK
所在地 茅ヶ崎市 松が丘2丁目
交通
  • 東海道本線「茅ヶ崎」駅 徒歩 23 分
  • 相模線「茅ヶ崎」駅 バス停「ひばりが丘」まで 徒歩 6 分 バス利用 9分
土地面積 99.42㎡
建物面積 123.38㎡
学区 浜須賀小学校、浜須賀中学校
用途地域 第一種低層住居専用
建ぺい率 60%
容積率 150%
地目 宅地
駐車場 有り ビルトイン車庫 駐車場面積:20.28㎡
接道 北東5.5m
権利 所有権
私道面積 無し
セットバック 無し
建物構造 木造
建物階数 2階
築年月 2026年05月
入居日 2026年06月
都市計画 市街化区域
取引態様 仲介
物件番号 S00987
設備 公営水道、公共下水、2×4工法、設計住宅性能評価付、建設住宅性能評価付、駐車場1台、緑豊かな住宅地、閑静な住宅地、海まで2km以内、スーパーが近い(10分以内)、中学校徒歩10分以内、コンビニ5分以内、システムキッチン、ガス3口、食器洗い機付き、浄水器、パントリー(食器・食品の収納庫)、ユニットバス、浴室乾燥機、ウォシュレット、トイレ2ヶ所、浴室1坪以上、浴室に窓、暖房便座、セカンド洗面台、浴室暖房、バルコニー、ワイドバルコニー、南面バルコニー、2階建、LDK20畳以上、スロップシンク、採光2面、全室2面採光、東南向き、フローリング、クローゼット、下駄箱、全居室収納、洗面室収納、シャンプドレッサー付き、洗面所独立、モニタ付きインターフォン、24時間換気システム、建物10年保証、勾配天井、電動シャッター
建築確認番号 第25UDI1T建03898号
特記事項 宅地造成工事規制区域:有 準防火地域:有 日影制限:有 敷地面積最低限度:有 高さ限度:有 その他制限事項: 建物面積に車庫部分約20.28平米含  宅地造成工事規制区域:有/準防火地域:有/日影制限:有/敷地面積最低限度:有/高さ限度:有/ 建物面積に車庫部分約20.28平米含。 /
備考 JR東海道本線「茅ヶ崎」駅利用。緑豊かで閑静な住環境。日差しが取り込みやすくプライバシーに配慮した2階リビング。空気の乾燥が少なく足元ポカポカの床暖房がDKに装備。

お気軽にどうぞ!

資料請求 現地見学 電話でお問い合わせ
0120-046-690

このエリアでお探しの方へ

今週末モデルハウス見学会開催中!「鶴見」駅利用 新築一戸建て(1) 全室2面採光

京浜東北線「鶴見」駅 バス停「陸橋下」まで 徒歩 7 分 バス利用 15分

東急東横線「大倉山」駅 バス停「陸橋下」まで 徒歩 7 分 バス利用 13分

横浜市鶴見区 梶山2丁目

5,580万円

4LDK

川崎市宮前区梶ケ谷 新築一戸建 5580万円 2号棟

田園都市線「宮崎台」駅 徒歩 22 分

南武線「武蔵新城」駅 バス停「金山」まで 徒歩 5 分 バス利用 19分

川崎市宮前区 梶ケ谷

5,580万円

4LDK

値下げしました!今週末モデルハウス見学会開催中!「舞岡」駅利用 新築一戸建て 角地

ブルーライン「舞岡」駅 徒歩 25 分

ブルーライン「上永谷」駅 バス停「西洗」まで 徒歩 3 分 バス利用 9分

横浜市戸塚区 南舞岡4丁目

5,580万円

4LDK

値下げしました!建物完成しました!「下永谷」駅徒歩2分 新築一戸建て(2) カースペース2台

ブルーライン「下永谷」駅 徒歩 2 分

京浜急行本線「上大岡」駅 バス停「スポーツ公園前」まで 徒歩 7 分 バス利用 23分

横浜市港南区 日限山1丁目

5,580万円

4LDK

値下げしました!建物完成しました!内覧会開催中!「山手」駅利用 新築一戸建て(4) 対面キッチン

根岸線「山手」駅 徒歩 25 分

みなとみらい線「元町・中華街」駅 バス停「東福院前」まで 徒歩 5 分 バス利用 22分

横浜市中区 本牧間門

5,580万円

2LDK+2S

値下げしました!建物完成しました!内覧会開催中!「山手」駅利用 新築一戸建て(7) 対面キッチン

根岸線「山手」駅 徒歩 25 分

みなとみらい線「元町・中華街」駅 バス停「東福院前」まで 徒歩 5 分 バス利用 22分

横浜市中区 本牧間門

5,580万円

3SLDK

横浜市青葉区榎が丘 新築一戸建 5580万円 1号棟

田園都市線「青葉台」駅 徒歩 16 分

田園都市線「長津田」駅 徒歩 24 分

横浜市青葉区 榎が丘

5,580万円

4LDK

今週末モデルハウス見学会開催中!「洋光台」駅徒歩14分 新築一戸建て(2) SIC

根岸線「洋光台」駅 徒歩 14 分

京浜急行本線「杉田」駅 バス停「坂下」まで 徒歩 5 分 バス利用 10分

横浜市磯子区 洋光台6丁目

5,580万円

3SLDK

横浜市鶴見区駒岡4丁目 新築一戸建 5580万円 A号棟

東急東横線「綱島」駅 バス停「日大グランド前」まで 徒歩 9 分 バス利用 7分

グリーンライン「日吉」駅 バス停「鷹野大橋」まで 徒歩 4 分 バス利用 16分

横浜市鶴見区 駒岡4丁目

5,580万円

3LDK

稲城市押立 新築一戸建 5580万円 12号棟

南武線「矢野口」駅 徒歩 15 分

南武線「稲城長沼」駅 徒歩 18 分

稲城市 押立

5,580万円

3LDK

今週末モデルハウス見学会開催中!「辻堂」駅利用 新築一戸建て

東海道本線「辻堂」駅 バス停「南大平」まで 徒歩 6 分 バス利用 13分

江ノ島線「善行」駅 バス停「駒寄」まで 徒歩 9 分 バス利用 14分

茅ヶ崎市 堤

5,580万円

4LDK

稲城市押立 新築一戸建 5580万円 11号棟

南武線「矢野口」駅 徒歩 15 分

南武線「稲城長沼」駅 徒歩 18 分

稲城市 押立

5,580万円

3LDK

お気軽にどうぞ!

資料請求 現地見学 電話でお問い合わせ
0120-046-690
来店予約