1. トップページ
  2. 今週末モデルハウス見学会開催中!「茅ヶ崎」駅利用 新築一戸建て(2)

今週末モデルハウス見学会開催中!「茅ヶ崎」駅利用 新築一戸建て(2)

価格
4,899万円
物件種別
新築一戸建て
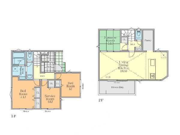
間取り
4LDK
所在地
茅ヶ崎市 柳島2丁目
交通
  • 東海道本線「茅ヶ崎」駅 バス停「柳島」まで 徒歩 4 分 バス利用 8分
  • 相模線「茅ヶ崎」駅 バス停「柳島」まで 徒歩 4 分 バス利用 8分
土地面積
150.16㎡
建物面積
108.47㎡
  • 前回情報更新日 2026.05.14
  • 次回情報更新予定日 2026.05.28
資料請求 現地見学 電話でお問い合わせ
0120-046-690
間取り
間取り
区画図
区画図

この物件のココがオススメ!

複数路線が乗り入れる「茅ヶ崎」駅利用。緑豊かで、閑静な住環境。カースペース2台駐車可能。全室2面採光なので、明るく通風良好なお住まいです。21帖LDKは、対面キッチン・リビングイン階段なので、ご家族とのコミュニケーションがとりやすいですね。

こだわりポイント

  • 道路狭い(4メートル未満)
  • 省エネに配慮された建物
  • 食器洗い洗浄乾燥機
  • 浴室換気乾燥暖房機
  • LDKは1階に
  • ウォークインクローゼット
  • リビングイン階段
  • LDK20帖以上
  • 主寝室 8帖以上
  • 対面キッチン
  • 浴室1坪以上
  • 小学校10分以内
  • 大規模公園10分以内
  • 有料道路インター2キロ以内
  • 大型商業施設15分以内
  • コンビニ10分以内
  • 保育園10分以内
  • 幼稚園10分以内
  • 公園10分以内
  • 都市ガス
  • フラット35利用可
  • カースペース2台

お気軽にどうぞ!

資料請求 現地見学 電話でお問い合わせ
0120-046-690

地図

申し訳ありません
こちらは会員限定機能です

会員登録で利用できる6つの便利機能

詳しく見る

お気軽にどうぞ!

資料請求 現地見学 電話でお問い合わせ
0120-046-690

頭金0万円・金利0.495%の場合

ボーナス時(年2回)お支払額

0

この物件の月々のお支払額

137,203

年収に対する返済比率

55

  • ※会員登録し、詳細情報を記入されますと、全ての物件で自動的に金額が表示され、大変便利です。
  • ※まだ会員登録をされていない方は、下記チェック欄をご記入ください。
  • ※上記計算は物件価格4,899万円+諸経費 8%込みの金額による結果となります。
  • ※返済金額はあくまでも目安です。

お客様の条件からシミュレーションするには?

会員登録
マイページから登録

金利

直接入力する

ボーナス払い(年2回)

返済年数

頭金

直接入力する

 万円(半角数字)

年収

 万円(半角数字)
価格 4,899万円
物件種別 新築一戸建て
間取り 4LDK
所在地 茅ヶ崎市 柳島2丁目
交通
  • 東海道本線「茅ヶ崎」駅 バス停「柳島」まで 徒歩 4 分 バス利用 8分
  • 相模線「茅ヶ崎」駅 バス停「柳島」まで 徒歩 4 分 バス利用 8分
土地面積 150.16㎡
建物面積 108.47㎡
学区 柳島小学校、中島中学校
用途地域 第一種中高層住居専用
建ぺい率 60%
容積率 165%
地目 宅地
駐車場 有り カースペース
接道 南西4.2m
権利 所有権
私道面積 無し
セットバック 無し
建物構造 木造
建物階数 2階
築年月 2026年05月
入居日 2026年06月
都市計画 市街化区域
取引態様 仲介
物件番号 S00939-2
設備 公営水道、公共下水、省エネルギー対策、フラット35・S適合証明書、BELS/省エネ基準適合認定書あり、駐車場2台以上、緑豊かな住宅地、閑静な住宅地、海まで2km以内、小学校徒歩10分以内、中学校徒歩10分以内、公園5分以内、システムキッチン、ガス3口、食器洗い機付き、浄水器、I型キッチン、ユニットバス、追い焚き、浴室乾燥機、ウォシュレット、トイレ2ヶ所、浴室1坪以上、浴室に窓、暖房便座、浴室暖房、バルコニー2面、2階建、LDK20畳以上、採光2面、全室2面採光、東南向き、南西向き、フローリング、全室フローリング、リビング階段、クローゼット、収納、床下収納、下駄箱、全居室収納、シャンプドレッサー付き、フラット35Sに対応、モニタ付きインターフォン、24時間換気システム、建物10年保証
建築確認番号 第25UDI1W建09960号
特記事項 不整形地:有 宅地造成工事規制区域:有 高度地区:有 準防火地域:有 日影制限:有 高さ限度:有 その他制限事項:土地面積に路地状部分約45.17平米含 土地面積に共用部分約0.29平米含 フラット35S利用の場合、適合証明書取得費用がかかります(11万円) 不整形地:有/宅地造成工事規制区域:有/高度地区:有/準防火地域:有/日影制限:有/高さ限度:有/土地面積に路地状部分約45.17平米含 土地面積に共用部分約0.29平米含 フラット35S利用の場合、適合証明書取得費用がかかります(11万円)。 /
備考 複数路線が乗り入れる「茅ヶ崎」駅利用。緑豊かで、閑静な住環境。カースペース2台駐車可能。全室2面採光なので、明るく通風良好なお住まいです。21帖LDKは、対面キッチン・リビングイン階段なので、ご家族とのコミュニケーションがとりやすいですね。

お気軽にどうぞ!

資料請求 現地見学 電話でお問い合わせ
0120-046-690

このエリアでお探しの方へ

今週末モデルハウス見学会開催中!「茅ヶ崎」駅利用 新築一戸建て(2)

東海道本線「茅ヶ崎」駅 バス停「今宿」まで 徒歩 7 分 バス利用 9分

東海道本線「平塚」駅 バス停「今宿」まで 徒歩 7 分 バス利用 10分

茅ヶ崎市 今宿

4,599万円

4LDK

今週末モデルハウス見学会開催中!「藤沢本町」駅利用 新築一戸建て(B)

江ノ島線「藤沢本町」駅 バス停「舟地蔵」まで 徒歩 4 分 バス利用 10分

東海道本線「辻堂」駅 バス停「舟地蔵」まで 徒歩 4 分 バス利用 8分

藤沢市 大庭

4,650万円

4LDK

値下げしました!「鶴ケ峰」駅利用 新築一戸建て(2) カースペース2台

相模鉄道線「鶴ヶ峰」駅 徒歩 18 分

横浜線「中山」駅 バス停「代官前」まで 徒歩 6 分 バス利用 24分

横浜市旭区 白根6丁目

4,650万円

3SLDK

今週末モデルハウス見学会開催中!「下永谷」駅利用 新築一戸建て 角地 ロフト 吹抜け

ブルーライン「下永谷」駅 徒歩 17 分

ブルーライン「上永谷」駅 徒歩 20 分

横浜市港南区 芹が谷5丁目

4,662万円

3LDK

川崎市宮前区菅生ケ丘 新築一戸建 4680万円

小田急線「生田」駅 バス停「鷲ヶ峰営業所前」まで 徒歩 6 分 バス利用 8分

田園都市線「溝の口」駅 バス停「稗原小学校前」まで 徒歩 4 分 バス利用 25分

川崎市宮前区 菅生ケ丘

4,680万円

4LDK

今週末モデルハウス見学会開催中!「南太田」駅徒歩13分 新築一戸建て(2)全室ペアガラス

京浜急行本線「南太田」駅 徒歩 13 分

横須賀線「保土ヶ谷」駅 徒歩 22 分

横浜市南区 庚台

4,680万円

4LDK

今週末モデルハウス見学会開催中!「南太田」駅徒歩13分 新築一戸建て(1)全室ペアガラス

京浜急行本線「南太田」駅 徒歩 13 分

横須賀線「保土ヶ谷」駅 徒歩 22 分

横浜市南区 庚台

4,680万円

4LDK

今週末モデルハウス見学会開催中!「和田町」駅徒歩4分 借地権付き新築一戸建て 通勤・通学に便利な立地

相模鉄道線「和田町」駅 徒歩 4 分

東海道本線「横浜」駅 バス停「和田町」まで 徒歩 1 分 バス利用 13分

横浜市保土ケ谷区 和田1丁目

4,680万円

3LDK

建物完成しました! 今週末内覧会開催中!「六浦」駅利用 新築一戸建て(2) WIC2カ所完備

逗子線「六浦」駅 徒歩 23 分

京浜急行本線「金沢八景」駅 バス停「大道中学校前」まで 徒歩 5 分 バス利用 8分

横浜市金沢区 東朝比奈3丁目

4,680万円

4LDK

川崎市多摩区東三田3丁目 新築一戸建 4680万円 1号棟

小田急線「生田」駅 徒歩 17 分

南武線「登戸」駅 徒歩 33 分

川崎市多摩区 東生田3丁目

4,680万円

2LDK+2S

建物完成しました!今週末内覧会開催中!「湘南台」駅利用 未入居一戸建て

いずみ野線「湘南台」駅 バス停「和泉橋」まで 徒歩 1 分 バス利用 6分

江ノ島線「六会日大前」駅 バス停「3号西」まで 徒歩 11 分 バス利用 3分

藤沢市 石川1丁目

4,680万円

3LDK

今週末モデルハウス見学会開催中!「戸塚」駅利用 新築一戸建て(1) ルーフバルコニー

東海道本線「戸塚」駅 バス停「戸塚工業団地」まで 徒歩 1 分 バス利用 10分

ブルーライン「踊場」駅 バス停「領家中学校前」まで 徒歩 10 分 バス利用 2分

横浜市戸塚区 上矢部町

4,680万円

4LDK

お気軽にどうぞ!

資料請求 現地見学 電話でお問い合わせ
0120-046-690
来店予約