1. トップページ
  2. 建物完成しました!今週末内覧会開催中!「茅ヶ崎」駅利用 新築一戸建て(15)

建物完成しました!今週末内覧会開催中!「茅ヶ崎」駅利用 新築一戸建て(15)

価格
5,180万円
物件種別
新築一戸建て
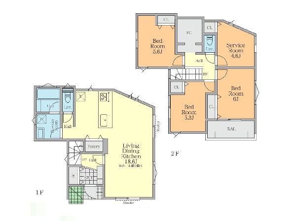
間取り
4LDK
所在地
茅ヶ崎市 松林1丁目
交通
  • 東海道本線「茅ヶ崎」駅 バス停「菱沼」まで 徒歩 5 分 バス利用 7分
  • 東海道本線「辻堂」駅 バス停「菱沼」まで 徒歩 5 分 バス利用 10分
土地面積
100.21㎡
建物面積
101.23㎡
  • 前回情報更新日 2026.04.04
  • 次回情報更新予定日 2026.04.18
資料請求 現地見学 電話でお問い合わせ
0120-046-690
間取り
間取り
区画図
区画図

この物件のココがオススメ!

東海道線「茅ヶ崎」駅利用。全31区画の大型開発分譲住宅。カースペース2台。全居室収納とパントリーやウォークインクローゼット、シューズインクローゼットなど収納たっぷりで、荷物が多くても安心ですね。

こだわりポイント

  • 耐震に配慮された建物
  • 断熱に配慮された建物
  • 省エネに配慮された建物
  • 食器洗い洗浄乾燥機
  • 浴室換気乾燥暖房機
  • 区画整理分譲地内に住む
  • LDKは1階に
  • シューズインクローク
  • ウォークインクローゼット
  • LDK18帖以上
  • 吹き抜け有り
  • 広々バルコニー
  • 対面キッチン
  • 浴室1坪以上
  • パントリー
  • 小学校10分以内
  • スーパー10分以内
  • コンビニ10分以内
  • 保育園10分以内
  • 公園10分以内
  • 都市ガス
  • フラット35利用可
  • カースペース2台
  • 20棟以上の分譲地

お気軽にどうぞ!

資料請求 現地見学 電話でお問い合わせ
0120-046-690

地図

申し訳ありません
こちらは会員限定機能です

会員登録で利用できる6つの便利機能

詳しく見る

お気軽にどうぞ!

資料請求 現地見学 電話でお問い合わせ
0120-046-690

頭金0万円・金利0.495%の場合

ボーナス時(年2回)お支払額

0

この物件の月々のお支払額

145,088

年収に対する返済比率

58

  • ※会員登録し、詳細情報を記入されますと、全ての物件で自動的に金額が表示され、大変便利です。
  • ※まだ会員登録をされていない方は、下記チェック欄をご記入ください。
  • ※上記計算は物件価格5,180万円+諸経費 8%込みの金額による結果となります。
  • ※返済金額はあくまでも目安です。

お客様の条件からシミュレーションするには?

会員登録
マイページから登録

金利

直接入力する

ボーナス払い(年2回)

返済年数

頭金

直接入力する

 万円(半角数字)

年収

 万円(半角数字)
価格 5,180万円
物件種別 新築一戸建て
間取り 4LDK
所在地 茅ヶ崎市 松林1丁目
交通
  • 東海道本線「茅ヶ崎」駅 バス停「菱沼」まで 徒歩 5 分 バス利用 7分
  • 東海道本線「辻堂」駅 バス停「菱沼」まで 徒歩 5 分 バス利用 10分
土地面積 100.21㎡
建物面積 101.23㎡
学区 松林小学校、松林中学校
用途地域 第一種中高層住居専用
建ぺい率 60%
容積率 200%
地目 宅地
駐車場 有り カースペース
接道 南東4.5m
権利 所有権
私道面積 無し
セットバック 無し
建物構造 木造
建物階数 2階
築年月 2025年11月
入居日 即時
都市計画 市街化区域
取引態様 仲介
物件番号 S00931-15
設備 公営水道、公共下水、吹き抜け、分譲タイプ、2×4工法、省エネルギー対策、耐震構造、スレート葺、フラット35・S適合証明書、BELS/省エネ基準適合認定書あり、耐震・制震・免震、駐車場2台以上、緑豊かな住宅地、閑静な住宅地、開発分譲地内、スーパーが近い(10分以内)、小学校徒歩10分以内、中学校徒歩10分以内、公園5分以内、コンビニ5分以内、システムキッチン、ガス3口、食器洗い機付き、浄水器、I型キッチン、パントリー(食器・食品の収納庫)、ユニットバス、追い焚き、浴室乾燥機、ウォシュレット、トイレ2ヶ所、浴室1坪以上、浴室に窓、暖房便座、浴室暖房、バルコニー、2階建、LDK18畳以上、省エネ給湯器、全室2面採光、全室フローリング、クローゼット、収納、床下収納、全居室収納、シャンプドレッサー付き、モニタ付きインターフォン、全居室複層ガラスか複層サッシ、24時間換気システム、建物10年保証
建築確認番号 第25KAK建確00184号
特記事項 文化財保護法:不整形地:有 有 隅切り:有 宅地造成工事規制区域:有 高度地区:有 準防火地域:有 日影制限:有 高さ限度:有 その他制限事項:フラット35利用の場合、適合証明書取得費用がかかります(110、000円) ゴミ置場(14号棟側):3.49平米1/11有、 ゴミ置場(30号棟側):3.5平米1/11有。※敷地内に、電柱及び支線が入る場合がございます。 フラット35利用の場合、適合証明書取得費用がかかります(110、000円) ゴミ置場(14号棟側):3.49平米1/11有、 ゴミ置場(30号棟側):3.5平米1/11有。※敷地内に、電柱及び支線が入る場合がございます。/文化財保護法:有/不整形地:有/隅切り:有/宅地造成工事規制区域:有/高度地区:有/準防火地域:有/日影制限:有/高さ限度:有。 /
備考 東海道線「茅ヶ崎」駅利用。全31区画の大型開発分譲住宅。カースペース2台。全居室収納とパントリーやウォークインクローゼット、シューズインクローゼットなど収納たっぷりで、荷物が多くても安心ですね。

お気軽にどうぞ!

資料請求 現地見学 電話でお問い合わせ
0120-046-690

このエリアでお探しの方へ

建物完成しました!今週末内覧会開催中!「茅ヶ崎」駅利用 新築一戸建て(21)

東海道本線「茅ヶ崎」駅 バス停「菱沼」まで 徒歩 5 分 バス利用 7分

東海道本線「辻堂」駅 バス停「菱沼」まで 徒歩 5 分 バス利用 10分

茅ヶ崎市 松林1丁目

4,880万円

3SLDK

建物完成しました!今週末内覧会開催中!「茅ヶ崎」駅利用 新築一戸建て(29)

東海道本線「茅ヶ崎」駅 バス停「菱沼」まで 徒歩 5 分 バス利用 7分

東海道本線「辻堂」駅 バス停「菱沼」まで 徒歩 5 分 バス利用 10分

茅ヶ崎市 松林1丁目

4,880万円

4LDK

建物完成しました!今週末内覧会開催中!「茅ヶ崎」駅利用 新築一戸建て(20)

東海道本線「茅ヶ崎」駅 バス停「菱沼」まで 徒歩 5 分 バス利用 7分

東海道本線「辻堂」駅 バス停「菱沼」まで 徒歩 5 分 バス利用 10分

茅ヶ崎市 松林1丁目

4,880万円

3SLDK

今週末モデルハウス見学会開催中!「大船」駅利用 新築一戸建て

東海道本線「大船」駅 徒歩 20 分

湘南モノレール「富士見町」駅 徒歩 10 分

鎌倉市 山崎

4,880万円

3LDK

今週末モデルハウス見学会開催中!「二俣川」駅利用 新築一戸建て 閑静な住宅地

相模鉄道線「二俣川」駅 徒歩 18 分

横須賀線「東戸塚」駅 バス停「南本宿交差点」まで 徒歩 5 分 バス利用 35分

横浜市旭区 南本宿町

4,880万円

4LDK

今週末モデルハウス見学会開催中!「三ツ境」駅利用 新築一戸建て(1) 長期優良住宅

相模鉄道線「三ッ境」駅 バス停「ニュータウン第7」まで 徒歩 2 分 バス利用 7分

いずみ野線「二俣川」駅 バス停「ニュータウン第7」まで 徒歩 2 分 バス利用 9分

横浜市旭区 金が谷2丁目

4,880万円

4LDK

川崎市幸区小向町 新築一戸建 4880万円 1号棟

京浜東北線「川崎」駅 徒歩 25 分

南武線「鹿島田」駅 徒歩 24 分

川崎市幸区 小向町

4,880万円

3LDK

建物完成しました! 今週末内覧会開催中!「瀬谷」駅徒歩14分 新築一戸建て(3) 床暖房完備

相模鉄道線「瀬谷」駅 徒歩 14 分

相模鉄道線「三ッ境」駅 徒歩 17 分

横浜市瀬谷区 瀬谷1丁目

4,880万円

4LDK

今週末モデルハウス見学会開催中!京急・BL「上大岡」駅利用 新築一戸建て(2) ルーフバルコニー

京浜急行本線「上大岡」駅 徒歩 20 分

横須賀線「東戸塚」駅 バス停「水道橋下」まで 徒歩 3 分 バス利用 16分

横浜市南区 別所5丁目

4,880万円

2LDK+2S

建物完成しました! 今週末内覧会開催中!「港南台」駅利用 新築一戸建て(10) 小屋裏収納付き

根岸線「港南台」駅 バス停「光明寺」まで 徒歩 8 分 バス利用 13分

東海道本線「大船」駅 バス停「光明寺」まで 徒歩 8 分 バス利用 21分

横浜市栄区 庄戸4丁目

4,880万円

4LDK

今週末モデルハウス見学会開催中!「瀬谷」駅徒歩15分 新築一戸建て(2) 対面キッチン

相模鉄道線「瀬谷」駅 徒歩 15 分

相模鉄道線「大和」駅 バス停「市民活動ベテルギウス」まで 徒歩 16 分 バス利用 3分

横浜市瀬谷区 本郷1丁目

4,880万円

4LDK

今週末モデルハウス見学会開催中!「北茅ヶ崎」駅利用 新築一戸建て (1)

相模線「北茅ヶ崎」駅 徒歩 17 分

東海道本線「茅ヶ崎」駅 バス停「円蔵」まで 徒歩 2 分 バス利用 8分

茅ヶ崎市 円蔵

4,880万円

4LDK

お気軽にどうぞ!

資料請求 現地見学 電話でお問い合わせ
0120-046-690
来店予約