1. トップページ
  2. 建物完成しました!今週末内覧会開催中!「柳小路」駅徒歩13分 新築一戸建て(1) SIC

建物完成しました!今週末内覧会開催中!「柳小路」駅徒歩13分 新築一戸建て(1) SIC

価格
8,780万円
物件種別
新築一戸建て
間取り
3LDK
所在地
藤沢市 片瀬山1丁目
交通
  • 江ノ島電鉄線「柳小路」駅 徒歩 13 分
  • 湘南モノレール「片瀬山」駅 徒歩 15 分
土地面積
180.19㎡
建物面積
106.13㎡
  • 前回情報更新日 2026.04.05
  • 次回情報更新予定日 2026.04.19
資料請求 現地見学 電話でお問い合わせ
0120-046-690
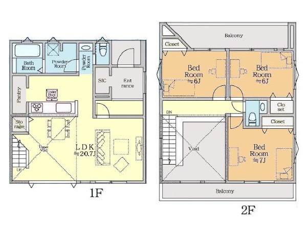
間取り
間取り
区画図
区画図

この物件のココがオススメ!

「柳小路」駅徒歩13分。前面道路幅員8mなのでお車の駐車もラクラク。全居室6帖以上、20帖以上あるリビングは吹き抜けなので開放的ですね。

こだわりポイント

  • 崖下・崖上
  • 断熱に配慮された建物
  • 省エネに配慮された建物
  • 食器洗い洗浄乾燥機
  • 浴室換気乾燥暖房機
  • 大人の二人暮らし
  • LDKは1階に
  • シューズインクローク
  • LDK20帖以上
  • 吹き抜け有り
  • 対面キッチン
  • 浴室1坪以上
  • パントリー
  • スーパー10分以内
  • コンビニ10分以内
  • 小児科医院10分以内
  • 保育園10分以内
  • 公園10分以内
  • 都市ガス
  • カースペース2台
  • 道路広々(5m以上)
  • 整形地

お気軽にどうぞ!

資料請求 現地見学 電話でお問い合わせ
0120-046-690

地図

申し訳ありません
こちらは会員限定機能です

会員登録で利用できる6つの便利機能

詳しく見る

お気軽にどうぞ!

資料請求 現地見学 電話でお問い合わせ
0120-046-690

頭金0万円・金利0.495%の場合

ボーナス時(年2回)お支払額

0

この物件の月々のお支払額

245,929

年収に対する返済比率

98

  • ※会員登録し、詳細情報を記入されますと、全ての物件で自動的に金額が表示され、大変便利です。
  • ※まだ会員登録をされていない方は、下記チェック欄をご記入ください。
  • ※上記計算は物件価格8,780万円+諸経費 8%込みの金額による結果となります。
  • ※返済金額はあくまでも目安です。

お客様の条件からシミュレーションするには?

会員登録
マイページから登録

金利

直接入力する

ボーナス払い(年2回)

返済年数

頭金

直接入力する

 万円(半角数字)

年収

 万円(半角数字)
価格 8,780万円
物件種別 新築一戸建て
間取り 3LDK
所在地 藤沢市 片瀬山1丁目
交通
  • 江ノ島電鉄線「柳小路」駅 徒歩 13 分
  • 湘南モノレール「片瀬山」駅 徒歩 15 分
土地面積 180.19㎡
建物面積 106.13㎡
学区 新林小学校、片瀬中学校
用途地域 第一種低層住居専用
建ぺい率 40%
容積率 80%
地目 宅地
駐車場 有り カースペース
接道 北8m、南8m
権利 所有権
私道面積 無し
セットバック 無し
建物構造 木造
建物階数 2階
築年月 2026年03月
入居日 2026年04月
都市計画 市街化区域
取引態様 仲介
物件番号 S00922-1
設備 公営水道、公共下水、吹き抜け、省エネルギー対策、フラット35・S適合証明書、BELS/省エネ基準適合認定書あり、駐車場2台以上、緑豊かな住宅地、閑静な住宅地、土地50坪以上、スーパーが近い(10分以内)、中学校徒歩10分以内、公園5分以内、システムキッチン、ガス3口、食器洗い機付き、浄水器、I型キッチン、パントリー(食器・食品の収納庫)、ユニットバス、追い焚き、浴室乾燥機、ウォシュレット、トイレ2ヶ所、浴室1坪以上、浴室に窓、暖房便座、浴室暖房、バルコニー2面、2階建、全居室6畳以上、LDK20畳以上、採光2面、南向き、フローリング、リビング階段、クローゼット、収納、床下収納、下駄箱、全居室収納、シャンプドレッサー付き、フラット35Sに対応、モニタ付きインターフォン、複層ガラス、24時間換気システム、建物10年保証
建築確認番号 第25KAK建確01946号
特記事項 崖上につき建築制限:有 建築協定:有 景観法:有 宅地造成工事規制区域:有 風致地区:有 日影制限:有 高さ限度:有 その他制限事項:片瀬山1丁目自治会(土地建物にかかわる申合せ事項有) 居住誘導区域 建築基準法第22条区域 建物建築・再建築の際、深基礎、基礎杭、擁壁の補修・構築・再構築、外壁後退等の対策が必要となる場合があります 崖上につき建築制限:有/建築協定:有/景観法:有/宅地造成工事規制区域:有/風致地区:有/日影制限:有/高さ限度:有/片瀬山1丁目自治会(土地建物にかかわる申合せ事項有) 居住誘導区域 建築基準法第22条区域 建物建築・再建築の際、深基礎、基礎杭、擁壁の補修・構築・再構築、外壁後退等の対策が必要となる場合があります。 /
備考 「柳小路」駅徒歩13分。前面道路幅員8mなのでお車の駐車もラクラク。全居室6帖以上、20帖以上あるリビングは吹き抜けなので開放的ですね。

お気軽にどうぞ!

資料請求 現地見学 電話でお問い合わせ
0120-046-690

このエリアでお探しの方へ

今週末モデルハウス見学会開催中!「鵠沼海岸」駅徒歩10分 新築一戸建て(A)

江ノ島線「鵠沼海岸」駅 徒歩 10 分

江ノ島電鉄線「鵠沼」駅 徒歩 8 分

藤沢市 鵠沼松が岡2丁目

8,480万円

2SLDK

今週末モデルハウス見学会開催中!「鵠沼海岸」駅徒歩10分 新築一戸建て(B)

江ノ島線「鵠沼海岸」駅 徒歩 10 分

江ノ島電鉄線「鵠沼」駅 徒歩 8 分

藤沢市 鵠沼松が岡2丁目

8,480万円

2SLDK

「武蔵小杉」駅 徒歩17分 新築一戸建 8480万円 2号棟

東急東横線「武蔵小杉」駅 徒歩 17 分

東急東横線「新丸子」駅 徒歩 12 分

川崎市中原区 小杉陣屋町1丁目

8,480万円

3SLDK

横浜市都筑区東山田1丁目 新築一戸建 8480万円

グリーンライン「北山田」駅 徒歩 12 分

ブルーライン「センター北」駅 バス停「東山田二丁目」まで 徒歩 4 分 バス利用 15分

横浜市都筑区 東山田1丁目

8,480万円

4LDK

建物完成しました!今週末内覧会開催中!「七里ヶ浜」駅徒歩8分 新築一戸建て(B)

江ノ島電鉄線「七里ヶ浜」駅 徒歩 8 分

江ノ島電鉄線「鎌倉高校前」駅 徒歩 18 分

鎌倉市 七里ガ浜1丁目

8,480万円

3LDK

横浜市都筑区東山田1丁目 新築一戸建 8549万円

グリーンライン「北山田」駅 徒歩 13 分

田園都市線「鷺沼」駅 バス停「稲荷坂」まで 徒歩 5 分 バス利用 19分

横浜市都筑区 東山田1丁目

8,549万円

4LDK

今週末モデルハウス見学会開催中!「稲村ケ崎」駅徒歩15分 新築一戸建て(2)

江ノ島電鉄線「稲村ヶ崎」駅 徒歩 15 分

江ノ島電鉄線「七里ヶ浜」駅 バス停「奥稲村」まで 徒歩 3 分 バス利用 6分

鎌倉市 稲村ガ崎5丁目

8,580万円

4LDK

建物完成しました!今週末内覧会開催中!「七里ヶ浜」駅徒歩8分 新築一戸建て(A)

江ノ島電鉄線「七里ヶ浜」駅 徒歩 8 分

江ノ島電鉄線「鎌倉高校前」駅 徒歩 18 分

鎌倉市 七里ガ浜1丁目

8,580万円

3LDK

今週末モデルハウス見学会開催中!「柳小路」駅徒歩5分 新築一戸建て

江ノ島電鉄線「柳小路」駅 徒歩 5 分

東海道本線「藤沢」駅 徒歩 22 分

藤沢市 鵠沼藤が谷3丁目

8,649万円

4LDK

「川和町」駅 徒歩17分 新築一戸建

グリーンライン「川和町」駅 徒歩 17 分

横浜線「中山」駅 バス停「川和台」まで 徒歩 3 分 バス利用 12分

横浜市都筑区 加賀原1丁目

8,680万円

4LDK

横浜市神奈川区松本町4丁目 新築一戸建 8760万円

東急東横線「反町」駅 徒歩 8 分

ブルーライン「三ッ沢下町」駅 徒歩 5 分

横浜市神奈川区 松本町4丁目

8,760万円

3LDK

値下げしました!今週末モデルハウス見学会開催中!「桜木町」駅徒歩13分 新築一戸建て WIC完備

根岸線「桜木町」駅 徒歩 13 分

京浜急行本線「戸部」駅 徒歩 12 分

横浜市西区 戸部町3丁目

8,780万円

2SLDK

お気軽にどうぞ!

資料請求 現地見学 電話でお問い合わせ
0120-046-690
来店予約