1. トップページ
  2. 建物完成しました!今週末内覧会開催中!「茅ヶ崎」駅利用 新築一戸建て(5)

建物完成しました!今週末内覧会開催中!「茅ヶ崎」駅利用 新築一戸建て(5)

価格
4,999万円
物件種別
新築一戸建て
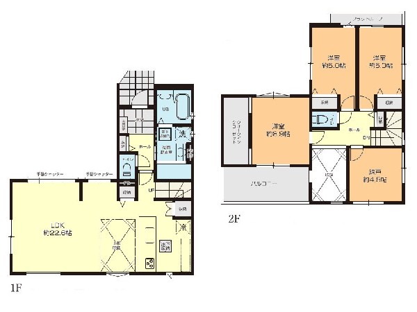
間取り
3SLDK
所在地
茅ヶ崎市 矢畑
交通
  • 東海道本線「茅ヶ崎」駅 徒歩 26 分
  • 相模線「北茅ヶ崎」駅 徒歩 22 分
土地面積
107.66㎡
建物面積
105.27㎡
  • 前回情報更新日 2026.02.07
  • 次回情報更新予定日 2026.02.21
資料請求 現地見学 電話でお問い合わせ
0120-046-690
間取り
間取り
区画図
区画図

この物件のココがオススメ!

複数路線が乗り入れる「茅ヶ崎」駅利用。緑豊かで、閑静な住環境。20帖LDKは、ご家族との会話が弾む対面キッチン。玄関に隣接のSICは、ベビーカーやゴルフバッグ等の収納に便利ですね。季節物や大物の収納に心強いWIC。

こだわりポイント

  • 省エネに配慮された建物
  • 食器洗い洗浄乾燥機
  • 浴室換気乾燥暖房機
  • 区画整理分譲地内に住む
  • LDKは1階に
  • シューズインクローク
  • ウォークインクローゼット
  • リビングイン階段
  • LDK20帖以上
  • 主寝室 8帖以上
  • 対面キッチン
  • 浴室1坪以上
  • 有料道路インター2キロ以内
  • 大型商業施設15分以内
  • スーパー10分以内
  • コンビニ10分以内
  • 保育園10分以内
  • 公園10分以内
  • 都市ガス
  • カースペース2台
  • 角地限定

お気軽にどうぞ!

資料請求 現地見学 電話でお問い合わせ
0120-046-690

地図

申し訳ありません
こちらは会員限定機能です

会員登録で利用できる6つの便利機能

詳しく見る

お気軽にどうぞ!

資料請求 現地見学 電話でお問い合わせ
0120-046-690

頭金0万円・金利0.495%の場合

ボーナス時(年2回)お支払額

0

この物件の月々のお支払額

140,004

年収に対する返済比率

56

  • ※会員登録し、詳細情報を記入されますと、全ての物件で自動的に金額が表示され、大変便利です。
  • ※まだ会員登録をされていない方は、下記チェック欄をご記入ください。
  • ※上記計算は物件価格4,999万円+諸経費 8%込みの金額による結果となります。
  • ※返済金額はあくまでも目安です。

お客様の条件からシミュレーションするには?

会員登録
マイページから登録

金利

直接入力する

ボーナス払い(年2回)

返済年数

頭金

直接入力する

 万円(半角数字)

年収

 万円(半角数字)
価格 4,999万円
物件種別 新築一戸建て
間取り 3SLDK
所在地 茅ヶ崎市 矢畑
交通
  • 東海道本線「茅ヶ崎」駅 徒歩 26 分
  • 相模線「北茅ヶ崎」駅 徒歩 22 分
土地面積 107.66㎡
建物面積 105.27㎡
学区 鶴嶺小学校、鶴嶺中学校
用途地域 第一種中高層住居専用
建ぺい率 70%
容積率 180%
地目 宅地
駐車場 有り カースペース
接道 北4.5m、南東4m
権利 所有権
私道面積 無し
セットバック 無し
建物構造 木造
建物階数 2階
築年月 2026年01月
入居日 2026年02月
都市計画 市街化区域
取引態様 仲介
物件番号 S00774-5
設備 公営水道、公共下水、省エネルギー対策、フラット35・S適合証明書、BELS/省エネ基準適合認定書あり、駐車場2台以上、緑豊かな住宅地、閑静な住宅地、角地、開発分譲地内、スーパーが近い(10分以内)、中学校徒歩10分以内、公園5分以内、コンビニ5分以内、システムキッチン、ガス3口、食器洗い機付き、浄水器、I型キッチン、ユニットバス、追い焚き、浴室乾燥機、ウォシュレット、トイレ2ヶ所、浴室1坪以上、浴室に窓、暖房便座、浴室暖房、バルコニー、南面バルコニー、2階建、LDK20畳以上、省エネ給湯器、採光2面、南向き、全室2面採光、フローリング、全室フローリング、リビング階段、クローゼット、収納、床下収納、下駄箱、シャンプドレッサー付き、フラット35Sに対応、全居室複層ガラスか複層サッシ、24時間換気システム、建物10年保証、勾配天井
建築確認番号 第25UDI1W建3798-2号
特記事項 文化財保護法:有 不整形地:有 隅切り:有 宅地造成工事規制区域:有 高度地区:有 準防火地域:有 日影制限:有 高さ限度:有 その他制限事項:フラット35S利用の場合、適合証明書取得費用がかかります(8.69万円) 文化財保護法:有/不整形地:有/隅切り:有/宅地造成工事規制区域:有/高度地区:有/準防火地域:有/日影制限:有/高さ限度:有/フラット35S利用の場合、適合証明書取得費用がかかります(8.69万円)。 /
備考 複数路線が乗り入れる「茅ヶ崎」駅利用。緑豊かで、閑静な住環境。20帖LDKは、ご家族との会話が弾む対面キッチン。玄関に隣接のSICは、ベビーカーやゴルフバッグ等の収納に便利ですね。季節物や大物の収納に心強いWIC。

お気軽にどうぞ!

資料請求 現地見学 電話でお問い合わせ
0120-046-690

このエリアでお探しの方へ

建物完成しました!今週末内覧会開催中!「茅ヶ崎」駅利用 新築一戸建て(2)

東海道本線「茅ヶ崎」駅 徒歩 26 分

相模線「北茅ヶ崎」駅 徒歩 22 分

茅ヶ崎市 矢畑

4,699万円

3SLDK

建物完成しました!今週末内覧会開催中!「茅ヶ崎」駅利用 新築一戸建て(3)

東海道本線「茅ヶ崎」駅 徒歩 26 分

相模線「北茅ヶ崎」駅 徒歩 22 分

茅ヶ崎市 矢畑

4,699万円

3SLDK

建物完成しました!今週末内覧会開催中!「茅ヶ崎」駅利用 新築一戸建て(4)

東海道本線「茅ヶ崎」駅 徒歩 26 分

相模線「北茅ヶ崎」駅 徒歩 22 分

茅ヶ崎市 矢畑

4,699万円

2LDK+2S

今週末、現地見学会開催!「辻堂」駅利用 新築一戸建て(4)

東海道本線「辻堂」駅 バス停「羽根沢」まで 徒歩 7 分 バス利用 11分

江ノ島線「善行」駅 バス停「駒寄」まで 徒歩 8 分 バス利用 14分

藤沢市 大庭

4,699万円

3LDK

稲城市坂浜 新築一戸建 4699万円 3号棟

京王相模原線「若葉台」駅 バス停「県境」まで 徒歩 8 分 バス利用 2分

小田急線「新百合ヶ丘」駅 バス停「天神前」まで 徒歩 9 分 バス利用 23分

稲城市 坂浜4丁目

4,699万円

4LDK

川崎市麻生区王禅寺西8丁目 新築一戸建 4750万円 1号棟

小田急線「柿生」駅 徒歩 15 分

小田急線「新百合ヶ丘」駅 バス停「真福寺」まで 徒歩 1 分 バス利用 13分

川崎市麻生区 王禅寺西8丁目

4,750万円

4LDK

横浜市鶴見区北寺尾1丁目 新築一戸建 4780万円 1号棟

京浜東北線「鶴見」駅 徒歩 22 分

南武線「尻手」駅 バス停「別所」まで 徒歩 4 分 バス利用 11分

横浜市鶴見区 北寺尾1丁目

4,780万円

4LDK

川崎市麻生区東百合丘1丁目 新築一戸建 4780万円

小田急線「新百合ヶ丘」駅 徒歩 30 分

小田急線「百合ヶ丘」駅 徒歩 27 分

川崎市麻生区 東百合丘1丁目

4,780万円

3LDK

建物完成しました!今週末内覧会開催中!「湘南台」駅利用 未入居一戸建て

いずみ野線「湘南台」駅 バス停「和泉橋」まで 徒歩 1 分 バス利用 6分

江ノ島線「六会日大前」駅 バス停「3号西」まで 徒歩 11 分 バス利用 3分

藤沢市 石川1丁目

4,780万円

3LDK

今週末モデルハウス見学会開催中!「蒔田」駅徒歩8分 新築一戸建て(1) エコジョーズ

ブルーライン「蒔田」駅 徒歩 8 分

ブルーライン「弘明寺」駅 徒歩 14 分

横浜市南区 大岡1丁目

4,780万円

4LDK

川崎市中原区井田2丁目 新築一戸建 4780万円 3号棟

東急東横線「日吉」駅 徒歩 20 分

横須賀線「武蔵小杉」駅 バス停「井田」まで 徒歩 8 分 バス利用 13分

川崎市中原区 井田2丁目

4,780万円

2SLDK

横浜市鶴見区北寺尾4丁目 新築一戸建 4780万円 7号棟

京浜東北線「鶴見」駅 バス停「北寺尾」まで 徒歩 4 分 バス利用 18分

東急東横線「綱島」駅 バス停「北寺尾」まで 徒歩 4 分 バス利用 23分

横浜市鶴見区 北寺尾4丁目

4,780万円

4LDK

お気軽にどうぞ!

資料請求 現地見学 電話でお問い合わせ
0120-046-690
来店予約