1. トップページ
  2. 建物完成しました!今週末内覧会開催中!「大船」駅徒歩15分 新築一戸建て(1)

建物完成しました!今週末内覧会開催中!「大船」駅徒歩15分 新築一戸建て(1)

価格
4,580万円
物件種別
新築一戸建て
間取り
2SLDK
所在地
鎌倉市 大船4丁目
交通
  • 東海道本線「大船」駅 徒歩 15 分
  • 根岸線「大船」駅 徒歩 15 分
土地面積
45.89㎡
建物面積
90.71㎡
  • 前回情報更新日 2026.03.19
  • 次回情報更新予定日 2026.04.02
資料請求 現地見学 電話でお問い合わせ
0120-046-690
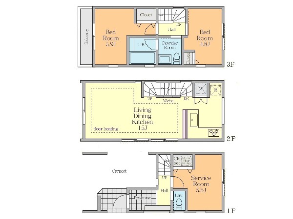
間取り
間取り
区画図
区画図

この物件のココがオススメ!

複数路線が乗り入れる「大船」駅から徒歩15分。緑豊かで、閑静な住環境。通勤・通学に便利な立地。全室2面採光なので、明るく通風良好なお住まいです。15帖LDKは、ご家族との会話が弾む対面キッチン。

こだわりポイント

  • 省エネに配慮された建物
  • 床暖房
  • 食器洗い洗浄乾燥機
  • 浴室換気乾燥暖房機
  • 始発で座ってゆったり通勤
  • 2沿線利用であんしん通勤
  • 子供の多い街に住む
  • リビングイン階段
  • LDKは2階に
  • LDK15帖以上
  • 対面キッチン
  • 浴室1坪以上
  • 小学校10分以内
  • 大型商業施設15分以内
  • コンビニ10分以内
  • 総合病院10分以内
  • 小児科医院10分以内
  • 保育園10分以内
  • 幼稚園10分以内
  • 公園10分以内
  • 都市ガス
  • 道路広々(5m以上)
  • 整形地

お気軽にどうぞ!

資料請求 現地見学 電話でお問い合わせ
0120-046-690

地図

申し訳ありません
こちらは会員限定機能です

会員登録で利用できる6つの便利機能

詳しく見る

お気軽にどうぞ!

資料請求 現地見学 電話でお問い合わせ
0120-046-690

頭金0万円・金利0.495%の場合

ボーナス時(年2回)お支払額

0

この物件の月々のお支払額

128,281

年収に対する返済比率

51

  • ※会員登録し、詳細情報を記入されますと、全ての物件で自動的に金額が表示され、大変便利です。
  • ※まだ会員登録をされていない方は、下記チェック欄をご記入ください。
  • ※上記計算は物件価格4,580万円+諸経費 8%込みの金額による結果となります。
  • ※返済金額はあくまでも目安です。

お客様の条件からシミュレーションするには?

会員登録
マイページから登録

金利

直接入力する

ボーナス払い(年2回)

返済年数

頭金

直接入力する

 万円(半角数字)

年収

 万円(半角数字)
価格 4,580万円
物件種別 新築一戸建て
間取り 2SLDK
所在地 鎌倉市 大船4丁目
交通
  • 東海道本線「大船」駅 徒歩 15 分
  • 根岸線「大船」駅 徒歩 15 分
土地面積 45.89㎡
建物面積 90.71㎡
学区 大船小学校、大船中学校
用途地域 第一種中高層住居専用
建ぺい率 60%
容積率 200%
地目 宅地
駐車場 有り ビルトイン車庫 駐車場面積:9.72㎡
接道 北西11.3m
権利 所有権
私道面積 無し
セットバック 無し
建物構造 木造
建物階数 3階
築年月 2025年10月
入居日 即時
都市計画 市街化区域
取引態様 仲介
物件番号 S00719-1
設備 公営水道、公共下水、省エネルギー対策、フラット35・S適合証明書、BELS/省エネ基準適合認定書あり、ビルトインガレージ、駐車場1台、緑豊かな住宅地、閑静な住宅地、前道6m以上、始発駅、2沿線以上利用可、総合病院徒歩10分以内、小学校徒歩10分以内、中学校徒歩10分以内、保育施設・幼稚園5分以内、公園5分以内、コンビニ5分以内、システムキッチン、ガス3口、L型キッチン、食器洗い機付き、浄水器、ユニットバス、追い焚き、浴室乾燥機、ウォシュレット、トイレ2ヶ所、浴室1坪以上、浴室に窓、暖房便座、浴室暖房、バルコニー、3階建以上、LDK15畳以上、省エネ給湯器、採光2面、全室2面採光、フローリング、全室フローリング、リビング階段、スマートキー、クローゼット、収納、床下収納、下駄箱、全居室収納、シャンプドレッサー付き、フラット35Sに対応、モニタ付きインターフォン、カードキー、複層ガラス、24時間換気システム、建物10年保証
建築確認番号 第KBI-YKH25-10-1279号
特記事項 景観法:有 宅地造成工事規制区域:有 高度地区:有 準防火地域:有 日影制限:有 高さ限度:有 その他制限事項:景観計画:一般住宅地 建物面積に車庫部分約9.72平米含 景観法:有/宅地造成工事規制区域:有/高度地区:有/準防火地域:有/日影制限:有/高さ限度:有/景観計画:一般住宅地 建物面積に車庫部分約9.72平米含。 /
備考 複数路線が乗り入れる「大船」駅から徒歩15分。緑豊かで、閑静な住環境。通勤・通学に便利な立地。全室2面採光なので、明るく通風良好なお住まいです。15帖LDKは、ご家族との会話が弾む対面キッチン。

お気軽にどうぞ!

資料請求 現地見学 電話でお問い合わせ
0120-046-690

このエリアでお探しの方へ

値下げしました! 「大船」駅利用 新築一戸建て(F) 全7棟 ゆとりの4LDK

東海道本線「大船」駅 バス停「常勝寺」まで 徒歩 6 分 バス利用 7分

横須賀線「戸塚」駅 バス停「田谷」まで 徒歩 12 分 バス利用 17分

横浜市戸塚区 小雀町

4,280万円

4LDK

値下げしました!「本郷台」駅徒歩15分 新築一戸建て(D)ルーフバルコニー付き

横須賀線「大船」駅 バス停「鎌倉女子大前」まで 徒歩 3 分 バス利用 4分

東海道本線「戸塚」駅 バス停「鎌倉女子大前」まで 徒歩 3 分 バス利用 28分

鎌倉市 岩瀬

4,280万円

4LDK

建物完成しました!今週末内覧会開催中!「本郷台」駅徒歩13分 新築一戸建て(D)

根岸線「本郷台」駅 徒歩 13 分

東海道本線「大船」駅 バス停「鎌倉女子大前」まで 徒歩 3 分 バス利用 7分

鎌倉市 岩瀬

4,280万円

4LDK

値下げしました!今週末内覧会開催中!「戸塚」駅利用 新築一戸建て(1) 全室2面採光

東海道本線「戸塚」駅 バス停「原宿」まで 徒歩 6 分 バス利用 15分

横須賀線「大船」駅 バス停「原宿四ツ角」まで 徒歩 2 分 バス利用 14分

横浜市戸塚区 原宿5丁目

4,299万円

4LDK

値下げしました! 「大船」駅利用 新築一戸建て(G) 全7棟 ゆとりの4LDK

東海道本線「大船」駅 バス停「常勝寺」まで 徒歩 6 分 バス利用 7分

横須賀線「戸塚」駅 バス停「田谷」まで 徒歩 12 分 バス利用 17分

横浜市戸塚区 小雀町

4,380万円

4LDK

今週末モデルハウス見学会開催中!「戸塚」駅利用 新築一戸建て(1) 対面キッチン・リビングイン階段

東海道本線「戸塚」駅 バス停「金井」まで 徒歩 5 分 バス利用 10分

横須賀線「大船」駅 バス停「金井」まで 徒歩 5 分 バス利用 12分

横浜市戸塚区 戸塚町

4,380万円

2LDK+2S

今週末内覧会開催中!「港南台」駅利用 中古一戸建て 角地

根岸線「港南台」駅 バス停「西ヶ谷」まで 徒歩 4 分 バス利用 15分

東海道本線「大船」駅 バス停「八軒谷戸」まで 徒歩 5 分 バス利用 27分

横浜市栄区 野七里1丁目

4,380万円

4SLDK

建物完成しました! 今週末内覧会開催中!「戸塚」駅利用 新築一戸建て(2) 全室2面採光

東海道本線「戸塚」駅 バス停「原宿」まで 徒歩 6 分 バス利用 15分

横須賀線「大船」駅 バス停「原宿四ツ角」まで 徒歩 2 分 バス利用 14分

横浜市戸塚区 原宿5丁目

4,399万円

4LDK

今週末モデルハウス見学会開催中!「戸塚」駅利用 新築一戸建て(3) 閑静な住宅地

東海道本線「戸塚」駅 バス停「日ノ出橋」まで 徒歩 4 分 バス利用 9分

横須賀線「大船」駅 バス停「日ノ出橋」まで 徒歩 4 分 バス利用 13分

横浜市戸塚区 戸塚町

4,430万円

3LDK

建物完成しました! 今週末内覧会開催中!「本郷台」駅利用 新築一戸建て(2) 対面キッチン

根岸線「本郷台」駅 徒歩 18 分

東海道本線「大船」駅 バス停「公田」まで 徒歩 9 分 バス利用 14分

横浜市栄区 公田町

4,480万円

4LDK

建物完成しました! 今週末内覧会開催中!「本郷台」駅利用 新築一戸建て(1) カースペース2台

根岸線「本郷台」駅 徒歩 17 分

東海道本線「大船」駅 バス停「宮前」まで 徒歩 6 分 バス利用 7分

横浜市栄区 飯島町

4,490万円

2LDK+2S

建物完成しました! 今週末内覧会開催中!「戸塚」駅利用 新築一戸建て(4) 全室2面採光

東海道本線「戸塚」駅 バス停「原宿」まで 徒歩 6 分 バス利用 15分

横須賀線「大船」駅 バス停「原宿四ツ角」まで 徒歩 2 分 バス利用 14分

横浜市戸塚区 原宿5丁目

4,499万円

4LDK

お気軽にどうぞ!

資料請求 現地見学 電話でお問い合わせ
0120-046-690
来店予約