1. トップページ
  2. 今週末モデルハウス見学会開催中!「湘南台」駅利用 新築一戸建て

今週末モデルハウス見学会開催中!「湘南台」駅利用 新築一戸建て

価格
5,190万円
物件種別
新築一戸建て
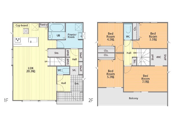
間取り
4LDK
所在地
藤沢市 遠藤
交通
  • 江ノ島線「湘南台」駅 バス停「矢尻」まで 徒歩 5 分 バス利用 9分
  • 東海道本線「辻堂」駅 バス停「滝の沢」まで 徒歩 6 分 バス利用 13分
土地面積
133.68㎡
建物面積
108.88㎡
  • 前回情報更新日 2026.01.16
  • 次回情報更新予定日 2026.01.30
資料請求 現地見学 電話でお問い合わせ
0120-046-690
間取り
間取り

この物件のココがオススメ!

小田急江ノ島線「湘南台」駅利用。緑豊かで、閑静な住環境。カースペース並列2台なので、ご来客時に心強いです。20帖LDKは、対面キッチン・リビングイン階段なので、ご家族とのコミュニケーションがとりやすいですね。季節物や大物の収納に心強いWIC。

こだわりポイント

  • 崖下・崖上
  • 省エネに配慮された建物
  • 浴室換気乾燥暖房機
  • LDKは1階に
  • シューズインクローク
  • ウォークインクローゼット
  • リビングイン階段
  • LDK20帖以上
  • 対面キッチン
  • 浴室1坪以上
  • パントリー
  • 大規模公園10分以内
  • スーパー10分以内
  • コンビニ10分以内
  • 保育園10分以内
  • 公園10分以内
  • 都市ガス
  • フラット35利用可
  • カースペース2台
  • 整形地

お気軽にどうぞ!

資料請求 現地見学 電話でお問い合わせ
0120-046-690

地図

申し訳ありません
こちらは会員限定機能です

会員登録で利用できる6つの便利機能

詳しく見る

お気軽にどうぞ!

資料請求 現地見学 電話でお問い合わせ
0120-046-690

頭金0万円・金利0.495%の場合

ボーナス時(年2回)お支払額

0

この物件の月々のお支払額

145,373

年収に対する返済比率

58

  • ※会員登録し、詳細情報を記入されますと、全ての物件で自動的に金額が表示され、大変便利です。
  • ※まだ会員登録をされていない方は、下記チェック欄をご記入ください。
  • ※上記計算は物件価格5,190万円+諸経費 8%込みの金額による結果となります。
  • ※返済金額はあくまでも目安です。

お客様の条件からシミュレーションするには?

会員登録
マイページから登録

金利

直接入力する

ボーナス払い(年2回)

返済年数

頭金

直接入力する

 万円(半角数字)

年収

 万円(半角数字)
価格 5,190万円
物件種別 新築一戸建て
間取り 4LDK
所在地 藤沢市 遠藤
交通
  • 江ノ島線「湘南台」駅 バス停「矢尻」まで 徒歩 5 分 バス利用 9分
  • 東海道本線「辻堂」駅 バス停「滝の沢」まで 徒歩 6 分 バス利用 13分
土地面積 133.68㎡
建物面積 108.88㎡
学区 滝の沢小学校、滝の沢中学校
用途地域 第一種低層住居専用
建ぺい率 50%
容積率 80%
地目 宅地
駐車場 有り カースペース
接道 南4m
権利 所有権
私道面積 無し
セットバック 無し
建物構造 木造
建物階数 2階
築年月 2026年01月
入居日 2026年02月
都市計画 市街化区域
取引態様 仲介
物件番号 S00701
設備 公営水道、公共下水、省エネルギー対策、フラット35・S適合証明書、BELS/省エネ基準適合認定書あり、駐車場2台以上、緑豊かな住宅地、閑静な住宅地、スーパーが近い(10分以内)、中学校徒歩10分以内、保育施設・幼稚園5分以内、公園5分以内、コンビニ5分以内、システムキッチン、ガス3口、浄水器、I型キッチン、パントリー(食器・食品の収納庫)、ユニットバス、追い焚き、浴室乾燥機、ウォシュレット、トイレ2ヶ所、浴室1坪以上、浴室に窓、暖房便座、浴室暖房、ワイドバルコニー、南面バルコニー、2階建、LDK20畳以上、採光2面、南向き、全室2面採光、フローリング、全室フローリング、リビング階段、クローゼット、収納、床下収納、下駄箱、全居室収納、シャンプドレッサー付き、フラット35Sに対応、24時間換気システム、建物10年保証、勾配天井
建築確認番号 第2025SBC‐確01440H号
特記事項 崖下につき建築制限:有 崖上につき建築制限:有 景観法:有 宅地造成工事規制区域:有 日影制限:有 敷地内段差:有 高さ限度:有 その他制限事項:居住誘導区域 藤沢市緑の保全及緑化の推進に関する条例 建築基準法第22条区域 土地区画整理事業:西部 建物建築・再建築の際、深基礎、基礎杭、高基礎、防護壁の設置、擁壁の補修・構築・再構築、外壁後退等の対策が必要となる場合があります フラット35利用の場合、適合証明書取得費用がかかります(13.2万円) 崖下につき建築制限:有/崖上につき建築制限:有/景観法:有/宅地造成工事規制区域:有/日影制限:有/敷地内段差:有/高さ限度:有/居住誘導区域 藤沢市緑の保全及緑化の推進に関する条例 建築基準法第22条区域 土地区画整理事業:西部 建物建築・再建築の際、深基礎、基礎杭、高基礎、防護壁の設置、擁壁の補修・構
備考 小田急江ノ島線「湘南台」駅利用。緑豊かで、閑静な住環境。カースペース並列2台なので、ご来客時に心強いです。20帖LDKは、対面キッチン・リビングイン階段なので、ご家族とのコミュニケーションがとりやすいですね。季節物や大物の収納に心強いWIC。

お気軽にどうぞ!

資料請求 現地見学 電話でお問い合わせ
0120-046-690

このエリアでお探しの方へ

今週末モデルハウス見学会開催中!「湘南台駅」駅利用 新築一戸建て

ブルーライン「湘南台」駅 バス停「御所見中学校前」まで 徒歩 6 分 バス利用 11分

江ノ島線「長後」駅 バス停「御所見市民センター前」まで 徒歩 6 分 バス利用 14分

藤沢市 打戻

4,990万円

4LDK

今週末モデルハウス見学会開催中!「湘南台」駅利用 新築一戸建て(2)

ブルーライン「湘南台」駅 バス停「石川橋」まで 徒歩 6 分 バス利用 17分

江ノ島線「六会日大前」駅 バス停「5号西」まで 徒歩 5 分 バス利用 5分

藤沢市 石川

4,999万円

4LDK

建物完成しました!今週末内覧会開催中!「六会日大前」駅利用 新築一戸建て(D)

江ノ島線「六会日大前」駅 徒歩 8 分

いずみ野線「湘南台」駅 徒歩 19 分

藤沢市 亀井野4丁目

5,180万円

3LDK

建物完成しました!今週末内覧会開催中!「六会日大前」駅利用 新築一戸建て(C)

江ノ島線「六会日大前」駅 徒歩 8 分

いずみ野線「湘南台」駅 徒歩 19 分

藤沢市 亀井野4丁目

5,180万円

3LDK

今週末モデルハウス見学会開催中!「辻堂」駅利用 新築一戸建て(2)

東海道本線「辻堂」駅 バス停「二番構保険医療センター」まで 徒歩 8 分 バス利用 11分

ブルーライン「湘南台」駅 バス停「一ノ坪」まで 徒歩 2 分 バス利用 14分

藤沢市 石川

5,380万円

3SLDK

今週末モデルハウス見学開催中!小田急江ノ島線「善行」駅徒歩9分 新築一戸建て(2)

江ノ島線「善行」駅 徒歩 9 分

東海道本線「藤沢」駅 バス停「亀井野団地入口」まで 徒歩 15 分 バス利用 17分

藤沢市 善行6丁目

4,899万円

4LDK

今週末モデルハウス見学会開催中!「善行」駅徒歩13分 新築一戸建て(2)

江ノ島線「善行」駅 徒歩 13 分

東海道本線「藤沢」駅 バス停「善行2丁目」まで 徒歩 11 分 バス利用 20分

藤沢市 善行坂2丁目

4,899万円

4LDK

今週末モデルハウス見学会開催中!「善行」駅徒歩13分 新築一戸建て(3)

江ノ島線「善行」駅 徒歩 13 分

東海道本線「藤沢」駅 バス停「善行2丁目」まで 徒歩 11 分 バス利用 20分

藤沢市 善行坂2丁目

4,899万円

4LDK

今週末モデルハウス見学開催中!小田急江ノ島線「善行」駅徒歩9分 新築一戸建て(1)

江ノ島線「善行」駅 徒歩 9 分

東海道本線「藤沢」駅 バス停「亀井野団地入口」まで 徒歩 15 分 バス利用 17分

藤沢市 善行6丁目

4,899万円

4LDK

今週末モデルハウス見学会開催中!「藤沢本町」駅利用 新築一戸建て (C1)

江ノ島線「藤沢本町」駅 徒歩 17 分

江ノ島電鉄線「藤沢」駅 バス停「上村橋」まで 徒歩 3 分 バス利用 7分

藤沢市 鵠沼神明3丁目

4,980万円

4LDK

今週末、現地見学会開催!「辻堂」駅利用 新築一戸建て(3)

東海道本線「辻堂」駅 バス停「羽根沢」まで 徒歩 7 分 バス利用 11分

江ノ島線「善行」駅 バス停「駒寄」まで 徒歩 8 分 バス利用 14分

藤沢市 大庭

4,999万円

3LDK

建物完成しました!今週末内覧会開催中!「善行」駅利用 新築一戸建て

江ノ島線「善行」駅 徒歩 20 分

江ノ島線「善行」駅 バス停「善行団地西」まで 徒歩 2 分 バス利用 5分

藤沢市 大庭

4,999万円

3SLDK

お気軽にどうぞ!

資料請求 現地見学 電話でお問い合わせ
0120-046-690