1. トップページ
  2. 建物完成しました!今週末内覧会開催中!「茅ヶ崎」駅利用 新築一戸建て完成(1)

建物完成しました!今週末内覧会開催中!「茅ヶ崎」駅利用 新築一戸建て完成(1)

価格
4,899万円
物件種別
新築一戸建て
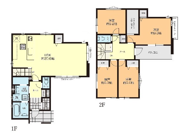
間取り
4LDK
所在地
茅ヶ崎市 南湖5丁目
交通
  • 東海道本線「茅ヶ崎」駅 バス停「団地中央」まで 徒歩 2 分 バス利用 6分
  • 相模線「茅ヶ崎」駅 徒歩 25 分
土地面積
93.16㎡
建物面積
101.43㎡
  • 前回情報更新日 2026.03.19
  • 次回情報更新予定日 2026.04.02
資料請求 現地見学 電話でお問い合わせ
0120-046-690
外観:目の前に広がる開放感とゆとり、暮らしの夢を育む理想の住まいがここにはあります。
外観:目の前に広がる開放感とゆとり、暮らしの夢を育む理想の住まいがここにはあります。
間取り
間取り
区画図
区画図
「浄水器・食洗機」を標準装備したキッチンはシックな色合いで飽きのこないデザインです。
「浄水器・食洗機」を標準装備したキッチンはシックな色合いで飽きのこないデザインです。

この物件のココがオススメ!

JR東海道本線「茅ヶ崎」駅利用。緑豊かで閑静な住環境。全室2面採光なので、明るく通風良好なお住まいです。

こだわりポイント

  • 海が近い家
  • サーファーに嬉しい家
  • 省エネに配慮された建物
  • 食器洗い洗浄乾燥機
  • 浴室換気乾燥暖房機
  • 大人の二人暮らし
  • LDKは1階に
  • LDK18帖以上
  • 広々バルコニー
  • 対面キッチン
  • 浴室1坪以上
  • 有料道路インター2キロ以内
  • 大型商業施設15分以内
  • スーパー10分以内
  • コンビニ10分以内
  • 小児科医院10分以内
  • 保育園10分以内
  • 幼稚園10分以内
  • 公園10分以内
  • 都市ガス
  • フラット35利用可
  • カースペース2台

お気軽にどうぞ!

資料請求 現地見学 電話でお問い合わせ
0120-046-690

地図

申し訳ありません
こちらは会員限定機能です

会員登録で利用できる6つの便利機能

詳しく見る

お気軽にどうぞ!

資料請求 現地見学 電話でお問い合わせ
0120-046-690

頭金0万円・金利0.495%の場合

ボーナス時(年2回)お支払額

0

この物件の月々のお支払額

137,203

年収に対する返済比率

55

  • ※会員登録し、詳細情報を記入されますと、全ての物件で自動的に金額が表示され、大変便利です。
  • ※まだ会員登録をされていない方は、下記チェック欄をご記入ください。
  • ※上記計算は物件価格4,899万円+諸経費 8%込みの金額による結果となります。
  • ※返済金額はあくまでも目安です。

お客様の条件からシミュレーションするには?

会員登録
マイページから登録

金利

直接入力する

ボーナス払い(年2回)

返済年数

頭金

直接入力する

 万円(半角数字)

年収

 万円(半角数字)
価格 4,899万円
物件種別 新築一戸建て
間取り 4LDK
所在地 茅ヶ崎市 南湖5丁目
交通
  • 東海道本線「茅ヶ崎」駅 バス停「団地中央」まで 徒歩 2 分 バス利用 6分
  • 相模線「茅ヶ崎」駅 徒歩 25 分
土地面積 93.16㎡
建物面積 101.43㎡
学区 西浜小学校、西浜中学校
用途地域 第一種中高層住居専用
建ぺい率 60%
容積率 200%
地目 宅地
駐車場 有り カースペース
接道 北西7.3m
権利 所有権
私道面積 無し
セットバック 無し
建物構造 木造
建物階数 2階
築年月 2025年11月
入居日 即時
都市計画 市街化区域
取引態様 仲介
物件番号 S00682-1
設備 公営水道、公共下水、省エネルギー対策、フラット35・S適合証明書、BELS/省エネ基準適合認定書あり、駐車場2台以上、緑豊かな住宅地、閑静な住宅地、スーパーが近い(10分以内)、中学校徒歩10分以内、公園5分以内、コンビニ5分以内、システムキッチン、ガス3口、食器洗い機付き、浄水器、I型キッチン、ユニットバス、追い焚き、浴室乾燥機、ウォシュレット、浴室1坪以上、浴室に窓、暖房便座、浴室暖房、バルコニー、ワイドバルコニー、2階建、LDK18畳以上、全室2面採光、フローリング、クローゼット、床下収納、下駄箱、全居室収納、シャンプドレッサー付き、フラット35Sに対応、モニタ付きインターフォン、24時間換気システム、建物10年保証
建築確認番号 -
特記事項 宅地造成工事規制区域:有 高度地区:有 準防火地域:有 日影制限:有 高さ限度:有 その他制限事項:共有地部分約13.65平米持分1/2(給排水用地)  宅地造成工事規制区域:有/高度地区:有/準防火地域:有/日影制限:有/高さ限度:有/共有地部分約13.65平米持分1/2(給排水用地)。 /
備考 JR東海道本線「茅ヶ崎」駅利用。緑豊かで閑静な住環境。全室2面採光なので、明るく通風良好なお住まいです。

お気軽にどうぞ!

資料請求 現地見学 電話でお問い合わせ
0120-046-690

このエリアでお探しの方へ

今週末モデルハウス見学会開催中!「香川」駅徒歩10分 新築一戸建て(2)

相模線「香川」駅 徒歩 10 分

東海道本線「茅ヶ崎」駅 バス停「香川小学校入口」まで 徒歩 4 分 バス利用 11分

茅ヶ崎市 香川1丁目

4,599万円

4LDK

今週末モデルハウス見学会開催中!「北茅ヶ崎駅」駅徒歩15分 新築一戸建て(2)

相模線「北茅ヶ崎」駅 徒歩 15 分

東海道本線「茅ヶ崎」駅 バス停「鶴が丘団地」まで 徒歩 5 分 バス利用 13分

茅ヶ崎市 円蔵

4,599万円

4LDK

建物完成しました! 今週末内覧会開催中!「戸塚」駅利用 新築一戸建て(1) 全室2面採光

東海道本線「戸塚」駅 バス停「原宿」まで 徒歩 6 分 バス利用 15分

横須賀線「大船」駅 バス停「原宿四ツ角」まで 徒歩 2 分 バス利用 14分

横浜市戸塚区 原宿5丁目

4,599万円

4LDK

川崎市多摩区栗谷2丁目 中古一戸建 4599万円

小田急線「読売ランド前」駅 徒歩 13 分

小田急線「生田」駅 徒歩 15 分

川崎市多摩区 栗谷2丁目

4,599万円

4LDK

値下げしました! 今週末内覧会開催中!「和田町」駅利用 中古一戸建て 閑静な住宅地 床暖房付き

相模鉄道線「和田町」駅 徒歩 16 分

東海道本線「横浜」駅 バス停「国大南門前」まで 徒歩 3 分 バス利用 24分

横浜市保土ケ谷区 常盤台

4,599万円

2LDK+2S

値下げしました!「鶴ケ峰」駅利用 新築一戸建て(2) カースペース2台

相模鉄道線「鶴ヶ峰」駅 徒歩 18 分

横浜線「中山」駅 バス停「代官前」まで 徒歩 6 分 バス利用 24分

横浜市旭区 白根6丁目

4,650万円

3SLDK

今週末モデルハウス見学会開催中!「長後」駅徒歩14分 新築一戸建て(6)

江ノ島線「長後」駅 徒歩 14 分

いずみ野線「いずみ中央」駅 徒歩 19 分

藤沢市 高倉

4,650万円

4LDK

今週末モデルハウス見学会開催中!「藤沢本町」駅利用 新築一戸建て(B)

江ノ島線「藤沢本町」駅 バス停「舟地蔵」まで 徒歩 4 分 バス利用 10分

東海道本線「辻堂」駅 バス停「舟地蔵」まで 徒歩 4 分 バス利用 8分

藤沢市 大庭

4,650万円

4LDK

川崎市中原区井田2丁目 新築一戸建 4680万円 1号棟

東急東横線「日吉」駅 徒歩 18 分

グリーンライン「日吉本町」駅 徒歩 20 分

川崎市中原区 井田2丁目

4,680万円

3LDK

横浜市鶴見区北寺尾7丁目 新築一戸建 4680万円 1号棟

東急東横線「菊名」駅 徒歩 19 分

横浜線「菊名」駅 徒歩 19 分

横浜市鶴見区 北寺尾7丁目

4,680万円

3SLDK

値下げしました!「片倉町」駅徒歩13分 新築一戸建て(3) 全8棟 閑静な住宅地

ブルーライン「片倉町」駅 徒歩 13 分

東海道本線「横浜」駅 バス停「峰沢団地前」まで 徒歩 5 分 バス利用 10分

横浜市神奈川区 片倉2丁目

4,680万円

3LDK

値下げしました!「舞岡」駅徒歩13分 新築一戸建て 角地

ブルーライン「舞岡」駅 徒歩 13 分

横須賀線「戸塚」駅 バス停「坂下口」まで 徒歩 1 分 バス利用 14分

横浜市戸塚区 南舞岡4丁目

4,680万円

4LDK

お気軽にどうぞ!

資料請求 現地見学 電話でお問い合わせ
0120-046-690
来店予約