1. トップページ
  2. 今週末モデルハウス見学会開催中!「香川」駅徒歩7分 新築一戸建て(11)

今週末モデルハウス見学会開催中!「香川」駅徒歩7分 新築一戸建て(11)

価格
4,080万円
物件種別
新築一戸建て
間取り
2SLDK
所在地
茅ヶ崎市 香川5丁目
交通
  • 相模線「香川」駅 徒歩 7 分
  • 東海道本線「茅ヶ崎」駅 バス停「香川駅入口」まで 徒歩 10 分 バス利用 14分
土地面積
104.62㎡
建物面積
99.36㎡
  • 前回情報更新日 2026.02.05
  • 次回情報更新予定日 2026.02.19
資料請求 現地見学 電話でお問い合わせ
0120-046-690
外観:日当たりが良く開放感のある角地です。 明るく快適な住まいが実現します!
外観:日当たりが良く開放感のある角地です。 明るく快適な住まいが実現します!
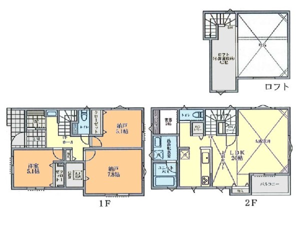
間取り
間取り
区画図
区画図
外観
外観
外観
外観

この物件のココがオススメ!

相模線「香川」駅から徒歩7分。緑豊かで、閑静な住環境。20帖LDKは対面キッチン・リビングイン階段なので、ご家族とのコミュニケーションがとりやすいですね。固定階段のロフトは、季節物や大物も収納しやすいです。

こだわりポイント

  • 浴室換気乾燥暖房機
  • 区画整理分譲地内に住む
  • リビングイン階段
  • LDKは2階に
  • LDK20帖以上
  • 吹き抜け有り
  • 対面キッチン
  • 浴室1坪以上
  • ロフト・小屋裏収納
  • パントリー
  • 大規模公園10分以内
  • 有料道路インター2キロ以内
  • スーパー10分以内
  • コンビニ10分以内
  • 保育園10分以内
  • 幼稚園10分以内
  • 公園10分以内
  • 都市ガス
  • 10棟以上の分譲地
  • 角地限定

お気軽にどうぞ!

資料請求 現地見学 電話でお問い合わせ
0120-046-690

地図

申し訳ありません
こちらは会員限定機能です

会員登録で利用できる6つの便利機能

詳しく見る

お気軽にどうぞ!

資料請求 現地見学 電話でお問い合わせ
0120-046-690

頭金0万円・金利0.495%の場合

ボーナス時(年2回)お支払額

0

この物件の月々のお支払額

114,275

年収に対する返済比率

46

  • ※会員登録し、詳細情報を記入されますと、全ての物件で自動的に金額が表示され、大変便利です。
  • ※まだ会員登録をされていない方は、下記チェック欄をご記入ください。
  • ※上記計算は物件価格4,080万円+諸経費 8%込みの金額による結果となります。
  • ※返済金額はあくまでも目安です。

お客様の条件からシミュレーションするには?

会員登録
マイページから登録

金利

直接入力する

ボーナス払い(年2回)

返済年数

頭金

直接入力する

 万円(半角数字)

年収

 万円(半角数字)
価格 4,080万円
物件種別 新築一戸建て
間取り 2SLDK
所在地 茅ヶ崎市 香川5丁目
交通
  • 相模線「香川」駅 徒歩 7 分
  • 東海道本線「茅ヶ崎」駅 バス停「香川駅入口」まで 徒歩 10 分 バス利用 14分
土地面積 104.62㎡
建物面積 99.36㎡
学区 香川小学校、北陽中学校
用途地域 第一種中高層住居専用
建ぺい率 60%
容積率 180%
地目 宅地
駐車場 有り カースペース
接道 西4.5m、南4.2m
権利 所有権
私道面積 無し
セットバック 無し
建物構造 木造
建物階数 2階
築年月 2026年03月
入居日 2026年04月
都市計画 市街化区域
取引態様 仲介
物件番号 S00619-11
設備 公営水道、公共下水、吹き抜け、駐車場1台、区画整理地内、緑豊かな住宅地、閑静な住宅地、スーパーが近い(10分以内)、公園5分以内、システムキッチン、ガス3口、浄水器、I型キッチン、パントリー(食器・食品の収納庫)、ユニットバス、追い焚き、浴室乾燥機、ウォシュレット、トイレ2ヶ所、浴室1坪以上、浴室に窓、暖房便座、セカンド洗面台、浴室暖房、バルコニー、南面バルコニー、2階建、ロフト、LDK20畳以上、採光2面、全室南向き、南向き、フローリング、全室フローリング、リビング階段、クローゼット、収納、床下収納、シャンプドレッサー付き、24時間換気システム、建物10年保証、勾配天井
建築確認番号 第2025SBC-確00414H号
特記事項 不整形地:有 宅地造成工事規制区域:有 高度地区:有 準防火地域:有 日影制限:有 高さ限度:有 その他制限事項:前面道路私道につき持分あり(一部持分は通行・掘削に関する承諾書あり) ゴミ置場2.96平米1/12有 不整形地:有/宅地造成工事規制区域:有/高度地区:有/準防火地域:有/日影制限:有/高さ限度:有/前面道路私道につき持分あり(一部持分は通行・掘削に関する承諾書あり) ゴミ置場2.96平米1/12有。 /
備考 相模線「香川」駅から徒歩7分。緑豊かで、閑静な住環境。20帖LDKは対面キッチン・リビングイン階段なので、ご家族とのコミュニケーションがとりやすいですね。固定階段のロフトは、季節物や大物も収納しやすいです。

お気軽にどうぞ!

資料請求 現地見学 電話でお問い合わせ
0120-046-690

このエリアでお探しの方へ

今週末モデルハウス見学会開催中!「茅ヶ崎」駅利用 新築一戸建て

東海道本線「茅ヶ崎」駅 バス停「甘沼」まで 徒歩 5 分 バス利用 10分

相模線「北茅ヶ崎」駅 徒歩 25 分

茅ヶ崎市 赤羽根

3,780万円

4LDK

建物完成しました!今週末内覧会開催中!「湘南台」駅利用 新築一戸建て(1)

ブルーライン「湘南台」駅 バス停「御所見中学校前」まで 徒歩 11 分 バス利用 11分

江ノ島線「長後」駅 バス停「御所見中学校前」まで 徒歩 11 分 バス利用 13分

藤沢市 用田

3,780万円

4LDK

今週末モデルハウス見学会開催中!「舞岡」駅利用 新築一戸建て 小屋裏収納 吹抜有

ブルーライン「舞岡」駅 徒歩 20 分

東海道本線「戸塚」駅 バス停「西洗」まで 徒歩 3 分 バス利用 13分

横浜市戸塚区 南舞岡4丁目

3,780万円

3LDK

今週末モデルハウス見学会開催中!「茅ヶ崎」駅利用 新築一戸建て (3)

東海道本線「茅ヶ崎」駅 バス停「堤坂下」まで 徒歩 5 分 バス利用 16分

江ノ島線「湘南台」駅 バス停「堤坂下」まで 徒歩 5 分 バス利用 21分

茅ヶ崎市 堤

3,780万円

3LDK

建物完成しました! 今週末内覧会開催中!BL「蒔田」駅徒歩12分 借地権付き新築一戸建て 全室2面採

ブルーライン「蒔田」駅 徒歩 12 分

東海道本線「横浜」駅 バス停「天神橋」まで 徒歩 7 分 バス利用 33分

横浜市南区 堀ノ内町1丁目

3,780万円

3LDK

値下げしました!今週末モデルハウス見学会開催中!「下永谷」駅利用 新築一戸建て(1) 対面キッチン

ブルーライン「下永谷」駅 徒歩 20 分

ブルーライン「舞岡」駅 バス停「港南プラザ」まで 徒歩 2 分 バス利用 6分

横浜市港南区 日限山4丁目

3,780万円

3LDK

値下げしました!「東戸塚」駅利用 新築一戸建て(2) 対面キッチン・リビングイン階段

横須賀線「東戸塚」駅 バス停「富士山下」まで 徒歩 4 分 バス利用 10分

東海道本線「戸塚」駅 バス停「富士山下」まで 徒歩 4 分 バス利用 16分

横浜市戸塚区 上矢部町

3,780万円

3LDK

今週末モデルハウス見学会開催中!「大船」駅利用 新築一戸建て(B)

東海道本線「大船」駅 バス停「中町」まで 徒歩 1 分 バス利用 18分

横須賀線「北鎌倉」駅 徒歩 29 分

鎌倉市 今泉3丁目

3,780万円

3SLDK

今週末モデルハウス見学会開催中!「下永谷」駅徒歩10分 新築一戸建て 屋根裏収納

ブルーライン「下永谷」駅 徒歩 10 分

ブルーライン「舞岡」駅 徒歩 18 分

横浜市戸塚区 舞岡町

3,780万円

3LDK

横浜市港北区岸根町 中古一戸建 3780万円

ブルーライン「岸根公園」駅 徒歩 5 分

横浜線「新横浜」駅 徒歩 21 分

横浜市港北区 岸根町

3,780万円

4LDK

川崎市宮前区初山2丁目 新築一戸建 3780万円

田園都市線「溝の口」駅 バス停「緑地」まで 徒歩 2 分 バス利用 20分

小田急線「登戸」駅 バス停「緑地」まで 徒歩 2 分 バス利用 20分

川崎市宮前区 初山2丁目

3,780万円

3LDK

今週末モデルハウス見学会開催中!「新杉田」駅利用 新築一戸建て(2) 対面キッチン・リビングイン階段

根岸線「新杉田」駅 徒歩 17 分

京浜急行本線「杉田」駅 徒歩 20 分

横浜市金沢区 富岡東1丁目

3,780万円

2SLDK

お気軽にどうぞ!

資料請求 現地見学 電話でお問い合わせ
0120-046-690
来店予約