1. トップページ
  2. 今週末モデルハウス見学会開催中!「茅ヶ崎」駅徒歩17分 新築一戸建て(2)

今週末モデルハウス見学会開催中!「茅ヶ崎」駅徒歩17分 新築一戸建て(2)

価格
4,680万円
物件種別
新築一戸建て
間取り
4LDK
所在地
茅ヶ崎市 南湖3丁目
交通
  • 東海道本線「茅ヶ崎」駅 徒歩 17 分
  • 相模線「茅ヶ崎」駅 バス停「茶屋町」まで 徒歩 4 分 バス利用 4分
土地面積
91.64㎡
建物面積
94.39㎡
  • 前回情報更新日 2025.10.25
  • 次回情報更新予定日 2025.11.08
資料請求 現地見学 電話でお問い合わせ
0120-046-690
外観:黒と白基調に個性を演出。クールな印象の中にあたたかみを感じさせるデザイン。
外観:黒と白基調に個性を演出。クールな印象の中にあたたかみを感じさせるデザイン。
間取り
間取り
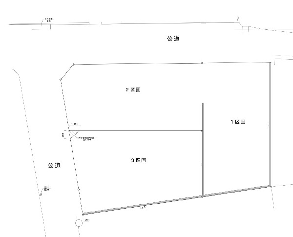
区画図
区画図
外観
外観

この物件のココがオススメ!

JR東海道本線「茅ヶ崎」駅徒歩17分。緑豊かで閑静な住環境。カースペース2台駐車可能。19.04帖LDKは、対面キッチンリビングイン階段なのでご家族とのコミュニケーションがとりやすいですね。

こだわりポイント

  • 海が近い家
  • 浴室換気乾燥暖房機
  • 大人の二人暮らし
  • LDKは1階に
  • リビングイン階段
  • LDK18帖以上
  • 対面キッチン
  • 浴室1坪以上
  • 有料道路インター2キロ以内
  • スーパー10分以内
  • コンビニ10分以内
  • 保育園10分以内
  • 公園10分以内
  • 都市ガス
  • カースペース2台

お気軽にどうぞ!

資料請求 現地見学 電話でお問い合わせ
0120-046-690

地図

申し訳ありません
こちらは会員限定機能です

会員登録で利用できる6つの便利機能

詳しく見る

お気軽にどうぞ!

資料請求 現地見学 電話でお問い合わせ
0120-046-690

頭金0万円・金利0.495%の場合

ボーナス時(年2回)お支払額

0

この物件の月々のお支払額

131,082

年収に対する返済比率

52

  • ※会員登録し、詳細情報を記入されますと、全ての物件で自動的に金額が表示され、大変便利です。
  • ※まだ会員登録をされていない方は、下記チェック欄をご記入ください。
  • ※上記計算は物件価格4,680万円+諸経費 8%込みの金額による結果となります。
  • ※返済金額はあくまでも目安です。

お客様の条件からシミュレーションするには?

会員登録
マイページから登録

金利

直接入力する

ボーナス払い(年2回)

返済年数

頭金

直接入力する

 万円(半角数字)

年収

 万円(半角数字)
価格 4,680万円
物件種別 新築一戸建て
間取り 4LDK
所在地 茅ヶ崎市 南湖3丁目
交通
  • 東海道本線「茅ヶ崎」駅 徒歩 17 分
  • 相模線「茅ヶ崎」駅 バス停「茶屋町」まで 徒歩 4 分 バス利用 4分
土地面積 91.64㎡
建物面積 94.39㎡
学区 西浜小学校、西浜中学校
用途地域 第一種中高層住居専用
建ぺい率 60%
容積率 200%
地目 宅地
駐車場 有り カースペース
接道 北東3.9m、北西4m
権利 所有権
私道面積 無し
セットバック 無し
建物構造 木造
建物階数 2階
築年月 2025年11月
入居日 2025年12月
都市計画 市街化区域
取引態様 仲介
物件番号 S00562-2
設備 公営水道、公共下水、ビルトインガレージ、駐車場2台以上、緑豊かな住宅地、閑静な住宅地、スーパーが近い(10分以内)、保育施設・幼稚園5分以内、コンビニ5分以内、システムキッチン、ガス3口、浄水器、ユニットバス、追い焚き、浴室乾燥機、ウォシュレット、トイレ2ヶ所、浴室1坪以上、浴室に窓、暖房便座、浴室暖房、バルコニー、2階建、LDK18畳以上、全室2面採光、フローリング、クローゼット、下駄箱、全居室収納、シャンプドレッサー付き、モニタ付きインターフォン、24時間換気システム、建物10年保証
建築確認番号 第KBI-SGM25-10-2812号
特記事項 隅切り:有 宅地造成工事規制区域:有 高度地区:有 準防火地域:有 日影制限:有 高さ限度:有 隅切り:有/宅地造成工事規制区域:有/高度地区:有/準防火地域:有/日影制限:有/高さ限度:有。 /
備考 JR東海道本線「茅ヶ崎」駅徒歩17分。緑豊かで閑静な住環境。カースペース2台駐車可能。19.04帖LDKは、対面キッチンリビングイン階段なのでご家族とのコミュニケーションがとりやすいですね。

お気軽にどうぞ!

資料請求 現地見学 電話でお問い合わせ
0120-046-690

このエリアでお探しの方へ

川崎市中原区中丸子 新築一戸建 4380万円 A号棟

南武線「向河原」駅 徒歩 12 分

東急東横線「武蔵小杉」駅 徒歩 17 分

川崎市中原区 中丸子

4,380万円

2SLDK

川崎市中原区中丸子 新築一戸建 4380万円 B号棟

南武線「向河原」駅 徒歩 12 分

東急東横線「武蔵小杉」駅 徒歩 17 分

川崎市中原区 中丸子

4,380万円

2SLDK

川崎市宮前区犬蔵1丁目 新築一戸建 4380万円 2号棟

田園都市線「鷺沼」駅 徒歩 20 分

田園都市線「たまプラーザ」駅 徒歩 22 分

川崎市宮前区 犬蔵1丁目

4,380万円

3LDK

横浜市神奈川区神大寺1丁目 新築一戸建 4380万円

ブルーライン「三ッ沢下町」駅 徒歩 9 分

東急東横線「反町」駅 徒歩 18 分

横浜市神奈川区 神大寺1丁目

4,380万円

3LDK

横浜市神奈川区神大寺1丁目 新築一戸建 4380万円

ブルーライン「三ッ沢下町」駅 徒歩 9 分

東急東横線「反町」駅 徒歩 18 分

横浜市神奈川区 神大寺1丁目

4,380万円

3LDK

川崎市宮前区西野川3丁目 新築一戸建 4380万円 5号棟

田園都市線「鷺沼」駅 バス停「野川台」まで 徒歩 7 分 バス利用 16分

東急東横線「武蔵小杉」駅 バス停「野川台」まで 徒歩 8 分 バス利用 29分

川崎市宮前区 西野川3丁目

4,380万円

3LDK

川崎市宮前区西野川3丁目 新築一戸建 4380万円 6号棟

田園都市線「鷺沼」駅 バス停「野川台」まで 徒歩 7 分 バス利用 16分

東急東横線「武蔵小杉」駅 バス停「野川台」まで 徒歩 8 分 バス利用 29分

川崎市宮前区 西野川3丁目

4,380万円

3LDK

値下げしました!「戸部」駅徒歩11分 借地権付き新築一戸建て 角地

京浜急行本線「戸部」駅 徒歩 11 分

根岸線「桜木町」駅 徒歩 17 分

横浜市西区 西戸部町2丁目

4,380万円

4LDK

値下げしました!「三ツ境」駅利用 新築一戸建て(2) カースペース3台

相模鉄道線「三ッ境」駅 バス停「宗川寺前」まで 徒歩 3 分 バス利用 6分

江ノ島線「桜ヶ丘」駅 徒歩 19 分

横浜市瀬谷区 下瀬谷3丁目

4,380万円

3SLDK

値下げしました! 「大船」駅利用 新築一戸建て(G) 全7棟 ゆとりの4LDK

東海道本線「大船」駅 バス停「常勝寺」まで 徒歩 6 分 バス利用 7分

横須賀線「戸塚」駅 バス停「田谷」まで 徒歩 12 分 バス利用 17分

横浜市戸塚区 小雀町

4,380万円

4LDK

値下げしました!「踊場」駅徒歩11分 新築一戸建て 全居室6帖以上

ブルーライン「踊場」駅 徒歩 11 分

東海道本線「戸塚」駅 バス停「踊場」まで 徒歩 10 分 バス利用 5分

横浜市戸塚区 汲沢6丁目

4,380万円

3LDK

今週末モデルハウス見学会開催中!「戸塚」駅利用 新築一戸建て SIC・パントリー完備

東海道本線「戸塚」駅 徒歩 23 分

横須賀線「東戸塚」駅 バス停「ブリジストン前」まで 徒歩 18 分 バス利用 20分

横浜市戸塚区 上矢部町

4,380万円

2LDK+2S

お気軽にどうぞ!

資料請求 現地見学 電話でお問い合わせ
0120-046-690