1. トップページ
  2. 建物完成しました!今週末内覧会開催中!「茅ヶ崎」駅利用 新築一戸建て (B)

建物完成しました!今週末内覧会開催中!「茅ヶ崎」駅利用 新築一戸建て (B)

価格
3,590万円
物件種別
新築一戸建て
間取り
3LDK
所在地
茅ヶ崎市 松林2丁目
交通
  • 東海道本線「茅ヶ崎」駅 バス停「松林2丁目」まで 徒歩 3 分 バス利用 16分
  • 東海道本線「辻堂」駅 バス停「松林2丁目」まで 徒歩 3 分 バス利用 10分
土地面積
103.33㎡
建物面積
82.39㎡
  • 前回情報更新日 2025.10.25
  • 次回情報更新予定日 2025.11.08
資料請求 現地見学 電話でお問い合わせ
0120-046-690
外観:心踊る日常と守られている安心感 どのライフステージでも快適に暮らすことができる住空間です。
外観:心踊る日常と守られている安心感 どのライフステージでも快適に暮らすことができる住空間です。
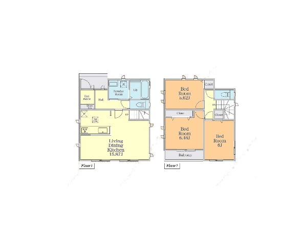
間取り:B号棟間取図
間取り:B号棟間取図
区画図
区画図
外観
外観

この物件のココがオススメ!

JR東海道本線「茅ヶ崎」駅利用。緑豊かで、閑静な住環境。リビングで遊んでいる子どもたちを見守りながら、時にはおしゃべりしながらお料理や後片づけができる対面キッチン。カースペース2台可能。

こだわりポイント

  • 敷地延長(旗竿地)
  • 浴室換気乾燥暖房機
  • 2沿線利用であんしん通勤
  • LDKは1階に
  • リビングイン階段
  • LDK15帖以上
  • 対面キッチン
  • 浴室1坪以上
  • 小学校10分以内
  • スーパー10分以内
  • コンビニ10分以内
  • 公園10分以内
  • 都市ガス
  • フラット35利用可
  • カースペース2台

お気軽にどうぞ!

資料請求 現地見学 電話でお問い合わせ
0120-046-690

地図

申し訳ありません
こちらは会員限定機能です

会員登録で利用できる6つの便利機能

詳しく見る

お気軽にどうぞ!

資料請求 現地見学 電話でお問い合わせ
0120-046-690

頭金0万円・金利0.495%の場合

ボーナス時(年2回)お支払額

0

この物件の月々のお支払額

100,555

年収に対する返済比率

40

  • ※会員登録し、詳細情報を記入されますと、全ての物件で自動的に金額が表示され、大変便利です。
  • ※まだ会員登録をされていない方は、下記チェック欄をご記入ください。
  • ※上記計算は物件価格3,590万円+諸経費 8%込みの金額による結果となります。
  • ※返済金額はあくまでも目安です。

お客様の条件からシミュレーションするには?

会員登録
マイページから登録

金利

直接入力する

ボーナス払い(年2回)

返済年数

頭金

直接入力する

 万円(半角数字)

年収

 万円(半角数字)
価格 3,590万円
物件種別 新築一戸建て
間取り 3LDK
所在地 茅ヶ崎市 松林2丁目
交通
  • 東海道本線「茅ヶ崎」駅 バス停「松林2丁目」まで 徒歩 3 分 バス利用 16分
  • 東海道本線「辻堂」駅 バス停「松林2丁目」まで 徒歩 3 分 バス利用 10分
土地面積 103.33㎡
建物面積 82.39㎡
学区 松林小学校、松林中学校
用途地域 第一種住居
建ぺい率 60%
容積率 200%
地目 宅地
駐車場 有り カースペース
接道 北4m
権利 所有権
私道面積 無し
セットバック 無し
建物構造 木造
建物階数 2階
築年月 2025年08月
入居日 即時
都市計画 市街化区域
取引態様 仲介
物件番号 S00561-B
設備 公営水道、公共下水、外壁サイディング、フラット35・S適合証明書、駐車場2台以上、緑豊かな住宅地、閑静な住宅地、スーパーが近い(10分以内)、2沿線以上利用可、中学校徒歩10分以内、公園5分以内、コンビニ5分以内、システムキッチン、ガス3口、浄水器、ユニットバス、追い焚き、浴室乾燥機、ウォシュレット、オートバス付き、トイレ2ヶ所、浴室1坪以上、浴室に窓、暖房便座、浴室暖房、バルコニー、南面バルコニー、2階建、LDK15畳以上、採光2面、採光3面、全室2面採光、フローリング、クローゼット、収納、床下収納、下駄箱、全居室収納、シャンプドレッサー付き、モニタ付きインターフォン、複層ガラス、火災警報器(報知機)、24時間換気システム、建物10年保証
建築確認番号 -
特記事項 文化財保護法:有 不整形地:有 宅地造成工事規制区域:有 高度地区:有 準防火地域:有 日影制限:有 高さ限度:有 その他制限事項: 土地面積に路地状部分約36平米含 土地面積に共用部分約0.56平米含 前面道路私道につき通行・掘削に関する承諾書あり(私道持分なし)越境に関する覚書有 文化財保護法:有/不整形地:有/宅地造成工事規制区域:有/高度地区:有/準防火地域:有/日影制限:有/高さ限度:有/ 土地面積に路地状部分約36平米含 土地面積に共用部分約0.56平米含 前面道路私道につき通行・掘削に関する承諾書あり(私道持分なし)越境に関する覚書有。 /
備考 JR東海道本線「茅ヶ崎」駅利用。緑豊かで、閑静な住環境。リビングで遊んでいる子どもたちを見守りながら、時にはおしゃべりしながらお料理や後片づけができる対面キッチン。カースペース2台可能。

お気軽にどうぞ!

資料請求 現地見学 電話でお問い合わせ
0120-046-690

このエリアでお探しの方へ

川崎市宮前区神木本町3丁目 中古一戸建 3299万円

小田急線「登戸」駅 バス停「神木本町」まで 徒歩 1 分 バス利用 12分

田園都市線「溝の口」駅 バス停「神木本町」まで 徒歩 2 分 バス利用 11分

川崎市宮前区 神木本町3丁目

3,299万円

3LDK+2S

今週末内覧会開催中!「金沢文庫」駅利用 中古一戸建て 閑静な住環境

京浜急行本線「金沢文庫」駅 徒歩 23 分

根岸線「洋光台」駅 バス停「神明前」まで 徒歩 2 分 バス利用 21分

横浜市金沢区 釜利谷東5丁目

3,299万円

4LDK

値下げしました!今週末モデルハウス見学会開催中!BL「弘明寺」駅利用 未入居中古一戸建て 全室2面採

ブルーライン「弘明寺」駅 バス停「岡村町」まで 徒歩 4 分 バス利用 12分

京浜急行本線「上大岡」駅 バス停「岡村町」まで 徒歩 4 分 バス利用 15分

横浜市磯子区 岡村3丁目

3,360万円

2SDK

値下げしました! 「戸塚」駅利用 新築一戸建て(C)カースペース2台可

東海道本線「戸塚」駅 バス停「上矢部」まで 徒歩 3 分 バス利用 16分

横須賀線「東戸塚」駅 バス停「公園前」まで 徒歩 14 分 バス利用 6分

横浜市戸塚区 上矢部町

3,380万円

2LDK+2S

値下げしました!「戸塚」駅利用 新築一戸建て(B)カースペース2台可

東海道本線「戸塚」駅 バス停「上矢部」まで 徒歩 3 分 バス利用 16分

横須賀線「東戸塚」駅 バス停「公園前」まで 徒歩 14 分 バス利用 6分

横浜市戸塚区 上矢部町

3,380万円

2LDK+2S

値下げしました!モデルハウス見学会開催中!「鶴ケ峰」駅徒歩15分 新築一戸建て 2面バルコニー ロフ

相模鉄道線「鶴ヶ峰」駅 徒歩 15 分

横須賀線「東戸塚」駅 バス停「市沢町」まで 徒歩 12 分 バス利用 16分

横浜市旭区 川島町

3,380万円

2LDK

今週末モデルハウス見学会開催中!「踊場」駅徒歩9分 新築一戸建て ロフト完備

ブルーライン「踊場」駅 徒歩 9 分

東海道本線「戸塚」駅 徒歩 19 分

横浜市戸塚区 矢部町

3,380万円

1SLDK

川崎市麻生区千代ケ丘6丁目 中古一戸建 3380万円

小田急線「百合ヶ丘」駅 徒歩 22 分

小田急線「新百合ヶ丘」駅 バス停「千代ケ丘九丁目」まで 徒歩 5 分 バス利用 16分

川崎市麻生区 千代ケ丘6丁目

3,380万円

3LDK

川崎市多摩区南生田6丁目 中古一戸建 3399万円

小田急線「生田」駅 徒歩 20 分

小田急線「読売ランド前」駅 徒歩 25 分

川崎市多摩区 南生田6丁目

3,399万円

4LDK

川崎市麻生区片平4丁目 中古一戸建 3450万円

小田急線「柿生」駅 徒歩 19 分

小田急多摩線「五月台」駅 徒歩 20 分

川崎市麻生区 片平4丁目

3,450万円

3LDK

今週末モデルハウス見学会開催中!「鶴ケ峰」駅利用 新築一戸建て エコジョーズ

相模鉄道線「鶴ヶ峰」駅 徒歩 17 分

いずみ野線「二俣川」駅 徒歩 21 分

横浜市旭区 川島町

3,480万円

2LDK

今週末モデルハウス見学会開催中!「大船」駅利用 新築一戸建て(C)

東海道本線「大船」駅 バス停「中町」まで 徒歩 1 分 バス利用 18分

横須賀線「北鎌倉」駅 徒歩 29 分

鎌倉市 今泉3丁目

3,480万円

2LDK+2S

お気軽にどうぞ!

資料請求 現地見学 電話でお問い合わせ
0120-046-690