1. トップページ
  2. 建物完成しました!今週末内覧会開催中!「辻堂」駅利用 新築一戸建て(A)

建物完成しました!今週末内覧会開催中!「辻堂」駅利用 新築一戸建て(A)

価格
5,680万円
物件種別
新築一戸建て
間取り
3LDK
所在地
藤沢市 大庭
交通
  • 東海道本線「辻堂」駅 バス停「舟地蔵」まで 徒歩 2 分 バス利用 7分
  • 江ノ島線「善行」駅 バス停「舟地蔵」まで 徒歩 2 分 バス利用 8分
土地面積
117.59㎡
建物面積
93.98㎡
  • 前回情報更新日 2026.01.09
  • 次回情報更新予定日 2026.01.23
資料請求 現地見学 電話でお問い合わせ
0120-046-690
外観:  心踊る日常と守られている安心感 どのライフステージでも快適に暮らすことができる住空間です。
外観: 心踊る日常と守られている安心感 どのライフステージでも快適に暮らすことができる住空間です。
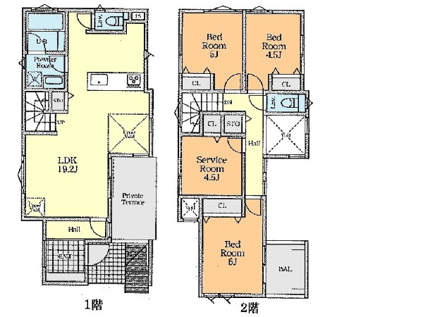
間取り
間取り
区画図
区画図
外観
外観
外観
外観
外観
外観

この物件のココがオススメ!

東海道線「辻堂」駅利用。緑豊かで閑静な住宅地。全室2面採光なので、明るく通風良好なお住まいです。玄関に隣接のSICは、ベビーカーやゴルフバッグ等の収納に便利ですね。

こだわりポイント

  • 床暖房
  • 浴室換気乾燥暖房機
  • シューズインクローク
  • リビングイン階段
  • LDKは2階に
  • LDK20帖以上
  • 対面キッチン
  • 浴室1坪以上
  • 小学校10分以内
  • 大規模公園10分以内
  • 有料道路インター2キロ以内
  • 大型商業施設15分以内
  • コンビニ10分以内
  • 小児科医院10分以内
  • 保育園10分以内
  • 幼稚園10分以内
  • 公園10分以内
  • 都市ガス
  • カースペース2台
  • 整形地

お気軽にどうぞ!

資料請求 現地見学 電話でお問い合わせ
0120-046-690

地図

申し訳ありません
こちらは会員限定機能です

会員登録で利用できる6つの便利機能

詳しく見る

お気軽にどうぞ!

資料請求 現地見学 電話でお問い合わせ
0120-046-690

頭金0万円・金利0.495%の場合

ボーナス時(年2回)お支払額

0

この物件の月々のお支払額

159,094

年収に対する返済比率

64

  • ※会員登録し、詳細情報を記入されますと、全ての物件で自動的に金額が表示され、大変便利です。
  • ※まだ会員登録をされていない方は、下記チェック欄をご記入ください。
  • ※上記計算は物件価格5,680万円+諸経費 8%込みの金額による結果となります。
  • ※返済金額はあくまでも目安です。

お客様の条件からシミュレーションするには?

会員登録
マイページから登録

金利

直接入力する

ボーナス払い(年2回)

返済年数

頭金

直接入力する

 万円(半角数字)

年収

 万円(半角数字)
価格 5,680万円
物件種別 新築一戸建て
間取り 3LDK
所在地 藤沢市 大庭
交通
  • 東海道本線「辻堂」駅 バス停「舟地蔵」まで 徒歩 2 分 バス利用 7分
  • 江ノ島線「善行」駅 バス停「舟地蔵」まで 徒歩 2 分 バス利用 8分
土地面積 117.59㎡
建物面積 93.98㎡
学区 小糸小学校、大庭中学校
用途地域 第一種低層住居専用
建ぺい率 50%
容積率 80%
地目 宅地
駐車場 有り カースペース
接道 北5.9m
権利 所有権
私道面積 無し
セットバック 無し
建物構造 木造
建物階数 2階
築年月 2025年03月
入居日 即時
都市計画 市街化区域
取引態様 仲介
物件番号 S00554-A
設備 公営水道、公共下水、駐車場2台以上、緑豊かな住宅地、閑静な住宅地、小学校徒歩10分以内、公園5分以内、コンビニ5分以内、システムキッチン、ガス3口、浄水器、I型キッチン、ユニットバス、追い焚き、浴室乾燥機、ウォシュレット、トイレ2ヶ所、浴室1坪以上、浴室に窓、暖房便座、浴室暖房、バルコニー、ウッドデッキ、南面バルコニー、LDK20畳以上、南向き、全室2面採光、フローリング、全室フローリング、リビング階段、クローゼット、収納、床下収納、全居室収納、シャンプドレッサー付き、建物10年保証、勾配天井
建築確認番号 第KBI-YKH24-10-2236号
特記事項 景観法:有 宅地造成工事規制区域:有 日影制限:有 敷地内段差:有 高さ限度:有 その他制限事項:藤沢市緑の保全及緑化の推進に関する条例 建築基準法第22条区域 土地区画整理事業:西部 景観法:有/宅地造成工事規制区域:有/日影制限:有/敷地内段差:有/高さ限度:有/藤沢市緑の保全及緑化の推進に関する条例 建築基準法第22条区域 土地区画整理事業:西部。 /
備考 東海道線「辻堂」駅利用。緑豊かで閑静な住宅地。全室2面採光なので、明るく通風良好なお住まいです。玄関に隣接のSICは、ベビーカーやゴルフバッグ等の収納に便利ですね。

お気軽にどうぞ!

資料請求 現地見学 電話でお問い合わせ
0120-046-690

このエリアでお探しの方へ

今週末モデルハウス見学会開催中!「善行」駅徒歩6分 新築一戸建て (4)

江ノ島線「善行」駅 徒歩 6 分

東海道本線「藤沢」駅 バス停「善行2丁目」まで 徒歩 1 分 バス利用 20分

藤沢市 善行1丁目

5,480万円

2LDK+2S

今週末モデルハウス見学会開催中!「善行」駅利用 新築一戸建て(B) WIC

江ノ島線「善行」駅 徒歩 33 分

東海道本線「辻堂」駅 バス停「舟地蔵」まで 徒歩 1 分 バス利用 8分

藤沢市 大庭

5,480万円

3LDK

今週末モデルハウス見学会開催中!「善行」駅利用 新築一戸建て(A) SIC

江ノ島線「善行」駅 徒歩 33 分

東海道本線「辻堂」駅 バス停「舟地蔵」まで 徒歩 1 分 バス利用 8分

藤沢市 大庭

5,480万円

3LDK

今週末モデルハウス見学開催中!小田急江ノ島線「善行」駅徒歩9分 新築一戸建て(3)

江ノ島線「善行」駅 徒歩 9 分

東海道本線「藤沢」駅 バス停「亀井野団地入口」まで 徒歩 15 分 バス利用 17分

藤沢市 善行6丁目

5,499万円

4LDK

今週末モデルハウス見学会開催中!「辻堂」駅利用 新築一戸建て(2)

東海道本線「辻堂」駅 バス停「二番構保険医療センター」まで 徒歩 8 分 バス利用 11分

ブルーライン「湘南台」駅 バス停「一ノ坪」まで 徒歩 2 分 バス利用 14分

藤沢市 石川

5,380万円

3SLDK

今週末モデルハウス見学会開催中!「藤沢」駅利用 新築一戸建て

東海道本線「藤沢」駅 バス停「柄沢大上」まで 徒歩 5 分 バス利用 13分

根岸線「大船」駅 バス停「長者久保入口」まで 徒歩 5 分 バス利用 15分

藤沢市 大鋸

5,399万円

2LDK+2S

建物完成しました!今週末内覧会開催中!「辻堂」駅利用 新築一戸建て(1)

東海道本線「辻堂」駅 徒歩 16 分

湘南新宿高「辻堂」駅 バス停「城南一丁目」まで 徒歩 5 分 バス利用 3分

藤沢市 城南1丁目

5,498万円

2LDK+2S

今週末モデルハウス見学会開催中!「柳小路」駅徒歩10分 新築一戸建て

江ノ島電鉄線「柳小路」駅 徒歩 10 分

東海道本線「藤沢」駅 徒歩 17 分

藤沢市 片瀬1丁目

5,499万円

4LDK

今週末モデルハウス見学会開催中!「六会日大前」駅徒歩13分 新築一戸建て(2)

江ノ島線「六会日大前」駅 徒歩 13 分

いずみ野線「湘南台」駅 バス停「石川山田」まで 徒歩 13 分 バス利用 5分

藤沢市 天神町3丁目

5,499万円

4LDK

今週末モデルハウス見学会開催中!「鵠沼海岸」駅徒歩9分 新築一戸建て(1)

江ノ島線「鵠沼海岸」駅 徒歩 9 分

江ノ島線「本鵠沼」駅 徒歩 20 分

藤沢市 鵠沼海岸3丁目

5,549万円

3LDK

今週末、建物内覧会開催!「本鵠沼」駅徒歩6分 新築一戸建て(1)

江ノ島線「本鵠沼」駅 徒歩 6 分

東海道本線「藤沢」駅 徒歩 27 分

藤沢市 本鵠沼3丁目

5,599万円

2SLDK

今週末モデルハウス見学会開催中!「六会日大前」駅徒歩13分 新築一戸建て(1)

江ノ島線「六会日大前」駅 徒歩 13 分

いずみ野線「湘南台」駅 バス停「石川山田」まで 徒歩 13 分 バス利用 5分

藤沢市 天神町3丁目

5,599万円

4LDK

お気軽にどうぞ!

資料請求 現地見学 電話でお問い合わせ
0120-046-690