1. トップページ
  2. 建物完成しました!今週末内覧会開催中!「茅ヶ崎」駅利用 新築一戸建て

建物完成しました!今週末内覧会開催中!「茅ヶ崎」駅利用 新築一戸建て

価格
5,281万円
物件種別
新築一戸建て
間取り
3LDK
所在地
茅ヶ崎市 堤
交通
  • 東海道本線「茅ヶ崎」駅 バス停「堤坂下」まで 徒歩 5 分 バス利用 16分
  • 相模線「香川」駅 バス停「堤坂下」まで 徒歩 5 分 バス利用 18分
土地面積
309.48㎡
建物面積
99.37㎡
  • 前回情報更新日 2025.11.20
  • 次回情報更新予定日 2025.12.04
資料請求 現地見学 電話でお問い合わせ
0120-046-690
外観
外観
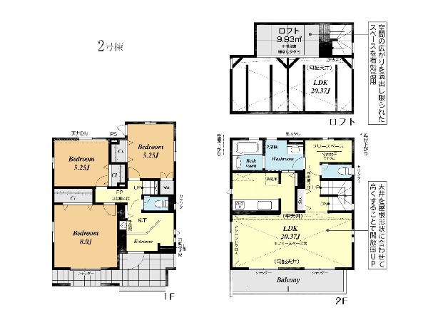
間取り
間取り
ソファを置いてゆったり寛げる広さのリビングは、ご家族の憩いの場にぴったり!
ソファを置いてゆったり寛げる広さのリビングは、ご家族の憩いの場にぴったり!
外観:希少性の高い平屋です。
外観:希少性の高い平屋です。
外観
外観
収納力たっぷりのシューズインクローク
収納力たっぷりのシューズインクローク

この物件のココがオススメ!

JR線「茅ヶ崎」駅利用。角地の為、開放感ある立地。オール電化で環境にやさしい。

こだわりポイント

  • 道路狭い(4メートル未満)
  • 浴室換気乾燥暖房機
  • 太陽光発電システム
  • オール電化
  • 大人の二人暮らし
  • LDKは1階に
  • シューズインクローク
  • LDK20帖以上
  • 浴室1坪以上
  • パントリー
  • 角地限定

お気軽にどうぞ!

資料請求 現地見学 電話でお問い合わせ
0120-046-690

地図

申し訳ありません
こちらは会員限定機能です

会員登録で利用できる6つの便利機能

詳しく見る

お気軽にどうぞ!

資料請求 現地見学 電話でお問い合わせ
0120-046-690

頭金0万円・金利0.495%の場合

ボーナス時(年2回)お支払額

0

この物件の月々のお支払額

147,915

年収に対する返済比率

59

  • ※会員登録し、詳細情報を記入されますと、全ての物件で自動的に金額が表示され、大変便利です。
  • ※まだ会員登録をされていない方は、下記チェック欄をご記入ください。
  • ※上記計算は物件価格5,281万円+諸経費 8%込みの金額による結果となります。
  • ※返済金額はあくまでも目安です。

お客様の条件からシミュレーションするには?

会員登録
マイページから登録

金利

直接入力する

ボーナス払い(年2回)

返済年数

頭金

直接入力する

 万円(半角数字)

年収

 万円(半角数字)
価格 5,281万円
物件種別 新築一戸建て
間取り 3LDK
所在地 茅ヶ崎市 堤
交通
  • 東海道本線「茅ヶ崎」駅 バス停「堤坂下」まで 徒歩 5 分 バス利用 16分
  • 相模線「香川」駅 バス停「堤坂下」まで 徒歩 5 分 バス利用 18分
土地面積 309.48㎡
建物面積 99.37㎡
学区 小出小学校、北陽中学校
用途地域 無指
建ぺい率 50%
容積率 100%
地目 宅地
駐車場 有り カースペース
接道 北3.3m、東3.4m
権利 所有権
私道面積 無し
セットバック 無し
建物構造 木造
建物階数 1階
築年月 2025年07月
入居日 即時
都市計画 市街化調整区域
取引態様 仲介
物件番号 S00548
設備 公営水道、個別浄化槽、省エネルギー対策、駐車場2台以上、緑豊かな住宅地、閑静な住宅地、角地、土地50坪以上、コンビニ5分以内、システムキッチン、ガス3口、浄水器、I型キッチン、パントリー(食器・食品の収納庫)、ユニットバス、追い焚き、浴室乾燥機、ウォシュレット、浴室1坪以上、浴室に窓、浴室暖房、LDK20畳以上、省エネ給湯器、南向き、フローリング、クローゼット、収納、全居室収納、シャンプドレッサー付き、モニタ付きインターフォン、24時間換気システム、建物10年保証
建築確認番号 第2023SBC-確03692H号
特記事項 文化財保護法:有 宅地造成工事規制区域:有 日影制限:有 その他制限事項:建築基準法第22条区域 別途浄化槽及びおひさまエコキュートの維持管理費用あり 文化財保護法:有/宅地造成工事規制区域:有/日影制限:有/建築基準法第22条区域 別途浄化槽及びおひさまエコキュートの維持管理費用あり。 /
備考 JR線「茅ヶ崎」駅利用。角地の為、開放感ある立地。オール電化で環境にやさしい。

お気軽にどうぞ!

資料請求 現地見学 電話でお問い合わせ
0120-046-690

このエリアでお探しの方へ

今週末モデルハウス見学会開催中!「立場」駅徒歩8分 新築一戸建て(1) 全室南向き

ブルーライン「立場」駅 徒歩 8 分

東海道本線「戸塚」駅 バス停「中西」まで 徒歩 5 分 バス利用 11分

横浜市泉区 中田西2丁目

4,988万円

2LDK+2S

値下げしました!今週末見学会開催中!「鶴見」駅利用 新築一戸建て(4) カースペース2台

京浜東北線「鶴見」駅 バス停「北寺尾」まで 徒歩 3 分 バス利用 7分

東急新横浜線「新綱島」駅 バス停「北寺尾」まで 徒歩 4 分 バス利用 18分

横浜市鶴見区 北寺尾4丁目

4,988万円

4LDK

値下げしました!今週末見学会開催中!「鶴見」駅利用 新築一戸建て(8) 閑静な住宅地

京浜東北線「鶴見」駅 バス停「北寺尾」まで 徒歩 3 分 バス利用 7分

東急新横浜線「新綱島」駅 バス停「北寺尾」まで 徒歩 4 分 バス利用 18分

横浜市鶴見区 北寺尾4丁目

4,988万円

4LDK

建物完成しました! 今週末内覧会開催中!「大倉山」駅利用 新築一戸建て 閑静な住宅地

東急東横線「大倉山」駅 バス停「長松寺前」まで 徒歩 6 分 バス利用 11分

京浜東北線「鶴見」駅 バス停「長松寺前」まで 徒歩 6 分 バス利用 23分

横浜市鶴見区 駒岡1丁目

4,988万円

3SLDK

横浜市鶴見区北寺尾4丁目 新築一戸建 4988.3万円 8号棟

京浜東北線「鶴見」駅 バス停「北寺尾」まで 徒歩 4 分 バス利用 18分

東急東横線「綱島」駅 バス停「北寺尾」まで 徒歩 4 分 バス利用 23分

横浜市鶴見区 北寺尾4丁目

4,989万円

4LDK

横浜市鶴見区北寺尾4丁目 新築一戸建 4988.3万円 4号棟

京浜東北線「鶴見」駅 バス停「北寺尾」まで 徒歩 4 分 バス利用 18分

東急東横線「綱島」駅 バス停「北寺尾」まで 徒歩 4 分 バス利用 23分

横浜市鶴見区 北寺尾4丁目

4,989万円

4LDK

横浜市港北区大倉山7丁目 新築一戸建 4990万円 A号棟

ブルーライン「新羽」駅 徒歩 15 分

東急東横線「大倉山」駅 徒歩 17 分

横浜市港北区 大倉山7丁目

4,990万円

2SLDK

今週末モデルハウス見学会開催中!「湘南台駅」駅利用 新築一戸建て

ブルーライン「湘南台」駅 バス停「御所見中学校前」まで 徒歩 6 分 バス利用 11分

江ノ島線「長後」駅 バス停「御所見市民センター前」まで 徒歩 6 分 バス利用 14分

藤沢市 打戻

4,990万円

4LDK

川崎市幸区古川町 新築一戸建 4990万円 A号棟

南武線「矢向」駅 徒歩 14 分

横須賀線「新川崎」駅 徒歩 23 分

川崎市幸区 古川町

4,990万円

1LDK+2S

値下げしました! 「港南台」駅利用 新築一戸建て LDK約20帖

根岸線「港南台」駅 バス停「庄戸五丁目」まで 徒歩 1 分 バス利用 15分

京浜急行本線「金沢八景」駅 バス停「庄戸」まで 徒歩 6 分 バス利用 18分

横浜市栄区 庄戸5丁目

4,990万円

4LDK

町田市成瀬台1丁目 新築一戸建 4990万円 Q号棟

こどもの国線「こどもの国」駅 徒歩 17 分

小田急線「玉川学園前」駅 バス停「成瀬台三丁目」まで 徒歩 2 分 バス利用 12分

町田市 成瀬台1丁目

4,990万円

4LDK

値下げしました!「上永谷」駅徒歩8分 新築一戸建て(2) WIC・パントリー完備

ブルーライン「上永谷」駅 徒歩 8 分

京浜急行本線「上大岡」駅 バス停「丸山台」まで 徒歩 4 分 バス利用 20分

横浜市港南区 丸山台2丁目

4,990万円

3SLDK

お気軽にどうぞ!

資料請求 現地見学 電話でお問い合わせ
0120-046-690
来店予約