1. トップページ
  2. 建物完成しました!今週末内覧会開催中!「辻堂」駅徒歩10分 新築一戸建て(3)

建物完成しました!今週末内覧会開催中!「辻堂」駅徒歩10分 新築一戸建て(3)

価格
3,880万円
物件種別
新築一戸建て
間取り
4LDK
所在地
茅ヶ崎市 浜竹1丁目
交通
  • 東海道本線「辻堂」駅 徒歩 10 分
  • 湘南新宿高「茅ヶ崎」駅 バス停「浜竹」まで 徒歩 7 分 バス利用 14分
土地面積
53.87㎡
建物面積
96.87㎡
  • 前回情報更新日 2025.11.20
  • 次回情報更新予定日 2025.12.04
資料請求 現地見学 電話でお問い合わせ
0120-046-690
外観:深く豊かな緑と爽快な青い空を感じる、まるで杜の中に暮らすような心地よさを存分に堪能頂ける邸宅です。
外観:深く豊かな緑と爽快な青い空を感じる、まるで杜の中に暮らすような心地よさを存分に堪能頂ける邸宅です。
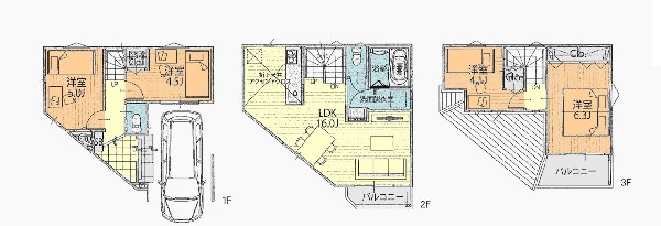
間取り:3号棟間取図
間取り:3号棟間取図
区画図
区画図

この物件のココがオススメ!

JR東海道線「辻堂」駅徒歩10分。リビングイン階段なのでご家族とのコミュニケーションが取りやすいですね。全室二面採光で明るく通風良好なお住まいです。

こだわりポイント

  • 線路沿い
  • 道路狭い(4メートル未満)
  • 断熱に配慮された建物
  • 食器洗い洗浄乾燥機
  • 浴室換気乾燥暖房機
  • リビングイン階段
  • LDKは2階に
  • LDK15帖以上
  • 対面キッチン
  • 小学校10分以内
  • 大型商業施設15分以内
  • スーパー10分以内
  • コンビニ10分以内
  • 保育園10分以内
  • 幼稚園10分以内
  • 公園10分以内
  • 都市ガス
  • フラット35利用可
  • 角地限定

お気軽にどうぞ!

資料請求 現地見学 電話でお問い合わせ
0120-046-690

地図

申し訳ありません
こちらは会員限定機能です

会員登録で利用できる6つの便利機能

詳しく見る

お気軽にどうぞ!

資料請求 現地見学 電話でお問い合わせ
0120-046-690

頭金0万円・金利0.495%の場合

ボーナス時(年2回)お支払額

0

この物件の月々のお支払額

108,673

年収に対する返済比率

43

  • ※会員登録し、詳細情報を記入されますと、全ての物件で自動的に金額が表示され、大変便利です。
  • ※まだ会員登録をされていない方は、下記チェック欄をご記入ください。
  • ※上記計算は物件価格3,880万円+諸経費 8%込みの金額による結果となります。
  • ※返済金額はあくまでも目安です。

お客様の条件からシミュレーションするには?

会員登録
マイページから登録

金利

直接入力する

ボーナス払い(年2回)

返済年数

頭金

直接入力する

 万円(半角数字)

年収

 万円(半角数字)
価格 3,880万円
物件種別 新築一戸建て
間取り 4LDK
所在地 茅ヶ崎市 浜竹1丁目
交通
  • 東海道本線「辻堂」駅 徒歩 10 分
  • 湘南新宿高「茅ヶ崎」駅 バス停「浜竹」まで 徒歩 7 分 バス利用 14分
土地面積 53.87㎡
建物面積 96.87㎡
学区 松浪小学校、松浪中学校
用途地域 第一種住居
建ぺい率 60%
容積率 200%
地目 宅地
駐車場 有り ビルトイン車庫 駐車場面積:10.97㎡
接道 南西3.6m
権利 所有権
私道面積 無し
セットバック 無し
建物構造 木造
建物階数 3階
築年月 2025年01月
入居日 即時
都市計画 市街化区域
取引態様 仲介
物件番号 S00325-3
設備 公営水道、公共下水、フラット35・S適合証明書、駐車場1台、緑豊かな住宅地、閑静な住宅地、角地、スーパーが近い(10分以内)、小学校徒歩10分以内、保育施設・幼稚園5分以内、システムキッチン、ガス3口、食器洗い機付き、浄水器、ユニットバス、追い焚き、浴室乾燥機、ウォシュレット、トイレ2ヶ所、浴室に窓、暖房便座、浴室暖房、バルコニー、3階建以上、LDK15畳以上、採光2面、採光3面、全室2面採光、フローリング、クローゼット、収納、下駄箱、全居室収納、シャンプドレッサー付き、フラット35Sに対応、モニタ付きインターフォン、インターフォン、複層ガラス、24時間換気システム、建物10年保証
建築確認番号 第24KAK建確 01744号
特記事項 文化財保護法:有 不整形地:有 高度地区:有 準防火地域:有 日影制限:有 高さ限度:有 その他制限事項:第2種高度地区 車庫部分10.97平米含む フラット35、フラット35S利用の際は別途取得費用110,000円(税込)必要 文化財保護法:有/不整形地:有/高度地区:有/準防火地域:有/日影制限:有/高さ限度:有/第2種高度地区 車庫部分10.97平米含む フラット35、フラット35S利用の際は別途取得費用110,000円(税込)必要。 /
備考 JR東海道線「辻堂」駅徒歩10分。リビングイン階段なのでご家族とのコミュニケーションが取りやすいですね。全室二面採光で明るく通風良好なお住まいです。

お気軽にどうぞ!

資料請求 現地見学 電話でお問い合わせ
0120-046-690

このエリアでお探しの方へ

横浜市西区境之谷 中古一戸建 3580万円

相模鉄道線「西横浜」駅 徒歩 13 分

京浜急行本線「黄金町」駅 徒歩 17 分

横浜市西区 境之谷

3,580万円

3LDK

今週末モデルハウス見学会開催中!「瀬谷」駅利用 新築一戸建て(2) 対面キッチン・リビングイン階段

相模鉄道線「瀬谷」駅 徒歩 26 分

相模鉄道線「三ッ境」駅 バス停「南台B会場」まで 徒歩 5 分 バス利用 7分

横浜市瀬谷区 宮沢2丁目

3,580万円

3LDK

値下げしました!  「高田」駅徒歩14分 新築一戸建て ルーフバルコニー

グリーンライン「高田」駅 徒歩 14 分

東急東横線「綱島」駅 徒歩 27 分

横浜市港北区 新吉田東1丁目

3,580万円

2LDK

今週末モデルハウス見学会開催中!「大船」駅利用 新築一戸建て(A)

東海道本線「大船」駅 バス停「中町」まで 徒歩 1 分 バス利用 18分

横須賀線「北鎌倉」駅 徒歩 29 分

鎌倉市 今泉3丁目

3,580万円

3SLDK

値下げしました! 「元町・中華街」駅利用 借地権付き新築一戸建て 全室2面採光

みなとみらい線「元町・中華街」駅 徒歩 16 分

東海道本線「横浜」駅 バス停「本郷町」まで 徒歩 5 分 バス利用 26分

横浜市中区 北方町1丁目

3,580万円

3LDK

値下げしました!「大船」駅利用 新築一戸建て(A) ロフト完備

東海道本線「大船」駅 バス停「中町」まで 徒歩 1 分 バス利用 18分

根岸線「大船」駅 バス停「中町」まで 徒歩 1 分 バス利用 18分

鎌倉市 今泉3丁目

3,580万円

3SLDK

横浜市青葉区元石川町 新築一戸建 3580万円

田園都市線「たまプラーザ」駅 バス停「覚永寺」まで 徒歩 7 分 バス利用 6分

ブルーライン「あざみ野」駅 バス停「覚永寺」まで 徒歩 7 分 バス利用 13分

横浜市青葉区 元石川町

3,580万円

2LDK

値下げしました! 「上永谷」駅利用 新築一戸建て 勾配天井

ブルーライン「上永谷」駅 徒歩 18 分

京浜急行本線「上大岡」駅 バス停「桜台」まで 徒歩 9 分 バス利用 8分

横浜市港南区 東永谷3丁目

3,580万円

2SLDK

今週末モデルハウス見学会開催中!「上永谷」駅徒歩15分 新築一戸建て(2) ロフト

ブルーライン「上永谷」駅 徒歩 15 分

京浜急行本線「上大岡」駅 バス停「桜台」まで 徒歩 11 分 バス利用 8分

横浜市港南区 東永谷3丁目

3,580万円

3LDK

川崎市宮前区菅生5丁目 新築一戸建 3580万円 A号棟

南武線「武蔵溝ノ口」駅 バス停「緑地」まで 徒歩 5 分 バス利用 15分

ブルーライン「あざみ野」駅 バス停「蔵敷」まで 徒歩 9 分 バス利用 14分

川崎市宮前区 菅生5丁目

3,580万円

3LDK

値下げしました!今週末モデルハウス見学会開催中!「戸塚」駅利用 新築一戸建て ルーフバルコニー

根岸線「大船」駅 バス停「庚申塚」まで 徒歩 8 分 バス利用 12分

東海道本線「戸塚」駅 バス停「原宿」まで 徒歩 11 分 バス利用 12分

横浜市戸塚区 小雀町

3,590万円

4LDK

建物完成しました!今週末内覧会開催中!「鵠沼」駅徒歩10分 新築一戸建て完成

江ノ島電鉄線「鵠沼」駅 徒歩 10 分

湘南モノレール「目白山下」駅 徒歩 15 分

藤沢市 片瀬2丁目

3,590万円

3LDK

お気軽にどうぞ!

資料請求 現地見学 電話でお問い合わせ
0120-046-690