1. トップページ
  2. 横浜市緑区台村町 新築一戸建 6980万円

横浜市緑区台村町 新築一戸建 6980万円

価格
6,980万円
物件種別
新築一戸建て
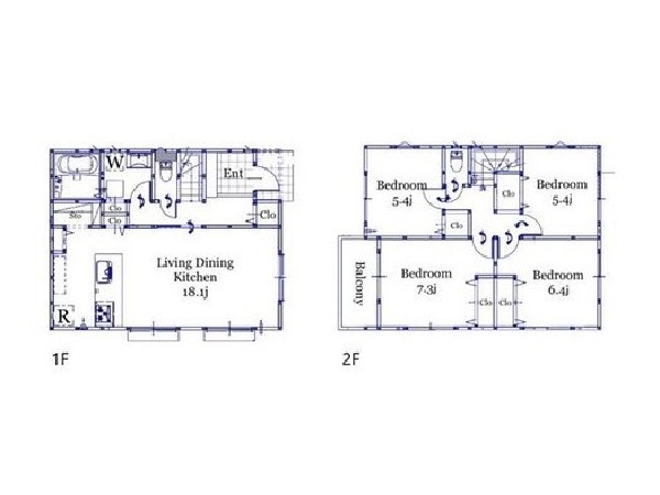
間取り
4LDK
所在地
横浜市緑区 台村町
交通
  • 横浜線「中山」駅 徒歩 10 分
  • 田園都市線「長津田」駅 バス停「三保交差点」まで 徒歩 7 分 バス利用 29分
土地面積
159.19㎡
建物面積
101.23㎡
  • 前回情報更新日 2026.05.22
  • 次回情報更新予定日 2026.06.05
資料請求 現地見学 電話でお問い合わせ
0120-046-690
外観:緑に恵まれたエリアで、毎日のお散歩も気持ちよさそうです。自然に包まれた穏やかな暮らしができそうです。
外観:緑に恵まれたエリアで、毎日のお散歩も気持ちよさそうです。自然に包まれた穏やかな暮らしができそうです。
間取り
間取り
外観:前面道路は4.6m幅の道路。車通りが少なく敷地との高低差もないので、車の出入りがしやすいですね。
外観:前面道路は4.6m幅の道路。車通りが少なく敷地との高低差もないので、車の出入りがしやすいですね。
周辺環境:アルズフーズマーケット中山店(地域に根ざした温かいサービスで、毎日の食卓をもっと豊かに。暮らしに寄り添う身近なフードマーケット。)
周辺環境:アルズフーズマーケット中山店(地域に根ざした温かいサービスで、毎日の食卓をもっと豊かに。暮らしに寄り添う身近なフードマーケット。)
周辺環境:食品館あおば中山店(「地域一番・地域密着」を目指すスーパー。営業時間は10~20時。建物内に飲食店、しまむらがあり便利。)
周辺環境:食品館あおば中山店(「地域一番・地域密着」を目指すスーパー。営業時間は10~20時。建物内に飲食店、しまむらがあり便利。)
周辺環境:四季の森公園(季節によってさまざまな野花が咲き誇る。ジャンボ滑り台や水遊び可能な池がお子様にも人気の大規模公園。)
周辺環境:四季の森公園(季節によってさまざまな野花が咲き誇る。ジャンボ滑り台や水遊び可能な池がお子様にも人気の大規模公園。)
周辺環境:田口メディカルクリニック(内科、脳神経内科、小児科を診療するクリニック。理念は「安全、詳細な説明、患者様の立場に立って考える」)
周辺環境:田口メディカルクリニック(内科、脳神経内科、小児科を診療するクリニック。理念は「安全、詳細な説明、患者様の立場に立って考える」)
周辺環境:森の台小学校(公園に隣接し、広々とした小学校。教育目標は、「自分大すき、友だち大すき、共に学ぶ子、実践する子」)
周辺環境:森の台小学校(公園に隣接し、広々とした小学校。教育目標は、「自分大すき、友だち大すき、共に学ぶ子、実践する子」)
周辺環境:中山中学校(四季の森公園に隣接し自然に囲まれている。主体的に学び考え互いに高め合いよりよい社会を創る力を育てる。)
周辺環境:中山中学校(四季の森公園に隣接し自然に囲まれている。主体的に学び考え互いに高め合いよりよい社会を創る力を育てる。)
周辺環境:みほ幼稚園(国語教育・数遊び・音楽・体育・ミュージカルなど、様々な教育が豊富にあり、お子様の可能性を伸ばせます。)
周辺環境:みほ幼稚園(国語教育・数遊び・音楽・体育・ミュージカルなど、様々な教育が豊富にあり、お子様の可能性を伸ばせます。)
周辺環境:なかやま保育園(楽習保育(R)を軸に愛情・信頼・承認・思いやりの気持ちを持ち「あったかい心」を持つ子供に育てます。)
周辺環境:なかやま保育園(楽習保育(R)を軸に愛情・信頼・承認・思いやりの気持ちを持ち「あったかい心」を持つ子供に育てます。)
周辺環境:ハックドラック中山店(医薬品や生活用品だけでなく食品も充実している。23時まで営業なのでいざという時安心。処方箋受付可能。)
周辺環境:ハックドラック中山店(医薬品や生活用品だけでなく食品も充実している。23時まで営業なのでいざという時安心。処方箋受付可能。)

この物件のココがオススメ!

緑豊かで閑静な住宅地 車2台駐車可能 パントリーなど収納スペースが充実しています

こだわりポイント

  • 敷地延長(旗竿地)
  • 断熱に配慮された建物
  • 食器洗い洗浄乾燥機
  • 浴室換気乾燥暖房機
  • 外食を楽しめる生活
  • 始発で座ってゆったり通勤
  • 2沿線利用であんしん通勤
  • LDKは1階に
  • 2階建て住宅限定
  • LDK18帖以上
  • 対面キッチン
  • 浴室1坪以上
  • パントリー
  • 小学校10分以内
  • スーパー10分以内
  • コンビニ10分以内
  • 小児科医院10分以内
  • 保育園10分以内
  • 幼稚園10分以内
  • 公園10分以内
  • 都市ガス
  • カースペース2台
  • 隣家との間隔たっぷり
  • 道路と段差無し
  • 低層住居専用地域

お気軽にどうぞ!

資料請求 現地見学 電話でお問い合わせ
0120-046-690

地図

申し訳ありません
こちらは会員限定機能です

会員登録で利用できる6つの便利機能

詳しく見る

お気軽にどうぞ!

資料請求 現地見学 電話でお問い合わせ
0120-046-690

頭金0万円・金利0.495%の場合

ボーナス時(年2回)お支払額

0

この物件の月々のお支払額

195,508

年収に対する返済比率

78

  • ※会員登録し、詳細情報を記入されますと、全ての物件で自動的に金額が表示され、大変便利です。
  • ※まだ会員登録をされていない方は、下記チェック欄をご記入ください。
  • ※上記計算は物件価格6,980万円+諸経費 8%込みの金額による結果となります。
  • ※返済金額はあくまでも目安です。

お客様の条件からシミュレーションするには?

会員登録
マイページから登録

金利

直接入力する

ボーナス払い(年2回)

返済年数

頭金

直接入力する

 万円(半角数字)

年収

 万円(半角数字)

約700m

スーパー

周辺環境:アルズフーズマーケット中山店(地域に根ざした温かいサービスで、毎日の食卓をもっと豊かに。暮らしに寄り添う身近なフードマーケット。)

スーパー

約700m

約500m

スーパー

周辺環境:食品館あおば中山店(「地域一番・地域密着」を目指すスーパー。営業時間は10~20時。建物内に飲食店、しまむらがあり便利。)

スーパー

約500m

約1,000m

公園

周辺環境:四季の森公園(季節によってさまざまな野花が咲き誇る。ジャンボ滑り台や水遊び可能な池がお子様にも人気の大規模公園。)

公園

約1,000m

約550m

病院

周辺環境:田口メディカルクリニック(内科、脳神経内科、小児科を診療するクリニック。理念は「安全、詳細な説明、患者様の立場に立って考える」)

病院

約550m

約750m

小学校

周辺環境:森の台小学校(公園に隣接し、広々とした小学校。教育目標は、「自分大すき、友だち大すき、共に学ぶ子、実践する子」)

小学校

約750m

約1,500m

中学校

周辺環境:中山中学校(四季の森公園に隣接し自然に囲まれている。主体的に学び考え互いに高め合いよりよい社会を創る力を育てる。)

中学校

約1,500m

約750m

幼稚園・保育園

周辺環境:みほ幼稚園(国語教育・数遊び・音楽・体育・ミュージカルなど、様々な教育が豊富にあり、お子様の可能性を伸ばせます。)

幼稚園・保育園

約750m

約300m

幼稚園・保育園

周辺環境:なかやま保育園(楽習保育(R)を軸に愛情・信頼・承認・思いやりの気持ちを持ち「あったかい心」を持つ子供に育てます。)

幼稚園・保育園

約300m

約500m

ドラッグストア

周辺環境:ハックドラック中山店(医薬品や生活用品だけでなく食品も充実している。23時まで営業なのでいざという時安心。処方箋受付可能。)

ドラッグストア

約500m

価格 6,980万円
物件種別 新築一戸建て
間取り 4LDK
所在地 横浜市緑区 台村町
交通
  • 横浜線「中山」駅 徒歩 10 分
  • 田園都市線「長津田」駅 バス停「三保交差点」まで 徒歩 7 分 バス利用 29分
土地面積 159.19㎡
建物面積 101.23㎡
学区 森の台小学校、中山中学校
用途地域 第一種低層住居専用
建ぺい率 50%
容積率 100%
地目 宅地
駐車場 有り カースペース
接道 北4.6m
権利 所有権
私道面積 無し
セットバック 無し
建物構造 木造
建物階数 2階
築年月 2026年10月
入居日 2026年11月
都市計画 市街化区域
取引態様 仲介
物件番号 P1176
設備 公営水道、公共下水、スレート葺、駐車場2台以上、緑豊かな住宅地、閑静な住宅地、平坦地、都市近郊、地盤調査済、市街地が近い、周辺交通量少なめ、始発駅、2沿線以上利用可、小学校徒歩10分以内、保育施設・幼稚園5分以内、システムキッチン、食器洗い機付き、浄水器、パントリー(食器・食品の収納庫)、ユニットバス、追い焚き、浴室乾燥機、ウォシュレット、オートバス付き、トイレ2ヶ所、浴室1坪以上、浴室に窓、暖房便座、浴室暖房、バルコニー、2階建、LDK18畳以上、採光2面、全室2面採光、フローリング、クローゼット、収納、下駄箱、全居室収納、洗面室収納、シャンプドレッサー付き、年内入居可、モニタ付きインターフォン、火災警報器(報知機)、全居室複層ガラスか複層サッシ、通風良好、陽当り良好、24時間換気システム、建物10年保証
建築確認番号 第KBI-YKH25-10-3828号
特記事項 不整形地:有/宅地造成工事規制区域:有/高度地区:有/準防火地域:有/日影制限:有/敷地面積最低限度:有/高さ限度:有/緑化地域 土地面積に路地状部分含む 駐車は車種により2台可。 /
備考 緑豊かで閑静な住宅地 車2台駐車可能 パントリーなど収納スペースが充実しています

お気軽にどうぞ!

資料請求 現地見学 電話でお問い合わせ
0120-046-690

このエリアでお探しの方へ

横浜市緑区白山2丁目 新築一戸建 7080万円

横浜線「鴨居」駅 徒歩 18 分

グリーンライン「中山」駅 バス停「白山中央」まで 徒歩 2 分 バス利用 11分

横浜市緑区 白山2丁目

7,080万円

4LDK

横浜市緑区鴨居4丁目 新築一戸建 7280万円

横浜線「鴨居」駅 徒歩 13 分

ブルーライン「片倉町」駅 バス停「南通」まで 徒歩 5 分 バス利用 27分

横浜市緑区 鴨居4丁目

7,280万円

4LDK

横浜市緑区十日市場町 中古一戸建 3499万円

横浜線「十日市場」駅 徒歩 13 分

田園都市線「長津田」駅 徒歩 20 分

横浜市緑区 十日市場町

3,499万円

4LDK

横浜市緑区いぶき野 中古一戸建 3699万円

田園都市線「田奈」駅 徒歩 13 分

横浜線「長津田」駅 徒歩 18 分

横浜市緑区 いぶき野

3,699万円

4LDK

今週末モデルハウス見学会開催中!「十日市場」駅徒歩14分 新築一戸建て 長期優良住宅

横浜線「十日市場」駅 徒歩 14 分

田園都市線「長津田」駅 バス停「上の原」まで 徒歩 6 分 バス利用 6分

横浜市緑区 長津田みなみ台7丁目

7,980万円

4LDK

横浜市緑区東本郷4丁目 中古一戸建 4499万円

横浜線「鴨居」駅 徒歩 19 分

ブルーライン「新横浜」駅 バス停「ひまわり団地前」まで 徒歩 13 分 バス利用 20分

横浜市緑区 東本郷4丁目

4,499万円

4LDK

横浜市緑区東本郷3丁目 新築一戸建 5490万円 B号棟

横浜線「鴨居」駅 徒歩 15 分

ブルーライン「片倉町」駅 バス停「菅田町」まで 徒歩 7 分 バス利用 25分

横浜市緑区 東本郷3丁目

5,490万円

3LDK

横浜市緑区東本郷5丁目 新築一戸建 5780万円

横浜線「小机」駅 徒歩 17 分

ブルーライン「新横浜」駅 バス停「住吉神社前」まで 徒歩 5 分 バス利用 24分

横浜市緑区 東本郷5丁目

5,780万円

3LDK

横浜市緑区鴨居4丁目 新築一戸建 5980万円 5号棟

横浜線「鴨居」駅 徒歩 12 分

グリーンライン「中山」駅 バス停「鴨居町」まで 徒歩 5 分 バス利用 20分

横浜市緑区 鴨居4丁目

5,980万円

4LDK

横浜市緑区鴨居4丁目 新築一戸建 5980万円 6号棟

横浜線「鴨居」駅 徒歩 12 分

グリーンライン「中山」駅 バス停「鴨居町」まで 徒歩 5 分 バス利用 20分

横浜市緑区 鴨居4丁目

5,980万円

4LDK

横浜市緑区鴨居4丁目 新築一戸建 5980万円 3号棟

横浜線「鴨居」駅 徒歩 12 分

グリーンライン「中山」駅 バス停「鴨居町」まで 徒歩 5 分 バス利用 20分

横浜市緑区 鴨居4丁目

5,980万円

4LDK

横浜市緑区鴨居4丁目 新築一戸建 6180万円 10号棟

横浜線「鴨居」駅 徒歩 12 分

グリーンライン「中山」駅 バス停「鴨居町」まで 徒歩 5 分 バス利用 20分

横浜市緑区 鴨居4丁目

6,180万円

3SLDK

お気軽にどうぞ!

資料請求 現地見学 電話でお問い合わせ
0120-046-690
来店予約