1. トップページ
  2. 横浜市緑区鴨居2丁目 新築一戸建 4980万円 3号棟

横浜市緑区鴨居2丁目 新築一戸建 4980万円 3号棟

価格
4,980万円
物件種別
新築一戸建て
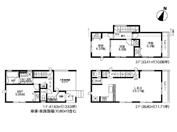
間取り
3SLDK
所在地
横浜市緑区 鴨居2丁目
交通
  • 横浜線「鴨居」駅 徒歩 7 分
  • ブルーライン「岸根公園」駅 バス停「林光寺前」まで 徒歩 2 分 バス利用 26分
土地面積
55.40㎡
建物面積
109.96㎡
  • 前回情報更新日 2026.02.05
  • 次回情報更新予定日 2026.02.19
資料請求 現地見学 電話でお問い合わせ
0120-046-690
間取り
間取り
区画図
区画図
周辺環境:鴨居町北公園(鴨居駅南口にあるキレイに整備された公園です。汽車の遊具が特徴的で小さなお子様に人気があります。)
周辺環境:鴨居町北公園(鴨居駅南口にあるキレイに整備された公園です。汽車の遊具が特徴的で小さなお子様に人気があります。)
周辺環境:イオンフードスタイル鴨居店(食料品、日用品など生活用品が取り揃う大型スーパー。建物内に衣料品店、100円ショップもあり便利です。)
周辺環境:イオンフードスタイル鴨居店(食料品、日用品など生活用品が取り揃う大型スーパー。建物内に衣料品店、100円ショップもあり便利です。)
周辺環境:ローソン鴨居駅東店(スイーツが人気のコンビニ。店内厨房で炊いたご飯や出来立て揚げ物を提供するまちかど厨房取扱店です。)
周辺環境:ローソン鴨居駅東店(スイーツが人気のコンビニ。店内厨房で炊いたご飯や出来立て揚げ物を提供するまちかど厨房取扱店です。)
周辺環境:鴨居保育園(異年齢児との交流保育や行事などを通してのびのびと成長する保育園。鶴見川まで散歩に行き、四季を感じる。)
周辺環境:鴨居保育園(異年齢児との交流保育や行事などを通してのびのびと成長する保育園。鶴見川まで散歩に行き、四季を感じる。)
周辺環境:鴨居小学校(設立は明治7年の歴史ある学校。各学年2~3クラス。教育目標は「かもいのなかま一人じゃないよ」です。)
周辺環境:鴨居小学校(設立は明治7年の歴史ある学校。各学年2~3クラス。教育目標は「かもいのなかま一人じゃないよ」です。)
周辺環境:牧野記念病院(内科、外科、整形外科、脳神経外科、泌尿器科、皮膚科などがある総合病院。がん検診、人間ドック等も対応。)
周辺環境:牧野記念病院(内科、外科、整形外科、脳神経外科、泌尿器科、皮膚科などがある総合病院。がん検診、人間ドック等も対応。)
周辺環境:クリエイトS・D 緑東本郷店(営業時間は9時~21時。医薬品、生活用品の他に冷凍食品、肉や野菜、酒たばこも取扱う。商品の配達可能。)
周辺環境:クリエイトS・D 緑東本郷店(営業時間は9時~21時。医薬品、生活用品の他に冷凍食品、肉や野菜、酒たばこも取扱う。商品の配達可能。)
周辺環境:ららぽーと横浜(イトーヨーカドー、ハンズ、TOHOシネマズ、ノジマなど約270店が入った大型ショッピングモールです。)
周辺環境:ららぽーと横浜(イトーヨーカドー、ハンズ、TOHOシネマズ、ノジマなど約270店が入った大型ショッピングモールです。)
周辺環境:ガスト鴨居店(お子様連れでも安心して食べに行けるファミリーレストラン。ドリンクバーあり。猫ロボットが料理を運びます。)
周辺環境:ガスト鴨居店(お子様連れでも安心して食べに行けるファミリーレストラン。ドリンクバーあり。猫ロボットが料理を運びます。)

この物件のココがオススメ!

鴨居駅から徒歩7分 パントリー付キッチン キッチン近くにランドリー室 備付けカウンター有 廊下収納

こだわりポイント

  • 省エネに配慮された建物
  • 食器洗い洗浄乾燥機
  • 浴室換気乾燥暖房機
  • 急行電車でスピード通勤
  • 駅まで平坦ラクラク通勤
  • リビングイン階段
  • LDKは2階に
  • LDK18帖以上
  • 対面キッチン
  • 浴室1坪以上
  • パントリー
  • 小学校10分以内
  • スーパー10分以内
  • コンビニ10分以内
  • 総合病院10分以内
  • 小児科医院10分以内
  • 保育園10分以内
  • 幼稚園10分以内
  • 公園10分以内
  • 都市ガス
  • フラット35利用可
  • 屋根付きカースペース
  • 5棟以上の分譲地
  • 道路広々(5m以上)
  • 道路と段差無し
  • 3階建て以上建築可能地域

お気軽にどうぞ!

資料請求 現地見学 電話でお問い合わせ
0120-046-690

地図

申し訳ありません
こちらは会員限定機能です

会員登録で利用できる6つの便利機能

詳しく見る

お気軽にどうぞ!

資料請求 現地見学 電話でお問い合わせ
0120-046-690

頭金0万円・金利0.495%の場合

ボーナス時(年2回)お支払額

0

この物件の月々のお支払額

139,486

年収に対する返済比率

56

  • ※会員登録し、詳細情報を記入されますと、全ての物件で自動的に金額が表示され、大変便利です。
  • ※まだ会員登録をされていない方は、下記チェック欄をご記入ください。
  • ※上記計算は物件価格4,980万円+諸経費 8%込みの金額による結果となります。
  • ※返済金額はあくまでも目安です。

お客様の条件からシミュレーションするには?

会員登録
マイページから登録

金利

直接入力する

ボーナス払い(年2回)

返済年数

頭金

直接入力する

 万円(半角数字)

年収

 万円(半角数字)

約450m

公園

周辺環境:鴨居町北公園(鴨居駅南口にあるキレイに整備された公園です。汽車の遊具が特徴的で小さなお子様に人気があります。)

公園

約450m

約400m

スーパー

周辺環境:イオンフードスタイル鴨居店(食料品、日用品など生活用品が取り揃う大型スーパー。建物内に衣料品店、100円ショップもあり便利です。)

スーパー

約400m

約350m

コンビニ

周辺環境:ローソン鴨居駅東店(スイーツが人気のコンビニ。店内厨房で炊いたご飯や出来立て揚げ物を提供するまちかど厨房取扱店です。)

コンビニ

約350m

約550m

幼稚園・保育園

周辺環境:鴨居保育園(異年齢児との交流保育や行事などを通してのびのびと成長する保育園。鶴見川まで散歩に行き、四季を感じる。)

幼稚園・保育園

約550m

約650m

小学校

周辺環境:鴨居小学校(設立は明治7年の歴史ある学校。各学年2~3クラス。教育目標は「かもいのなかま一人じゃないよ」です。)

小学校

約650m

約600m

病院

周辺環境:牧野記念病院(内科、外科、整形外科、脳神経外科、泌尿器科、皮膚科などがある総合病院。がん検診、人間ドック等も対応。)

病院

約600m

約500m

ドラッグストア

周辺環境:クリエイトS・D 緑東本郷店(営業時間は9時~21時。医薬品、生活用品の他に冷凍食品、肉や野菜、酒たばこも取扱う。商品の配達可能。)

ドラッグストア

約500m

約1,400m

ショッピングセンター

周辺環境:ららぽーと横浜(イトーヨーカドー、ハンズ、TOHOシネマズ、ノジマなど約270店が入った大型ショッピングモールです。)

ショッピングセンター

約1,400m

約300m

飲食店

周辺環境:ガスト鴨居店(お子様連れでも安心して食べに行けるファミリーレストラン。ドリンクバーあり。猫ロボットが料理を運びます。)

飲食店

約300m

価格 4,980万円
物件種別 新築一戸建て
間取り 3SLDK
所在地 横浜市緑区 鴨居2丁目
交通
  • 横浜線「鴨居」駅 徒歩 7 分
  • ブルーライン「岸根公園」駅 バス停「林光寺前」まで 徒歩 2 分 バス利用 26分
土地面積 55.40㎡
建物面積 109.96㎡
学区 鴨居小学校、東鴨居中学校
用途地域 第一種住居
建ぺい率 60%
容積率 200%
地目 宅地
駐車場 有り ビルトイン車庫
接道 東5.5m
権利 所有権
私道面積 有 260.92㎡ 1/10
セットバック 無し
建物構造 木造
建物階数 3階
築年月 2025年12月
入居日 即時
都市計画 市街化区域
取引態様 仲介
物件番号 P1136-3
設備 公営水道、公共下水、省エネルギー対策、ビルトインガレージ、駐車場1台、緑豊かな住宅地、平坦地、都市近郊、地盤調査済、市街地が近い、整備された歩道、スーパーが近い(10分以内)、駅まで平坦、2沿線以上利用可、総合病院徒歩10分以内、小学校徒歩10分以内、保育施設・幼稚園5分以内、コンビニ5分以内、システムキッチン、食器洗い機付き、浄水器、パントリー(食器・食品の収納庫)、ユニットバス、追い焚き、浴室乾燥機、ウォシュレット、オートバス付き、トイレ2ヶ所、浴室1坪以上、浴室に窓、暖房便座、浴室暖房、バルコニー、南面バルコニー、3階建以上、LDK18畳以上、採光2面、全室南向き、全室2面採光、フローリング、リビング階段、スマートキー、クローゼット、収納、下駄箱、全居室収納、シャンプドレッサー付き、フラット35Sに対応、年度内入居可、モニタ付きインターフォン、カードキー、複層ガラス、火災警報器(報知機)、通風良好、陽当り良好、24時間換気システム、建物10年保証
建築確認番号 第2025SBC-確00469Y号
特記事項 建物面積にビルトイン車庫面積13.21平米含む 宅地造成工事規制区域:有/高度地区:有/準防火地域:有/日影制限:有/緑化地域 ゴミ置場持分7.15平米のうち1/10有 未利用地4.5平米のうち1/10有 間取りSは納戸。 /
備考 鴨居駅から徒歩7分 パントリー付キッチン キッチン近くにランドリー室 備付けカウンター有 廊下収納

お気軽にどうぞ!

資料請求 現地見学 電話でお問い合わせ
0120-046-690

このエリアでお探しの方へ

横浜市鶴見区北寺尾7丁目 新築一戸建 4680万円 1号棟

東急東横線「菊名」駅 徒歩 19 分

横浜線「菊名」駅 徒歩 19 分

横浜市鶴見区 北寺尾7丁目

4,680万円

3SLDK

川崎市宮前区野川本町1丁目 新築一戸建 4680万円 2号棟

田園都市線「梶が谷」駅 バス停「上野川」まで 徒歩 5 分 バス利用 14分

南武線「武蔵新城」駅 バス停「上野川」まで 徒歩 5 分 バス利用 17分

川崎市宮前区 野川本町1丁目

4,680万円

3LDK

値下げしました!建物完成しました!内覧会開催中!「瀬谷」駅利用 新築一戸建て(2) 全室2面採光

相模鉄道線「瀬谷」駅 徒歩 15 分

相模鉄道線「大和」駅 徒歩 23 分

横浜市瀬谷区 橋戸3丁目

4,680万円

3LDK

川崎市宮前区南野川2丁目 新築一戸建 4680万円 1号棟

田園都市線「鷺沼」駅 バス停「和田八幡宮下」まで 徒歩 1 分 バス利用 15分

グリーンライン「東山田」駅 徒歩 22 分

川崎市宮前区 南野川2丁目

4,680万円

4LDK

川崎市宮前区南野川2丁目 新築一戸建 4680万円 5号棟

田園都市線「鷺沼」駅 バス停「和田八幡宮下」まで 徒歩 1 分 バス利用 15分

グリーンライン「東山田」駅 徒歩 22 分

川崎市宮前区 南野川2丁目

4,680万円

4LDK

値下げしました!「片倉町」駅徒歩13分 新築一戸建て(3) 全8棟 閑静な住宅地

ブルーライン「片倉町」駅 徒歩 13 分

東海道本線「横浜」駅 バス停「峰沢団地前」まで 徒歩 5 分 バス利用 10分

横浜市神奈川区 片倉2丁目

4,680万円

3LDK

値下げしました!「舞岡」駅徒歩13分 新築一戸建て 角地

ブルーライン「舞岡」駅 徒歩 13 分

横須賀線「戸塚」駅 バス停「坂下口」まで 徒歩 1 分 バス利用 14分

横浜市戸塚区 南舞岡4丁目

4,680万円

4LDK

建物完成しました! 今週末内覧会開催中!「港南台」駅利用 新築一戸建て(8) 小屋裏収納付き

根岸線「港南台」駅 バス停「光明寺」まで 徒歩 8 分 バス利用 13分

東海道本線「大船」駅 バス停「光明寺」まで 徒歩 8 分 バス利用 21分

横浜市栄区 庄戸4丁目

4,680万円

4LDK

川崎市多摩区南生田5丁目 新築一戸建 4680万円 1号棟

小田急線「生田」駅 徒歩 23 分

南武線「登戸」駅 バス停「鷲ヶ峰営業所」まで 徒歩 6 分 バス利用 33分

川崎市多摩区 南生田5丁目

4,680万円

4LDK

川崎市多摩区南生田5丁目 新築一戸建 4680万円 3号棟

小田急線「生田」駅 徒歩 23 分

南武線「登戸」駅 バス停「鷲ヶ峰営業所」まで 徒歩 6 分 バス利用 33分

川崎市多摩区 南生田5丁目

4,680万円

4LDK

横浜市鶴見区東寺尾東台 新築一戸建 4680万円 A号棟

京浜急行本線「生麦」駅 徒歩 15 分

京浜急行本線「花月総持寺」駅 徒歩 17 分

横浜市鶴見区 東寺尾東台

4,680万円

2SLDK

建物完成しました! 今週末内覧会開催中!京急「弘明寺」駅利用 新築一戸建て(2) 閑静な住宅地

京浜急行本線「弘明寺」駅 バス停「別所小学校入口」まで 徒歩 2 分 バス利用 5分

東海道本線「戸塚」駅 バス停「こども医療センター」まで 徒歩 10 分 バス利用 23分

横浜市南区 別所6丁目

4,680万円

3SLDK

お気軽にどうぞ!

資料請求 現地見学 電話でお問い合わせ
0120-046-690
来店予約