1. トップページ
  2. 横浜市緑区中山6丁目 中古一戸建 4880万円

横浜市緑区中山6丁目 中古一戸建 4880万円

価格
4,880万円
物件種別
中古一戸建て
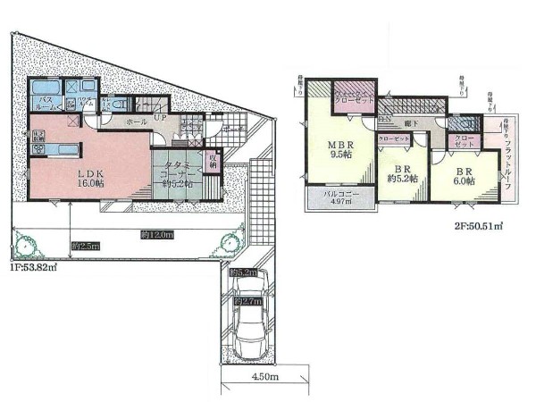
間取り
4LDK
所在地
横浜市緑区 中山6丁目
交通
  • 横浜線「中山」駅 徒歩 23 分
  • グリーンライン「中山」駅 バス停「中山中学校入口」まで 徒歩 7 分 バス利用 14分
土地面積
111.51㎡
建物面積
101.02㎡
  • 前回情報更新日 2026.01.15
  • 次回情報更新予定日 2026.01.29
資料請求 現地見学 電話でお問い合わせ
0120-046-690
間取り
間取り
区画図
区画図
周辺環境:中山駅(横浜線と地下鉄グリーンラインが通る駅。南口からズーラシア行きバスあり。商店街もあり買い物に便利です。)
周辺環境:中山駅(横浜線と地下鉄グリーンラインが通る駅。南口からズーラシア行きバスあり。商店街もあり買い物に便利です。)
周辺環境:四季の森公園(季節によってさまざまな野花が咲き誇る。ジャンボ滑り台や水遊び可能な池がお子様に人気の大規模公園です。)
周辺環境:四季の森公園(季節によってさまざまな野花が咲き誇る。ジャンボ滑り台や水遊び可能な池がお子様に人気の大規模公園です。)
周辺環境:横浜四季の森フォレオ(スーパー・ドラッグストア・ホームセンター・100円ショップ・飲食店等があり、便利な大型スーパーです。)
周辺環境:横浜四季の森フォレオ(スーパー・ドラッグストア・ホームセンター・100円ショップ・飲食店等があり、便利な大型スーパーです。)
周辺環境:ヤマダデンキテックランド上山店(家電製品、スマホをはじめ、ゲーム、おもちゃ等も取扱う家電量販店です。広い店内で買い物のしやすさも○)
周辺環境:ヤマダデンキテックランド上山店(家電製品、スマホをはじめ、ゲーム、おもちゃ等も取扱う家電量販店です。広い店内で買い物のしやすさも○)
周辺環境:中山幼稚園(各クラス10~15名の少人数制。制服がなく、遊びの中で育てる自由な幼稚園。デンマーク製の遊具を導入。)
周辺環境:中山幼稚園(各クラス10~15名の少人数制。制服がなく、遊びの中で育てる自由な幼稚園。デンマーク製の遊具を導入。)
周辺環境:上山小学校(教育目標は「ここに学び ここで遊ぶ ここがふるさと 上山の子」、住宅街の中にあるので通学も安心です。)
周辺環境:上山小学校(教育目標は「ここに学び ここで遊ぶ ここがふるさと 上山の子」、住宅街の中にあるので通学も安心です。)
周辺環境:中山中学校(各学年7~8クラスと生徒数の多い中学校。四季の森公園に隣接し、自然に囲まれた環境の中にあります。)
周辺環境:中山中学校(各学年7~8クラスと生徒数の多い中学校。四季の森公園に隣接し、自然に囲まれた環境の中にあります。)
周辺環境:森の子キッズクリニック(木で作られた愛い雰囲気の小児科。待合室には具合の悪いお子様が横になれるスペースも。ネット予約可能。)
周辺環境:森の子キッズクリニック(木で作られた愛い雰囲気の小児科。待合室には具合の悪いお子様が横になれるスペースも。ネット予約可能。)
周辺環境:上山町公園(公園奥は上山ふれあいの樹林に続いています。自然を感じることができ、お子様とのお散歩にも最適ですね。)
周辺環境:上山町公園(公園奥は上山ふれあいの樹林に続いています。自然を感じることができ、お子様とのお散歩にも最適ですね。)

この物件のココがオススメ!

2025年11月:内装一部リフォーム完了予定 幅6.6mの南道路に面し陽当り良好・開放感あり! 2018年11月築の4LDK カーポート付き 周辺は公園が点在する緑豊かな住環境

こだわりポイント

  • 運転ラクラク生活
  • LDKは1階に
  • 2階建て住宅限定
  • LDK15帖以上
  • 対面キッチン
  • 浴室1坪以上
  • 小学校10分以内
  • 大規模公園10分以内
  • 公園10分以内
  • 都市ガス
  • 道路広々(5m以上)
  • 日当たり良好
  • 南道路限定
  • 道路と段差無し
  • 低層住居専用地域

お気軽にどうぞ!

資料請求 現地見学 電話でお問い合わせ
0120-046-690

地図

申し訳ありません
こちらは会員限定機能です

会員登録で利用できる6つの便利機能

詳しく見る

お気軽にどうぞ!

資料請求 現地見学 電話でお問い合わせ
0120-046-690

頭金0万円・金利0.495%の場合

ボーナス時(年2回)お支払額

0

この物件の月々のお支払額

136,685

年収に対する返済比率

55

  • ※会員登録し、詳細情報を記入されますと、全ての物件で自動的に金額が表示され、大変便利です。
  • ※まだ会員登録をされていない方は、下記チェック欄をご記入ください。
  • ※上記計算は物件価格4,880万円+諸経費 8%込みの金額による結果となります。
  • ※返済金額はあくまでも目安です。

お客様の条件からシミュレーションするには?

会員登録
マイページから登録

金利

直接入力する

ボーナス払い(年2回)

返済年数

頭金

直接入力する

 万円(半角数字)

年収

 万円(半角数字)

約1,800m

周辺環境:中山駅(横浜線と地下鉄グリーンラインが通る駅。南口からズーラシア行きバスあり。商店街もあり買い物に便利です。)

約1,800m

約550m

公園

周辺環境:四季の森公園(季節によってさまざまな野花が咲き誇る。ジャンボ滑り台や水遊び可能な池がお子様に人気の大規模公園です。)

公園

約550m

約900m

スーパー

周辺環境:横浜四季の森フォレオ(スーパー・ドラッグストア・ホームセンター・100円ショップ・飲食店等があり、便利な大型スーパーです。)

スーパー

約900m

約1,200m

その他環境写真

周辺環境:ヤマダデンキテックランド上山店(家電製品、スマホをはじめ、ゲーム、おもちゃ等も取扱う家電量販店です。広い店内で買い物のしやすさも○)

その他環境写真

約1,200m

約1,100m

幼稚園・保育園

周辺環境:中山幼稚園(各クラス10~15名の少人数制。制服がなく、遊びの中で育てる自由な幼稚園。デンマーク製の遊具を導入。)

幼稚園・保育園

約1,100m

約550m

小学校

周辺環境:上山小学校(教育目標は「ここに学び ここで遊ぶ ここがふるさと 上山の子」、住宅街の中にあるので通学も安心です。)

小学校

約550m

約900m

中学校

周辺環境:中山中学校(各学年7~8クラスと生徒数の多い中学校。四季の森公園に隣接し、自然に囲まれた環境の中にあります。)

中学校

約900m

約1,000m

病院

周辺環境:森の子キッズクリニック(木で作られた愛い雰囲気の小児科。待合室には具合の悪いお子様が横になれるスペースも。ネット予約可能。)

病院

約1,000m

約500m

公園

周辺環境:上山町公園(公園奥は上山ふれあいの樹林に続いています。自然を感じることができ、お子様とのお散歩にも最適ですね。)

公園

約500m

価格 4,880万円
物件種別 中古一戸建て
間取り 4LDK
所在地 横浜市緑区 中山6丁目
交通
  • 横浜線「中山」駅 徒歩 23 分
  • グリーンライン「中山」駅 バス停「中山中学校入口」まで 徒歩 7 分 バス利用 14分
土地面積 111.51㎡
建物面積 101.02㎡
学区 上山小学校、中山中学校
用途地域 第一種低層住居専用
建ぺい率 50%
容積率 100%
地目 宅地
駐車場 有り カーポート
接道 南6.6m
権利 所有権
私道面積 無し
セットバック 無し
建物構造 木造
建物階数 2階
築年月 2018年11月
入居日 即時
都市計画 市街化区域
取引態様 仲介
物件番号 P1045
設備 公営水道、公共下水、スレート葺、駐車場1台、緑豊かな住宅地、閑静な住宅地、都市近郊、南側道路面す、前道6m以上、市街地が近い、周辺交通量少なめ、始発駅、2沿線以上利用可、小学校徒歩10分以内、公園5分以内、システムキッチン、ユニットバス、追い焚き、ウォシュレット、オートバス付き、トイレ2ヶ所、浴室1坪以上、浴室に窓、暖房便座、バルコニー、南面バルコニー、内装リフォーム、2階建、LDK15畳以上、全居室6畳以上、和室、照明器具付き、南面3室、南向き、全室2面採光、フローリング、クローゼット、収納、全居室収納、年内入居可、モニタ付きインターフォン、複層ガラス、火災警報器(報知機)、通風良好、陽当り良好、24時間換気システム
建築確認番号 -
特記事項 宅地造成工事規制区域:有/高度地区:有/準防火地域:有/日影制限:有/敷地面積最低限度:有/高さ限度:有/緑化地域。 /内装リフォーム…2025年11月(壁、ガス台・キッチン水栓交換、畳新調)
備考 2025年11月:内装一部リフォーム完了予定 幅6.6mの南道路に面し陽当り良好・開放感あり! 2018年11月築の4LDK カーポート付き 周辺は公園が点在する緑豊かな住環境

お気軽にどうぞ!

資料請求 現地見学 電話でお問い合わせ
0120-046-690

このエリアでお探しの方へ

今週末モデルハウス見学会開催中!「瀬谷」駅利用 新築一戸建て 閑静な住宅地

相模鉄道線「瀬谷」駅 バス停「八幡神社前」まで 徒歩 5 分 バス利用 8分

江ノ島線「鶴間」駅 バス停「八幡神社前」まで 徒歩 5 分 バス利用 8分

横浜市瀬谷区 上瀬谷町

4,580万円

4LDK

今週末モデルハウス見学会開催中!「北茅ヶ崎」駅利用 新築一戸建て (3)

相模線「北茅ヶ崎」駅 徒歩 18 分

東海道本線「茅ヶ崎」駅 徒歩 22 分

茅ヶ崎市 円蔵

4,580万円

3LDK

今週末モデルハウス見学会開催中!「六浦」駅徒歩10分 新築一戸建て ビルトイン車庫

逗子線「六浦」駅 徒歩 10 分

横須賀線「鎌倉」駅 バス停「大道小学校前」まで 徒歩 22 分 バス利用 29分

横浜市金沢区 六浦南5丁目

4,580万円

3LDK

今週末モデルハウス見学会開催中!「辻堂」駅利用 新築一戸建て(B)

東海道本線「辻堂」駅 徒歩 26 分

湘南新宿高「茅ヶ崎」駅 バス停「菱沼」まで 徒歩 13 分 バス利用 6分

茅ヶ崎市 菱沼1丁目

4,580万円

3LDK

今週末モデルハウス見学会開催中!「西谷」駅利用 新築一戸建て(1)パントリー・SIC完備

相模鉄道線「西谷」駅 徒歩 25 分

横浜線「鴨居」駅 バス停「新井町」まで 徒歩 3 分 バス利用 15分

横浜市保土ケ谷区 新井町

4,580万円

3LDK

値下げしました! 「大船」駅利用 新築一戸建て(A) 全7棟 ゆとりの4LDK

東海道本線「大船」駅 バス停「常勝寺」まで 徒歩 6 分 バス利用 7分

横須賀線「戸塚」駅 バス停「田谷」まで 徒歩 12 分 バス利用 17分

横浜市戸塚区 小雀町

4,580万円

4LDK

町田市本町田 新築一戸建 4580万円 3号棟

小田急線「玉川学園前」駅 徒歩 14 分

横浜線「町田」駅 徒歩 30 分

町田市 本町田

4,580万円

4LDK

川崎市宮前区南野川2丁目 新築一戸建 4580万円 2号棟

田園都市線「鷺沼」駅 バス停「和田八幡宮下」まで 徒歩 1 分 バス利用 15分

グリーンライン「東山田」駅 徒歩 22 分

川崎市宮前区 南野川2丁目

4,580万円

4LDK

今週末モデルハウス見学会開催中!「戸塚」駅利用 新築一戸建て(2) ルーフバルコニー

東海道本線「戸塚」駅 バス停「戸塚工業団地」まで 徒歩 1 分 バス利用 10分

ブルーライン「踊場」駅 バス停「領家中学校前」まで 徒歩 10 分 バス利用 2分

横浜市戸塚区 上矢部町

4,580万円

4LDK

横浜市鶴見区朝日町2丁目 新築一戸建 4580万円 2号棟

鶴見線「安善」駅 徒歩 9 分

京浜東北線「鶴見」駅 バス停「大東町」まで 徒歩 5 分 バス利用 15分

横浜市鶴見区 朝日町2丁目

4,580万円

2LDK+2S

今週末モデルハウス見学会開催中!「鶴ケ峰」駅利用 新築一戸建て(1) エコジョーズ

相模鉄道線「鶴ヶ峰」駅 徒歩 18 分

相鉄新横浜線「西谷」駅 バス停「金草沢」まで 徒歩 13 分 バス利用 7分

横浜市旭区 白根6丁目

4,580万円

3LDK

今週末モデルハウス見学会開催中!「鶴ケ峰」駅利用 新築一戸建て(2) エコジョーズ

相模鉄道線「鶴ヶ峰」駅 徒歩 18 分

相鉄新横浜線「西谷」駅 バス停「金草沢」まで 徒歩 13 分 バス利用 7分

横浜市旭区 白根6丁目

4,580万円

2LDK+2S

お気軽にどうぞ!

資料請求 現地見学 電話でお問い合わせ
0120-046-690