1. トップページ
  2. 横浜市神奈川区三ツ沢中町 5980万円 2号棟

横浜市神奈川区三ツ沢中町 5980万円 2号棟

価格
5,980万円
物件種別
新築一戸建て
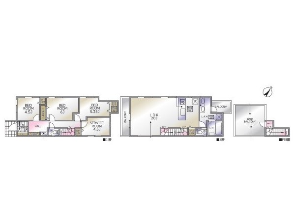
間取り
4LDK
所在地
横浜市神奈川区 三ツ沢中町
交通
  • ブルーライン「三ッ沢下町」駅 徒歩 11 分
  • ブルーライン「三ッ沢上町」駅 徒歩 12 分
土地面積
104.37㎡
建物面積
105.78㎡
  • 前回情報更新日 2025.11.28
  • 次回情報更新予定日 2025.12.12
資料請求 現地見学 電話でお問い合わせ
0120-046-690
外観:「三ツ沢下町」駅徒歩14分!便利な都市機能と子供の成長に無くてはならない自然が融合した価値ある住環境。
外観:「三ツ沢下町」駅徒歩14分!便利な都市機能と子供の成長に無くてはならない自然が融合した価値ある住環境。
間取り
間取り
オープンでのびやかな空間を生み出す、広がりとゆとり。家族と過ごす時間を大切にしたい方にぴったりです。
オープンでのびやかな空間を生み出す、広がりとゆとり。家族と過ごす時間を大切にしたい方にぴったりです。
吹き抜けが広がる1階ホールには、ベンチを設けたゆとりのある迎え空間。訪れる人をやさしく包み込みます。
吹き抜けが広がる1階ホールには、ベンチを設けたゆとりのある迎え空間。訪れる人をやさしく包み込みます。
リビング横にある寛ぎの和室。客間、お子様の遊び場、家事スペース等にと多目的にご利用いただけます。
リビング横にある寛ぎの和室。客間、お子様の遊び場、家事スペース等にと多目的にご利用いただけます。
外観:前面道路は道幹線道路から入った通りのため、交通量も少なく、静かです。お子様がいても安心の住環境です。
外観:前面道路は道幹線道路から入った通りのため、交通量も少なく、静かです。お子様がいても安心の住環境です。
リビングのお子様を見守りながらお料理が出来る対面式カウンターキッチン。ご家族との会話がはずみます。
リビングのお子様を見守りながらお料理が出来る対面式カウンターキッチン。ご家族との会話がはずみます。
2階リビングなので目線を気にせず昼夜窓を開放しても寛げる。リビング階段で家族のコミュニケーションも〇
2階リビングなので目線を気にせず昼夜窓を開放しても寛げる。リビング階段で家族のコミュニケーションも〇
明るく解放感のある玄関。大きな扉一枚サイズの鏡付で、お出かけ前の身だしなみチェックにも便利です。
明るく解放感のある玄関。大きな扉一枚サイズの鏡付で、お出かけ前の身だしなみチェックにも便利です。
18.3帖の広々LDK。導線もしっかりと取れているので、ソファーなどの家具もしっかりと配置できます。
18.3帖の広々LDK。導線もしっかりと取れているので、ソファーなどの家具もしっかりと配置できます。
スライド収納付きのシステムキッチン。パスタ鍋や圧力鍋、フライパンなども収納できて出し入れもスムーズ。
スライド収納付きのシステムキッチン。パスタ鍋や圧力鍋、フライパンなども収納できて出し入れもスムーズ。
あったらいいなの代表的な設備である食洗機。ビルトイン型なので、おさまりもよく、使い勝手も良好です
あったらいいなの代表的な設備である食洗機。ビルトイン型なので、おさまりもよく、使い勝手も良好です
スタイリッシュな、浄水器一体型水栓です。水栓にシャワーホースと浄水器を内蔵し、カルキ臭など軽減。
スタイリッシュな、浄水器一体型水栓です。水栓にシャワーホースと浄水器を内蔵し、カルキ臭など軽減。
大きな掃き出し窓に面した1階のお部屋。クローゼット完備なのでお部屋を有効に使うことができますね。
大きな掃き出し窓に面した1階のお部屋。クローゼット完備なのでお部屋を有効に使うことができますね。
全室にクローゼットを完備しています。収納スペースを上手に使ってすっきりと快適な生活を送れます。
全室にクローゼットを完備しています。収納スペースを上手に使ってすっきりと快適な生活を送れます。
収納力が豊富な大型クローゼット。普段着やスーツはもちろんのこと、コート類などもしっかり掛けられます
収納力が豊富な大型クローゼット。普段着やスーツはもちろんのこと、コート類などもしっかり掛けられます
ゆったり入れる1坪タイプの浴室。花粉が気になる季節や雨天時のお洗濯に便利な浴室換気乾燥暖房機付です。
ゆったり入れる1坪タイプの浴室。花粉が気になる季節や雨天時のお洗濯に便利な浴室換気乾燥暖房機付です。
鏡の裏に収納棚を確保した三面鏡を採用。化粧品や歯ブラシなどを機能的に収納し、朝の身支度も快適です。
鏡の裏に収納棚を確保した三面鏡を採用。化粧品や歯ブラシなどを機能的に収納し、朝の身支度も快適です。
周辺環境:ビッグ・エー横浜南神大寺団地店(横浜南神大寺団地の中にあるスーパーマーケット。24時間営業なので急な買い物にも対応でき便利です。)
周辺環境:ビッグ・エー横浜南神大寺団地店(横浜南神大寺団地の中にあるスーパーマーケット。24時間営業なので急な買い物にも対応でき便利です。)
周辺環境:ローソン横浜神大寺一丁目店(スイーツが人気のコンビニ。店内厨房で炊いたご飯や出来立て揚げ物を提供するまちかど厨房取扱店。)
周辺環境:ローソン横浜神大寺一丁目店(スイーツが人気のコンビニ。店内厨房で炊いたご飯や出来立て揚げ物を提供するまちかど厨房取扱店。)
周辺環境:ユーコープ片倉店(確かな品質を、お求めやすい価格で提供。建物内にドラッグストア、100円ショップなどがあり便利です。)
周辺環境:ユーコープ片倉店(確かな品質を、お求めやすい価格で提供。建物内にドラッグストア、100円ショップなどがあり便利です。)
周辺環境:横浜市立三ツ沢小学校(豊顕寺市民の森に繋がるせせらぎ緑道沿いにある小学校。校内にほたるドームがあり、愛育活動をしています。)
周辺環境:横浜市立三ツ沢小学校(豊顕寺市民の森に繋がるせせらぎ緑道沿いにある小学校。校内にほたるドームがあり、愛育活動をしています。)
周辺環境:神大寺幼稚園(園内には大きな畑・天然の筍収穫もできる竹林などがあり、たくさんの自然と触れ合ることができます。)
周辺環境:神大寺幼稚園(園内には大きな畑・天然の筍収穫もできる竹林などがあり、たくさんの自然と触れ合ることができます。)
周辺環境:神大寺保育園(食育の一環として、園内で作物の栽培・小動物の飼育等を行っている保育園。日常的に異年齢交流があります。)
周辺環境:神大寺保育園(食育の一環として、園内で作物の栽培・小動物の飼育等を行っている保育園。日常的に異年齢交流があります。)
周辺環境:神大寺中央公園(緑に囲まれた自然豊かな公園。園内には子ども向けのログハウスがあり、雨の日でも遊ぶことができます。)
周辺環境:神大寺中央公園(緑に囲まれた自然豊かな公園。園内には子ども向けのログハウスがあり、雨の日でも遊ぶことができます。)
周辺環境:松本中学校(丘の上にある自然豊かな中学校。フラワーアレンジメント部や演劇部、女子サッカー部など部活動が充実している。)
周辺環境:松本中学校(丘の上にある自然豊かな中学校。フラワーアレンジメント部や演劇部、女子サッカー部など部活動が充実している。)
周辺環境:まいばすけっと三ツ沢下町駅前店(さっと立ち寄れるコンビニサイズのスーパー。少量の野菜や肉なども揃い、買い忘れを調達したいときに便利。)
周辺環境:まいばすけっと三ツ沢下町駅前店(さっと立ち寄れるコンビニサイズのスーパー。少量の野菜や肉なども揃い、買い忘れを調達したいときに便利。)
トイレは1階と2階に2カ所あります。朝の忙しい時間も慌てることなく使用できるので助かりますね。
トイレは1階と2階に2カ所あります。朝の忙しい時間も慌てることなく使用できるので助かりますね。
大容量のウォークインクローゼット付きなので季節物のお洋服などもきちんと収納することができます。
大容量のウォークインクローゼット付きなので季節物のお洋服などもきちんと収納することができます。
子供部屋や寝室としてはもちろん、書斎や趣味部屋など多用途にお使いいただけます。
子供部屋や寝室としてはもちろん、書斎や趣味部屋など多用途にお使いいただけます。
リビングに繋がる開放的なバルコニー。明るい光と爽やかな風を室内にたくさん取り込むことが出来ますね。
リビングに繋がる開放的なバルコニー。明るい光と爽やかな風を室内にたくさん取り込むことが出来ますね。

この物件のココがオススメ!

「三ツ沢下町」駅 徒歩11分! 吹き抜けの開放感と豊かな陽光に包まれた住まい パントリー収納 WIC

こだわりポイント

  • お墓近接
  • 前面道路急坂
  • 断熱に配慮された建物
  • 省エネに配慮された建物
  • 食器洗い洗浄乾燥機
  • 浴室換気乾燥暖房機
  • 子供の多い街に住む
  • 2階建て住宅限定
  • ウォークインクローゼット
  • リビングイン階段
  • LDKは2階に
  • LDK18帖以上
  • 吹き抜け有り
  • 和室有り
  • 対面キッチン
  • 浴室1坪以上
  • パントリー
  • スーパー10分以内
  • コンビニ10分以内
  • 保育園10分以内
  • 公園10分以内
  • 都市ガス
  • 道路広々(5m以上)
  • 低層住居専用地域

お気軽にどうぞ!

資料請求 現地見学 電話でお問い合わせ
0120-046-690

地図

申し訳ありません
こちらは会員限定機能です

会員登録で利用できる6つの便利機能

詳しく見る

お気軽にどうぞ!

資料請求 現地見学 電話でお問い合わせ
0120-046-690

頭金0万円・金利0.495%の場合

ボーナス時(年2回)お支払額

0

この物件の月々のお支払額

167,497

年収に対する返済比率

67

  • ※会員登録し、詳細情報を記入されますと、全ての物件で自動的に金額が表示され、大変便利です。
  • ※まだ会員登録をされていない方は、下記チェック欄をご記入ください。
  • ※上記計算は物件価格5,980万円+諸経費 8%込みの金額による結果となります。
  • ※返済金額はあくまでも目安です。

お客様の条件からシミュレーションするには?

会員登録
マイページから登録

金利

直接入力する

ボーナス払い(年2回)

返済年数

頭金

直接入力する

 万円(半角数字)

年収

 万円(半角数字)

約450m

スーパー

周辺環境:ビッグ・エー横浜南神大寺団地店(横浜南神大寺団地の中にあるスーパーマーケット。24時間営業なので急な買い物にも対応でき便利です。)

スーパー

約450m

約240m

コンビニ

周辺環境:ローソン横浜神大寺一丁目店(スイーツが人気のコンビニ。店内厨房で炊いたご飯や出来立て揚げ物を提供するまちかど厨房取扱店。)

コンビニ

約240m

約1,000m

スーパー

周辺環境:ユーコープ片倉店(確かな品質を、お求めやすい価格で提供。建物内にドラッグストア、100円ショップなどがあり便利です。)

スーパー

約1,000m

約700m

小学校

周辺環境:横浜市立三ツ沢小学校(豊顕寺市民の森に繋がるせせらぎ緑道沿いにある小学校。校内にほたるドームがあり、愛育活動をしています。)

小学校

約700m

約1,000m

幼稚園・保育園

周辺環境:神大寺幼稚園(園内には大きな畑・天然の筍収穫もできる竹林などがあり、たくさんの自然と触れ合ることができます。)

幼稚園・保育園

約1,000m

約300m

幼稚園・保育園

周辺環境:神大寺保育園(食育の一環として、園内で作物の栽培・小動物の飼育等を行っている保育園。日常的に異年齢交流があります。)

幼稚園・保育園

約300m

約550m

公園

周辺環境:神大寺中央公園(緑に囲まれた自然豊かな公園。園内には子ども向けのログハウスがあり、雨の日でも遊ぶことができます。)

公園

約550m

約750m

中学校

周辺環境:松本中学校(丘の上にある自然豊かな中学校。フラワーアレンジメント部や演劇部、女子サッカー部など部活動が充実している。)

中学校

約750m

約750m

スーパー

周辺環境:まいばすけっと三ツ沢下町駅前店(さっと立ち寄れるコンビニサイズのスーパー。少量の野菜や肉なども揃い、買い忘れを調達したいときに便利。)

スーパー

約750m

価格 5,980万円
物件種別 新築一戸建て
間取り 4LDK
所在地 横浜市神奈川区 三ツ沢中町
交通
  • ブルーライン「三ッ沢下町」駅 徒歩 11 分
  • ブルーライン「三ッ沢上町」駅 徒歩 12 分
土地面積 104.37㎡
建物面積 105.78㎡
学区 三ッ沢小学校、松本中学校
用途地域 第一種低層住居専用
建ぺい率 50%
容積率 100%
地目 宅地
駐車場 有り カースペース
接道 北東7.5m
権利 所有権
私道面積 無し
セットバック 無し
建物構造 木造
建物階数 2階
築年月 2025年06月
入居日 即時
都市計画 市街化区域
取引態様 仲介
物件番号 P0912-2
設備 公営水道、公共下水、吹き抜け、省エネルギー対策、緑豊かな住宅地、閑静な住宅地、都市近郊、地盤調査済、前道6m以上、市街地が近い、隣家との間隔が大きい、周辺交通量少なめ、スーパーが近い(10分以内)、始発駅、2沿線以上利用可、保育施設・幼稚園5分以内、公園5分以内、コンビニ5分以内、システムキッチン、食器洗い機付き、浄水器、パントリー(食器・食品の収納庫)、ユニットバス、追い焚き、浴室乾燥機、ウォシュレット、オートバス付き、トイレ2ヶ所、浴室1坪以上、浴室に窓、暖房便座、浴室暖房、バルコニー、南面バルコニー、2階建、LDK18畳以上、和室、全室2面採光、東南向き、フローリング、天井高2.5m以上、リビング階段、クローゼット、収納、床下収納、下駄箱、全居室収納、洗面室収納、シャンプドレッサー付き、年内入居可、モニタ付きインターフォン、複層ガラス、火災警報器(報知機)、通風良好、陽当り良好、24時間換気システム、建物10年保証、勾配天井
建築確認番号 建01439
特記事項 不整形地:有/宅地造成工事規制区域:有/高度地区:有/準防火地域:有/日影制限:有/敷地面積最低限度:有/高さ限度:有/緑化地域、密集市街地における地震火災対策計画、建築物再生可能エネルギー利用促進区域。 /
備考 「三ツ沢下町」駅 徒歩11分! 吹き抜けの開放感と豊かな陽光に包まれた住まい パントリー収納 WIC

お気軽にどうぞ!

資料請求 現地見学 電話でお問い合わせ
0120-046-690

このエリアでお探しの方へ

川崎市麻生区虹ケ丘1丁目 新築一戸建 5680万円

田園都市線「あざみ野」駅 バス停「虹ケ丘小学校」まで 徒歩 5 分 バス利用 14分

小田急線「新百合ヶ丘」駅 バス停「虹ケ丘小学校」まで 徒歩 5 分 バス利用 22分

川崎市麻生区 虹ケ丘1丁目

5,680万円

4LDK

今週末モデルハウス見学会開催中!「辻堂」駅利用 新築一戸建て(1)

東海道本線「辻堂」駅 バス停「松林」まで 徒歩 1 分 バス利用 9分

相模線「茅ヶ崎」駅 バス停「松林」まで 徒歩 1 分 バス利用 17分

茅ヶ崎市 松林2丁目

5,680万円

4LDK

今週末モデルハウス見学会開催中!「辻堂」駅利用 新築一戸建て(10)

東海道本線「辻堂」駅 バス停「松林」まで 徒歩 1 分 バス利用 9分

相模線「茅ヶ崎」駅 バス停「松林」まで 徒歩 1 分 バス利用 17分

茅ヶ崎市 松林2丁目

5,680万円

4LDK

今週末モデルハウス見学会開催中!「六浦」駅徒歩11分 新築一戸建て カースペース2台

逗子線「六浦」駅 徒歩 11 分

京浜急行本線「追浜」駅 徒歩 20 分

横浜市金沢区 六浦東3丁目

5,680万円

4LDK

横浜市港北区新吉田東1丁目 新築一戸建 5680万円 2号棟

グリーンライン「高田」駅 徒歩 13 分

東急東横線「綱島」駅 徒歩 25 分

横浜市港北区 新吉田東1丁目

5,680万円

4LDK

今週末モデルハウス見学会開催中!「瀬谷」駅利用 新築一戸建て カースペース2台

相模鉄道線「瀬谷」駅 バス停「下瀬谷三」まで 徒歩 8 分 バス利用 8分

江ノ島線「桜ヶ丘」駅 徒歩 21 分

横浜市瀬谷区 下瀬谷3丁目

5,680万円

4LDK

建物完成しました!今週末内覧会開催中!「辻堂」駅利用 新築一戸建て(A)

東海道本線「辻堂」駅 バス停「舟地蔵」まで 徒歩 2 分 バス利用 7分

江ノ島線「善行」駅 バス停「舟地蔵」まで 徒歩 2 分 バス利用 8分

藤沢市 大庭

5,680万円

3LDK

値下げしました!建物完成しました!内覧会開催中!「瀬谷」駅徒歩5分 新築一戸建て(1) LDK23帖

相模鉄道線「瀬谷」駅 徒歩 5 分

ブルーライン「立場」駅 バス停「瀬谷駅南口」まで 徒歩 3 分 バス利用 35分

横浜市瀬谷区 瀬谷5丁目

5,680万円

2LDK+2S

建物完成しました! 今週末内覧会開催中!「中田」駅徒歩9分 新築一戸建て(1)カースペース2台

ブルーライン「中田」駅 徒歩 9 分

ブルーライン「踊場」駅 徒歩 19 分

横浜市泉区 中田東4丁目

5,680万円

4LDK

稲城市若葉台1丁目 新築一戸建 5680万円 9号棟

京王相模原線「若葉台」駅 徒歩 19 分

小田急多摩線「はるひ野」駅 バス停「上谷戸体験学習館」まで 徒歩 4 分 バス利用 21分

稲城市 若葉台1丁目

5,680万円

4LDK

建物完成しました!今週末内覧会開催中!「湘南深沢」駅利用 新築一戸建て(2)

湘南モノレール「湘南深沢」駅 徒歩 20 分

江ノ島線「藤沢」駅 バス停「八反目」まで 徒歩 5 分 バス利用 6分

鎌倉市 手広4丁目

5,680万円

2LDK+2S

建物完成しました! 今週末内覧会開催中!「東白楽」駅徒歩7分 新築一戸建て エコジョーズ

東急東横線「東白楽」駅 徒歩 7 分

京浜東北線「東神奈川」駅 徒歩 16 分

横浜市神奈川区 白幡西町

5,680万円

4LDK

お気軽にどうぞ!

資料請求 現地見学 電話でお問い合わせ
0120-046-690