1. トップページ
  2. 横浜市青葉区美しが丘西2丁目 新築一戸建 6480万円 2号棟

横浜市青葉区美しが丘西2丁目 新築一戸建 6480万円 2号棟

価格
6,480万円
物件種別
新築一戸建て
間取り
3LDK
所在地
横浜市青葉区 美しが丘西2丁目
交通
  • 田園都市線「たまプラーザ」駅 バス停「保木薬師前」まで 徒歩 2 分 バス利用 8分
  • ブルーライン「あざみ野」駅 バス停「桜アベニュー」まで 徒歩 4 分 バス利用 17分
土地面積
127.17㎡
建物面積
93.54㎡
  • 前回情報更新日 2026.04.30
  • 次回情報更新予定日 2026.05.14
資料請求 現地見学 電話でお問い合わせ
0120-046-690
外観:閑静な住宅地で子育て家族にピッタリ。毎日のお散歩も快適な緑に恵まれたエリアで、自然に包まれた穏やかな暮らしを実現するための、ゆとりある住環境が整っています。
外観:閑静な住宅地で子育て家族にピッタリ。毎日のお散歩も快適な緑に恵まれたエリアで、自然に包まれた穏やかな暮らしを実現するための、ゆとりある住環境が整っています。
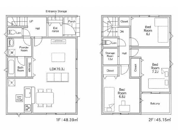
間取り
間取り
浴室暖房乾燥機 お風呂場そのものを乾燥機にしてしまう便利な機能。梅雨時期や花粉の時期に助かる。冬の時期には暖房機能がヒートショックを防ぐ。
浴室暖房乾燥機 お風呂場そのものを乾燥機にしてしまう便利な機能。梅雨時期や花粉の時期に助かる。冬の時期には暖房機能がヒートショックを防ぐ。
TVモニター付インターホン モニター付インターホンが標準仕様です。不安になりがちな防犯面。目で確認できるからあんしんです。
TVモニター付インターホン モニター付インターホンが標準仕様です。不安になりがちな防犯面。目で確認できるからあんしんです。
24時間換気システム シックハウス防止を主な目的に全ての住宅に義務化された。1時間に換気回数0.5回以上の機械換気を行う。
24時間換気システム シックハウス防止を主な目的に全ての住宅に義務化された。1時間に換気回数0.5回以上の機械換気を行う。
外観:四季を通じて自然と触れ合えるスポットが周辺には盛りだくさん!お散歩やジョギング、週末のご家族での遊びに最適です。暮らしの夢を育む理想の住まいがここにはあります。
外観:四季を通じて自然と触れ合えるスポットが周辺には盛りだくさん!お散歩やジョギング、週末のご家族での遊びに最適です。暮らしの夢を育む理想の住まいがここにはあります。
ビルトイン浄水器 キッチンには浄水器を標準装備。最近は水を飲むという場面以外にも料理で使用したり、野菜を洗う場合もキレイな水で洗いたいという人が増えてきています。
ビルトイン浄水器 キッチンには浄水器を標準装備。最近は水を飲むという場面以外にも料理で使用したり、野菜を洗う場合もキレイな水で洗いたいという人が増えてきています。
3口ガスコンロ 慣れている方も多く、火力が目に見えるため、使いやすいという方も多い、3口のガスコンロ仕様です。
3口ガスコンロ 慣れている方も多く、火力が目に見えるため、使いやすいという方も多い、3口のガスコンロ仕様です。
周辺環境:たまプラーザテラス(東急田園都市線たまプラーザ駅直結のショッピングエリア。ファッション、グルメが楽しめる複合商業施設です。)
周辺環境:たまプラーザテラス(東急田園都市線たまプラーザ駅直結のショッピングエリア。ファッション、グルメが楽しめる複合商業施設です。)
周辺環境:たまプラーザ駅(洗練された田園都市線のイメージそのままの、急行停車駅です。羽田空港、成田空港などへのバスも発着し便利です。)
周辺環境:たまプラーザ駅(洗練された田園都市線のイメージそのままの、急行停車駅です。羽田空港、成田空港などへのバスも発着し便利です。)
周辺環境:あざみ野駅(横浜市営地下鉄の始発駅。横浜市内で上位を争う人気の駅。)
周辺環境:あざみ野駅(横浜市営地下鉄の始発駅。横浜市内で上位を争う人気の駅。)
周辺環境:成城石井美しが丘店(こだわりの食材や調味料、お惣菜などを取り扱っており、お料理の幅が広がりそうです。)
周辺環境:成城石井美しが丘店(こだわりの食材や調味料、お惣菜などを取り扱っており、お料理の幅が広がりそうです。)
周辺環境:東急ストアたまプラーザテラス店(営業時間は8時~24時 「たまプラーザ」駅直結のスーパーですが、1646台分(たまプラーザテラス共用)の駐車場もあります。)
周辺環境:東急ストアたまプラーザテラス店(営業時間は8時~24時 「たまプラーザ」駅直結のスーパーですが、1646台分(たまプラーザテラス共用)の駐車場もあります。)
周辺環境:セブンイレブン美しが丘西3丁目店(セブンミール、お弁当に定評のあるセブンイレブン、コンビニエンスの最大手ですね。)
周辺環境:セブンイレブン美しが丘西3丁目店(セブンミール、お弁当に定評のあるセブンイレブン、コンビニエンスの最大手ですね。)
周辺環境:横浜総合病院(病院理念は、「心技一如」。親切なもてなしがきちんとできるような病院を作りがけています。)
周辺環境:横浜総合病院(病院理念は、「心技一如」。親切なもてなしがきちんとできるような病院を作りがけています。)
周辺環境:保木公園(公園の季節の移ろいを感じられる立地。休日は四季を感じながら、ジョギングをしたり、お子様と一緒に遊べる公園です。)
周辺環境:保木公園(公園の季節の移ろいを感じられる立地。休日は四季を感じながら、ジョギングをしたり、お子様と一緒に遊べる公園です。)
周辺環境:美しが丘西小学校(お子様が長い時間を過ごす小学校。のびのびと過ごし、広い校庭で元気に駆け回ったり、どんどん成長していくお子様の姿が目に浮かびます。)
周辺環境:美しが丘西小学校(お子様が長い時間を過ごす小学校。のびのびと過ごし、広い校庭で元気に駆け回ったり、どんどん成長していくお子様の姿が目に浮かびます。)

この物件のココがオススメ!

「たまプラーザ」駅 駅周辺や商業施設を中心に、都心への好アクセスと自然環境が調和した美しい街並み。

こだわりポイント

  • 耐震に配慮された建物
  • 浴室換気乾燥暖房機
  • 運転ラクラク生活
  • 外食を楽しめる生活
  • 急行電車でスピード通勤
  • 自然を感じる暮らし
  • LDKは1階に
  • 2階建て住宅限定
  • スカイバルコニー
  • ウォークインクローゼット
  • LDK18帖以上
  • 広々バルコニー
  • 対面キッチン
  • 浴室1坪以上
  • 小学校10分以内
  • 大規模公園10分以内
  • スーパー10分以内
  • コンビニ10分以内
  • 小児科医院10分以内
  • 公園10分以内
  • 都市ガス
  • フラット35利用可
  • 10棟以上の分譲地
  • 道路広々(5m以上)
  • 整形地
  • 道路と段差無し
  • 低層住居専用地域

お気軽にどうぞ!

資料請求 現地見学 電話でお問い合わせ
0120-046-690

地図

申し訳ありません
こちらは会員限定機能です

会員登録で利用できる6つの便利機能

詳しく見る

お気軽にどうぞ!

資料請求 現地見学 電話でお問い合わせ
0120-046-690

頭金0万円・金利0.495%の場合

ボーナス時(年2回)お支払額

0

この物件の月々のお支払額

181,503

年収に対する返済比率

73

  • ※会員登録し、詳細情報を記入されますと、全ての物件で自動的に金額が表示され、大変便利です。
  • ※まだ会員登録をされていない方は、下記チェック欄をご記入ください。
  • ※上記計算は物件価格6,480万円+諸経費 8%込みの金額による結果となります。
  • ※返済金額はあくまでも目安です。

お客様の条件からシミュレーションするには?

会員登録
マイページから登録

金利

直接入力する

ボーナス払い(年2回)

返済年数

頭金

直接入力する

 万円(半角数字)

年収

 万円(半角数字)

約3,000m

ショッピングセンター

周辺環境:たまプラーザテラス(東急田園都市線たまプラーザ駅直結のショッピングエリア。ファッション、グルメが楽しめる複合商業施設です。)

ショッピングセンター

約3,000m

約2,900m

周辺環境:たまプラーザ駅(洗練された田園都市線のイメージそのままの、急行停車駅です。羽田空港、成田空港などへのバスも発着し便利です。)

約2,900m

約3,300m

周辺環境:あざみ野駅(横浜市営地下鉄の始発駅。横浜市内で上位を争う人気の駅。)

約3,300m

約500m

スーパー

周辺環境:成城石井美しが丘店(こだわりの食材や調味料、お惣菜などを取り扱っており、お料理の幅が広がりそうです。)

スーパー

約500m

約3,100m

スーパー

周辺環境:東急ストアたまプラーザテラス店(営業時間は8時~24時 「たまプラーザ」駅直結のスーパーですが、1646台分(たまプラーザテラス共用)の駐車場もあります。)

スーパー

約3,100m

約500m

コンビニ

周辺環境:セブンイレブン美しが丘西3丁目店(セブンミール、お弁当に定評のあるセブンイレブン、コンビニエンスの最大手ですね。)

コンビニ

約500m

約2,800m

病院

周辺環境:横浜総合病院(病院理念は、「心技一如」。親切なもてなしがきちんとできるような病院を作りがけています。)

病院

約2,800m

約160m

公園

周辺環境:保木公園(公園の季節の移ろいを感じられる立地。休日は四季を感じながら、ジョギングをしたり、お子様と一緒に遊べる公園です。)

公園

約160m

約350m

小学校

周辺環境:美しが丘西小学校(お子様が長い時間を過ごす小学校。のびのびと過ごし、広い校庭で元気に駆け回ったり、どんどん成長していくお子様の姿が目に浮かびます。)

小学校

約350m

価格 6,480万円
物件種別 新築一戸建て
間取り 3LDK
所在地 横浜市青葉区 美しが丘西2丁目
交通
  • 田園都市線「たまプラーザ」駅 バス停「保木薬師前」まで 徒歩 2 分 バス利用 8分
  • ブルーライン「あざみ野」駅 バス停「桜アベニュー」まで 徒歩 4 分 バス利用 17分
土地面積 127.17㎡
建物面積 93.54㎡
学区 美しが丘西小学校、美しが丘中学校
用途地域 第一種低層住居専用
建ぺい率 40%
容積率 80%
地目 宅地
駐車場 有り カースペース
接道 南西6.5m
権利 所有権
私道面積 無し
セットバック 無し
建物構造 木造
建物階数 2階
築年月 2026年06月
入居日 2026年06月
都市計画 市街化区域
取引態様 仲介
物件番号 A2444-2
設備 公営水道、公共下水、防犯カメラ、設計住宅性能評価付、省エネルギー対策、外壁サイディング、スレート葺、建設住宅性能評価書(新築時)、駐車場1台、緑豊かな住宅地、閑静な住宅地、平坦地、都市近郊、地盤調査済、前道6m以上、市街地が近い、周辺交通量少なめ、スーパーが近い(10分以内)、2沿線以上利用可、小学校徒歩10分以内、公園5分以内、コンビニ5分以内、システムキッチン、ガスコンロ、ガス3口、カウンタキッチン、浄水器、ユニットバス、追い焚き、浴室乾燥機、ウォシュレット、オートバス付き、トイレ2ヶ所、浴室に窓、高機能トイレ、暖房便座、浴室暖房、バルコニー、ルーフバルコニー、南面バルコニー、2階建、LDK18畳以上、省エネ給湯器、人感照明センサー、採光3面、南向き、全室2面採光、フローリング、全室フローリング、スマートキー、クローゼット、収納、床下収納、下駄箱、全居室収納、シャンプドレッサー付き、フラット35Sに対応、年内入居可、モニタ付きインターフォン、複層ガラス、火災警報器(報知機)、全居室複層ガラスか複層サッシ、セキュリティ充実、通風良好、陽当り良好、24時間換気システム、建物10年保証
建築確認番号 R08SHC103702
特記事項 壁面後退:有/景観法:有/宅地造成工事規制区域:有/高度地区:有/日影制限:有/敷地面積最低限度:有/高さ限度:有/緑化地域、建築基準法22条区域、ルーフバルコニー4.86平米。 /
備考 「たまプラーザ」駅 駅周辺や商業施設を中心に、都心への好アクセスと自然環境が調和した美しい街並み。

お気軽にどうぞ!

資料請求 現地見学 電話でお問い合わせ
0120-046-690

このエリアでお探しの方へ

横浜市青葉区美しが丘西2丁目 中古一戸建 6199万円

田園都市線「たまプラーザ」駅 バス停「美しが丘西」まで 徒歩 4 分 バス利用 14分

小田急線「新百合ヶ丘」駅 バス停「潮見台」まで 徒歩 6 分 バス利用 20分

横浜市青葉区 美しが丘西2丁目

6,199万円

4LDK

横浜市青葉区もみの木台 新築一戸建 6380万円

ブルーライン「あざみ野」駅 バス停「前田公園」まで 徒歩 5 分 バス利用 13分

田園都市線「あざみ野」駅 バス停「前田公園」まで 徒歩 5 分 バス利用 13分

横浜市青葉区 もみの木台

6,380万円

4LDK

横浜市青葉区美しが丘西2丁目 新築一戸建 6480万円 1号棟

田園都市線「たまプラーザ」駅 バス停「保木薬師前」まで 徒歩 2 分 バス利用 8分

ブルーライン「あざみ野」駅 バス停「桜アベニュー」まで 徒歩 4 分 バス利用 17分

横浜市青葉区 美しが丘西2丁目

6,480万円

3LDK

横浜市青葉区荏田西5丁目 新築一戸建 6499万円 2号棟

田園都市線「市が尾」駅 徒歩 17 分

ブルーライン「センター南」駅 バス停「泉田向」まで 徒歩 3 分 バス利用 18分

横浜市青葉区 荏田西5丁目

6,499万円

3LDK

横浜市青葉区美しが丘西2丁目 新築一戸建 6580万円 9号棟

田園都市線「たまプラーザ」駅 バス停「保木薬師前」まで 徒歩 2 分 バス利用 8分

ブルーライン「あざみ野」駅 バス停「桜アベニュー」まで 徒歩 4 分 バス利用 17分

横浜市青葉区 美しが丘西2丁目

6,580万円

4LDK

横浜市青葉区美しが丘西2丁目 新築一戸建 6580万円 6号棟

田園都市線「たまプラーザ」駅 バス停「保木薬師前」まで 徒歩 2 分 バス利用 8分

ブルーライン「あざみ野」駅 バス停「桜アベニュー」まで 徒歩 4 分 バス利用 17分

横浜市青葉区 美しが丘西2丁目

6,580万円

3LDK

横浜市青葉区千草台 新築一戸建 6690万円 C号棟

田園都市線「藤が丘」駅 徒歩 14 分

田園都市線「青葉台」駅 徒歩 22 分

横浜市青葉区 千草台

6,690万円

4LDK

横浜市青葉区新石川1丁目 新築一戸建 6780万円 4号棟

ブルーライン「あざみ野」駅 徒歩 9 分

田園都市線「たまプラーザ」駅 徒歩 16 分

横浜市青葉区 新石川1丁目

6,780万円

2LDK+2S

横浜市青葉区市ケ尾町 新築一戸建 6780万円

田園都市線「市が尾」駅 徒歩 24 分

グリーンライン「川和町」駅 徒歩 24 分

横浜市青葉区 市ケ尾町

6,780万円

4LDK

横浜市青葉区すみよし台 中古一戸建 4099万円

こどもの国線「こどもの国」駅 徒歩 13 分

田園都市線「青葉台」駅 バス停「下奈良」まで 徒歩 4 分 バス利用 10分

横浜市青葉区 すみよし台

4,099万円

3LDK

横浜市青葉区奈良町 新築一戸建 4199万円 2号棟

こどもの国線「こどもの国」駅 徒歩 19 分

小田急線「玉川学園前」駅 徒歩 22 分

横浜市青葉区 奈良町

4,199万円

4LDK

横浜市青葉区奈良町 新築一戸建 4599万円 1号棟

こどもの国線「こどもの国」駅 徒歩 19 分

小田急線「玉川学園前」駅 徒歩 22 分

横浜市青葉区 奈良町

4,599万円

4LDK

お気軽にどうぞ!

資料請求 現地見学 電話でお問い合わせ
0120-046-690
来店予約