1. トップページ
  2. 稲城市平尾4丁目 新築一戸建 6199万円 1号棟

稲城市平尾4丁目 新築一戸建 6199万円 1号棟

価格
6,199万円
物件種別
新築一戸建て
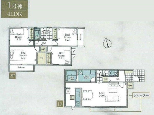
間取り
4LDK
所在地
稲城市 平尾4丁目
交通
  • 小田急多摩線「栗平」駅 徒歩 21 分
  • 京王相模原線「稲城」駅 バス停「平尾浄水場」まで 徒歩 4 分 バス利用 18分
土地面積
136.89㎡
建物面積
104.34㎡
  • 前回情報更新日 2026.04.23
  • 次回情報更新予定日 2026.05.07
資料請求 現地見学 電話でお問い合わせ
0120-046-690
間取り
間取り
区画図
区画図
周辺環境:セイムス稲城上平尾店 (いまや生活に欠かせないという方も多いドラッグストアは、近所にあると頼もしい限り。駐車場も広く、立ち寄りやすく便利です。)
周辺環境:セイムス稲城上平尾店 (いまや生活に欠かせないという方も多いドラッグストアは、近所にあると頼もしい限り。駐車場も広く、立ち寄りやすく便利です。)
周辺環境:ジョイフル東京稲城店 (24時間営業のファミリーレストランです。全国のまちで「おいしい」を創造します。)
周辺環境:ジョイフル東京稲城店 (24時間営業のファミリーレストランです。全国のまちで「おいしい」を創造します。)
周辺環境:ひらお保育園(稲城市の認可保育園。1971年創立。各年齢約30名、合計約160名の定員。午前6時から午後7時まで預かってくれる。)
周辺環境:ひらお保育園(稲城市の認可保育園。1971年創立。各年齢約30名、合計約160名の定員。午前6時から午後7時まで預かってくれる。)
周辺環境:稲城市立平尾小学校 (教育目標 「人にやさしさ 自分につよさ めあてをもって取り組む子」)
周辺環境:稲城市立平尾小学校 (教育目標 「人にやさしさ 自分につよさ めあてをもって取り組む子」)
周辺環境:稲城市立稲城第二中学校 (緑豊かな環境で、豊かな未来を育む。本校の教育目標は、「進んで学ぶ人、心の豊かな人、たくましく生きる人、助け合って働く人」。)
周辺環境:稲城市立稲城第二中学校 (緑豊かな環境で、豊かな未来を育む。本校の教育目標は、「進んで学ぶ人、心の豊かな人、たくましく生きる人、助け合って働く人」。)
周辺環境:小田急多摩線栗平駅 (小田急線急行・快速急行停車駅。北口周辺は、小田急マルシェや、Odakyu OX、コンビニ、飲食店、個人医院、ドラッグストアなどの商業施設が多くある。)
周辺環境:小田急多摩線栗平駅 (小田急線急行・快速急行停車駅。北口周辺は、小田急マルシェや、Odakyu OX、コンビニ、飲食店、個人医院、ドラッグストアなどの商業施設が多くある。)

この物件のココがオススメ!

カースペース2台 ZEH水準に適合した高断熱・省エネ住宅 大きな公園も近く、ファミリー層に嬉しい住環境

こだわりポイント

  • 省エネに配慮された建物
  • 食器洗い洗浄乾燥機
  • 浴室換気乾燥暖房機
  • 運転ラクラク生活
  • 自然を感じる暮らし
  • 広い庭のある暮らし
  • LDKは1階に
  • 2階建て住宅限定
  • ウォークインクローゼット
  • リビングイン階段
  • LDK20帖以上
  • 対面キッチン
  • 浴室1坪以上
  • 小学校10分以内
  • スーパー10分以内
  • 保育園10分以内
  • 公園10分以内
  • 都市ガス
  • フラット35利用可
  • カースペース2台
  • 隣家との間隔たっぷり
  • 道路広々(5m以上)
  • 日当たり良好
  • 低層住居専用地域

お気軽にどうぞ!

資料請求 現地見学 電話でお問い合わせ
0120-046-690

地図

申し訳ありません
こちらは会員限定機能です

会員登録で利用できる6つの便利機能

詳しく見る

お気軽にどうぞ!

資料請求 現地見学 電話でお問い合わせ
0120-046-690

頭金0万円・金利0.495%の場合

ボーナス時(年2回)お支払額

0

この物件の月々のお支払額

173,618

年収に対する返済比率

69

  • ※会員登録し、詳細情報を記入されますと、全ての物件で自動的に金額が表示され、大変便利です。
  • ※まだ会員登録をされていない方は、下記チェック欄をご記入ください。
  • ※上記計算は物件価格6,199万円+諸経費 8%込みの金額による結果となります。
  • ※返済金額はあくまでも目安です。

お客様の条件からシミュレーションするには?

会員登録
マイページから登録

金利

直接入力する

ボーナス払い(年2回)

返済年数

頭金

直接入力する

 万円(半角数字)

年収

 万円(半角数字)

約450m

ドラッグストア

周辺環境:セイムス稲城上平尾店 (いまや生活に欠かせないという方も多いドラッグストアは、近所にあると頼もしい限り。駐車場も広く、立ち寄りやすく便利です。)

ドラッグストア

約450m

約550m

飲食店

周辺環境:ジョイフル東京稲城店 (24時間営業のファミリーレストランです。全国のまちで「おいしい」を創造します。)

飲食店

約550m

約750m

幼稚園・保育園

周辺環境:ひらお保育園(稲城市の認可保育園。1971年創立。各年齢約30名、合計約160名の定員。午前6時から午後7時まで預かってくれる。)

幼稚園・保育園

約750m

約750m

幼稚園・保育園

周辺環境:稲城市立平尾小学校 (教育目標 「人にやさしさ 自分につよさ めあてをもって取り組む子」)

幼稚園・保育園

約750m

約800m

中学校

周辺環境:稲城市立稲城第二中学校 (緑豊かな環境で、豊かな未来を育む。本校の教育目標は、「進んで学ぶ人、心の豊かな人、たくましく生きる人、助け合って働く人」。)

中学校

約800m

約1,400m

周辺環境:小田急多摩線栗平駅 (小田急線急行・快速急行停車駅。北口周辺は、小田急マルシェや、Odakyu OX、コンビニ、飲食店、個人医院、ドラッグストアなどの商業施設が多くある。)

約1,400m

価格 6,199万円
物件種別 新築一戸建て
間取り 4LDK
所在地 稲城市 平尾4丁目
交通
  • 小田急多摩線「栗平」駅 徒歩 21 分
  • 京王相模原線「稲城」駅 バス停「平尾浄水場」まで 徒歩 4 分 バス利用 18分
土地面積 136.89㎡
建物面積 104.34㎡
学区 稲城市立平尾小学校、稲城市立稲城第二中学校
用途地域 第一種低層住居専用
建ぺい率 40%
容積率 80%
地目 宅地
駐車場 有り カースペース
接道 南東9.3m
権利 所有権
私道面積 無し
セットバック 無し
建物構造 木造
建物階数 2階
築年月 2026年03月
入居日 2026年04月
都市計画 市街化区域
取引態様 仲介
物件番号 A2379-1
設備 公営水道、公共下水、防犯シャッター、省エネルギー対策、駐車場2台以上、緑豊かな住宅地、都市近郊、地盤調査済、前道6m以上、市街地が近い、隣家との間隔が大きい、整備された歩道、ゴルフ場が近い、スーパーが近い(10分以内)、2沿線以上利用可、小学校徒歩10分以内、中学校徒歩10分以内、公園5分以内、システムキッチン、ガス3口、食器洗い機付き、浄水器、ユニットバス、追い焚き、浴室乾燥機、ウォシュレット、オートバス付き、トイレ2ヶ所、浴室1坪以上、浴室に窓、暖房便座、浴室暖房、バルコニー、バルコニー2面、南面バルコニー、2階建、LDK20畳以上、省エネ給湯器、採光2面、全室2面採光、フローリング、全室フローリング、リビング階段、クローゼット、収納、床下収納、下駄箱、全居室収納、シャンプドレッサー付き、フラット35Sに対応、年内入居可、モニタ付きインターフォン、複層ガラス、火災警報器(報知機)、通風良好、陽当り良好、24時間換気システム、建物10年保証
建築確認番号 第25UDI1W建07839号
特記事項 景観法:有/高度地区:有/日影制限:有/高さ限度:有/建築基準法22条による区域/上平尾地区地区計画/駐車は車種により2台可。 /
備考 カースペース2台 ZEH水準に適合した高断熱・省エネ住宅 大きな公園も近く、ファミリー層に嬉しい住環境

お気軽にどうぞ!

資料請求 現地見学 電話でお問い合わせ
0120-046-690

このエリアでお探しの方へ

今週末モデルハウス見学会開催中!「長後」駅徒歩12分 新築一戸建て(1)

江ノ島線「長後」駅 徒歩 12 分

ブルーライン「湘南台」駅 徒歩 22 分

藤沢市 高倉

5,899万円

4LDK

川崎市多摩区南生田6丁目 新築一戸建 5899万円

小田急線「生田」駅 徒歩 20 分

田園都市線「溝の口」駅 バス停「東長沢」まで 徒歩 5 分 バス利用 32分

川崎市多摩区 南生田6丁目

5,899万円

4LDK

今週末モデルハウス見学会開催中!「善行」駅徒歩11分 新築一戸建て

江ノ島線「善行」駅 徒歩 11 分

いずみ野線「湘南台」駅 バス停「亀井野団地入口」まで 徒歩 5 分 バス利用 12分

藤沢市 善行6丁目

5,899万円

4LDK

今週末モデルハウス見学会開催中!「北茅ヶ崎」駅徒歩13分 新築一戸建て(4)

相模線「北茅ヶ崎」駅 徒歩 13 分

東海道本線「茅ヶ崎」駅 バス停「ニュータウン入口」まで 徒歩 3 分 バス利用 6分

茅ヶ崎市 高田4丁目

5,899万円

4LDK

完成しました!今週末、建物見学会開催中!「鵠沼海岸」駅徒徒歩9分 新築一戸建て(2)

江ノ島線「鵠沼海岸」駅 徒歩 9 分

江ノ島電鉄線「鵠沼」駅 徒歩 10 分

藤沢市 鵠沼松が岡3丁目

5,899万円

3LDK

建物完成しました!今週末内覧会開催中!「稲村ケ崎」駅徒歩12分 新築一戸建て (A)

江ノ島電鉄線「稲村ヶ崎」駅 徒歩 12 分

江ノ島電鉄線「七里ヶ浜」駅 徒歩 24 分

鎌倉市 稲村ガ崎5丁目

5,980万円

4LDK

今週末モデルハウス見学会開催中!「東逗子」駅徒歩5分 新築一戸建て(3) 閑静な住環境

横須賀線「東逗子」駅 徒歩 5 分

横須賀線「逗子」駅 バス停「桜山四丁目」まで 徒歩 2 分 バス利用 6分

逗子市 桜山5丁目

5,980万円

2LDK+2S

今週末モデルハウス見学会開催中!「西谷」駅徒歩9分 新築一戸建て ルーフバルコニー付き

相模鉄道線「西谷」駅 徒歩 9 分

東急東横線「横浜」駅 バス停「山崎」まで 徒歩 2 分 バス利用 26分

横浜市保土ケ谷区 上菅田町

5,980万円

4LDK

横浜市青葉区桂台2丁目 中古一戸建 5980万円

田園都市線「青葉台」駅 バス停「桂台公園入口」まで 徒歩 4 分 バス利用 5分

こどもの国線「恩田」駅 徒歩 22 分

横浜市青葉区 桂台2丁目

5,980万円

4LDK

川崎市麻生区王禅寺東5丁目 新築一戸建 5980万円 6号棟

小田急線「柿生」駅 バス停「東柿生小学校」まで 徒歩 1 分 バス利用 6分

田園都市線「市が尾」駅 バス停「下麻生」まで 徒歩 7 分 バス利用 14分

川崎市麻生区 王禅寺東5丁目

5,980万円

4LDK

横浜市鶴見区獅子ヶ谷2丁目 新築一戸建 5980万円

京浜東北線「鶴見」駅 バス停「獅子ヶ谷」まで 徒歩 4 分 バス利用 10分

東急新横浜線「新横浜」駅 バス停「獅子ヶ谷」まで 徒歩 5 分 バス利用 22分

横浜市鶴見区 獅子ケ谷2丁目

5,980万円

4LDK

川崎市宮前区馬絹4丁目 新築一戸建 5980万円 1号棟

田園都市線「宮崎台」駅 徒歩 20 分

田園都市線「鷺沼」駅 バス停「宮前休日診療所」まで 徒歩 3 分 バス利用 7分

川崎市宮前区 馬絹4丁目

5,980万円

2LDK+2S

お気軽にどうぞ!

資料請求 現地見学 電話でお問い合わせ
0120-046-690
来店予約