1. トップページ
  2. 川崎市高津区坂戸3丁目 新築一戸建 6790万円 A号棟

川崎市高津区坂戸3丁目 新築一戸建 6790万円 A号棟

価格
6,790万円
物件種別
新築一戸建て
間取り
4LDK
所在地
川崎市高津区 坂戸3丁目
交通
  • 田園都市線「溝の口」駅 徒歩 20 分
  • 南武線「武蔵新城」駅 徒歩 15 分
土地面積
54.65㎡
建物面積
119.44㎡
  • 前回情報更新日 2026.04.17
  • 次回情報更新予定日 2026.05.01
資料請求 現地見学 電話でお問い合わせ
0120-046-690
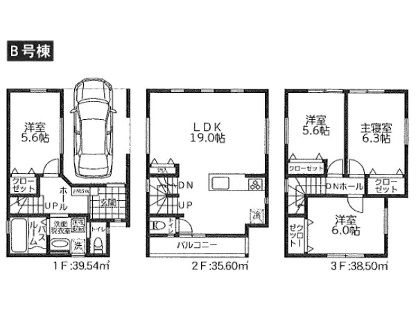
間取り
間取り
区画図
区画図
周辺環境:溝の口駅(田園都市線だけではなく、東急大井町線も始発で利用可能なため、都内の湾岸エリア方面へのアクセスもラクラクです。JR南武線で「川崎」駅へも20分。)
周辺環境:溝の口駅(田園都市線だけではなく、東急大井町線も始発で利用可能なため、都内の湾岸エリア方面へのアクセスもラクラクです。JR南武線で「川崎」駅へも20分。)
周辺環境:マルエツ川崎坂戸店(関東圏を中心に展開するチェーンスーパー。店内は明るく活気があり、品揃えも豊富。ネットスーパーもございます。)
周辺環境:マルエツ川崎坂戸店(関東圏を中心に展開するチェーンスーパー。店内は明るく活気があり、品揃えも豊富。ネットスーパーもございます。)
周辺環境:マルイファミリー溝口(洋服や雑貨のお店だけではなく、飲食店、本屋など幅広いお店が入る駅前大型商業施設。)
周辺環境:マルイファミリー溝口(洋服や雑貨のお店だけではなく、飲食店、本屋など幅広いお店が入る駅前大型商業施設。)
周辺環境:坂戸小学校(「溝の口」駅から南東に徒歩10分ほど、住宅街が広がる閑静な立地にある坂戸小学校。)
周辺環境:坂戸小学校(「溝の口」駅から南東に徒歩10分ほど、住宅街が広がる閑静な立地にある坂戸小学校。)
周辺環境:坂戸公園(住宅街らしく近隣には公園が複数ありますので、お子様にも嬉しい住環境です。きっと、お気に入りの公園がみつかるはずです。)
周辺環境:坂戸公園(住宅街らしく近隣には公園が複数ありますので、お子様にも嬉しい住環境です。きっと、お気に入りの公園がみつかるはずです。)
周辺環境:KSP(かながわサイエンスパーク)(日本で最初の都市型サイエンスパークです。ホテル、ホール、オフィス、郵便局、クリニック等の店舗も入ります。)
周辺環境:KSP(かながわサイエンスパーク)(日本で最初の都市型サイエンスパークです。ホテル、ホール、オフィス、郵便局、クリニック等の店舗も入ります。)
周辺環境:東高津中学校(JR南武線沿線に校舎があり、南武線の車内から校舎を臨むことができます。ボランティアなど生徒の自主的な活動が盛んな学校です。)
周辺環境:東高津中学校(JR南武線沿線に校舎があり、南武線の車内から校舎を臨むことができます。ボランティアなど生徒の自主的な活動が盛んな学校です。)
周辺環境:武蔵新城駅(平坦で生活しやすく、昔ながらの商店街も複数あり、目的に応じてお買い物ができる街です。)
周辺環境:武蔵新城駅(平坦で生活しやすく、昔ながらの商店街も複数あり、目的に応じてお買い物ができる街です。)

この物件のココがオススメ!

「溝の口」「武蔵溝ノ口」「武蔵新城」駅まで平坦徒歩利用可 LDK20帖以上 北西角地の4LDK

こだわりポイント

  • 運転ラクラク生活
  • 外食を楽しめる生活
  • 急行電車でスピード通勤
  • 始発で座ってゆったり通勤
  • 駅まで平坦ラクラク通勤
  • 2沿線利用であんしん通勤
  • 子供の多い街に住む
  • リビングイン階段
  • LDKは2階に
  • LDK20帖以上
  • 対面キッチン
  • 小学校10分以内
  • 有料道路インター2キロ以内
  • スーパー10分以内
  • コンビニ10分以内
  • 保育園10分以内
  • 幼稚園10分以内
  • 公園10分以内
  • 都市ガス
  • 屋根付きカースペース
  • 道路広々(5m以上)
  • 整形地
  • 道路と段差無し
  • 3階建て以上建築可能地域

お気軽にどうぞ!

資料請求 現地見学 電話でお問い合わせ
0120-046-690

地図

申し訳ありません
こちらは会員限定機能です

会員登録で利用できる6つの便利機能

詳しく見る

お気軽にどうぞ!

資料請求 現地見学 電話でお問い合わせ
0120-046-690

頭金0万円・金利0.495%の場合

ボーナス時(年2回)お支払額

0

この物件の月々のお支払額

190,191

年収に対する返済比率

76

  • ※会員登録し、詳細情報を記入されますと、全ての物件で自動的に金額が表示され、大変便利です。
  • ※まだ会員登録をされていない方は、下記チェック欄をご記入ください。
  • ※上記計算は物件価格6,790万円+諸経費 8%込みの金額による結果となります。
  • ※返済金額はあくまでも目安です。

お客様の条件からシミュレーションするには?

会員登録
マイページから登録

金利

直接入力する

ボーナス払い(年2回)

返済年数

頭金

直接入力する

 万円(半角数字)

年収

 万円(半角数字)

約1,500m

周辺環境:溝の口駅(田園都市線だけではなく、東急大井町線も始発で利用可能なため、都内の湾岸エリア方面へのアクセスもラクラクです。JR南武線で「川崎」駅へも20分。)

約1,500m

約650m

スーパー

周辺環境:マルエツ川崎坂戸店(関東圏を中心に展開するチェーンスーパー。店内は明るく活気があり、品揃えも豊富。ネットスーパーもございます。)

スーパー

約650m

約1,500m

ショッピングセンター

周辺環境:マルイファミリー溝口(洋服や雑貨のお店だけではなく、飲食店、本屋など幅広いお店が入る駅前大型商業施設。)

ショッピングセンター

約1,500m

約260m

小学校

周辺環境:坂戸小学校(「溝の口」駅から南東に徒歩10分ほど、住宅街が広がる閑静な立地にある坂戸小学校。)

小学校

約260m

約90m

公園

周辺環境:坂戸公園(住宅街らしく近隣には公園が複数ありますので、お子様にも嬉しい住環境です。きっと、お気に入りの公園がみつかるはずです。)

公園

約90m

約600m

その他環境写真

周辺環境:KSP(かながわサイエンスパーク)(日本で最初の都市型サイエンスパークです。ホテル、ホール、オフィス、郵便局、クリニック等の店舗も入ります。)

その他環境写真

約600m

約220m

中学校

周辺環境:東高津中学校(JR南武線沿線に校舎があり、南武線の車内から校舎を臨むことができます。ボランティアなど生徒の自主的な活動が盛んな学校です。)

中学校

約220m

約1,200m

周辺環境:武蔵新城駅(平坦で生活しやすく、昔ながらの商店街も複数あり、目的に応じてお買い物ができる街です。)

約1,200m

価格 6,790万円
物件種別 新築一戸建て
間取り 4LDK
所在地 川崎市高津区 坂戸3丁目
交通
  • 田園都市線「溝の口」駅 徒歩 20 分
  • 南武線「武蔵新城」駅 徒歩 15 分
土地面積 54.65㎡
建物面積 119.44㎡
学区 坂戸小学校、東高津中学校
用途地域 第一種住居
建ぺい率 60%
容積率 200%
地目 宅地
駐車場 有り ビルトイン車庫
接道 北8m、西5.2m
権利 所有権
私道面積 無し
セットバック 無し
建物構造 木造
建物階数 3階
築年月 2026年07月
入居日 2026年08月
都市計画 市街化区域
取引態様 仲介
物件番号 A2405-A
設備 公営水道、公共下水、ビルトインガレージ、駐車場1台、平坦地、角地、都市近郊、地盤調査済、市街地が近い、整備された歩道、スーパーが近い(10分以内)、駅まで平坦、2沿線以上利用可、小学校徒歩10分以内、中学校徒歩10分以内、保育施設・幼稚園5分以内、公園5分以内、コンビニ5分以内、システムキッチン、ガス3口、浄水器、I型キッチン、ユニットバス、追い焚き、浴室乾燥機、ウォシュレット、トイレ2ヶ所、浴室に窓、暖房便座、バルコニー、3階建以上、LDK20畳以上、採光2面、南向き、リビング階段、クローゼット、床下収納、下駄箱、全居室収納、シャンプドレッサー付き、年内入居可、モニタ付きインターフォン、複層ガラス、火災警報器(報知機)、陽当り良好、24時間換気システム、建物10年保証
建築確認番号 第25KAK建確02373号
特記事項 景観法:有/宅地造成工事規制区域:有/高度地区:有/準防火地域:有/日影制限:有/高さ限度:有/建物面積に車庫面積約15.73m2含む。 /
備考 「溝の口」「武蔵溝ノ口」「武蔵新城」駅まで平坦徒歩利用可 LDK20帖以上 北西角地の4LDK

お気軽にどうぞ!

資料請求 現地見学 電話でお問い合わせ
0120-046-690

このエリアでお探しの方へ

川崎市高津区溝口6丁目 新築一戸建 6490万円 A号棟

田園都市線「高津」駅 徒歩 14 分

南武線「武蔵溝ノ口」駅 徒歩 17 分

川崎市高津区 溝口6丁目

6,490万円

2LDK+2S

川崎市高津区坂戸3丁目 新築一戸建 6490万円 B号棟

田園都市線「溝の口」駅 徒歩 20 分

南武線「武蔵新城」駅 徒歩 15 分

川崎市高津区 坂戸3丁目

6,490万円

4LDK

川崎市高津区坂戸3丁目 新築一戸建 6490万円 C号棟

田園都市線「溝の口」駅 徒歩 20 分

南武線「武蔵新城」駅 徒歩 15 分

川崎市高津区 坂戸3丁目

6,490万円

4LDK

川崎市高津区向ケ丘 新築一戸建 6580万円 10号棟

田園都市線「宮崎台」駅 徒歩 18 分

南武線「武蔵溝ノ口」駅 バス停「上作団地前」まで 徒歩 5 分 バス利用 9分

川崎市高津区 向ケ丘

6,580万円

4LDK

川崎市高津区溝口6丁目 新築一戸建 6690万円 D号棟

田園都市線「高津」駅 徒歩 14 分

南武線「武蔵溝ノ口」駅 徒歩 17 分

川崎市高津区 溝口6丁目

6,690万円

2LDK+2S

川崎市高津区子母口 新築一戸建 3680万円

南武線「武蔵新城」駅 徒歩 22 分

田園都市線「溝の口」駅 バス停「千年」まで 徒歩 6 分 バス利用 13分

川崎市高津区 子母口

3,680万円

2LDK

川崎市高津区久末 新築一戸建 4080万円

東急東横線「日吉」駅 バス停「久末団地」まで 徒歩 1 分 バス利用 17分

グリーンライン「高田」駅 徒歩 22 分

川崎市高津区 久末

4,080万円

2LDK

川崎市高津区明津 一戸建 4380万円

東急東横線「元住吉」駅 徒歩 20 分

横須賀線「武蔵小杉」駅 バス停「井田営業所」まで 徒歩 3 分 バス利用 9分

川崎市高津区 明津

4,380万円

2SLDK

川崎市高津区北野川 新築一戸建 4580万円 1号棟

南武線「武蔵新城」駅 徒歩 26 分

田園都市線「溝の口」駅 バス停「橘出張所前」まで 徒歩 9 分 バス利用 13分

川崎市高津区 北野川

4,580万円

4LDK

川崎市高津区北野川 新築一戸建 4780万円 2号棟

南武線「武蔵新城」駅 徒歩 27 分

東急大井町線「溝の口」駅 バス停「橘出張所前」まで 徒歩 10 分 バス利用 6分

川崎市高津区 北野川

4,780万円

4LDK

川崎市高津区蟹ケ谷 新築一戸建 4780万円 3号棟

南武線「武蔵中原」駅 徒歩 28 分

東急東横線「元住吉」駅 徒歩 30 分

川崎市高津区 蟹ケ谷

4,780万円

3SLDK

川崎市高津区蟹ケ谷 新築一戸建 4780万円 4号棟

南武線「武蔵中原」駅 徒歩 28 分

東急東横線「元住吉」駅 徒歩 30 分

川崎市高津区 蟹ケ谷

4,780万円

3SLDK

お気軽にどうぞ!

資料請求 現地見学 電話でお問い合わせ
0120-046-690
来店予約