1. トップページ
  2. 川崎市宮前区神木本町3丁目 新築一戸建 5780万円 6号棟

川崎市宮前区神木本町3丁目 新築一戸建 5780万円 6号棟

価格
5,780万円
物件種別
新築一戸建て
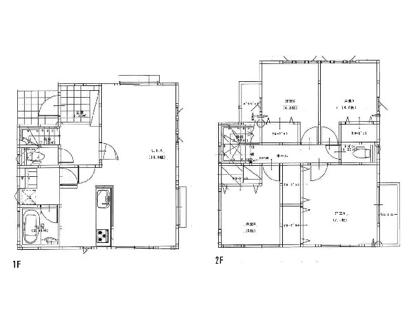
間取り
3LDK
所在地
川崎市宮前区 神木本町3丁目
交通
  • 田園都市線「宮崎台」駅 徒歩 22 分
  • 南武線「津田山」駅 徒歩 22 分
土地面積
125.33㎡
建物面積
100.08㎡
  • 前回情報更新日 2026.01.26
  • 次回情報更新予定日 2026.02.09
資料請求 現地見学 電話でお問い合わせ
0120-046-690
外観:東急田園都市沿線の閑静な住宅街、全6棟のスタイリッシュデザイナーズ住宅で建物にもこだわった住宅です。
外観:東急田園都市沿線の閑静な住宅街、全6棟のスタイリッシュデザイナーズ住宅で建物にもこだわった住宅です。
間取り
間取り
食洗機 利用者が増えているのはメリットが多いから。時間の節約、手が荒れない、水道代の節約、高温度で洗うので油汚れもしっかり落とせる。まさに理想家電。
食洗機 利用者が増えているのはメリットが多いから。時間の節約、手が荒れない、水道代の節約、高温度で洗うので油汚れもしっかり落とせる。まさに理想家電。
3口以上コンロ 同時並行で調理しやすい3口コンロです。お料理を同時にすすめることができ、料理時間の短縮にもなります。
3口以上コンロ 同時並行で調理しやすい3口コンロです。お料理を同時にすすめることができ、料理時間の短縮にもなります。
TVモニター付インターホン モニター付インターホンが標準仕様です。不安になりがちな防犯面。目で確認できるからあんしんです。
TVモニター付インターホン モニター付インターホンが標準仕様です。不安になりがちな防犯面。目で確認できるからあんしんです。
外観:全6棟の新築分譲住宅!建物面積100m2以上の大型間取り、広々としたLDKは家族の憩いの空間に最適です。
外観:全6棟の新築分譲住宅!建物面積100m2以上の大型間取り、広々としたLDKは家族の憩いの空間に最適です。
外観:大通りから1本入った住宅街に位置し、前面道路幅員も5m以上あるので車の運転が苦手な方でも安心です。
外観:大通りから1本入った住宅街に位置し、前面道路幅員も5m以上あるので車の運転が苦手な方でも安心です。
浴室乾燥機 お風呂場そのものを乾燥機にしてしまう便利な機能。梅雨時期や花粉の時期に助かる。冬の時期には暖房機能がヒートショックを防ぐ
浴室乾燥機 お風呂場そのものを乾燥機にしてしまう便利な機能。梅雨時期や花粉の時期に助かる。冬の時期には暖房機能がヒートショックを防ぐ
オートバス ワンタッチでお湯張りや保温が可能なフルオートバス。保温機能でいつでも快適に入浴が可能です。
オートバス ワンタッチでお湯張りや保温が可能なフルオートバス。保温機能でいつでも快適に入浴が可能です。
温水洗浄便座 ウォシュレット、暖房便座機能付のトイレです。従来型に比べ節水効果があり、お手入れもしやすい。
温水洗浄便座 ウォシュレット、暖房便座機能付のトイレです。従来型に比べ節水効果があり、お手入れもしやすい。
外観:【類似外観同仕様】施工例のため分譲中の建物とは外壁、屋根開口部等の形状・仕様が異なります。
外観:【類似外観同仕様】施工例のため分譲中の建物とは外壁、屋根開口部等の形状・仕様が異なります。
周辺環境:東高根森林公園(四季を感じる自然豊かな大規模公園。自然と触れ合う楽しさを感じよう。)
周辺環境:東高根森林公園(四季を感じる自然豊かな大規模公園。自然と触れ合う楽しさを感じよう。)
周辺環境:駒形屋(精肉店) (創業38年です。松坂牛や神奈川名産の高座豚の販売指名店として高級肉から業務用肉まで幅広くご用意しています。)
周辺環境:駒形屋(精肉店) (創業38年です。松坂牛や神奈川名産の高座豚の販売指名店として高級肉から業務用肉まで幅広くご用意しています。)
周辺環境:マルエツ平二丁目店(周囲にはいくつかのスーパーが点在しており、目的や曜日などで使い分けるもの良いですね。)
周辺環境:マルエツ平二丁目店(周囲にはいくつかのスーパーが点在しており、目的や曜日などで使い分けるもの良いですね。)
周辺環境:セブンイレブン川崎神木本町1丁目店(セブンミールは大好評です。公共料金の支払いなど色々な用途があるコンビニは今や必須ですね。)
周辺環境:セブンイレブン川崎神木本町1丁目店(セブンミールは大好評です。公共料金の支払いなど色々な用途があるコンビニは今や必須ですね。)
周辺環境:クリエイトSD川崎神木本町店(医薬品や日用品、今では食料品なども購入できるドラッグストアは生活にかかせません。)
周辺環境:クリエイトSD川崎神木本町店(医薬品や日用品、今では食料品なども購入できるドラッグストアは生活にかかせません。)
周辺環境:ガスト川崎長尾店(豊富な幅広い年齢層に愛され続けるファミリーレストランです。テイクアウトに・宅配サービスも行っています。)
周辺環境:ガスト川崎長尾店(豊富な幅広い年齢層に愛され続けるファミリーレストランです。テイクアウトに・宅配サービスも行っています。)
周辺環境:ひばり幼稚園(教育方針は「丈夫な子・やさしい心・よく考えさいごまで頑張る子」園児数約560人と大きな規模の幼稚園です。)
周辺環境:ひばり幼稚園(教育方針は「丈夫な子・やさしい心・よく考えさいごまで頑張る子」園児数約560人と大きな規模の幼稚園です。)
周辺環境:平小学校(元気な子、考える子、やさしい子、がんばる子を目指して教育します。)
周辺環境:平小学校(元気な子、考える子、やさしい子、がんばる子を目指して教育します。)
周辺環境:向丘中学校(成長の過程でより濃い時間を過ごす3年間。この学校で過ごす時間は、お子様にとって、とても大切な思い出となるはずです。)
周辺環境:向丘中学校(成長の過程でより濃い時間を過ごす3年間。この学校で過ごす時間は、お子様にとって、とても大切な思い出となるはずです。)

この物件のココがオススメ!

スタイリッシュな内外観の6棟 東高根森林公園が近く、都市の利便性と豊かな自然を感じられる立地です。

こだわりポイント

  • お墓近接
  • 食器洗い洗浄乾燥機
  • 浴室換気乾燥暖房機
  • 外食を楽しめる生活
  • 子供の多い街に住む
  • 自然を感じる暮らし
  • LDKは1階に
  • 2階建て住宅限定
  • LDK20帖以上
  • 対面キッチン
  • 浴室1坪以上
  • 大規模公園10分以内
  • スーパー10分以内
  • コンビニ10分以内
  • 保育園10分以内
  • 幼稚園10分以内
  • 公園10分以内
  • 都市ガス
  • カースペース2台
  • 5棟以上の分譲地
  • 道路広々(5m以上)
  • 整形地
  • 道路と段差無し
  • 低層住居専用地域

お気軽にどうぞ!

資料請求 現地見学 電話でお問い合わせ
0120-046-690

地図

申し訳ありません
こちらは会員限定機能です

会員登録で利用できる6つの便利機能

詳しく見る

お気軽にどうぞ!

資料請求 現地見学 電話でお問い合わせ
0120-046-690

頭金0万円・金利0.495%の場合

ボーナス時(年2回)お支払額

0

この物件の月々のお支払額

161,895

年収に対する返済比率

65

  • ※会員登録し、詳細情報を記入されますと、全ての物件で自動的に金額が表示され、大変便利です。
  • ※まだ会員登録をされていない方は、下記チェック欄をご記入ください。
  • ※上記計算は物件価格5,780万円+諸経費 8%込みの金額による結果となります。
  • ※返済金額はあくまでも目安です。

お客様の条件からシミュレーションするには?

会員登録
マイページから登録

金利

直接入力する

ボーナス払い(年2回)

返済年数

頭金

直接入力する

 万円(半角数字)

年収

 万円(半角数字)

約300m

公園

周辺環境:東高根森林公園(四季を感じる自然豊かな大規模公園。自然と触れ合う楽しさを感じよう。)

公園

約300m

約800m

その他環境写真

周辺環境:駒形屋(精肉店) (創業38年です。松坂牛や神奈川名産の高座豚の販売指名店として高級肉から業務用肉まで幅広くご用意しています。)

その他環境写真

約800m

約1,300m

スーパー

周辺環境:マルエツ平二丁目店(周囲にはいくつかのスーパーが点在しており、目的や曜日などで使い分けるもの良いですね。)

スーパー

約1,300m

約650m

コンビニ

周辺環境:セブンイレブン川崎神木本町1丁目店(セブンミールは大好評です。公共料金の支払いなど色々な用途があるコンビニは今や必須ですね。)

コンビニ

約650m

約850m

ドラッグストア

周辺環境:クリエイトSD川崎神木本町店(医薬品や日用品、今では食料品なども購入できるドラッグストアは生活にかかせません。)

ドラッグストア

約850m

約600m

飲食店

周辺環境:ガスト川崎長尾店(豊富な幅広い年齢層に愛され続けるファミリーレストランです。テイクアウトに・宅配サービスも行っています。)

飲食店

約600m

約650m

幼稚園・保育園

周辺環境:ひばり幼稚園(教育方針は「丈夫な子・やさしい心・よく考えさいごまで頑張る子」園児数約560人と大きな規模の幼稚園です。)

幼稚園・保育園

約650m

約1,000m

小学校

周辺環境:平小学校(元気な子、考える子、やさしい子、がんばる子を目指して教育します。)

小学校

約1,000m

約600m

中学校

周辺環境:向丘中学校(成長の過程でより濃い時間を過ごす3年間。この学校で過ごす時間は、お子様にとって、とても大切な思い出となるはずです。)

中学校

約600m

価格 5,780万円
物件種別 新築一戸建て
間取り 3LDK
所在地 川崎市宮前区 神木本町3丁目
交通
  • 田園都市線「宮崎台」駅 徒歩 22 分
  • 南武線「津田山」駅 徒歩 22 分
土地面積 125.33㎡
建物面積 100.08㎡
学区 平小学校、向丘中学校
用途地域 第一種低層住居専用
建ぺい率 50%
容積率 80%
地目 宅地
駐車場 有り カースペース
接道 北5m
権利 所有権
私道面積 無し
セットバック 無し
建物構造 木造
建物階数 2階
築年月 2026年05月
入居日 2026年06月
都市計画 市街化区域
取引態様 仲介
物件番号 A2146-6
設備 公営水道、公共下水、駐車場2台以上、緑豊かな住宅地、閑静な住宅地、平坦地、都市近郊、地盤調査済、市街地が近い、周辺交通量少なめ、スーパーが近い(10分以内)、2沿線以上利用可、中学校徒歩10分以内、保育施設・幼稚園5分以内、公園5分以内、コンビニ5分以内、システムキッチン、ガスコンロ、ガス3口、カウンタキッチン、食器洗い機付き、浄水器、アイランドキッチン、ユニットバス、追い焚き、浴室乾燥機、ウォシュレット、オートバス付き、トイレ2ヶ所、浴室1坪以上、浴室に窓、暖房便座、浴室暖房、バルコニー、テラス、2階建、LDK20畳以上、採光3面、フローリング、全室フローリング、クローゼット、収納、床下収納、下駄箱、全居室収納、シャンプドレッサー付き、年内入居可、モニタ付きインターフォン、複層ガラス、火災警報器(報知機)、セキュリティ充実、通風良好、陽当り良好、24時間換気システム、建物10年保証
建築確認番号 第KBI-SGM25-10-4593
特記事項 壁面後退:有/景観法:有/宅地造成工事規制区域:有/高度地区:有/日影制限:有/敷地面積最低限度:有/高さ限度:有/建築基準法22条区域、駐車は車種により2台可。 /
備考 スタイリッシュな内外観の6棟 東高根森林公園が近く、都市の利便性と豊かな自然を感じられる立地です。

お気軽にどうぞ!

資料請求 現地見学 電話でお問い合わせ
0120-046-690

このエリアでお探しの方へ

川崎市宮前区有馬4丁目 新築一戸建 5480万円 1号棟

田園都市線「鷺沼」駅 徒歩 13 分

田園都市線「宮前平」駅 徒歩 17 分

川崎市宮前区 有馬4丁目

5,480万円

3LDK

川崎市宮前区神木本町3丁目 新築一戸建 5480万円 2号棟

田園都市線「宮崎台」駅 徒歩 22 分

南武線「津田山」駅 徒歩 22 分

川崎市宮前区 神木本町3丁目

5,480万円

3LDK

川崎市宮前区神木本町3丁目 新築一戸建 5480万円 3号棟

田園都市線「宮崎台」駅 徒歩 22 分

南武線「津田山」駅 徒歩 22 分

川崎市宮前区 神木本町3丁目

5,480万円

3LDK

川崎市宮前区東有馬2丁目 新築一戸建 5490万円 I号棟

田園都市線「宮崎台」駅 徒歩 20 分

田園都市線「鷺沼」駅 徒歩 27 分

川崎市宮前区 東有馬2丁目

5,490万円

4LDK

川崎市宮前区東有馬1丁目 新築一戸建 5580万円

田園都市線「宮前平」駅 徒歩 17 分

田園都市線「宮崎台」駅 徒歩 17 分

川崎市宮前区 東有馬1丁目

5,580万円

3LDK

川崎市宮前区神木本町1丁目 新築一戸建 5580万円 No.2

田園都市線「溝の口」駅 バス停「神木本町」まで 徒歩 5 分 バス利用 12分

小田急線「登戸」駅 バス停「神木不動」まで 徒歩 3 分 バス利用 11分

川崎市宮前区 神木本町1丁目

5,580万円

2LDK+2S

川崎市宮前区野川本町1丁目 新築一戸建 5680万円 2号棟

田園都市線「梶が谷」駅 徒歩 22 分

田園都市線「溝の口」駅 徒歩 35 分

川崎市宮前区 野川本町1丁目

5,680万円

4LDK

川崎市宮前区野川本町1丁目 新築一戸建 5690万円 A号棟

田園都市線「梶が谷」駅 徒歩 23 分

南武線「武蔵新城」駅 徒歩 25 分

川崎市宮前区 野川本町1丁目

5,690万円

4LDK

川崎市宮前区南野川1丁目 新築一戸建 5690万円 B号棟

田園都市線「鷺沼」駅 バス停「子の神」まで 徒歩 2 分 バス利用 18分

グリーンライン「北山田」駅 徒歩 23 分

川崎市宮前区 南野川1丁目

5,690万円

4LDK

川崎市宮前区西野川3丁目 新築一戸建 5780万円 1号棟

田園都市線「宮前平」駅 バス停「野川郵便局前」まで 徒歩 9 分 バス利用 14分

南武線「武蔵新城」駅 バス停「野川郵便局前」まで 徒歩 9 分 バス利用 13分

川崎市宮前区 西野川3丁目

5,780万円

4LDK

川崎市宮前区神木本町3丁目 新築一戸建 5780万円 1号棟

田園都市線「宮崎台」駅 徒歩 22 分

南武線「津田山」駅 徒歩 22 分

川崎市宮前区 神木本町3丁目

5,780万円

4LDK

川崎市宮前区神木本町3丁目 新築一戸建 5880万円 4号棟

田園都市線「宮崎台」駅 徒歩 22 分

南武線「津田山」駅 徒歩 22 分

川崎市宮前区 神木本町3丁目

5,880万円

3LDK

お気軽にどうぞ!

資料請求 現地見学 電話でお問い合わせ
0120-046-690
来店予約