1. トップページ
  2. 川崎市宮前区馬絹1丁目 中古一戸建 6990万円

川崎市宮前区馬絹1丁目 中古一戸建 6990万円

価格
6,990万円
物件種別
中古一戸建て
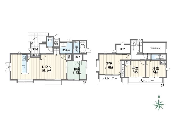
間取り
4LDK
所在地
川崎市宮前区 馬絹1丁目
交通
  • 田園都市線「鷺沼」駅 徒歩 14 分
  • 田園都市線「宮前平」駅 徒歩 10 分
土地面積
125.27㎡
建物面積
94.38㎡
  • 前回情報更新日 2025.12.12
  • 次回情報更新予定日 2025.12.26
資料請求 現地見学 電話でお問い合わせ
0120-046-690
外観:東急田園都市線「鷺沼」駅徒歩14分!大通りから1本入った閑静な住宅街に位置し利便性と住環境を兼ね合わせた住宅です。
外観:東急田園都市線「鷺沼」駅徒歩14分!大通りから1本入った閑静な住宅街に位置し利便性と住環境を兼ね合わせた住宅です。
間取り
間取り
大切な家族が集まるからこそLDKにはこだわりたい。日当たりのよい広いLDKを、子供たちが元気に走り回っている姿を見た時「広い家にして良かった」と思う。
大切な家族が集まるからこそLDKにはこだわりたい。日当たりのよい広いLDKを、子供たちが元気に走り回っている姿を見た時「広い家にして良かった」と思う。
想像以上の質感が訪れる者の心を離さない。フローリング素材、窓の配置、壁面タイル、カラーバランス、どれをとってもワンランク上の仕上がり。
想像以上の質感が訪れる者の心を離さない。フローリング素材、窓の配置、壁面タイル、カラーバランス、どれをとってもワンランク上の仕上がり。
リビングに隣接の和室を開放すると、合計で21.2帖の大空間が広がります。お子様の遊び場として、ちょっと横になってお昼寝をするスペースとしても重宝します。
リビングに隣接の和室を開放すると、合計で21.2帖の大空間が広がります。お子様の遊び場として、ちょっと横になってお昼寝をするスペースとしても重宝します。
対面式のカウンターキッチンですので、出来上がったお料理をカウンターに並べてお子様が運ぶなど、お手伝いの時間も増えそうですね。
対面式のカウンターキッチンですので、出来上がったお料理をカウンターに並べてお子様が運ぶなど、お手伝いの時間も増えそうですね。
スライド収納付きのシステムキッチン。料理器具なども収納できて出し入れもスムーズ。収納量もたっぷりなので料理器具やストック調味料なども入れられる。
スライド収納付きのシステムキッチン。料理器具なども収納できて出し入れもスムーズ。収納量もたっぷりなので料理器具やストック調味料なども入れられる。
システムキッチンと一体感あるカラーでまとまった、食器棚付です。高額な設備であることから建売には採用されないことが多いので、うれしい設備仕様です。
システムキッチンと一体感あるカラーでまとまった、食器棚付です。高額な設備であることから建売には採用されないことが多いので、うれしい設備仕様です。
3面採光でお部屋の隅々まで明るい印象の居室。おひさまの光を、爽やかな風をたっぷりと取り込めます。居室内はいつも明るいので、毎日の生活も自然と明るくなりますね。
3面採光でお部屋の隅々まで明るい印象の居室。おひさまの光を、爽やかな風をたっぷりと取り込めます。居室内はいつも明るいので、毎日の生活も自然と明るくなりますね。
家族だんらんのスペースとなるリビング。家具の配置がしやすい広さを確保しつつ、窓が多い設計は色々な角度から光が取り込めるこだわりの間取りです。
家族だんらんのスペースとなるリビング。家具の配置がしやすい広さを確保しつつ、窓が多い設計は色々な角度から光が取り込めるこだわりの間取りです。
全居室には大型の収納クローゼットを完備。普段使いのお洋服や小物はもちろん、季節物のお洋服などもしっかりと整理整頓出来る。居室空間を隅々まで使えるのが嬉しい。
全居室には大型の収納クローゼットを完備。普段使いのお洋服や小物はもちろん、季節物のお洋服などもしっかりと整理整頓出来る。居室空間を隅々まで使えるのが嬉しい。
階段部分には自然の光を取り込むことの出来る、窓を配置しており明るい空間!お掃除の際には空気の換気などにも便利です。
階段部分には自然の光を取り込むことの出来る、窓を配置しており明るい空間!お掃除の際には空気の換気などにも便利です。
散らかりがちな玄関をスッキリと保てる玄関収納は、家の中に入る時一番最初に目に付く場所だからこだわりたい。落ち着いた色目が、室内のカラーやデザインと調和。
散らかりがちな玄関をスッキリと保てる玄関収納は、家の中に入る時一番最初に目に付く場所だからこだわりたい。落ち着いた色目が、室内のカラーやデザインと調和。
玄関ホールには大きな窓があり、自然光が射し込み、住まう人、訪れる人を心地よく迎え入れてくれる。玄関収納には、ディスプレイスペースがあり、お花、グリーンなどを飾れる。
玄関ホールには大きな窓があり、自然光が射し込み、住まう人、訪れる人を心地よく迎え入れてくれる。玄関収納には、ディスプレイスペースがあり、お花、グリーンなどを飾れる。
鏡の裏に収納棚を確保した三面鏡を採用。化粧品や歯ブラシなどを機能的に収納。また、三面鏡の本当の利点は三枚の鏡を合わせることで、頭の側面や背面が見れること。
鏡の裏に収納棚を確保した三面鏡を採用。化粧品や歯ブラシなどを機能的に収納。また、三面鏡の本当の利点は三枚の鏡を合わせることで、頭の側面や背面が見れること。
ゆったり入れる一坪バス。足を伸ばして入れるサイズは一日の疲れを癒すのに嬉しい広さ。お子様と一緒の入浴でも充分な広さです。
ゆったり入れる一坪バス。足を伸ばして入れるサイズは一日の疲れを癒すのに嬉しい広さ。お子様と一緒の入浴でも充分な広さです。
窓があることで陽ざしが入る明るいトイレ。区切られた狭い空間なので、窓があるだけでだいぶ印象が変わります。また換気扇だけではなく、窓からの換気で空気の流れを一層できる。
窓があることで陽ざしが入る明るいトイレ。区切られた狭い空間なので、窓があるだけでだいぶ印象が変わります。また換気扇だけではなく、窓からの換気で空気の流れを一層できる。
周辺環境:鷺沼駅(東急田園都市線の中でも、急行が停車し、バス路線も多く、利便性の高い駅です。)
周辺環境:鷺沼駅(東急田園都市線の中でも、急行が停車し、バス路線も多く、利便性の高い駅です。)
周辺環境:宮前平駅(渋谷・大手町など主要ビジネスタウンへ快適アクセス。おしゃれで洗練されたイメージの田園都市線沿線ライフを送りませんか。)
周辺環境:宮前平駅(渋谷・大手町など主要ビジネスタウンへ快適アクセス。おしゃれで洗練されたイメージの田園都市線沿線ライフを送りませんか。)
周辺環境:ロピア馬絹店(ノジマ 電気店のノジマと同じ建物にあります。ロープライスのユートピアを作ることを目標にしています。)
周辺環境:ロピア馬絹店(ノジマ 電気店のノジマと同じ建物にあります。ロープライスのユートピアを作ることを目標にしています。)
周辺環境:東急ストアフレルさぎ沼店(鷺沼駅前にある(直結の)スーパー。幅広い時間帯に利用することができ、お客様の毎日の生活に密着してお役に立ちます。)
周辺環境:東急ストアフレルさぎ沼店(鷺沼駅前にある(直結の)スーパー。幅広い時間帯に利用することができ、お客様の毎日の生活に密着してお役に立ちます。)
周辺環境:食品館あおば(鷺沼店食べ盛りのお子様がいらっしゃるご家庭の強い味方、魅力の量・価格のスーパーが近くにあると、とても心強いです。)
周辺環境:食品館あおば(鷺沼店食べ盛りのお子様がいらっしゃるご家庭の強い味方、魅力の量・価格のスーパーが近くにあると、とても心強いです。)
周辺環境:にじいろ保育園有馬(2022年4月に開園した、お子さま受け入れ60名の園です。毎日子どもたちの元気いっぱいな声が園舎から響き活気がある保育園です。)
周辺環境:にじいろ保育園有馬(2022年4月に開園した、お子さま受け入れ60名の園です。毎日子どもたちの元気いっぱいな声が園舎から響き活気がある保育園です。)
周辺環境:宮崎小学校(お子様が一日の中でも長い時間を過ごす小学校。どんどん成長していくお子様の姿が目に浮かびます。)
周辺環境:宮崎小学校(お子様が一日の中でも長い時間を過ごす小学校。どんどん成長していくお子様の姿が目に浮かびます。)
周辺環境:宮崎中学校(1学年8クラスのマンモス校です。お友達もたくさんできる環境です。また、静かな住宅街の中にありますので、落ち着いて学ぶことが出来ます。)
周辺環境:宮崎中学校(1学年8クラスのマンモス校です。お友達もたくさんできる環境です。また、静かな住宅街の中にありますので、落ち着いて学ぶことが出来ます。)

この物件のココがオススメ!

再開発が進む「鷺沼」駅も利用可能 都内へのアクセスも良く通勤・通学に便利な立地。周辺にはお買物施設も充実

こだわりポイント

  • 省エネに配慮された建物
  • 浴室換気乾燥暖房機
  • 外食を楽しめる生活
  • 急行電車でスピード通勤
  • 子供の多い街に住む
  • おしゃれイメージな街に住む
  • LDKは1階に
  • 2階建て住宅限定
  • リビングイン階段
  • LDK15帖以上
  • 和室有り
  • 対面キッチン
  • 浴室1坪以上
  • 小学校10分以内
  • スーパー10分以内
  • コンビニ10分以内
  • 小児科医院10分以内
  • 保育園10分以内
  • 幼稚園10分以内
  • 公園10分以内
  • 都市ガス
  • 整形地
  • 道路と段差無し
  • 低層住居専用地域

お気軽にどうぞ!

資料請求 現地見学 電話でお問い合わせ
0120-046-690

地図

申し訳ありません
こちらは会員限定機能です

会員登録で利用できる6つの便利機能

詳しく見る

お気軽にどうぞ!

資料請求 現地見学 電話でお問い合わせ
0120-046-690

頭金0万円・金利0.495%の場合

ボーナス時(年2回)お支払額

0

この物件の月々のお支払額

195,794

年収に対する返済比率

78

  • ※会員登録し、詳細情報を記入されますと、全ての物件で自動的に金額が表示され、大変便利です。
  • ※まだ会員登録をされていない方は、下記チェック欄をご記入ください。
  • ※上記計算は物件価格6,990万円+諸経費 8%込みの金額による結果となります。
  • ※返済金額はあくまでも目安です。

お客様の条件からシミュレーションするには?

会員登録
マイページから登録

金利

直接入力する

ボーナス払い(年2回)

返済年数

頭金

直接入力する

 万円(半角数字)

年収

 万円(半角数字)

約1,100m

周辺環境:鷺沼駅(東急田園都市線の中でも、急行が停車し、バス路線も多く、利便性の高い駅です。)

約1,100m

約800m

周辺環境:宮前平駅(渋谷・大手町など主要ビジネスタウンへ快適アクセス。おしゃれで洗練されたイメージの田園都市線沿線ライフを送りませんか。)

約800m

約900m

スーパー

周辺環境:ロピア馬絹店(ノジマ 電気店のノジマと同じ建物にあります。ロープライスのユートピアを作ることを目標にしています。)

スーパー

約900m

約1,000m

スーパー

周辺環境:東急ストアフレルさぎ沼店(鷺沼駅前にある(直結の)スーパー。幅広い時間帯に利用することができ、お客様の毎日の生活に密着してお役に立ちます。)

スーパー

約1,000m

約1,400m

スーパー

周辺環境:食品館あおば(鷺沼店食べ盛りのお子様がいらっしゃるご家庭の強い味方、魅力の量・価格のスーパーが近くにあると、とても心強いです。)

スーパー

約1,400m

約650m

幼稚園・保育園

周辺環境:にじいろ保育園有馬(2022年4月に開園した、お子さま受け入れ60名の園です。毎日子どもたちの元気いっぱいな声が園舎から響き活気がある保育園です。)

幼稚園・保育園

約650m

約240m

小学校

周辺環境:宮崎小学校(お子様が一日の中でも長い時間を過ごす小学校。どんどん成長していくお子様の姿が目に浮かびます。)

小学校

約240m

約2,000m

中学校

周辺環境:宮崎中学校(1学年8クラスのマンモス校です。お友達もたくさんできる環境です。また、静かな住宅街の中にありますので、落ち着いて学ぶことが出来ます。)

中学校

約2,000m

価格 6,990万円
物件種別 中古一戸建て
間取り 4LDK
所在地 川崎市宮前区 馬絹1丁目
交通
  • 田園都市線「鷺沼」駅 徒歩 14 分
  • 田園都市線「宮前平」駅 徒歩 10 分
土地面積 125.27㎡
建物面積 94.38㎡
学区 宮崎小学校、宮崎中学校
用途地域 第一種低層住居専用
建ぺい率 50%
容積率 80%
地目 宅地
駐車場 有り カースペース
接道 西4m
権利 所有権
私道面積 無し
セットバック 無し
建物構造 木造
建物階数 2階
築年月 2010年07月
入居日 即時
都市計画 市街化区域
取引態様 専任
物件番号 A1973
設備 公営水道、公共下水、閑静な住宅地、都市近郊、市街地が近い、周辺交通量少なめ、スーパーが近い(10分以内)、小学校徒歩10分以内、保育施設・幼稚園5分以内、コンビニ5分以内、システムキッチン、ガス3口、ユニットバス、追い焚き、浴室乾燥機、ウォシュレット、オートバス付き、トイレ2ヶ所、浴室1坪以上、浴室に窓、暖房便座、バルコニー、テラス、外装リフォーム、2階建、LDK15畳以上、省エネ給湯器、採光2面、リビング階段、クローゼット、押し入れ、収納、下駄箱、屋根裏収納、全居室収納、シャンプドレッサー付き、モニタ付きインターフォン、カードキー、複層ガラス、火災警報器(報知機)、全居室複層ガラスか複層サッシ、24時間換気システム
建築確認番号 -
特記事項 壁面後退:有/景観法:有/宅地造成工事規制区域:有/高度地区:有/日影制限:有/敷地面積最低限度:有/高さ限度:有/建築基準法第22条区域。 /外装リフォーム…2024年01月(外壁)
備考 再開発が進む「鷺沼」駅も利用可能 都内へのアクセスも良く通勤・通学に便利な立地。周辺にはお買物施設も充実

お気軽にどうぞ!

資料請求 現地見学 電話でお問い合わせ
0120-046-690

このエリアでお探しの方へ

川崎市宮前区東有馬4丁目 新築一戸建 6780万円 5号棟

グリーンライン「北山田」駅 徒歩 12 分

田園都市線「鷺沼」駅 バス停「有馬変電所」まで 徒歩 10 分 バス利用 10分

川崎市宮前区 東有馬4丁目

6,780万円

4LDK

川崎市宮前区東有馬4丁目 新築一戸建 6780万円 3号棟

グリーンライン「北山田」駅 徒歩 12 分

田園都市線「鷺沼」駅 バス停「有馬変電所」まで 徒歩 10 分 バス利用 10分

川崎市宮前区 東有馬4丁目

6,780万円

4LDK

川崎市宮前区東有馬4丁目 新築一戸建 6780万円 4号棟

グリーンライン「北山田」駅 徒歩 12 分

田園都市線「鷺沼」駅 バス停「有馬変電所」まで 徒歩 10 分 バス利用 10分

川崎市宮前区 東有馬4丁目

6,780万円

4LDK

川崎市宮前区梶ケ谷 新築一戸建 6780万円

田園都市線「梶が谷」駅 徒歩 18 分

南武線「武蔵新城」駅 バス停「金山」まで 徒歩 3 分 バス利用 18分

川崎市宮前区 梶ケ谷

6,780万円

2SLDK

川崎市宮前区東有馬4丁目 新築一戸建 6880万円 2号棟

グリーンライン「北山田」駅 徒歩 12 分

田園都市線「鷺沼」駅 バス停「有馬変電所」まで 徒歩 10 分 バス利用 10分

川崎市宮前区 東有馬4丁目

6,880万円

4LDK

川崎市宮前区平5丁目 新築一戸建 4080万円 2号棟

田園都市線「宮前平」駅 徒歩 26 分

南武線「武蔵溝ノ口」駅 バス停「向丘出張所」まで 徒歩 4 分 バス利用 12分

川崎市宮前区 平5丁目

4,080万円

4LDK

川崎市宮前区平5丁目 新築一戸建 4180万円 3号棟

田園都市線「宮前平」駅 徒歩 26 分

南武線「武蔵溝ノ口」駅 バス停「向丘出張所」まで 徒歩 4 分 バス利用 12分

川崎市宮前区 平5丁目

4,180万円

4LDK

川崎市宮前区平5丁目 新築一戸建 4180万円 1号棟

田園都市線「宮前平」駅 徒歩 26 分

南武線「武蔵溝ノ口」駅 バス停「向丘出張所」まで 徒歩 4 分 バス利用 12分

川崎市宮前区 平5丁目

4,180万円

4LDK

川崎市宮前区犬蔵1丁目 新築一戸建 4380万円 2号棟

田園都市線「鷺沼」駅 徒歩 20 分

田園都市線「たまプラーザ」駅 徒歩 22 分

川崎市宮前区 犬蔵1丁目

4,380万円

3LDK

川崎市宮前区犬蔵1丁目 新築一戸建 4480万円 1号棟

田園都市線「鷺沼」駅 徒歩 20 分

田園都市線「たまプラーザ」駅 徒歩 22 分

川崎市宮前区 犬蔵1丁目

4,480万円

4LDK

川崎市宮前区南野川2丁目 新築一戸建 4480万円 4号棟

田園都市線「鷺沼」駅 バス停「和田八幡宮下」まで 徒歩 1 分 バス利用 15分

グリーンライン「東山田」駅 徒歩 22 分

川崎市宮前区 南野川2丁目

4,480万円

4LDK

川崎市宮前区平3丁目 新築一戸建 4480万円

田園都市線「溝の口」駅 バス停「平」まで 徒歩 8 分 バス利用 13分

小田急線「向ヶ丘遊園」駅 徒歩 24 分

川崎市宮前区 平3丁目

4,480万円

3LDK

お気軽にどうぞ!

資料請求 現地見学 電話でお問い合わせ
0120-046-690