1. トップページ
  2. 横浜市港北区綱島西4丁目 新築一戸建 5790万円 C棟

横浜市港北区綱島西4丁目 新築一戸建 5790万円 C棟

価格
5,790万円
物件種別
新築一戸建て
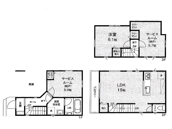
間取り
1LDK+2S
所在地
横浜市港北区 綱島西4丁目
交通
  • グリーンライン「日吉本町」駅 徒歩 14 分
  • 東急東横線「綱島」駅 徒歩 15 分
土地面積
50.97㎡
建物面積
86.48㎡
  • 前回情報更新日 2025.11.21
  • 次回情報更新予定日 2025.12.05
資料請求 現地見学 電話でお問い合わせ
0120-046-690
間取り
間取り
区画図
区画図
周辺環境:日吉本町駅(周辺は緑の多く残る住宅地です。)
周辺環境:日吉本町駅(周辺は緑の多く残る住宅地です。)
周辺環境:北綱島小学校(学校教育目標は<心をあわせ あかるくのびる 北綱の子> )
周辺環境:北綱島小学校(学校教育目標は<心をあわせ あかるくのびる 北綱の子> )
周辺環境:日吉台西中学校(自然が多く残る環境に和気あいあいとした雰囲気の中学校。小中一貫推進プランを進めているので、小学校との連携がとれている。)
周辺環境:日吉台西中学校(自然が多く残る環境に和気あいあいとした雰囲気の中学校。小中一貫推進プランを進めているので、小学校との連携がとれている。)
周辺環境:いなげや横浜綱島店(いなげやは午前9時30分~夜22時まで営業 駐車場は92台 「吉田口」バス停より徒歩1分です。)
周辺環境:いなげや横浜綱島店(いなげやは午前9時30分~夜22時まで営業 駐車場は92台 「吉田口」バス停より徒歩1分です。)
周辺環境:綱島公園(鶴見川の平野部に立地する標高30メートル程の独立丘上部に所在し、雑木林の広がる緑豊かな公園)
周辺環境:綱島公園(鶴見川の平野部に立地する標高30メートル程の独立丘上部に所在し、雑木林の広がる緑豊かな公園)
周辺環境:エンゼル幼稚園(園舎・園庭から子供たちの元気な声が聞こえてきます。できることが増えていく、お子様の成長が楽しみです。)
周辺環境:エンゼル幼稚園(園舎・園庭から子供たちの元気な声が聞こえてきます。できることが増えていく、お子様の成長が楽しみです。)

この物件のココがオススメ!

「日吉本町」「綱島」「新綱島」の3駅3路線が徒歩圏 通勤通学に便利な立地です 小学校まで徒歩3分

こだわりポイント

  • 省エネに配慮された建物
  • 食器洗い洗浄乾燥機
  • 駅まで平坦ラクラク通勤
  • 2沿線利用であんしん通勤
  • 子供の多い街に住む
  • 自然を感じる暮らし
  • リビングイン階段
  • LDKは2階に
  • LDK15帖以上
  • 対面キッチン
  • 小学校10分以内
  • 大規模公園10分以内
  • スーパー10分以内
  • コンビニ10分以内
  • 小児科医院10分以内
  • 保育園10分以内
  • 幼稚園10分以内
  • 公園10分以内
  • 都市ガス
  • 屋根付きカースペース
  • 道路広々(5m以上)
  • 道路と段差無し
  • 3階建て以上建築可能地域

お気軽にどうぞ!

資料請求 現地見学 電話でお問い合わせ
0120-046-690

地図

申し訳ありません
こちらは会員限定機能です

会員登録で利用できる6つの便利機能

詳しく見る

お気軽にどうぞ!

資料請求 現地見学 電話でお問い合わせ
0120-046-690

頭金0万円・金利0.495%の場合

ボーナス時(年2回)お支払額

0

この物件の月々のお支払額

162,180

年収に対する返済比率

65

  • ※会員登録し、詳細情報を記入されますと、全ての物件で自動的に金額が表示され、大変便利です。
  • ※まだ会員登録をされていない方は、下記チェック欄をご記入ください。
  • ※上記計算は物件価格5,790万円+諸経費 8%込みの金額による結果となります。
  • ※返済金額はあくまでも目安です。

お客様の条件からシミュレーションするには?

会員登録
マイページから登録

金利

直接入力する

ボーナス払い(年2回)

返済年数

頭金

直接入力する

 万円(半角数字)

年収

 万円(半角数字)

約1,000m

周辺環境:日吉本町駅(周辺は緑の多く残る住宅地です。)

約1,000m

約210m

小学校

周辺環境:北綱島小学校(学校教育目標は<心をあわせ あかるくのびる 北綱の子> )

小学校

約210m

約1,000m

中学校

周辺環境:日吉台西中学校(自然が多く残る環境に和気あいあいとした雰囲気の中学校。小中一貫推進プランを進めているので、小学校との連携がとれている。)

中学校

約1,000m

約250m

スーパー

周辺環境:いなげや横浜綱島店(いなげやは午前9時30分~夜22時まで営業 駐車場は92台 「吉田口」バス停より徒歩1分です。)

スーパー

約250m

約550m

公園

周辺環境:綱島公園(鶴見川の平野部に立地する標高30メートル程の独立丘上部に所在し、雑木林の広がる緑豊かな公園)

公園

約550m

約600m

幼稚園・保育園

周辺環境:エンゼル幼稚園(園舎・園庭から子供たちの元気な声が聞こえてきます。できることが増えていく、お子様の成長が楽しみです。)

幼稚園・保育園

約600m

価格 5,790万円
物件種別 新築一戸建て
間取り 1LDK+2S
所在地 横浜市港北区 綱島西4丁目
交通
  • グリーンライン「日吉本町」駅 徒歩 14 分
  • 東急東横線「綱島」駅 徒歩 15 分
土地面積 50.97㎡
建物面積 86.48㎡
学区 北綱島小学校、日吉台中学校
用途地域 第一種中高層住居専用
建ぺい率 60%
容積率 150%
地目 宅地
駐車場 有り ビルトイン車庫
接道 南西4m
権利 所有権
私道面積 無し
セットバック 無し
建物構造 木造
建物階数 3階
築年月 2025年07月
入居日 即時
都市計画 市街化区域
取引態様 仲介
物件番号 A1744-C
設備 公営水道、公共下水、省エネルギー対策、ビルトインガレージ、駐車場1台、閑静な住宅地、都市近郊、地盤調査済、南側道路面す、市街地が近い、周辺交通量少なめ、スーパーが近い(10分以内)、駅まで平坦、2沿線以上利用可、小学校徒歩10分以内、保育施設・幼稚園5分以内、公園5分以内、コンビニ5分以内、システムキッチン、ガス3口、食器洗い機付き、浄水器、ユニットバス、追い焚き、浴室乾燥機、ウォシュレット、トイレ2ヶ所、浴室に窓、暖房便座、バルコニー、南面バルコニー、3階建以上、LDK15畳以上、採光3面、リビング階段、スマートキー、クローゼット、収納、下駄箱、シャンプドレッサー付き、年内入居可、モニタ付きインターフォン、複層ガラス、火災警報器(報知機)、全居室複層ガラスか複層サッシ、陽当り良好、24時間換気システム、建物10年保証
建築確認番号 -
特記事項 宅地造成工事規制区域:有/高度地区:有/準防火地域:有/日影制限:有/緑化地域 間取りSは納戸 建物面積に車庫面積10.67平米を含む 告示事項あり。 /
備考 「日吉本町」「綱島」「新綱島」の3駅3路線が徒歩圏 通勤通学に便利な立地です 小学校まで徒歩3分

お気軽にどうぞ!

資料請求 現地見学 電話でお問い合わせ
0120-046-690

このエリアでお探しの方へ

今週末モデルハウス見学会開催中!「金沢文庫」駅徒歩15分 新築一戸建て カースペース3台

京浜急行本線「金沢文庫」駅 徒歩 15 分

京浜急行本線「金沢文庫」駅 バス停「赤井」まで 徒歩 11 分 バス利用 3分

横浜市金沢区 釜利谷東3丁目

5,490万円

4LDK

今週末モデルハウス見学会開催中!「戸塚」駅利用 新築一戸建て(A) 全室2面採光

東海道本線「戸塚」駅 バス停「港南プラザ」まで 徒歩 5 分 バス利用 12分

根岸線「港南台」駅 バス停「すずかけ通」まで 徒歩 10 分 バス利用 12分

横浜市港南区 日限山3丁目

5,490万円

4LDK

今週末モデルハウス見学会開催中!「踊場」駅徒歩8分 新築一戸建て(2) 南道路に接道

ブルーライン「踊場」駅 徒歩 10 分

東海道本線「戸塚」駅 バス停「踊場」まで 徒歩 10 分 バス利用 5分

横浜市戸塚区 汲沢7丁目

5,490万円

4LDK

今週末モデルハウス見学会開催中!「踊場」駅徒歩8分 新築一戸建て(3) 南道路に接道

ブルーライン「踊場」駅 徒歩 10 分

東海道本線「戸塚」駅 バス停「踊場」まで 徒歩 10 分 バス利用 5分

横浜市戸塚区 汲沢7丁目

5,490万円

4LDK

横浜市青葉区鴨志田町 新築一戸建 5490万円 A号棟

田園都市線「青葉台」駅 バス停「団地中央」まで 徒歩 5 分 バス利用 12分

こどもの国線「こどもの国」駅 バス停「団地中央」まで 徒歩 6 分 バス利用 13分

横浜市青葉区 鴨志田町

5,490万円

4LDK

値下げしました!「上永谷」駅徒歩8分 新築一戸建て(3) WIC・パントリー完備

ブルーライン「上永谷」駅 徒歩 8 分

京浜急行本線「上大岡」駅 バス停「丸山台」まで 徒歩 4 分 バス利用 20分

横浜市港南区 丸山台2丁目

5,490万円

3SLDK

値下げしました!「上永谷」駅徒歩8分 新築一戸建て(2) WIC・パントリー完備

ブルーライン「上永谷」駅 徒歩 8 分

京浜急行本線「上大岡」駅 バス停「丸山台」まで 徒歩 4 分 バス利用 20分

横浜市港南区 丸山台2丁目

5,490万円

3SLDK

横浜市青葉区もみの木台 新築一戸建 5490万円 A棟

田園都市線「あざみ野」駅 バス停「もみの木台」まで 徒歩 3 分 バス利用 7分

小田急線「新百合ヶ丘」駅 バス停「もみの木台」まで 徒歩 3 分 バス利用 19分

横浜市青葉区 もみの木台

5,490万円

2SLDK

横浜市緑区鴨居町 新築一戸建 5490万円 2号棟

横浜線「鴨居」駅 徒歩 17 分

ブルーライン「片倉町」駅 バス停「菅田町」まで 徒歩 4 分 バス利用 24分

横浜市緑区 鴨居町

5,490万円

4LDK

川崎市麻生区千代ケ丘3丁目 一戸建 5490万円 5号棟

小田急線「百合ヶ丘」駅 徒歩 13 分

小田急線「新百合ヶ丘」駅 徒歩 16 分

川崎市麻生区 千代ケ丘3丁目

5,490万円

3LDK

川崎市麻生区王禅寺 新築一戸建 5490万円 2号棟

小田急線「新百合ヶ丘」駅 バス停「琴平下」まで 徒歩 6 分 バス利用 20分

田園都市線「あざみ野」駅 バス停「虹が丘営業所」まで 徒歩 6 分 バス利用 15分

川崎市麻生区 王禅寺

5,490万円

4LDK

川崎市麻生区王禅寺東5丁目 新築一戸建 5490万円 宅地3

小田急線「新百合ヶ丘」駅 バス停「王禅寺中央中学校前」まで 徒歩 8 分 バス利用 15分

田園都市線「あざみ野」駅 バス停「王禅寺中央中学校前」まで 徒歩 8 分 バス利用 22分

川崎市麻生区 王禅寺東5丁目

5,490万円

3LDK

お気軽にどうぞ!

資料請求 現地見学 電話でお問い合わせ
0120-046-690